티스토리 뷰
목차
안녕하세요. 916 디자인입니다.
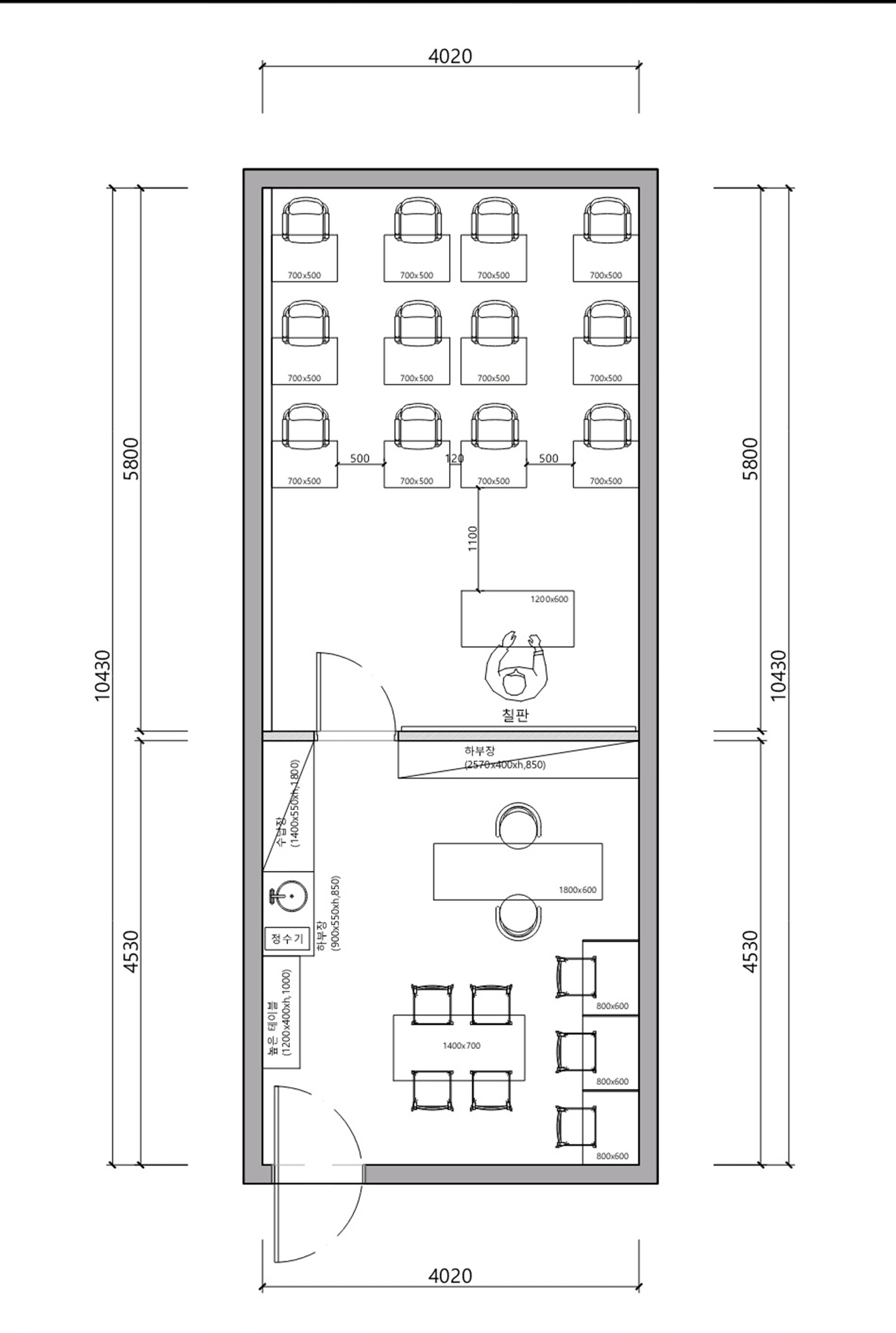
최근에 아는 지인분께서 10평 규모의 교습소를 오픈하게 되어 인테리어 시공을 맡게 되었습니다.
작은 공간이지만 깔끔하고 효율적인 공간으로 만들기 위해 노력했는데요.
그 과정과 결과를 공유하고자 합니다.
10평교습소인테리어를 고민하시는 분들께 조금이나마 도움이 되었으면 좋겠습니다.


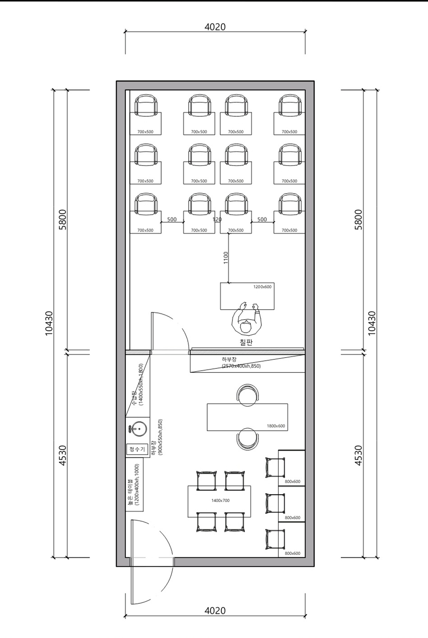
10평교습소인테리어 중요성
10평 규모의 교습소는 주로 학생들의 학습과 교사의 교육 활동을 위한 공간으로 활용됩니다.
이러한 작은 공간에서도 인테리어는 매우 중요한 역할을 합니다.


첫째, 인테리어는 학생들의 학습 환경에 큰 영향을 미칩니다.
깔끔하고 정돈된 분위기는 학생들의 집중력을 높여주고, 편안한 분위기는 학생들의 스트레스를 줄여줍니다.
또, 효율적인 공간 구성은 학생들이 수업에 더욱 집중할 수 있도록 도와줍니다.

둘째, 학부모와 학생들에게 좋은 첫인상을 심어줄 수 있습니다.
깔끔한 인테리어는 학부모와 학생들에게 신뢰감을 주며, 교습소의 이미지를 향상 시키는 데 큰 역할을 합니다.
마지막으로, 인테리어는 교습소의 운영 비용을 절감하는데 도움이 될 수 있습니다.
불필요한 공간을 줄이고, 효율적인 가구 배치를 통해 공간 활용도를 높일 수 있어 초기 시공 비용 외에 냉난방비 등 유지보수 비용을 아낄 수 있습니다.


10평교습소인테리어 공간 활용
작은 공간을 효율적으로 활용하기 위해서는 몇 가지 전략이 필요합니다.
아래는 10평교습소인테리어에서 활용할 수 있는 몇 가지 아이디어입니다.

- 수납공간 확보 -
작은 공간에서는 수납공간이 부족하기 쉽습니다.
벽에 선반은 설치하거나, 천장에 행잉스토리지를 달아 수납공간을 확보하세요.
또, 문이나 창문 주변에 데드 스페이스를 활용하여 수납공간을 만들 수도 있습니다.

- 오픈스페이스 활용 -
작은 공간에는 벽으로 공간을 나누기보다는 오픈스페이스를 활용하는 것이 좋습니다.
이렇게 하면 공간이 넓어 보이고, 자유로운 분위기를 연출할 수 있습니다.
또, 책상이나 의자 등 가구를 배치할 때도 서로 간섭하지 않도록 주의해야 합니다.

- 컬러 활용 -
밝은 컬러를 사용하면 공간이 넓어 보입니다.
또, 따뜻한 컬러를 사용하면 아늑한 분위기를 연출할 수 있습니다.
반면, 어두운 컬러나 패턴이 많은 디자인은 공간을 좁아 보이게 하므로 피하는 것이 좋습니다.

- 조명 활용 -
조명은 공간의 분위기를 결정하는 중요한 요소 중 하나입니다.
밝은 조명을 사용하면 공간이 넓어 보이고, 어두운 조명을 사용하면 아늑한 분위기를 연출할 수 있습니다.
또, 스포트라이트를 활용하여 특정 부분을 강조할 수도 있습니다.
10평교습소인테리어 피드백
모든 공정이 마무리된 후에는 반드시 최종 점검을 해야 합니다.

이 과정에서는 마감 상태, 조명, 환기, 방음 등을 꼼꼼히 확인해야 합니다.
미흡한 부분이 발견되면 즉시 수정을 요청해야 합니다.

마지막으로 클라이언트의 피드백을 받는 것도 중요합니다.

만족도를 파악하고, 향후 개선점을 모색할 수 있습니다.
이러한 피드백을 바탕으로 지속적인 사후관리를 제공한다면, 클라이언트의 만족도를 더욱 높일 수 있을 것입니다.

이렇게 10평교습소인테리어 작지만 깔끔하고 실용적인 공간으로 만드는 데 성공했습니다.
적은 비용으로도 충분히 만족스러운 결과를 얻을 수 있다는 것을 보여주고 싶었습니다.
앞으로 이 공간에서 많은 학생들이 꿈을 키워나갈 수 있기를 기원합니다.
혹시나 작은 교습소 인테리어를 고민 중이시라면 주저 마시고 연락 주세요.
친절하게 맞춤 상담 해드리겠습니다^^
☎ 공 사 문 의 ☎
010 - 3235 - 8427
▼ ▼ ▼ 포트폴리오 더 보기 ▼ ▼ ▼ https://916er.com/
사무실인테리어 디자인 공사 비용견적 플랫폼 - 사무실인테리어 916
사무실인테리어 916
916er.com
2025.09.03 - [학원인테리어] - 청주학원인테리어 시공 비용 대비 디자인 효과를 극대화하는 방법
청주학원인테리어 시공 비용 대비 디자인 효과를 극대화하는 방법
예전에는 학원 강의실 갯수와 면적 확보에만 신경썼다면, 이제는 공간 구성과 디자인에도 많은 관심을 가지고 있습니다. 특히, 경쟁이 치열해지면서 다른 학원과는 차별화된 인테리어를 원하시
dopamine7.com
2025.08.27 - [학원인테리어] - 발레학원인테리어 예쁘고 탄탄하게 무용 댄스플로어 마루 시공한 후기
발레학원인테리어 예쁘고 탄탄하게 무용 댄스플로어 마루 시공한 후기
안녕하세요! 오늘은 발레학원인테리어 및 무용 댄스플로어 마루 시공에 관한 이야기를 해볼까 해요. 공간이 아름답고 기능적인 것이 얼마나 중요한지, 발레학원인테리어 시공 사례를 보시면 깊
dopamine7.com
2025.08.19 - [학원인테리어] - 하남학원인테리어 집중력을 높일 수 있는 영어학원 디자인 소개
하남학원인테리어 집중력을 높일 수 있는 영어학원 디자인 소개
영어학원은 과연 어떤 디자인이 학생들의 집중력을 높일 수 있을까요? 많은 학생들이 교육 환경을 개선하기 우해 다양한 인테리어를 시도하고 있지만,진정한 효과를 발휘하는 디자인은 무엇인
dopamine7.com
2025.08.19 - [학원인테리어] - 파주학원인테리어 라운드 유리가벽 디자인이 돋보이는 예쁜 영어 교습소
파주학원인테리어 라운드 유리가벽 디자인이 돋보이는 예쁜 영어 교습소
파주에 위치한 영어학원 인테리어가 최근 많은 관심을 받고 있습니다. 바로 라운드 유리가벽 디자인이 돋보이는 이 학원은 단순히 공부하는 공간을 넘어 새로운 학습 경험을 제공하고 있기 때
dopamine7.com
'학원인테리어' 카테고리의 다른 글
| 위례상가인테리어 수학 학원 공사 단계별로 알아보고 실패 줄이는 법 (0) | 2025.10.21 |
|---|---|
| 미술교습소인테리어 작지만 매일 가고싶은 예쁜학원 디자인 (0) | 2025.09.30 |
| 언어치료실인테리어 시공기 언어발달센터 디자인 반드시 유의해야 할 사항 (1) | 2025.09.26 |
| 군포학원인테리어 학습능률 올려주는 60평대 맞춤 디자인 제안 (0) | 2025.09.23 |
| 수학학원인테리어 다양한 강의실 컨셉으로 연출한 교습소디자인 (0) | 2025.09.12 |
| 광주학원인테리어 수학학원의 새로운 공간 디자인을 적용해 드립니다. (0) | 2025.09.04 |
| 청주학원인테리어 시공 비용 대비 디자인 효과를 극대화하는 방법 (0) | 2025.09.03 |
| 발레학원인테리어 예쁘고 탄탄하게 무용 댄스플로어 마루 시공한 후기 (2) | 2025.08.27 |
- Total
- Today
- Yesterday
- 병원인테리어
- 지식산업센터인테리어
- 사무실인테리어추천
- 사무실디자인
- 사무실인테리어공사
- 회사인테리어
- 학원인테리어디자인
- interior
- 사무실인테리어
- 학원인테리어
- 인테리어디자인
- 미용실인테리어
- 헤어샵인테리어
- 3D디자인
- 오피스인테리어
- 916디자인
- 헬스장인테리어
- 피티샵인테리어
- 사무실인테리어전문
- 3D사무실인테리어
- 사무실리모델링
- 사무실인테리어견적
- 사무실인테리어업체
- 인천사무실인테리어
- 상가인테리어
- 사무실인테리어비용
- 사무실인테리어잘하는곳
- 사무실인테리어디자인
- 사무실인테리어후기
- 인테리어
| 일 | 월 | 화 | 수 | 목 | 금 | 토 |
|---|---|---|---|---|---|---|
| 1 | 2 | 3 | ||||
| 4 | 5 | 6 | 7 | 8 | 9 | 10 |
| 11 | 12 | 13 | 14 | 15 | 16 | 17 |
| 18 | 19 | 20 | 21 | 22 | 23 | 24 |
| 25 | 26 | 27 | 28 | 29 | 30 | 31 |


