티스토리 뷰
목차
근래들어 다양한 업종의 상업 공간 시공 문의가 이어지고 있는데요.
그 중에서도 가장 많은 비중을 차지하는 건 역시 학원 인테리어입니다.
특히, 수도권 인기 지역인 위례 신도시에서는 상가 공실률이 높아지면서 기존 사무실이나 점포를 학원으로 용도 변경하여 운영하시려는 원장님들의 의뢰가 많습니다.
그래서 오늘은 실제 진행했던 위례상가인테리어 현장을 토대로 수학 학원 공사를 단계별로 알아보도록 하겠습니다.
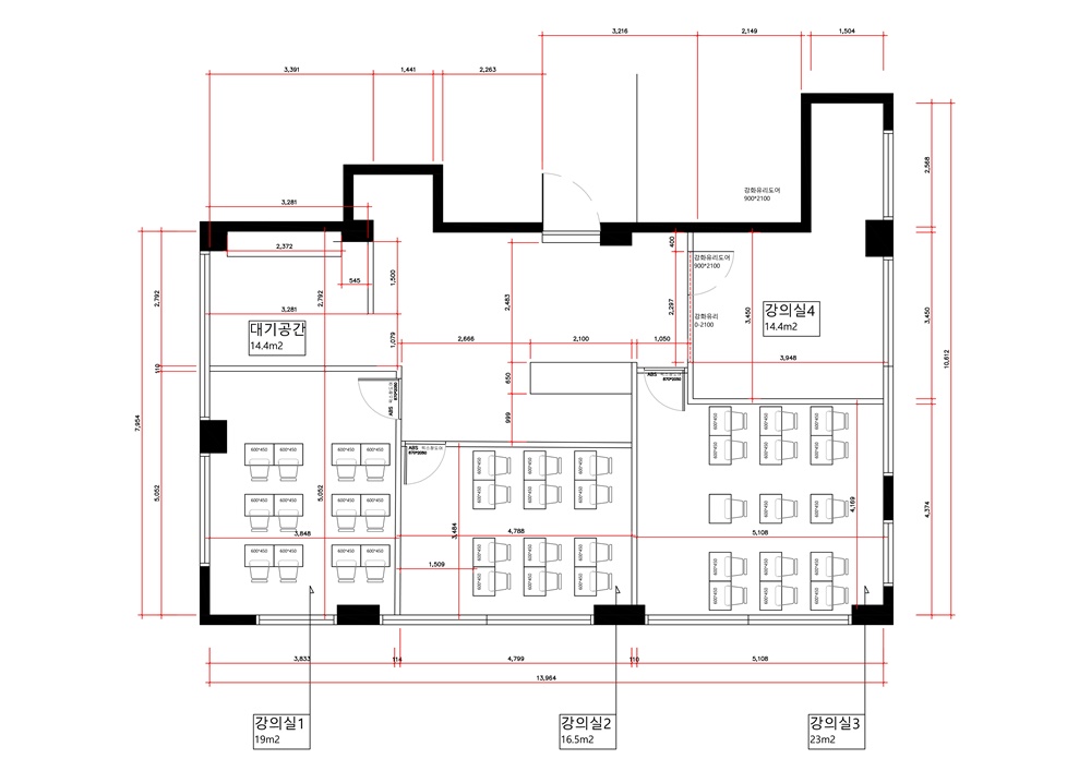
위례상가인테리어 학원 공사 계획 단계



위례상가인테리어 수학 학원 공사 초기 계획 단계에서는 공간의 목적과 요구사항을 명확하게 정의해야 합니다.
수학 학원의 경우, 강의실, 자습실, 교무실 등 각 공간의 크기와 배치를 고려해야 하며, 학생들의 학습 환경을 개선하기 위한 시설과 가구도 고려해야 합니다.




이 단계에서는 고객과의 원활한 소통이 중요합니다.
고객의 요구사항을 충분히 파악하고, 그에 맞는 디자인 컨셉을 제안해야 합니다.
3D 모델링을 통해 완성된 모습을 미리 확인할 수 있어, 고객의 만족도를 높일 수 있습니다.




초기 계획 단계에서 예산을 설정하는 것도 중요합니다.
예산을 초과하지 않도록 자재와 시공 방법을 선택하고 일정을 조율해야 합니다.
이를 통해 공사 기간 동안 발생할 수 있는 문제를 예방하고, 효율적인 공사 진행이 가능합니다.
위례상가인테리어 수학 학원 공사 진행



위례상가인테리어 수학 학원 공사를 위한 자재 선택은 인테리어의 완성도를 결정하는 중요한 요소입니다.
가격뿐만 아니라 품질과 내구성을 고려해야 하고, 공간의 용도와 분위기에 맞는 디자인과 색상을 선택해야 합니다.



품질 관리는 안전과 직결되는 문제이므로, 엄격하게 이루어져야 하며, 불량 자재를 사용하거나 공사가 부실하면, 안전사고가 발생할 수 있습니다.
그러므로 주기적으로 점검하고, 문제가 발견되면 즉시 조치해야 합니다.
공사 진행 중에는 예상치 못한 문제가 발생할 수 있는데, 이러한 문제를 미리 예측하고, 대기책을 마련해야 합니다.



만약 문제가 발생했다면, 신속하게 대처해야 하며, 공사지연으로 인한 추가 비용이 발생하지 않도록 주의해야 합니다.
완공 후에는 철저한 점검을 통해 미흡한 부분을 보완해야 하고, 꾸준한 유지관리를 통해 처음 모습 그대로 오래 사용할 수 있도록 노력해야 합니다.
위례상가인테리어 수학 학원 디자인과 공간 활용
위례상가인테리어 공사 디자인 단계에서는 수학 학원의 특성을 고려하여 깔끔하고 집중력 있는 분위기를 조성해야 합니다.
화이트 컬러를 베이스로 사용하고, 우드 소재를 포인트로 주어 안정감을 줄 수 있습니다.
조명은 밝고 균일하게 설치하여 학생들의 눈의 피로를 최소화해야 합니다.





공간 활용 전략도 중용합니다.
강의실과 자습실의 크기와 배치를 적절하게 조절하여 학생들의 이동 동선을 줄이고, 학습 효율을 높일 수 있습니다.
수납 공간을 충분히 확보하여 교재와 교구를 깔끔하게 정리할 수 있도록 해야 합니다.





이 단계에서는 고객의 취향과 요구사항을 반영하면서도 실용성과 기능성을 고려해야 합니다.
지속 가능한 소재를 사용하여 환경 친화적인 인테리어를 구현하는 것도 좋은 방법입니다.






위례상가인테리어 수학 학원 공사 시 디자인과 더불어 예산 설정 및 비용 관리도 중요합니다.
예산은 초기 단계에서 예상 비용을 계산하고, 그에 맞게 예산을 설정해야 합니다.
이때, 자재비, 인건비, 감리비 등 세부 항목별로 예산을 나누는 것이 좋습니다.






비용 관리 방안으로는 여러 업체로부터 견적을 받아 비교해보는 것이 좋습니다.
업체마가 가격 차이가 있을 수 있으므로, 충분한 검토 후에 적절한 업체를 선택해야 합니다.
중간중간 진행 상황을 체크하고, 비용이 초과되지 않도록 관리해야 합니다.





마지막으로, 사후관리 여부를 확인해야 합니다.
공사 후에 문제가 발생할 경우, 신속하게 대처할 수 있는 업체를 선택하는 것이 중요합니다.
그리고 이전에 진행한 프로젝트 포트폴리오를 확인하고, 업체의 평판과 리뷰를 참고하는 것이 좋으며, 합리적인 가격을 제시하는 업체를 선택해야 합니다.
이렇게 이번 시간에는 수학 학원 공사를 앞두고 계신 분들을 위해 위례상가인테리어 준비 과정부터 체크해야 할 사항과 실제 완공 사례까지 전해 드렸습니다.
같은 상가인테리어라 하더라도 업종에 따라 디자인 및 시공 방식이 달라지기에 전문가와의 직접적인 상담이 필요한데요.
저희는 합리적인 비용은 물론 충분한 상담과 협의를 통해 고객 맞춤형 결과물을 제공해 드리고 있으니 더 궁금한 점이 있으시면 언제든지 문의해 주시기 바랍니다.
☎상담문의☎
010-3235-8427
🔽포트폴리오 더보기🔽
사무실인테리어 디자인 공사 비용견적 플랫폼 - 사무실인테리어 916
사무실인테리어 916
916er.com
2025.09.30 - [학원인테리어] - 미술교습소인테리어 작지만 매일 가고싶은 예쁜학원 디자인
미술교습소인테리어 작지만 매일 가고싶은 예쁜학원 디자인
안녕하세요. 916 디자인입니다. 최근 들어 교습소 창업 문의가 많은데요. 그중에서도 미술교습소는 꾸준히 인기가 많은 것 같습니다. 이번에는 미술교습소인테리어 준비하시는 원장님들을 위해
dopamine7.com
2025.09.23 - [학원인테리어] - 군포학원인테리어 학습능률 올려주는 60평대 맞춤 디자인 제안
군포학원인테리어 학습능률 올려주는 60평대 맞춤 디자인 제안
안녕하세요. 916 디자인입니다. 학원 창업을 준비하시는 원장님들께서는 인테리어에 많은 신경을 쓰실 텐데요. 같은 공간이라도 어떻게 디자인하느냐에 따라 학습 능률이 달라질 수 있기 때문입
dopamine7.com
2025.09.12 - [학원인테리어] - 10평교습소인테리어 저렴한 비용으로 깔끔하고 효율적인 공간 시공후기
10평교습소인테리어 저렴한 비용으로 깔끔하고 효율적인 공간 시공후기
안녕하세요. 916 디자인입니다. 최근에 아는 지인분께서 10평 규모의 교습소를 오픈하게 되어 인테리어 시공을 맡게 되었습니다. 작은 공간이지만 깔끔하고 효율적인 공간으로 만들기 위해 노력
dopamine7.com
2025.09.12 - [학원인테리어] - 수학학원인테리어 다양한 강의실 컨셉으로 연출한 교습소디자인
수학학원인테리어 다양한 강의실 컨셉으로 연출한 교습소디자인
수학을 처음 배우던 순간을 기억하시나요? 숫자와 기하학의 세계에 빠져들었던 그 시기, 그리고 그 신비로운 공식들이 머릿속에서 마구 뒤섞이던 순가들을 떠올려보면 학습의 즐거움을 다시 느
dopamine7.com
'학원인테리어' 카테고리의 다른 글
| 10평교습소꾸미기 시공 사례로 보는 실속있고 깔끔한 영어학원 만들기 방법 (0) | 2025.11.05 |
|---|---|
| 미술학원인테리어 전문 시공, 아이들의 상상력이 살아나는 교습소 맞춤 디자인 (0) | 2025.10.31 |
| 발레학원인테리어 댄스플로어 바닥재 시공 사례 (0) | 2025.10.29 |
| 용인상가인테리어 영어학원 시공을 위한 업체의 전략 (0) | 2025.10.28 |
| 미술교습소인테리어 작지만 매일 가고싶은 예쁜학원 디자인 (0) | 2025.09.30 |
| 언어치료실인테리어 시공기 언어발달센터 디자인 반드시 유의해야 할 사항 (1) | 2025.09.26 |
| 군포학원인테리어 학습능률 올려주는 60평대 맞춤 디자인 제안 (0) | 2025.09.23 |
| 10평교습소인테리어 저렴한 비용으로 깔끔하고 효율적인 공간 시공후기 (0) | 2025.09.12 |
- Total
- Today
- Yesterday
- 3D디자인
- 피티샵인테리어
- 학원인테리어
- 헤어샵인테리어
- 사무실인테리어비용
- 헬스장인테리어
- 인테리어디자인
- 인테리어
- 미용실인테리어
- 회사인테리어
- 사무실디자인
- 상가인테리어
- 916디자인
- 3D사무실인테리어
- 사무실인테리어견적
- 사무실인테리어업체
- 학원인테리어디자인
- 사무실인테리어전문
- 병원인테리어
- 사무실인테리어디자인
- 지식산업센터인테리어
- 사무실인테리어잘하는곳
- 사무실인테리어후기
- 인천사무실인테리어
- 사무실인테리어
- 사무실리모델링
- 사무실인테리어추천
- 오피스인테리어
- interior
- 사무실인테리어공사
| 일 | 월 | 화 | 수 | 목 | 금 | 토 |
|---|---|---|---|---|---|---|
| 1 | 2 | 3 | ||||
| 4 | 5 | 6 | 7 | 8 | 9 | 10 |
| 11 | 12 | 13 | 14 | 15 | 16 | 17 |
| 18 | 19 | 20 | 21 | 22 | 23 | 24 |
| 25 | 26 | 27 | 28 | 29 | 30 | 31 |



