티스토리 뷰
목차
김포인테리어 꼼꼼한 시공으로 3D 디자인





안녕하세요,
916디자인입니다.
우리에게 있어서 실내 공간을
아름답게 꾸미는 것은 굉장히
중요한 과정이라 할 수 있습니다.
실내 공간을 본인이 원하는대로
꾸민다면 굉장히 만족스러운
일상을 영위할 수 있게 되는 만큼,
이러한 과정을 인테리어라고
부르게 됩니다.
최근에는 사무실 공간을 세련되게
만들기 위해서 많은 사람들이 고민
시고 계신 만큼 오늘은 저희가 직접
진행해드린 김포인테리어 사례를
자세하게 살펴보겠습니다.





오늘 김포인테리어 시공을 요청해
주셨던 고객님께서는 이번에 새롭게
사무실을 이사하시게 되면서 저희에게
문의를 주셨습니다.
저희 또한 고객님과 상담을
하면서 어떤 공간들을 만들고 싶으신지
자세하게 살펴보았습니다.
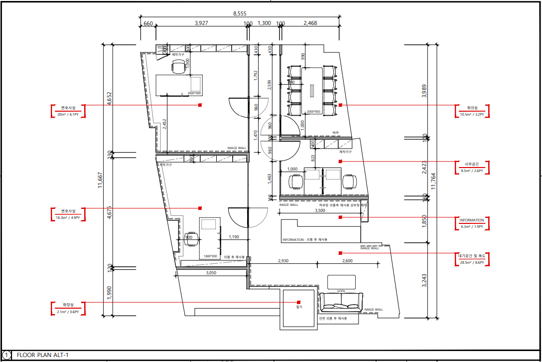
처음에는 원하는 공간을 3D 디자인
작업으로 진행하면서 고객님의
니즈를 반영하여 공간을 만들며, 이후에는
저희가 조율을 하면서 완벽하게
디자인을 수행합니다.
시공 전에 디자인을 하는 것은
굉장히 중요한 과정이며, 디자인
작업이 마무리 되었다면 본격적으로
시공을 진행합니다.
김포인테리어 시공 후 현장





전체적인 시공을 완료했을 때
3D 디자인과 동일하게 구성되었다는
것을 알 수 있습니다.
내부로 들어서면 바로 리셉션 공간을
마주하게 됩니다. 곳곳에 간접
조명들을 설치해서 내부를 더욱
화사하게 만들어드렸으며,
테이블은 톤다운된 베이지 계열의
타일을 부착하여 마감으로
진행해드렸습니다.
천장의 경우 돌출형 우물 천장
디자인을 적용해드려서 전체적인
공간이 따뜻하고 밝게 느껴지도록
구성해드렸습니다.





리셉션 맞은 편으로는 기업의
이미지를 위한 상패 등을 전시해두기
위한 진열장을 설치해드렸습니다.
내부에 진열한 부분들을 돋보이게
하도록 만들어드렸으며, 전부 간접
조명으로 설치했습니다.
오른쪽 벽면에는 회사의 사인물을 부착
하였고, 사인물 주변으로도 간접조명을
설치하여 시선을 유도했습니다.
이번 현장의 경우 조명의 역할들이
굉장히 중요하다보니 저희 또한 세심하게
조명 설치를 진행하여 포인트를 주었습니다.





이번 현장에서는 평수가 그리 넓지
않았지만 최대한 많은 공간을
구성할 수 있도록 노력했습니다.
그렇기에 글라스월을 적극적으로
사용했는데요.
글라스월은 전체적인 공간이
개방적으로 보일 수 있도록 도와주며,
벽면 또한 아트월로 꾸며서
공간이 전혀 어색하지 않도록
만들어드렸습니다.
시공 과정에서도 고객님이 중간중간
방문하셔서 추가적으로 조율해야하는
내용들을 말씀해주셨으며, 전체적인
큰 틀이 벗어나지 않는 선에서 적극
조율할 수 있었습니다.




글라스월을 넘어서는
변호실을 구성했습니다.
해당 공간은 전문성을 띄도록 하기
위해서 분리하여 구성해드렸습니다.
각기 다른 룩스를 사용했으며,
가장 밝은 분위기의 공간으로
만들어야 했습니다.
이로 인해 더 집중할 수 있고,
사무실 또한 전혀 어색하지 않도록
구성해드렸으므로, 완성된 결과물을 통해
고객님께서도 상당히 만족스러워 하셨습니다.
사무실 시공은 전체적인 공간들이
잘 어우러지도록 만들어야하며, 추가적인
문제가 발생하지 않도록 세심하게
진행되어야 하는 만큼 저희와 같은
전문가를 통해서 완벽하게 완성
시켜주시는 것이 좋습니다.

오늘은 저희가 직접 진행해드린
김포인테리어 사례를
자세하게 살펴보았습니다.
오늘 현장과 같이 사무실을 새롭게
만들기 위해서 고민하신다면
저희를 통해서 해결해주시는
것이 좋습니다.
저희의 경우 다년간의 경험을
보유하고 있으며, 만족스러운 결과를
제공해드릴 수 있는만큼, 문의사항이
있으시다면 편하게 문의주시기 바랍니다.
공사문의 010-3235-8427
▼▼▼▼포트폴리오 더보기▼▼▼▼
사무실인테리어 디자인 공사 비용견적 플랫폼 - 사무실인테리어 916
사무실인테리어 916
916er.com
2024.05.07 - [사무실인테리어] - 마포인테리어 현장중심 공사
마포인테리어 현장중심 공사
마포인테리어 현장중심 공사 3D 디자인 안녕하세요, 916디자인입니다. 최근 사무실을 새로운 디자인으로만들기 위해서 인테리어를 고민하시는 분들이 굉장히 많다는 것을알 수 있습니다.
dopamine7.com
2024.05.06 - [사무실인테리어] - 강남인테리어회사 사무실디자인 공사 전문업체
강남인테리어회사 사무실디자인 공사 전문업체
강남인테리어회사 사무실디자인 공사 전문업체 안녕하세요 916디자인입니다.저희는 강남인테리어회사로서 수 많은 업장을지금까지 완성해왔으며 업종이나 공간 평형 분위기등을가리지 않
dopamine7.com
2024.05.05 - [미용실인테리어] - 미사 하남미용실인테리어 트랜드를 따라
미사 하남미용실인테리어 트랜드를 따라
미사 하남미용실인테리어 트랜드를 따라 안녕하세요. 미용실은 매 시즌 바뀌는 헤어 트렌드에 발맞춰 새로운 기술과 주력 홍보 스타일을 새롭게 선보여야 하는 것이 중요
dopamine7.com
2024.05.04 - [사무실인테리어] - 서울인테리어업체 현장에 집중
서울인테리어업체 현장에 집중
서울인테리어업체 현장에 집중 안녕하세요 916디자인입니다.저는 인테리어에서만큼은 현장이 모든것을알려준다고 생각하는데요. 단순히 도면을 보고는 알 수 없는 것들이실제로 현장을 보
dopamine7.com
2024.05.04 - [사무실인테리어] - 수원인테리어업체 가성비를 찾다
수원인테리어업체 가성비를 찾다
수원인테리어업체 가성비를 찾다 안녕하세요 916디자인입니다.인테리어는 생각보다 큰 규모의 비용이지출되기에 하루 아침에 결정할 수 있는사안이 아닙니다. 그리고 한번 진행하고나면 쉽
dopamine7.com
'사무실인테리어' 카테고리의 다른 글
| 파주인테리어 마감의 퀄리티 (0) | 2024.05.09 |
|---|---|
| 수원 영통인테리어업체 믿음으로 진행하는 공사 (0) | 2024.05.08 |
| 용인테리어 업체 합리적인 비용 안에서 (0) | 2024.05.08 |
| 구로구인테리어 미래를 위한 오늘의 중심 (0) | 2024.05.08 |
| 마포인테리어 현장중심 공사 (0) | 2024.05.07 |
| 강남인테리어회사 사무실디자인 공사 전문업체 (1) | 2024.05.07 |
| 동탄인테리어업체 고객만족중심 (0) | 2024.05.06 |
| 서울인테리어업체 현장에 집중 (1) | 2024.05.04 |
- Total
- Today
- Yesterday
- 사무실인테리어비용
- 피티샵인테리어
- 사무실인테리어견적
- 병원인테리어
- 지식산업센터인테리어
- 사무실인테리어디자인
- 사무실인테리어공사
- 916디자인
- 미용실인테리어
- 사무실디자인
- 사무실인테리어후기
- 헤어샵인테리어
- 사무실인테리어잘하는곳
- 3D디자인
- 오피스인테리어
- 인테리어디자인
- 사무실인테리어
- interior
- 헬스장인테리어
- 사무실리모델링
- 사무실인테리어업체
- 상가인테리어
- 인천사무실인테리어
- 인테리어
- 회사인테리어
- 3D사무실인테리어
- 학원인테리어
- 사무실인테리어전문
- 학원인테리어디자인
- 사무실인테리어추천
| 일 | 월 | 화 | 수 | 목 | 금 | 토 |
|---|---|---|---|---|---|---|
| 1 | 2 | 3 | ||||
| 4 | 5 | 6 | 7 | 8 | 9 | 10 |
| 11 | 12 | 13 | 14 | 15 | 16 | 17 |
| 18 | 19 | 20 | 21 | 22 | 23 | 24 |
| 25 | 26 | 27 | 28 | 29 | 30 | 31 |
