티스토리 뷰
목차
미사 하남미용실인테리어 트랜드를 따라

안녕하세요. 미용실은 매 시즌 바뀌는
헤어 트렌드에 발맞춰 새로운 기술과
주력 홍보 스타일을 새롭게 선보여야
하는 것이 중요하다고 보는데요.
미용실 인테리어 역시 헤어 디자이너의
심미안과 트렌디한 감각을 갖춘 역량을
그대로 드러내는 부분이라고 볼 수 있습니다.

우리 업체에서는 사전 미팅과 충분한
상담을 통해 클라이언트가 원하고 또
주력으로 선보이고자 하는 스타일에 적합한
방향으로 인테리어를 설계하고 구현해 드립니다.
내부 인테리어뿐만 아니라 간판과 조명,
외부 전판대와 길거리 느낌까지 종합적으로
고려하여 전체적으로 조화롭고 보기 좋은
종합 인테리어 서비스를 제공해 드립니다.
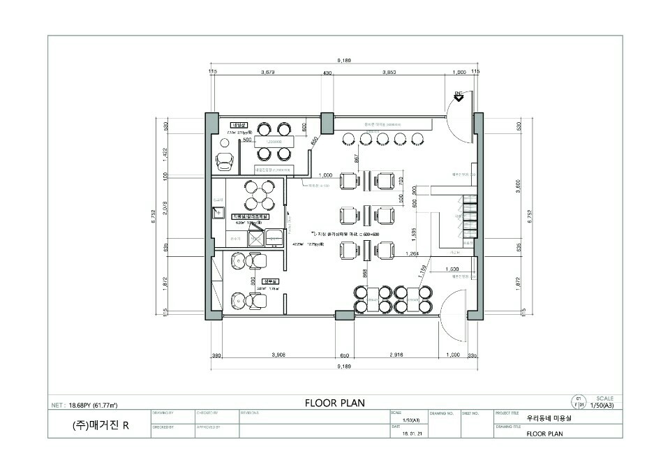
미사 하남미용실인테리어 3D 디자인 시안

모든 인테리어 업체가 그런 것은 아니지만
간혹 단순히 수기로 대충 그린 도안과
표로 만든 견적서만으로 시공하겠다고
나서는 곳이 있기도 한다는데요.

저희는 2D 평면도안으로 수학적으로
오차 없는 설계와 더불어 최신식 3D 프로그램을
사용하여 실제 매장의 평수와 사용하실 집기와
가구를 배치하여 눈앞에서 보는 듯한 생생한
시뮬레이션을 통해서 클라이언트에게
보다 높은 완성도와 만족도를 드립니다.

이번 클라이언트는 미사 하남에 있는 미용실로
원장님 취향은 포근한 우드톤을 선호하시고
요즘 미용실 인테리어 트렌드에 맞게끔
디자인하길 원하셨기 때문에, 사전에 여러
포트폴리오와 원목의 소재, 조명 디자인 등
세세한 부분까지 꼼꼼하게 의논했습니다.

본격적인 시공에 앞서 깔끔하게 청소하고,
불필요한 자재를 철거한 후 기본 전기 배선
및 수도 작업을 함께 진행해 드렸습니다.
모든 과정에서 가장 중요하게 생각하는 것은
안전과 청결인데요, 작업은 보통 여러
가게가 밀집된 상가에서 이루어지기 때문에
이웃 매장에 피해를 주지 않으면서 행인의
눈길이 닿을 때 누가 봐도 매장 오픈이
기대될 수 있도록 모든 과정이 깔끔해 보이고
불필요한 자재에 걸리거나 부딪히는 등
안전사고가 발생하지 않도록 굉장히
신경 써서 작업하고 있습니다.

이후 페인트 작업과 카운터, 캐비넷,
경대와 싱크대를 제작해 드렸는데요.
페인트는 저가형을 사용할 경우 냄새와
시공 마감이 깔끔하게 되지 않을 수 있어
되도록 비용이 들더라도 고급 브랜드 제품을
이용하고 있으며, 유지 시간이 길어 장시간
재도색 작업을 하지 않아도 되는 장점이 있습니다.

또한 모든 공간은 지금 완성된다는
생각이 아니라 다음에 클라이언트의 상상력과
필요에 따라 추가적인 소품이 배치될 수
있다는 가능성을 염두에 두고 적절하게
여겨지는 공간에 부분 조명과 공간의
여유를 두어 시공해 드리고 있답니다.


미용실 인테리어 작업을 할 때 가장
신경 쓰는 요소는 공간의 분리와 활용입니다.
고객이 머무르는 샴푸실이나 클리닉실,
직원이 식사하고 휴식하는 휴게공간,
세탁실, 약제실, 카운터의 적절한
공간 분리와 동선 연구를 잘 구상해야
고객에게 프라이빗한 느낌을 제공하면서도
폐쇄적인 느낌이 들지 않고, 디자이너가
업무하기 편안한 환경을
제공해 드릴 수 있기 때문입니다.
미사 하남미용실인테리어 공간 완성

클라이언트의 요청과 매장 구조 특성에
따라 개방된 느낌에 반투명한 시폰 커튼을
달고, 그 자리에 앉아 대기하고 장시간
소요되는 시술 시간에 고객이 휴식하거나
자유롭게 시간을 보내실 수 있도록
공간을 한쪽에 마련해 드렸는데요.
제한된 평형에서도 공간을 활용하며
전체적 컨셉 및 분위기를 해치지 않게끔
디자인 및 제작을 도와드렸습니다.

원목은 조금 과하면 자칫 촌스러워 보일 수
있고, 무거우면 중후한 분위기로 치우칠 수
있지만, 밝은 색상으로 작은 디테일을 잘
살려주면 아주 모던하면서도 편안하고
깔끔한 느낌을 낼 수 있는 재료입니다.

이번 현장에서도 역시 가장 중요했던
미용실 카운터는 매장 구조 특성상
거의 모든 공간 분리를 가벽 세워
진행했던 완벽한 공실이었기 때문에
수납공간이 충분치 않다 보니 카운터를
활용해서 원장님과 디자이너의 물품을
보관할 수 있는 공간을 확보해 드렸어요.

다행히 공간이 딱 맞게 나와주어서
요즘 대형 미용실에서 많이 활용하는
마주 보는 형태의 경대도 제작해 드렸고요.
모든 자리가 손님으로 꽉 찰 수 있도록
진심과 정성을 다해 인테리어를 진행해
드렸던 기억이 아직도 선명하답니다.
어떤 공간, 어떤 미용실이든 가장 최적의
동선과 분위기로 상권 내에서 절대
인테리어에서 뒤처지지 않을 수 있게
클라이언트의 마음을 그대로 담아
정성껏 공간을 만들어 드리고 있으니
열린 마음으로 언제든 문의해 주시기를 바랍니다.
미용실인테리어
공사문의 대표번호 : 010 3235 8427
포트폴리오 더보기 : salon916.com
미용실인테리어 - 미용실인테리어 전문 플랫폼
미용실인테리어 전문 플랫폼
salon916.com
2024.04.19 - [미용실인테리어] - 안산 인천미용실인테리어 빠른디자인
안산 인천미용실인테리어 빠른디자인
안산미용실인테리어 빠른디자인 공사전후 안녕하세요. 916디자인입니다. 오늘은 안산미용실인테리어 빠른디자인을 의뢰하신 고객님의 현장을 보여드리도록 하겠습니다. 공사일정이라는 게 빠
dopamine7.com
2024.04.22 - [미용실인테리어] - 포천 의정부미용실인테리어 지금바로 공사를
포천 의정부미용실인테리어 지금바로 공사를
포천 의정부미용실인테리어 3D 디자인 안녕하세요! 916디자인이에요. 오늘은 저희가 진행해드린 포천 의정부미용실인테리어 사례를 살펴볼텐데요. 미용실이 이제는 너무나 고급스럽게 변하는
dopamine7.com
2024.04.18 - [미용실인테리어] - 상업공간디자인 예쁜 뷰티샵공간 인테리어부터
상업공간디자인 예쁜 뷰티샵공간 인테리어부터
상업공간 디자인 예쁜 뷰티샵공간 현장 미용실 인테리어 계획은 고객층 운영방식에 따라 자신에게 맞는 디자인으로 계획하여 진행하여야하는데요. 내가 원하는 분위기가 있거나 브랜딩 요소가
dopamine7.com
'미용실인테리어' 카테고리의 다른 글
| 청라 미용실인테리어 크기 상관 없이 예쁜 디자인이 가능 (0) | 2024.07.01 |
|---|---|
| 대치동 산뜻하면서도 쾌적한 미용실인테리어 실내디자인의 완성 (0) | 2024.06.30 |
| 송파 뷰티 헤어 미용실인테리어 아늑하고 프라이빗함이 한가득 (0) | 2024.06.29 |
| 파주인테리어업체 전문성이 문제다 (0) | 2024.05.14 |
| 인천 송도 청라 미용실인테리어 디자인제안 (0) | 2024.05.06 |
| 압구정 청담동 미용실인테리어 빠른미팅 가능합니다. (0) | 2024.05.06 |
| 양천구 목동 미용실인테리어 헤어샵공사 비용견적은 합리적 (0) | 2024.05.05 |
| 아산 천안미용실인테리어 이것이 핵심 (0) | 2024.05.05 |
- Total
- Today
- Yesterday
- 학원인테리어
- 오피스인테리어
- 3D사무실인테리어
- 병원인테리어
- 지식산업센터인테리어
- 인천사무실인테리어
- 사무실인테리어잘하는곳
- 사무실디자인
- 사무실인테리어디자인
- 사무실인테리어추천
- 학원인테리어디자인
- 인테리어
- 사무실인테리어견적
- 미용실인테리어
- 사무실인테리어전문
- 사무실인테리어공사
- 916디자인
- 회사인테리어
- 사무실리모델링
- 사무실인테리어
- 헤어샵인테리어
- 3D디자인
- 헬스장인테리어
- 인테리어디자인
- interior
- 사무실인테리어후기
- 상가인테리어
- 피티샵인테리어
- 사무실인테리어비용
- 사무실인테리어업체
| 일 | 월 | 화 | 수 | 목 | 금 | 토 |
|---|---|---|---|---|---|---|
| 1 | ||||||
| 2 | 3 | 4 | 5 | 6 | 7 | 8 |
| 9 | 10 | 11 | 12 | 13 | 14 | 15 |
| 16 | 17 | 18 | 19 | 20 | 21 | 22 |
| 23 | 24 | 25 | 26 | 27 | 28 | 29 |
| 30 |
