티스토리 뷰
목차
인천 송도 청라 미용실인테리어 디자인제안
안녕하세요, 감각적인 미용실 인테리어는
미용실 원장님의 미적 감각과 스타일 정체성을
뚜렷하게 나타내는 요소 중 하나입니다.
대표적인 예로 바버샵을 떠올려 보면 모두의
머릿속에 비슷한 컨셉의 매장이 떠오르게
마련인 것처럼, 원장님의 주 고객 타겟에
해당하는 연령층이 선호하는 분위기와 느낌을
살려 인테리어에 구현하는 것이 중요합니다.


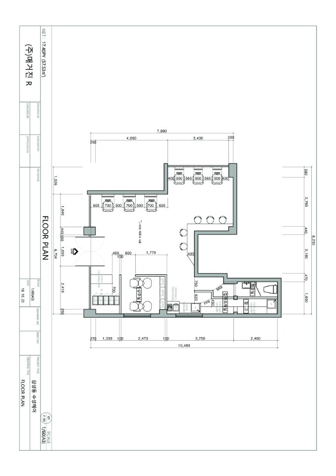
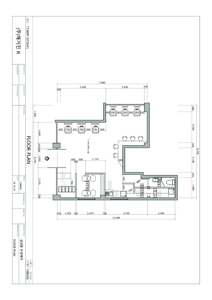
한정된 평형에서 최고의 디자인과 동선을
살려드리기 위해 저희는 먼저 현장 도면을
구상하고 3D 디자인을 통해 시뮬레이션하여
원장님께서 원하시는 매장 분위기와 컨셉을
최대한 만족해 드리고자 노력하고 있습니다.
인천 송도 청라 미용실인테리어 3D디자인


오랜 경험과 풍부한 아이디어로 어떤 공간도
효율적으로 활용하도록 살려내고 있습니다.
때로는 원장님께서 저희가 생각지도 못한
아이디어를 주셔서 놀랄 때도 있습니다만
저희의 숙련된 노하우와 풍부한 경험으로
제안하는 아이디어에 감탄하시기도 합니다.
오랜 시간 동안 원장님과 사전미팅을 거친 후
수정과 견적을 합의하여 디자인이 완성되면
본격적인 현장 작업에 착수하게 됩니다.


시공 전 공실 화를 먼저 진행하는데요, 먼지 제거 등
불필요한 자재를 모두 청소하여 안전사고가
발생하지 않도록 모든 면에서 신경 쓰고 있습니다.
이번 원장님께서는 최적의 공간 활용을 위해
카운터를 제작하기로 하셨고, 제작시 질리티있는
재료를 사용하되 전체적으로 조화롭게 어울리도록
하나하나 꼼꼼하게 신경 쓰고 있습니다.


하나의 통일된 컨셉과 분위기를 내고 싶다면
여기저기서 카운터 따로, 경대 따로 구매하는
것이 아니라 한 업체를 통해 한꺼번에 세트로
마련하시거나 제작하시는 것이 좋습니다.
그렇게 하면 시간과 비용을 동시에 줄이고
미용실 오픈 전 인테리어 외적인 부분에
더 집중하실 수 있어 추천해 드립니다.

전기 및 수도 역시 꼼꼼하고 안전하면서도
가장 경제적인 구조로 만들어드립니다.
작업 중간 언제라도 클라이언트께서
방문해 보시거나 행인이 얼핏
보기에도 복잡하고 지저분한 공사 현장이
아니라 예쁘고 세련된 미용실 완성 과정으로
보일 수 있게끔 언제나 청결과 안전, 위생을
점검하며 작업을 해나가고 있습니다.
인천 송도 청라 미용실인테리어 공간 완성


이번 인천 송도 청라 미용실 인테리어를
하나씩 보여드리도록 하겠습니다.
청라 신도시의 세련된 이미지에 맞게
화사하면서도 따뜻한 느낌의 조명을 달아
아늑한 공간을 표현해 드렸습니다.


경대는 테두리 없는 둥근 면의 깔끔한
거울을 벽에 부착하여 군더더기 없는
깔끔한 느낌을 주었고, 염색 시술 시
헤어컬러를 확인하기에 용이하도록 백색
조명을 거울 뒤편에 은은하게 비치도록
실용적이면서도 창의적으로 디자인했습니다.

바닥에 떨어진 머리카락을 청소하기 쉬운
대리석 바닥을 배치하여 매장 운영에
용이한 요소로 활용하면서도 반짝이는
바닥이 천장 조명을 반사하여 화사함을
더하였으며 전체적인 분위기가 품격 있고
우아하게 느껴지게끔 시공하였습니다.

약제실과 샴푸실, 고객 물품 보관 캐비넷과
카운터의 공간을 분리하기 위해 밝은 색상의
가벽을 세웠고 작은 카운터와 천장형 찬장으로
한정된 공간을 최대한 활용하였습니다.
가벽에도 디테일한 문양과 조명으로 모든 면에
심미적인 요소를 놓치지 않으면서도 전체적인
분위기를 깨뜨리지 않아 조화롭게 어울립니다.


모든 가게의 첫인상이자 마무리, 작지만 큰
역할을 하는 카운터 역시 앉아서 쉴 수 있는
내부 공간과 프라이빗함을 유지하면서도
손님을 맞이하는 공간답게 밝은 느낌의
펜던트 조명을 배치하였으며 사무와 실무를
번갈아 보기에 어렵지 않은 구조로 제작했습니다.

펌이나 염색 등 방치 시간이 오래 걸리는 시술 시
앉아서 책이나 핸드폰 등 시간을 보낼 수 있는
대기 의자, 디자이너가 손님과 헤어 상담을 보다
편하고 친근하게 진행하실 수 있도록 도우면서
고객을 기다리는 지인, 또 다음 손님들이 편하게
시간을 보낼 수 있도록 공간을 준비했습니다.
경대 수에 비해 매장 공간이 협소하고 구조가
독특했는데 최대한 미적 감각을 살리면서도
효율적으로 활용할 수 있는 방법을 찾았습니다.

모든 현장이 마감까지 깨끗하게 마무리된 것을
보니 집기와 의자, 인테리어 소품들과 손님만
있으면 더할 나위 없이 좋을 것 같단 생각이 듭니다.
어떤 공간이든 맡겨만 주세요.
꿈에 그리시던 공간, 상상 속에 간직하시던 매장을
눈앞에 직접 보여드리도록 하겠습니다.
미용실인테리어
공사문의 대표번호 : 010 3235 8427
포트폴리오 더보기 : salon916.com
미용실인테리어 - 미용실인테리어 전문 플랫폼
미용실인테리어 전문 플랫폼
salon916.com
2024.04.22 - [미용실인테리어] - 옥정 양주미용실인테리어 트랜드를 찾아서
옥정 양주미용실인테리어 트랜드를 찾아서
옥정 양주미용실인테리어 트랜드를 찾아서 3D 디자인 안녕하세요, 916디자인 인사드려요! 이번에는 옥정 양주미용실인테리어 시공 사례를 살펴볼 예정이에요. 정말 오랜만에 뿌듯함을 느낄 수
dopamine7.com
2024.04.18 - [미용실인테리어] - 인천 김포미용실인테리어 스타일있게
인천 김포미용실인테리어 스타일있게
인천미용실인테리어 3D 디자인 안녕하세요:) 916 디자인입니다. 오늘은 고객님께서 인테리어 디자인전 고민을 많이 하고 비교를 해보시고 연락을 주셨는데요. 많은 업체를 비교해보았을때 가장
dopamine7.com
2024.05.02 - [미용실인테리어] - 10평 20평 작은 소형미용실 인테리어 문제는 공사비용
10평 20평 작은 소형미용실 인테리어 문제는 공사비용
작은 소형미용실인테리어 도면 디자인 오프라인 매장을 운영하기에 앞서 전체적인 매장 컨셉부터 인테리어 방향까지 정해야 하는 부분이 많습니다. 특히나 손님이 방문하는 매
dopamine7.com
'미용실인테리어' 카테고리의 다른 글
| 대치동 산뜻하면서도 쾌적한 미용실인테리어 실내디자인의 완성 (0) | 2024.06.30 |
|---|---|
| 송파 뷰티 헤어 미용실인테리어 아늑하고 프라이빗함이 한가득 (0) | 2024.06.29 |
| 파주인테리어업체 전문성이 문제다 (0) | 2024.05.14 |
| 미사 하남미용실인테리어 트랜드를 따라 (1) | 2024.05.06 |
| 압구정 청담동 미용실인테리어 빠른미팅 가능합니다. (0) | 2024.05.06 |
| 양천구 목동 미용실인테리어 헤어샵공사 비용견적은 합리적 (0) | 2024.05.05 |
| 아산 천안미용실인테리어 이것이 핵심 (0) | 2024.05.05 |
| 향동 고양미용실인테리어 아름답게 (0) | 2024.05.05 |
- Total
- Today
- Yesterday
- 사무실인테리어후기
- 헤어샵인테리어
- 사무실리모델링
- 인테리어
- 지식산업센터인테리어
- 오피스인테리어
- 3D디자인
- 헬스장인테리어
- interior
- 3D사무실인테리어
- 상가인테리어
- 사무실인테리어추천
- 인천사무실인테리어
- 사무실인테리어비용
- 피티샵인테리어
- 사무실인테리어
- 사무실디자인
- 미용실인테리어
- 회사인테리어
- 사무실인테리어업체
- 사무실인테리어견적
- 사무실인테리어잘하는곳
- 병원인테리어
- 사무실인테리어공사
- 사무실인테리어전문
- 916디자인
- 학원인테리어
- 학원인테리어디자인
- 사무실인테리어디자인
- 인테리어디자인
| 일 | 월 | 화 | 수 | 목 | 금 | 토 |
|---|---|---|---|---|---|---|
| 1 | 2 | 3 | ||||
| 4 | 5 | 6 | 7 | 8 | 9 | 10 |
| 11 | 12 | 13 | 14 | 15 | 16 | 17 |
| 18 | 19 | 20 | 21 | 22 | 23 | 24 |
| 25 | 26 | 27 | 28 | 29 | 30 | 31 |
