티스토리 뷰
목차
대치동 산뜻하면서도 쾌적한 미용실인테리어 실내디자인의 완성
오늘은 저희가 얼마 전 직접 진행한
대치동 미용실인테리어 시공 현장을
자세하게 알려드리려고 합니다.
미용실 인테리어를 고민 중인 분들이 있다면
오늘 시공 현장 참고하셔서 저희 업체에
언제든지 문의해 주시기를 바랍니다.
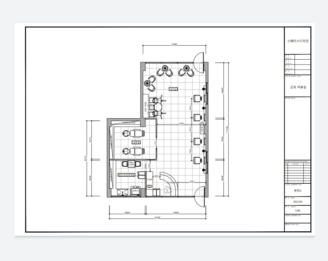
대치동 쾌적한 미용실인테리어 3D디자인


미용실 인테리어는 효율적인 동선과
고급스러운 미감을 살리는 것도 좋지만,
무엇보다 고객의 방문이 중요하기 때문에
편안한 분위기를 조성하는 것이 필요합니다.


이번 현장은 고객님의 요청에 따라서
차분하면서도 세련된 느낌의 인테리어로
디자인부터 시공까지 구현했습니다.

더욱이 저희 업체는 높은 완성도를 위해서
시공에 들어가기 전 고객님과의 미팅을
충분히 거치며 3D 구조도를 작업합니다.
또한 공간에 쓰일 재료와 자재, 벽지부터
바닥재까지 고객님의 니즈 충족을 우선으로
다양한 방향을 제안해 드리며, 아이디어 또한
고안하여 면밀하게 조율하는 과정을 가집니다.
대치동 쾌적한 미용실인테리어 시공 공사 현장


고객님의 최종 컨펌에 의해 시공을 진행하며,
대치동 미용실인테리어 현장에 돌입했습니다.
기존 건물이 공실이 아닌 경우는 별도의
철거 작업을 필요로 하지만, 이번 시공 현장은
완전한 공실이었기 때문에 철거는 생략하고
빠르게 시공에 들어갈 수 있었습니다.


시공의 가장 첫 단계는 매장 내부에 포함되는
작고 큰 구조물과 가구를 만들기 위한
기초 목공 작업이라고 할 수 있습니다.
저희 업체는 오랜 현장 경험으로 숙련된
팀원들과 함께 높은 퀄리티의 자재들로
엄선하고 선별하여 마감 완성도를 높입니다.

목공 작업을 마무리하면 도장을 진행합니다.
도장 작업은 특히 색상과 그 품질이
가장 중요하다고 볼 수 있습니다.
좋은 기술력이 있어도 페인트의 질이
떨어진다면 마감이 매끄럽지 않을 수 있어
양질의 재료를 사용해 무엇보다 꼼꼼하게
도장하여 시공에 심혈을 기울이고 있습니다.
미용실은 특히 샴푸나 각종 헤어 제품 등
약품 처리가 진행되는 곳이기도 하고,
물을 많이 다루는 환경이기 때문에
필히 방수 기능이 좋은 전용 페인트를
활용하여 부분 시공을 진행해야 합니다.

매장 윤곽이 어느 정도 드러나면서부터는
타일 작업을 시행할 수 있게 됩니다.
타일은 매장의 전체적인 분위기를 결정짓는
중요한 요소 중 하나이기 때문에
재료 선정부터 퀄리티까지 신경 써야 합니다.
또한 미용실은 바닥 청소가 용이해야 하며,
심미적인 부분에서도 중요하기 때문에
저희는 고객님의 매장 운영이 원활하도록
재료부터 미감까지 최선을 다하고 있습니다.
대치동 쾌적한 미용실인테리어 시공 완료

손님을 맞이하고 결제까지 돕는 카운터는
미용실의 얼굴이자 첫인상이기도 합니다.
이는 직원의 활동 반경에서도 활동성이
큰 부분으로 볼 수 있기 때문에
실용성도 중요하지만 디자인적으로도
충분히 강조될 수 있도록 우드 템바보드와
무광 대리석을 조합하여 연출했습니다.


깔끔한 화이트 톤을 베이스로 구성하여
우드를 조합해 차분하면서도 세련된 느낌의
모던한 인테리어로 구성했습니다.
포인트 컬러로는 딥한 브라운으로 배치해
의자, 샤워실 베드, 이동식 서랍 등
공간 곳곳의 조화를 고려해
적정한 무게 중심을 더했습니다.


천장 전면에는 백색 조명을 설치하여
깨끗하고 산뜻한 느낌을 가미해
쾌적도를 높이고, 각 자리에 황색 조명의
벽등을 배치해 감성적인 분위기를 더했습니다.
별도의 샴푸실은 가벽으로 막지 않고
우드 가림막으로 공간감을 더하고
인테리어 분위기의 중심을 잡아주었습니다.
스탭실의 경우는 아치 라인으로 구성하여
우아하면서도 모던한 감각을 가미했습니다.
넓은 공간이 더 쾌적하고 넓어 보일 수 있도록
매장에 오는 손님들의 기분과 감정까지
헤아리는 마음으로 섬세하게 연출했습니다.


밖에서도 내부가 환하게 보이는
통창 설치를 통해서 미용실의 분위기를
전반에 광고하며 고객님들의 방문율을
높일 수 있도록 구성했습니다.

양 끝 대칭형으로 고객님들의 동선을 고려해
방문과 이동의 효율과 편의성을 구현했습니다.
여기까지 대치동 미용실인테리어
시공 현장을 자세하게 살펴봤습니다.

미용실 인테리어 또는 리모델링을
고민하고 계신 분들이 계신다면,
오랜 경험으로 단련된 저희 업체의
트렌디한 인테리어와 섬세한 기술력으로
고객님의 니즈를 실현해 드릴 수 있도록
매 현장에서 최선을 다하겠습니다.
필요하실 때 저희 업체로
언제든지 문의해 주시기를 바랍니다.
공사문의 010-3235-8427
▼▼▼▼포트폴리오 더보기▼▼▼▼
미용실인테리어 - 미용실인테리어 전문 플랫폼
미용실인테리어 전문 플랫폼
salon916.com
2024.05.04 - [미용실인테리어] - 김포 부천미용실인테리어 업체 현장에 집중
김포 부천미용실인테리어 업체 현장에 집중
김포 부천미용실인테리어 3D 디자인 세상에 있는 많은 여러 업무는 손발이 맞아야 제대로 진행할 수 있습니다. 영업직이 영업을 해오면 그 일거리를 관리직 및 현장직들이 업
dopamine7.com
2024.04.22 - [미용실인테리어] - 포천 의정부미용실인테리어 지금바로 공사를
포천 의정부미용실인테리어 지금바로 공사를
포천 의정부미용실인테리어 3D 디자인 안녕하세요! 916디자인이에요. 오늘은 저희가 진행해드린 포천 의정부미용실인테리어 사례를 살펴볼텐데요. 미용실이 이제는 너무나 고급스럽게 변하는
dopamine7.com
2024.04.18 - [미용실인테리어] - 서울 광명미용실인테리어 컨셉을 찾아서
서울 광명미용실인테리어 컨셉을 찾아서
서울미용실인테리어 3D 인테리어를 고려한다면 어디서 진행하여야 할까요? 안녕하세요.916디자인입니다. 916디자인에서는 서울미용실인테리어를 전문으로 진행하고 있는데요. 인테리어시 3D에서
dopamine7.com
'미용실인테리어' 카테고리의 다른 글
| 평택 공사현장 신속하고 정확한 미용실인테리어 헤어샵 (0) | 2024.07.02 |
|---|---|
| 송도 모던하면서도 독특한 감성이 가득한 미용실인테리어 (0) | 2024.07.01 |
| 안양 시흥 시원하고 감각적인 미용실인테리어 (0) | 2024.07.01 |
| 청라 미용실인테리어 크기 상관 없이 예쁜 디자인이 가능 (0) | 2024.07.01 |
| 송파 뷰티 헤어 미용실인테리어 아늑하고 프라이빗함이 한가득 (0) | 2024.06.29 |
| 파주인테리어업체 전문성이 문제다 (0) | 2024.05.14 |
| 미사 하남미용실인테리어 트랜드를 따라 (1) | 2024.05.06 |
| 인천 송도 청라 미용실인테리어 디자인제안 (0) | 2024.05.06 |
- Total
- Today
- Yesterday
- 학원인테리어디자인
- 사무실인테리어비용
- 상가인테리어
- 사무실인테리어후기
- 사무실인테리어업체
- 사무실디자인
- 인테리어디자인
- 3D사무실인테리어
- 인천사무실인테리어
- 사무실인테리어견적
- 피티샵인테리어
- 사무실인테리어잘하는곳
- interior
- 오피스인테리어
- 3D디자인
- 병원인테리어
- 사무실인테리어
- 사무실리모델링
- 지식산업센터인테리어
- 사무실인테리어디자인
- 인테리어
- 사무실인테리어공사
- 사무실인테리어추천
- 916디자인
- 미용실인테리어
- 헤어샵인테리어
- 헬스장인테리어
- 사무실인테리어전문
- 회사인테리어
- 학원인테리어
| 일 | 월 | 화 | 수 | 목 | 금 | 토 |
|---|---|---|---|---|---|---|
| 1 | ||||||
| 2 | 3 | 4 | 5 | 6 | 7 | 8 |
| 9 | 10 | 11 | 12 | 13 | 14 | 15 |
| 16 | 17 | 18 | 19 | 20 | 21 | 22 |
| 23 | 24 | 25 | 26 | 27 | 28 | 29 |
| 30 |
