티스토리 뷰
목차
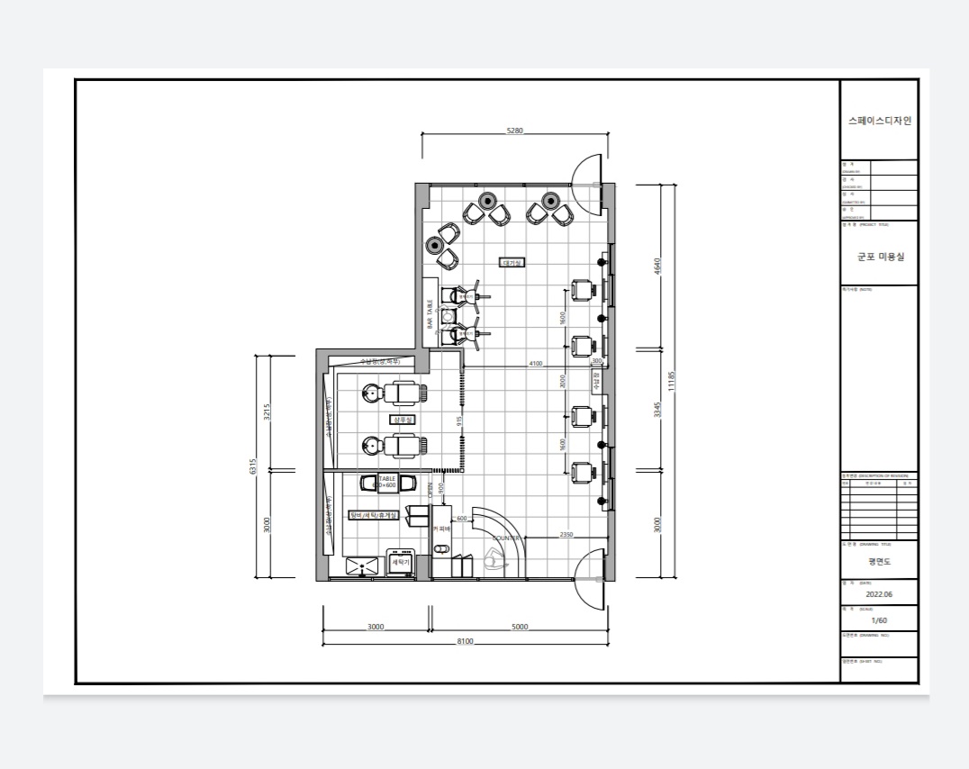
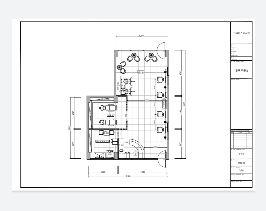
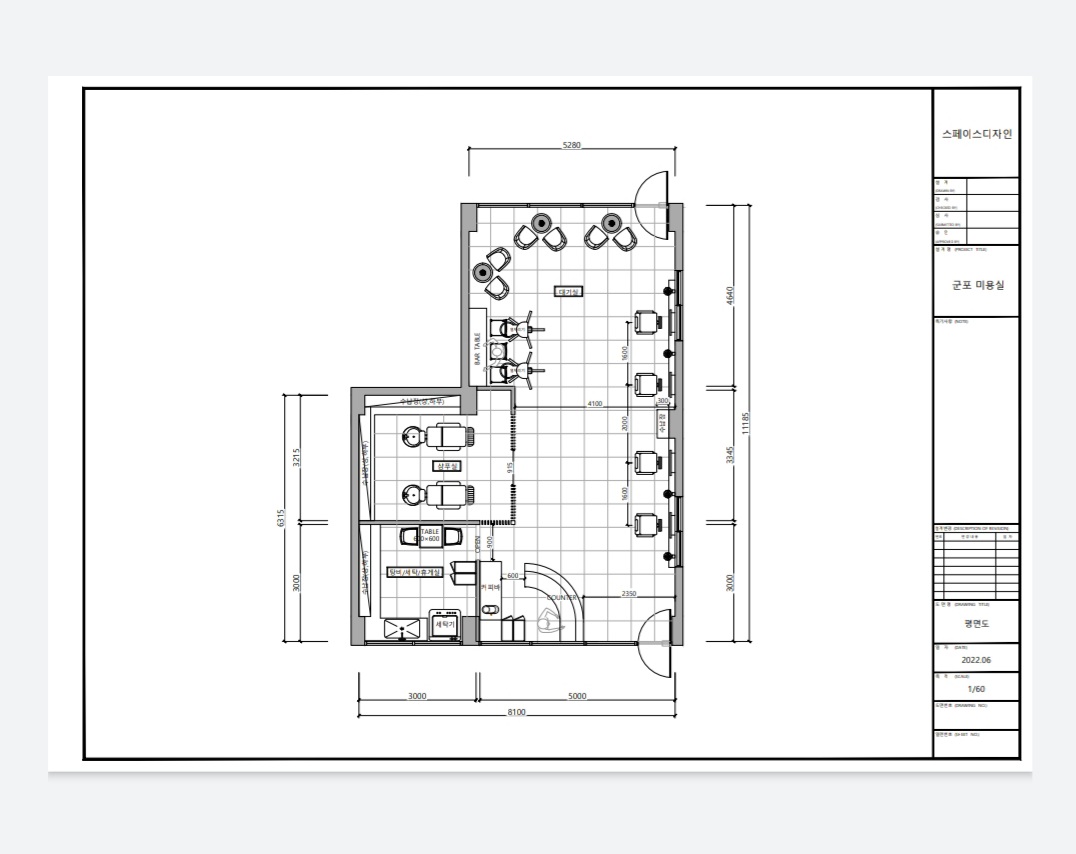
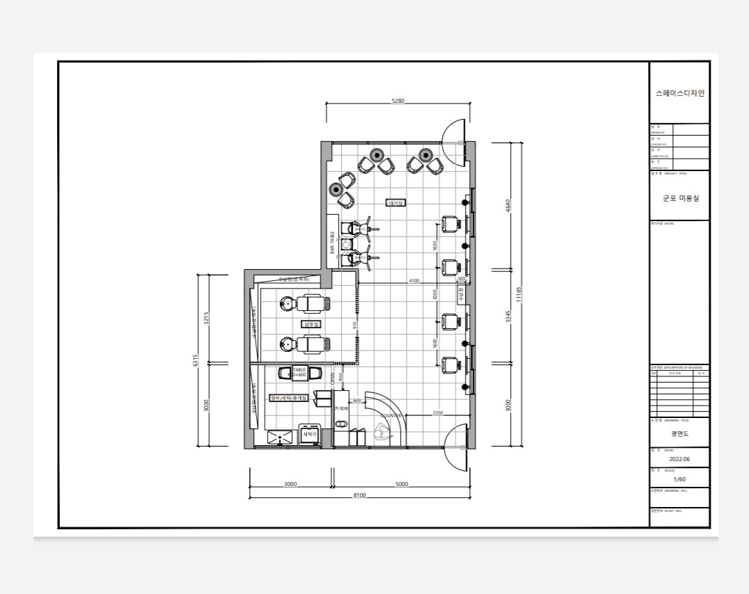
향동 고양미용실인테리어 3D디자인




미용실 인테리어는 손님이 머무는 공간으로써,
인테리어에 신경을 쓸 수록
고객 만족도가 올라간다는 사실, 알고 계셨나요?
그러므로 고객 만족도에 보다 신경을 쓴다면,
초기부터 깔끔한 인테리어를 통해
손님들을 끌어오는 것 또한 멋진 전략이랍니다.


그밖에도 미용실을 경영할때는
많은 것들을 고려해야 하는데요,
하루의 대부분의 시간을 보내는
내 직장이니 만큼,
요즘은 인테리어에 공을 들이는
추세가 늘어나고 있습니다.
향동 고양미용실인테리어 공사 현장


그에 따라 오늘은 딱 맞는 사례를 가져왔는데요,
바로 향동 고양미용실인테리어
시공사례를 소개해드리려고 합니다.
이번 사례의 경우에는 고객님이
인테리어적 부분에서 깔끔을 원하시는것도 있었지만,
공간을 보다 실용적으로 쓰고싶어 하였습니다.

그렇기 때문에, 충분한 상담 후 진행하였고,
고객님이 원하시는 방향성을 설계하기 위해
3D 모델링부터 작업한 뒤,
바로 인테리어 시공에 착수할 수 있었답니다.


흰색 간판의 눈에 띄는 외관부터
내부의 디테일까지,
모든 요소가 실용적이면서도
깔끔한 공간을 구성하는것으로 주로 초점을 맞춰
작업에 착수했습니다.
이러한 인테리어 구성은 향동
미용실인테리어를 진행하면서도
미용실 방문자들께서
만족해주셨던 인테리어랍니다.

고객님의 주된 조건 중 하나는
밝고 화사한 내부 분위기였습니다.
또한 따뜻하고 아늑한 분위기를 원하셨습니다.
이를 반영하여 내부 인테리어에는
따뜻하고 아늑한 느낌을
줄 수 있는 목재 소재와 흰 색감을 선택하였고,
거울마다 매립된 조명을 통해 가시성을 높이는 동시에
공간을 더욱 밝고 넓게 보이게 하는 효과를 주었답니다.
이같이 저희 업체에서는
고객님의 실용적인 요구사항을 충족시키면서도
디자인적인 부분까지 놓치지 않으려고 노력했답니다.

또한, 조명은 깔끔하게 건물 천장에 매립해
한층 더 넓어보이는 공간을 연출하였습니다.
이를 통해 조명이 차지하는 공간을 줄이고
전체적으로 눈에 밟히는 부분들을 줄임으로써
보다 개방감을 줄 수 있게 설계하고 진행하였습니다.

카운터 부분도 세심한 주의를 기울였습니다.
따뜻한 분위기를 만들어 줄 수 있는
목재 소재 타입을 선정하여 시공하였고,
그 뒤로는 손님들의 물건과 직원들의
물건을 수납할 수 있는 화이트 수납장을 시공함으로써
목재와 화이트 색상이 잘 어우러지게끔 공간을 디자인하였답니다.

위의 사진을 주의깊게 봐주세요.
샴푸하는 공간과 머리하는 공간을 분리한 것 보이시나요?
저희는 보다 공간을 효율적으로 쓰기 위해서,
샴푸 공간의 높이를 한 단 높이고, 사이에는
가벽 파티션을 시공함으로써 공간을 분리하였습니다.
이렇게 파티션으로 공간을 분리한다면
보다 각각의 공간을 효율적으로 쓸 수 있으며
시각적으로도 독립된 느낌이 난답니다.

또한, 그 뒤로는 하얀색 선반들을 시공함으로써
남는 공간 또한 수납력을 높일 수 있었답니다.
이 공간에는 주로 샴푸, 트리트먼트, 린스 등등
샴푸 공간에서 쓸 수 있는 물건들을
바로 수납할 수 있게끔 설계하여
편의성을 높였습니다.
향동 고양미용실인테리어 아름답게

마지막으로, 셋팅펌 존도 심혈을 기울여 설계하였습니다.
벽면에 셋팅펌 기기를 달아
그때그때 편하게 사용할 수 있게 하였습니다.
일반적인 셋팅펌 기기는 바닥에 휠이 달려있어
이동 하면서 사용할 수 있는 대신에,
자리를 많이 차지한다는 단점이 있었지만
이렇게 벽면에 시공함으로써
공간을 보다 효율적으로 쓸 수 있게 되었습니다.

이렇게 향동 고양미용실인테리어는
각 고객님들의 필요와 취향을 충족시키는
맞춤형 디자인을 제공하고 있습니다.
가장 처음 의뢰를 해주시면
고객님과의 심층 상담을 통해
개개인의 요구를 파악하고,
이를 기반으로 한 디자인을 제안하여
실용성과 미적 감각을 겸비한 공간을
만들어 드리려 노력합니다.

저희 업체는 고객님의 다양한 요구사항을 충족시킬 수 있는
맞춤형 인테리어를 만들어내기 위해
다양한 방법을 사용하고 있습니다.
실용적이면서도 아름다운 공간을 원하신다면,
언제든지 연락주시기 바랍니다.
미용실인테리어
공사문의 대표번호 : 010 3235 8427
포트폴리오 더보기 : salon916.com
미용실인테리어 - 미용실인테리어 전문 플랫폼
미용실인테리어 전문 플랫폼
salon916.com
2024.04.19 - [미용실인테리어] - 서울미용실인테리어 아름다운 공간을
서울미용실인테리어 아름다운 공간을
서울미용실인테리어 3D시안 안녕하세요:) 서울미용실인테리어를 전문으로 진행하고 있는 916디자인입니다. 이번 현장의 경우 라인 조명을활용하여 섬세하지만 모던한 디자인을 표현하였습니다.
dopamine7.com
2024.04.23 - [미용실인테리어] - 기흥 용인미용실인테리어 공사비용은 가성비로
기흥 용인미용실인테리어 공사비용은 가성비로
기흥 용인미용실인테리어 3D 디자인 안녕하세요! 916디자인입니다. 오늘은 저희가 진행해드렸던기흥 용인미용실인테리어 시공 사례를 살펴볼텐데요! 처음부터 끝까지 고객님과 함께 실
dopamine7.com
2023.04.28 - [사무실인테리어] - 거품없는 합리적인 사무실인테리어비용으로 디자인까지 완벽하게 마무리
거품없는 합리적인 사무실인테리어비용으로 디자인까지 완벽하게 마무리
거품없는 합리적인 사무실인테리어비용으로 디자인까지 완벽하게 마무리 안녕하세요! 916디자인입니다. 오늘은 아기자기한 테마의 소형사무실 인테리어 현장을 준비해보았는데요. 작지만 알차
dopamine7.com
'미용실인테리어' 카테고리의 다른 글
| 인천 송도 청라 미용실인테리어 디자인제안 (0) | 2024.05.06 |
|---|---|
| 압구정 청담동 미용실인테리어 빠른미팅 가능합니다. (0) | 2024.05.06 |
| 양천구 목동 미용실인테리어 헤어샵공사 비용견적은 합리적 (0) | 2024.05.05 |
| 아산 천안미용실인테리어 이것이 핵심 (0) | 2024.05.05 |
| 1인미용실셀프인테리어 충분히 가능합니다. (0) | 2024.05.04 |
| 오산 용인미용실인테리어 비용 견적은 가성비를 (0) | 2024.05.04 |
| 김포 부천미용실인테리어 업체 현장에 집중 (1) | 2024.05.04 |
| 10평 20평 작은 소형미용실 인테리어 문제는 공사비용 (0) | 2024.05.02 |
- Total
- Today
- Yesterday
- 헤어샵인테리어
- 인테리어디자인
- 사무실인테리어디자인
- 학원인테리어
- 상가인테리어
- 사무실인테리어비용
- 회사인테리어
- 3D사무실인테리어
- 사무실인테리어공사
- 오피스인테리어
- 병원인테리어
- 헬스장인테리어
- interior
- 사무실인테리어전문
- 사무실디자인
- 지식산업센터인테리어
- 학원인테리어디자인
- 사무실인테리어견적
- 사무실인테리어추천
- 916디자인
- 3D디자인
- 피티샵인테리어
- 인테리어
- 사무실인테리어
- 미용실인테리어
- 사무실리모델링
- 인천사무실인테리어
- 사무실인테리어업체
- 사무실인테리어후기
- 사무실인테리어잘하는곳
| 일 | 월 | 화 | 수 | 목 | 금 | 토 |
|---|---|---|---|---|---|---|
| 1 | ||||||
| 2 | 3 | 4 | 5 | 6 | 7 | 8 |
| 9 | 10 | 11 | 12 | 13 | 14 | 15 |
| 16 | 17 | 18 | 19 | 20 | 21 | 22 |
| 23 | 24 | 25 | 26 | 27 | 28 | 29 |
| 30 |
