티스토리 뷰
목차
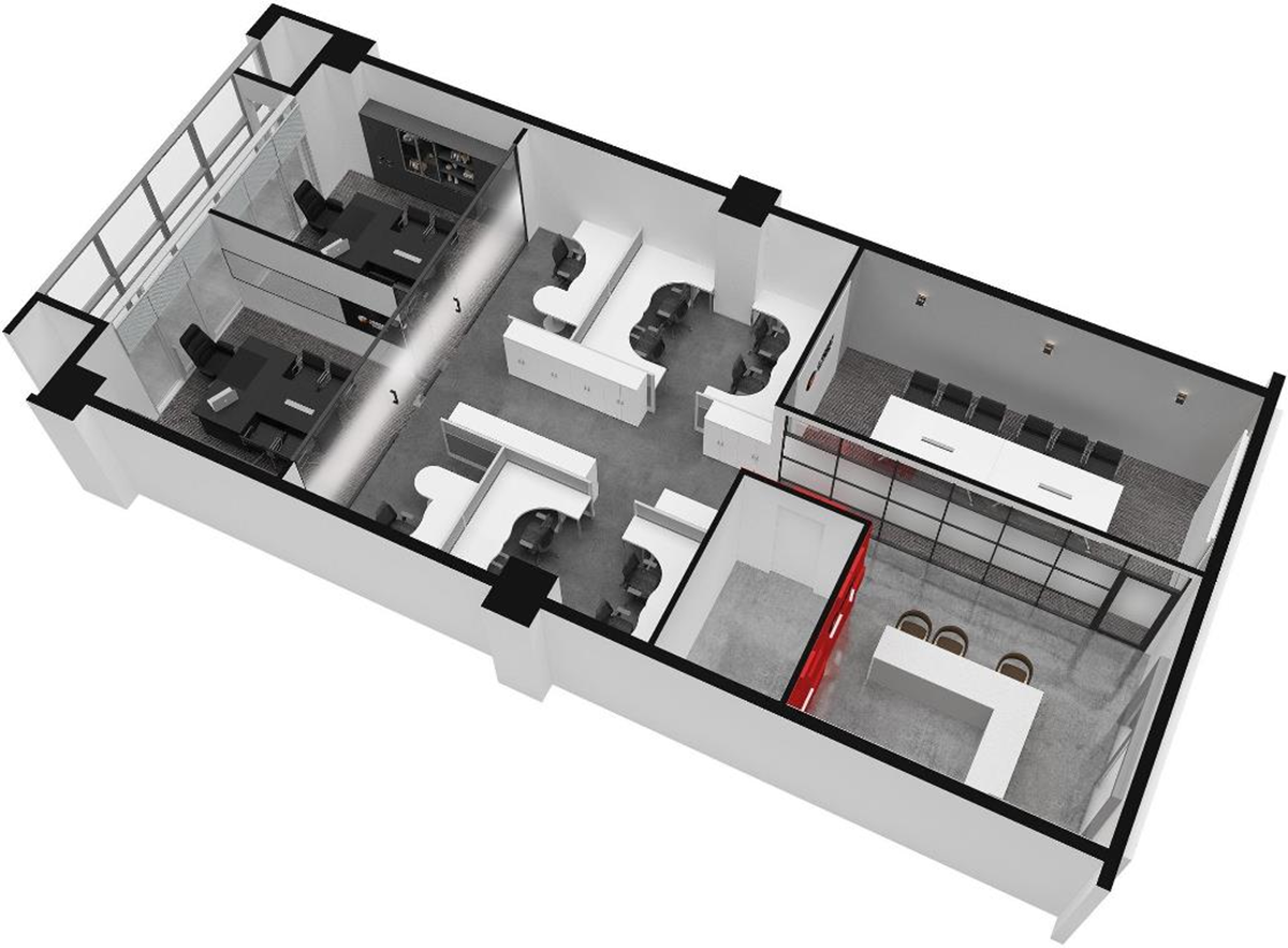
안녕하세요 오늘은 논현동인테리어에서 좁은 사무실이 효과적인 공간 분리로 디자인 된 시공 현장을 소개 드리겠습니다.
논현동인테리어는 단순한 공간 꾸미기를 넘어, 기업의 이미지와
브랜드 가치를 전달하는 중요한 요소로 자리 잡고 있답니다.
그럼 오늘 이곳에서의 인테리어가 어떻게 이루어지는지 알아보도록 할게요.
자, 그럼 본론으로 들어가 볼까요?
논현동인테리어 지속 가능성







최근에는 지속 가능한 인테리어가 주목받고 있습니다.
논현동인테리어도 친환경 자재를 사용하거나 에너지 효율적인 시스템을 도입하는 추세입니다.

친환경 인테리어는 단순히 자재의 선택뿐만 아니라, 공간의 배치와 조명 설계에도 영향을 미쳐요.
자연광을 최대한 활용하고, 에너지 절약형 조명을 설치하는 등의 노력이 필요합니다.
시공이 진행되는 과정을 보여드리겠습니다.







이러한 접근은 기업의 이미지 향상뿐만 아니라, 직원들의 건강에도 긍정적인 영향을 미친답니다.







논현동인테리어 브랜드이미지와 디자인





사무실 인테리어는 기업의 브랜드 이미지를 강화하는 데 큰 역할을 합니다.
논현동의 많은 기업들이 인테리어를 통해 자신들의 고유한 아이덴티티를 표현하고 있죠.
고급스러운 디자인을 채택한 기업은 신뢰성과 전문성을 강조할 수 있습니다.



지금부터 시공이 모두 완료 된 모습을 보여드리겠습니다.



브랜드 이미지에 맞는 인테리어는 고객에게 긍정적인 인상을 남기고, 기업의 가치관을 전달하는 데도 효과적입니다.






따라서 기업의 비전과 목표에 맞는 인테리어 디자인을 고려하는 것이 중요합니다.
고객과 직원 모두에게 매력적인 공간을 만드는 것이죠.
또한, 논현동 사무실 인테리어는 최신 디자인 트렌드를 반영하는 것이 중요합니다.





요즘은 미니멀리즘과 자연 친화적인 요소가 큰 인기를 끌고 있죠.
미니멀리즘은 불필요한 요소를 제거하고, 깔끔하고 간결한 디자인을 추구하는 스타일이에요.
이를 통해 직원들이 더 편안하게 일할 수 있는 환경을 제공할 수 있습니다.





자연 친화적인 디자인은 식물이나 자연 소재를 활용해 사무실에 생기를 불어넣는 방법입니다.
이러한 요소는 직원들의 스트레스를 줄이고, 창의력을 높이는 데 도움이 되죠.







논현동에서도 이러한 트렌드를 반영한 사무실들이 늘어나고 있답니다.
기업의 아이덴티티를 담은 디자인이 더욱 주목받고 있습니다.







논현동인테리어 공간 활용





사무실 인테리어에서 공간 활용은 매우 중요한 요소예요.
논현동인테리어는 대개 제한된 면적을 가지고 있기 때문에, 효율적인 공간 배치가 필요하죠.
개방형 사무실 구조는 팀워크를 촉진하고 소통을 원활하게 해주는 장점이 있습니다.






또한, 공간 활용은 단순히 면적의 문제만이 아닙니다.
가구 배치, 조명, 색상 등 다양한 요소들이 조화를 이루어야 합니다.






사무실 인테리어는 직원의 만족도와 직결되어 있습니다.
논현동인테리어는 직원들이 쾌적하게 일할 수 있는 환경을 조성하기 위해 다양한 노력을 기울이고 있습니다.






직원들의 의견을 반영한 인테리어는 그들이 회사에 대한 애착을 느끼게 합니다.





또한, 개인의 취향을 고려한 공간 배치나 디자인 요소는 직원들이 더욱 창의적으로 일할 수 있는 환경을 만들어 준답니다.
결국, 직원의 만족도가 높아지면 기업의 생산성도 자연스럽게 증가하게 됩니다.

이제는 사무실 인테리어가 단순한 미적 요소를 넘어, 기업의 경쟁력을 높이는 중요한 전략으로 자리 잡고 있답니다.
논현동의 사무실들이 이러한 변화를 잘 반영하고, 앞으로도 더욱 발전해 나가길 논현동인테리어가 응원합니다.
이외 기타 오피스 시공과 관련된 문의가 있다면 편하게 연락주시기 바랍니다.

☎시공문의
010-.3235-8427
▼포트폴리오 더보기 ▼
사무실인테리어 디자인 공사 비용견적 플랫폼 - 사무실인테리어 916
사무실인테리어 916
916er.com
2024.11.06 - [사무실인테리어] - 분당인테리어 눈길을 끄는 욕실브랜드 쇼룸 디자인은?
분당인테리어 눈길을 끄는 욕실브랜드 쇼룸 디자인은?
쇼룸 디자인은 단순히 제품을 전시하는 공간을 넘어,고객의 마음을 사로잡는 중요한 요소로 자리 잡고 있습니다. 눈길을 끄는 쇼룸은 브랜드의 정체성을 명확히 전달하고,고객에게 특별한 경
dopamine7.com
2024.11.06 - [사무실인테리어] - 인천사무실인테리어 시공품질과 가성비를 모두 잡은 오피스
인천사무실인테리어 시공품질과 가성비를 모두 잡은 오피스
인천사무실인테리어 시공품질과 가성비의 균형 사무실인테리어는 단순히 공간을 꾸미는 것 이상의 의미를 지니고 있습니다.효율적인 업무 환경을 조성하고, 직원들의 생산성을 높이는 데 큰
dopamine7.com
2024.11.06 - [사무실인테리어] - 100평사무실인테리어 브랜드이미지가 잘 접목된 대형오피스 레이아웃
100평사무실인테리어 브랜드이미지가 잘 접목된 대형오피스 레이아웃
100평사무실인테리어 브랜드이미지와 기술적 요소의 통합 사무실인테리어는 단순히 내부 공간을 꾸미는 것이 아니라, 기업의 브랜드 이미지를 전달하는 중요한 수단입니다.100평사무실에서
dopamine7.com
2024.11.06 - [사무실인테리어] - 송도인테리어 전문성이 느껴지는 오피스 디자인의 정석
송도인테리어 전문성이 느껴지는 오피스 디자인의 정석
안녕하세요! 요즘 재택근무와 오피스 근무를 병행하는 시대에근무 환경의 중요성이 점점 더 대두되고 있습니다. 저희는 사무실인테리어 외에도 다양한 업종 인테리어를디자인부터 시공까지
dopamine7.com
2024.11.05 - [사무실인테리어] - 반포인테리어 조명을 활용한 오피스 시공 후기
반포인테리어 조명을 활용한 오피스 시공 후기
안녕하세요 오늘은 저희 반포인테리어 업체가 시공한 조명의 효과로고급스러운 분위기가 느껴지는 오피스 시공 후기를 소개드리려 합니다. 반포는 서울의 중심부에 위치한 매력적인 지역으
dopamine7.com
'사무실인테리어' 카테고리의 다른 글
| 오피스인테리어 수납공간을 활용한 30평 40평 소형사무실 공사 (0) | 2024.11.07 |
|---|---|
| 강남사무실인테리어 화이트톤의 깔끔한 오피스 디자인 추천 (1) | 2024.11.07 |
| 변호사사무실인테리어 우드감성의 법률사무소 포트폴리오 (1) | 2024.11.07 |
| 구로인테리어 쾌적한 사무공간을 위한 플랜테리어 오피스 디자인 (1) | 2024.11.07 |
| 분당인테리어 눈길을 끄는 욕실브랜드 쇼룸 디자인은? (1) | 2024.11.06 |
| 인천사무실인테리어 시공품질과 가성비를 모두 잡은 오피스 (0) | 2024.11.06 |
| 100평사무실인테리어 브랜드이미지가 잘 접목된 대형오피스 레이아웃 (0) | 2024.11.06 |
| 송도인테리어 전문성이 느껴지는 오피스 디자인의 정석 (2) | 2024.11.06 |
- Total
- Today
- Yesterday
- 사무실인테리어디자인
- 학원인테리어
- 학원인테리어디자인
- 사무실인테리어추천
- 916디자인
- 사무실인테리어잘하는곳
- 헤어샵인테리어
- 병원인테리어
- 상가인테리어
- interior
- 사무실인테리어견적
- 헬스장인테리어
- 오피스인테리어
- 사무실리모델링
- 인천사무실인테리어
- 사무실인테리어업체
- 사무실인테리어공사
- 사무실인테리어전문
- 인테리어디자인
- 미용실인테리어
- 지식산업센터인테리어
- 3D디자인
- 사무실인테리어비용
- 사무실인테리어
- 사무실인테리어후기
- 회사인테리어
- 사무실디자인
- 3D사무실인테리어
- 피티샵인테리어
- 인테리어
| 일 | 월 | 화 | 수 | 목 | 금 | 토 |
|---|---|---|---|---|---|---|
| 1 | 2 | 3 | 4 | 5 | 6 | 7 |
| 8 | 9 | 10 | 11 | 12 | 13 | 14 |
| 15 | 16 | 17 | 18 | 19 | 20 | 21 |
| 22 | 23 | 24 | 25 | 26 | 27 | 28 |






