티스토리 뷰
목차
쇼룸 디자인은 단순히 제품을 전시하는 공간을 넘어,
고객의 마음을 사로잡는 중요한 요소로 자리 잡고 있습니다.
눈길을 끄는 쇼룸은 브랜드의 정체성을 명확히 전달하고,
고객에게 특별한 경험을 제공하는 장소인데요.
많은 소비자들이 쇼룸을 방문할 때, 단순히 제품을 구매하는 것이 아니라
그 공간에서 느끼는 감정과 분위기도 중요한 영향을 미치기 때문이죠.
따라서 쇼룸 디자인은 제품 진열뿐만 아니라 조명, 색상, 레이아웃 등
다양한 요소가 조화를 이루어야 하며,
이 글에서는 눈길을 끄는 쇼룸 인테리어를 구성하는
여러 요소와 그 중요성에 대해 소개해드리려합니다.
함께 분당인테리어의 욕실브랜드 쇼룸 디자인 사례를 보며
각 요소가 어떻게 고객의 경험을 향상시키고,
브랜드에 대한 긍정적인 이미지를 형성하는지 알아보면 좋을 것 같아요.
분당인테리어 쇼룸 디자인에 따른 첫인상의 힘

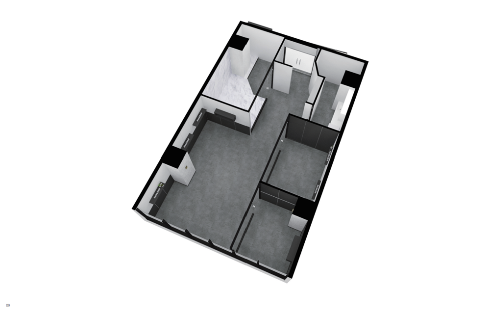
먼저, 이번 쇼룸인테리어의 3D 디자인부터 살펴보겠습니다.
쇼룸은 브랜드의 가치와 제품의 특징을
고객에게 직접 전달하는 중요한 공간입니다.
그 중에서도 욕실 브랜드 쇼룸은
고객이 제품을 실제로 사용하는 환경을 재현하여
체험할 수 있는 특별한 공간인데요.
이러한 욕실 브랜드 쇼룸 디자인에서는
브랜드의 이미지와 가치를 시각적으로 전달하는 것이 중요하므로
여기에 포인트를 두어 3D 디자인을 완성시켰습니다.


첫인상은 고객의 브랜드 인식에 큰 영향을 미칩니다.
깔끔하고 세련된 디자인은 브랜드의 고급스러움과 전문성을 강조하며,
고객의 신뢰도와 호감도를 높일 수 있기에
더욱 신경을 써서 디자인했는데요.
또다른 중요한 요소로는 조명과 컬러이므로,
따뜻하고 아늑한 조명은 편안한 분위기를 조성하며,
부드러운 컬러는 안정감과 휴식감을 제공하므로 선택했습니다.


위에 언급한 요소들을 염두하여 디자인을 마쳤고
고객이 제품을 더욱 집중해서 살펴보고,
브랜드와 제품에 대한 긍정적인 인상을 갖도록 했습니다.
이를 통해 고객은 브랜드와 제품에 대한 확신을 가지고
구매 결정을 내릴 수 있겠지요.
분당인테리어 욕실 브랜드 아이덴티티를 녹인 설계



이번 분당인테리어는 특히 쇼룸 디자인이라는 특성상
브랜드의 아이덴티티를 강조하는 중요한 수단으로써
브랜드의 색상, 로고, 디자인 철학이 인테리어에 반영하여 설계했습니다.
이렇게 브랜드의 메시지를 명확히 전달하는 쇼룸 디자인은
고객의 기억에 남고, 재방문을 유도할 수 있고
고객은 자연스럽게 브랜드에 대한 신뢰를 느끼게 되겠죠.







고객이 쇼룸에 들어섰을 때 느끼는 첫인상이 중요하므로
어떻게 첫인상을 가져갈 수 있을지도 세심하게 계획했습니다.
인테리어의 색상과 조명은 고객의 감정을 좌우할 수 있는데,
밝고 따뜻한 색조는 편안함을 주고, 세련된 디자인은 고급스러움을 전달하므로
브랜드 아이덴티티와 잘 어우러진 인테리어를 통해
이 곳을 방문하는 고객에게 긍정적인 경험을 제공할 수 있도록 설계했습니다.





효과적인 공간 활용은 쇼룸 인테리어에서 빼놓을 수 없는 요소죠.
고객이 쇼룸을 돌아다니며 제품을 쉽게 찾고,
편안하게 체험할 수 있도록 레이아웃을 구성하도록 중점을 두었는데요.
제품군별로 구역을 나누어 고객이 관심 있는 제품을
쉽게 찾을 수 있도록 했으며
통로를 넓게 만들어 고객이 자유롭게 이동할 수 있도록 했습니다.
분당인테리어 눈길을 끄는 쇼룸 디자인 핵심



저희의 노하우를 반영한 눈길을 사로잡는 쇼룸 디자인이
어떻게 구현되었는지, 공사 완료 사진을 공개하겠습니다.
사무실 겸 쇼룸에 들어서는 입구는 조명에 신경을 썼습니다.
분위기를 조성하는 데 있어서 가장 중요한 요소 중 하나는 조명인데요.
밝은 조명은 제품을 선명하게 보여주고,
어두운 조명은 따뜻하고 아늑한 분위기를 연출할 수 있습니다.
자연광을 활용하는 것도 좋은 방법이며,
창문이나 천장에 설치된 조명을 통해 자연스러운 빛을 연출할 수 있습니다.
스포트라이트나 펜던트 조명을 활용하여
특정 제품이나 공간을 강조하는 것도 눈길을 끄는데 효과적입니다.




색상 역시 분위기 조성에 큰 역할을 하는데요.
욕실 브랜드의 이미지와 어울리는 색상을 선택하여
벽, 바닥, 가구 등에 적용하면 통일감 있는 분위기를 연출했습니다.
이때, 너무 많은 색상을 사용하면 혼란스러울 수 있으므로,
2~3가지 정도의 색상을 조화롭게 조합하여 디자인했습니다.
포인트 컬러를 활용하여 개성 있는 분위기를 연출하는 것도 잊지않았습니다.




욕실 브랜드 쇼룸에서는 제품을 효과적으로 전시하는 것이 매우 중요합니다.
단순히 제품을 나열하는 것이 아니라,
고객의 시선을 끌고 제품의 특징과 장점을 부각시킬 수 있는
전략적인 배치가 필요한데요.
저희 916디자인은 여러 업종의 인테리어 경험이 있기 때문에
적절하고 전략적인 배치에 대한 지식과 노하우가 많습니다.







가장 기본적인 방법은 제품을 크기와 종류별로 구분하여 배치하는 것인데요.
이렇게 하면 고객들이 제품을 쉽게 비교하고 선택할 수 있으며,
작은 제품들은 선반이나 테이블 위에, 큰 제품들은 별도의 공간에 배치하여
시각적으로 보이는 부분 역시 신경을 썼습니다.
또 다른 방법으로는 테마별 전시를 들 수 있습니다.
예를 들어, 모던한 스타일, 클래식한 스타일, 친환경적인 스타일 등
각각의 테마에 맞는 제품들을 모아 전시하는 것입니다.
이러한 테마별 전시는 고객들에게 다양한 아이디어를 제공하고,
브랜드의 다양성과 독창성을 강조할 수 있습니다.





거울을 활용하거나, 욕조나 세면대와 같은
욕실 시설과 함께 제품을 전시하는 것도 좋은 방법입니다.
이는 제품이 실제로 어떻게 사용되는지 보여줌으로써
고객들의 상상력을 자극하고, 제품에 대한 이해도를 높일 수 있습니다.




욕실 브랜드 쇼룸의 레이아웃은 고객의 동선과 시선을 고려하여 설계했는데요.
일반적으로는 중앙에 세면대나 욕조와 같은 주요 제품을 배치하고,
주변에 다양한 액세서리와 소품을 전시하는 방식이 많이 사용됩니다.
이때, 고객이 제품을 자유롭게 살펴볼 수 있도록
충분한 공간을 확보하는 것이 중요하기에 신경을 썼습니다.
또, 각 제품마다 적절한 조명과 디스플레이를 활용하여 강조하고,
제품의 특징과 장점을 쉽게 이해할 수 있도록 안내판이나 설명서를 제공했습니다.








레이아웃 설계시 또하나 고려해야 할 사항은 거울의 활용입니다.
욕실은 거울이 많이 사용되는 공간이기 때문에,
쇼룸에서도 거울을 활용하여 공간을 넓어 보이게 하고,
제품이 더욱 돋보일 수 있도록 연출할 수 있습니다.
더불어, 거울을 활용한 포토존을 만들어 SNS등을 통한 바이럴 마케팅 효과도 노려볼 만 합니다.
이렇게 설계된 쇼룸은 고객에게 브랜드의 가치와 제품의 매력을
효과적으로 전달할 수 있으며, 브랜드 이미지 향상과 매출 증가에도 큰 도움이 됩니다.


쇼룸 디자인에서 스토리텔링은 브랜드의 가치와 철학을
고객에게 효과적으로 전달하는 데 매우 중요한 역할을 합니다.
이를 위해서는 브랜드의 역사와 전통, 제품 개발 과정에서의
노력과 혁신, 브랜드가 추구하는 가치와 라이프스타일 등을 담은 이야기를
쇼룸 곳곳에 녹여내야 합니다. 이렇게 하면 고객들은 단순히 제품을 보는 것이 아니라,
브랜드의 이야기와 가치를 함께 경험하게 됩니다.






또, 쇼룸 내부에 브랜드의 대표적인 제품이나
디자인 컨셉을 강조하는 공간을 마련하는 것도 좋은 방법입니다.
이러한 공간은 브랜드의 정체성을 시각적으로 보여줌으로써
고객들에게 강한 인상을 남길 수 있습니다.


직원들을 위한 휴게 공간인 카페테리아도 효율적으로 구성했습니다.









현대의 쇼룸에서는 디지털 요소를 통합하는 것이 점점 더 중요해지고 있죠.
고객이 제품에 대한 정보를 쉽게 얻을 수 있도록 디지털 디스플레이를 활용하면 좋은데요.
예를 들어, 터치스크린을 통해 제품의 다양한 정보를 제공하거나,
가상 현실(VR) 체험을 통해 고객이 제품을 더 깊이 이해할 수 있도록 하는 방법도 있습니다.
디지털 요소는 고객의 참여를 유도하고, 쇼룸의 현대적인 이미지를 강화하는 데 기여하며
고객이 쇼룸에서 경험한 내용을 소셜 미디어에 공유하도록 유도하면,
브랜드의 홍보 효과도 기대할 수 있습니다.
디지털 요소의 통합은 쇼룸 인테리어의 새로운 트렌드로 자리 잡고 있습니다.






최근 소비자들은 지속 가능한 제품과 브랜드에 대한 관심이 높아지고 있는데요.
재활용 가능한 자재를 사용하거나 친환경적인 조명을 설치하는 등
쇼룸 인테리어 디자인에서도 지속 가능성을 고려하는 것이 중요합니다.
지속 가능한 인테리어는 고객에게 긍정적인 메시지를 전달할 수 있으며
소비자들은 브랜드가 환경을 생각하는 모습을 보고 더욱 신뢰하게 되고,
구매 결정을 내릴 때 긍정적인 영향을 받을 수 있죠.
따라서 지속 가능성은 현대 쇼룸 인테리어에서 중요한 요소로 자리 잡고 있습니다.











쇼룸 인테리어는 고객의 피드백을 반영하여 지속적으로 개선해야 합니다.
고객이 어떤 부분에서 불편함을 느끼는지,
어떤 요소가 마음에 드는지를 주의 깊게 살펴보는 것이 중요하며
이를 통해 고객의 요구와 기대에 맞는 인테리어를 구성할 수 있습니다.
또한, 고객의 피드백을 통해 새로운 아이디어를 얻을 수 있고
고객이 원하는 체험이나 디자인 요소를 반영하면,
더욱 매력적인 쇼룸을 만들 수 있어요. 고객의 목소리를 귀 기울여 듣는 것이
쇼룸 인테리어의 성공에 큰 영향을 미치게 됩니다.














눈길을 끄는 쇼룸 인테리어는 브랜드의 성공에 중요한 역할을 합니다.
고객은 쇼룸에서 제품을 단순히 구매하는 것이 아니라,
그 공간에서 느끼는 경험과 감정도 함께 고려하기 때문이죠.
브랜드 아이덴티티와 조화된 인테리어, 효과적인 공간 활용,
조명과 색상의 심리적 효과, 체험 공간의 설계 등
다양한 요소들이 고객의 경험을 향상시키는 데 기여하는데요.
단순히 제품을 전시하는 공간이 아니라,
브랜드의 가치와 철학을 전달하고 고객과의 소통을 강화하는
마케팅 플랫폼으로도 활용할 수 있는 쇼룸 디자인을 원한다면
저희 916디자인으로 연락바랍니다.
☎ 공사문의 ☎
010 -3235- 8427
▼ 포트폴리오 더보기 ▼
사무실인테리어 디자인 공사 비용견적 플랫폼 - 사무실인테리어 916
사무실인테리어 916
916er.com
2024.10.09 - [사무실인테리어] - 동탄사무실인테리어 업체 결정의 기준 까다롭게 고르세요
동탄사무실인테리어 업체 결정의 기준 까다롭게 고르세요
동탄사무실인테리어 업체 결정의 기준 까다롭게 고르세요 안녕하세요. 동탄사무실인테리어 업체 결정의 기준을 어떻게 잡아야할지 확실한 아이디어가 떠오르지 않아 업체 선
dopamine7.com
2024.10.09 - [사무실인테리어] - 강남인테리어 세련되고 우아한 공간의 완성
강남인테리어 세련되고 우아한 공간의 완성
강남인테리어 세련되고 우아한 공간의 완성 안녕하세요, 강남인테리어를 진행하면서 세련되고 우아하게 결과물을 내드리고자 많은 노력을 하고 있습니다. 최근에는 특히 많은 고객
dopamine7.com
2024.10.12 - [사무실인테리어] - 안양사무실인테리어 업체를 잘 선택하세요
안양사무실인테리어 업체를 잘 선택하세요
안양사무실인테리어 업체를 잘 선택하세요 안녕하세요? 안양사무실인테리어를 고객님들에게 제공하고 있습니다. 최근에 기존에 상담을 받던 업체와 계약을 파기하고, 저희 쪽응
dopamine7.com
2024.11.05 - [사무실인테리어] - 파주인테리어 공사업체가 진행한 세무회계 사무실
파주인테리어 공사업체가 진행한 세무회계 사무실
파주인테리어 세무회계 사무실 공간 활용세무회계 사무실은 고객과의 신뢰를 쌓는 중요한 장소이기 때문에, 인테리어 디자인은 그 신뢰를 시각적으로 전달하는 역할을 합니다. 특히, 세무와 회
dopamine7.com
'사무실인테리어' 카테고리의 다른 글
| 강남사무실인테리어 화이트톤의 깔끔한 오피스 디자인 추천 (1) | 2024.11.07 |
|---|---|
| 변호사사무실인테리어 우드감성의 법률사무소 포트폴리오 (1) | 2024.11.07 |
| 구로인테리어 쾌적한 사무공간을 위한 플랜테리어 오피스 디자인 (1) | 2024.11.07 |
| 논현동인테리어 20평 30평대 사무실 효과적인 공간 분리 디자인 (0) | 2024.11.07 |
| 인천사무실인테리어 시공품질과 가성비를 모두 잡은 오피스 (0) | 2024.11.06 |
| 100평사무실인테리어 브랜드이미지가 잘 접목된 대형오피스 레이아웃 (0) | 2024.11.06 |
| 송도인테리어 전문성이 느껴지는 오피스 디자인의 정석 (2) | 2024.11.06 |
| 반포인테리어 조명을 활용한 오피스 시공 후기 (2) | 2024.11.05 |
- Total
- Today
- Yesterday
- 병원인테리어
- 3D사무실인테리어
- 미용실인테리어
- 헤어샵인테리어
- 인테리어디자인
- 헬스장인테리어
- 사무실디자인
- 사무실인테리어견적
- 사무실인테리어
- 학원인테리어
- 지식산업센터인테리어
- 916디자인
- 오피스인테리어
- 학원인테리어디자인
- 사무실리모델링
- 3D디자인
- 인테리어
- 회사인테리어
- 사무실인테리어비용
- 사무실인테리어후기
- 상가인테리어
- 사무실인테리어업체
- 사무실인테리어잘하는곳
- interior
- 사무실인테리어디자인
- 사무실인테리어공사
- 사무실인테리어추천
- 인천사무실인테리어
- 피티샵인테리어
- 사무실인테리어전문
| 일 | 월 | 화 | 수 | 목 | 금 | 토 |
|---|---|---|---|---|---|---|
| 1 | 2 | |||||
| 3 | 4 | 5 | 6 | 7 | 8 | 9 |
| 10 | 11 | 12 | 13 | 14 | 15 | 16 |
| 17 | 18 | 19 | 20 | 21 | 22 | 23 |
| 24 | 25 | 26 | 27 | 28 | 29 | 30 |
| 31 |




