티스토리 뷰
목차
논현동학원인테리어 신뢰와 집중의 상징으로



안녕하세요.
916디자인입니다.
똑같은 행동을 하더라도 어떻게 조성된 장소에
머무르는지에 따라 결과가 달라지게 됩니다.
예를 들어, 공부를 할 때에도 집에서 하는 것과
학원이나 학교에서 하는 것은 상당히 다르죠.
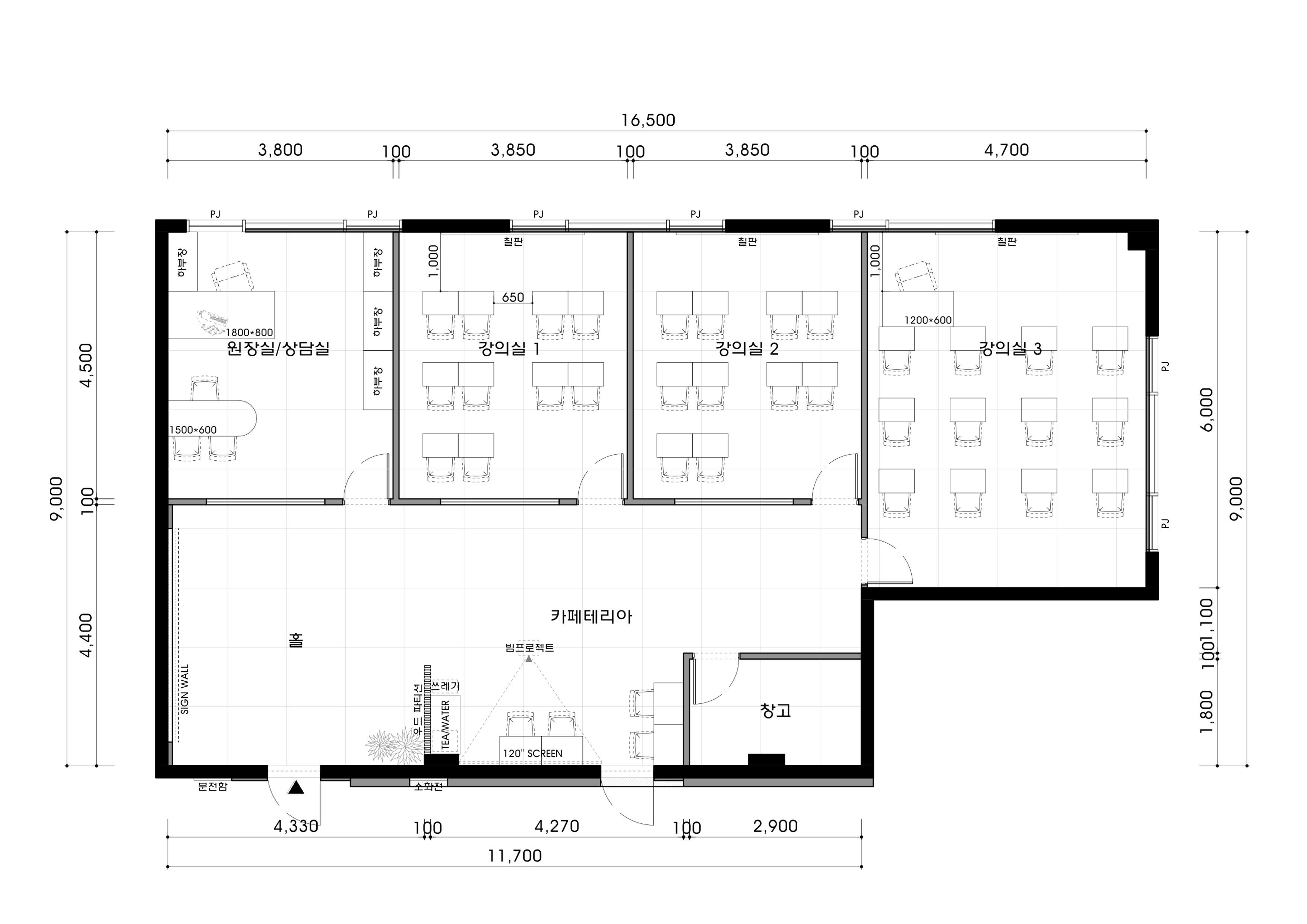
논현동학원인테리어 도면 스케치업 디자인



학원 인테리어의 경우 상담을 위해 방문하는
학부모님께는 신뢰감을 드릴 수 있어야하고,
수강생에게는 집중을 도울 수 있어야 합니다.




오늘은 저희가 논현동학원인테리어를 진행한
시공 과정과 현장을 소개해 드리겠습니다.
논현동학원인테리어 3D 디자인 시안

학업의 메카인 논현동에서 성공적으로 학원을
운영하고 홍보하기 위해 저희를 찾으셨어요.


원장님의 운영철학이 담긴 학원의 정체성을
은은하게 드러내면서도 기능적인 역할을
수행할 수 있도록 3D 디자인 상담을 합니다.



2D 도면이나 현장 방문 견적 시에도 어느 정도
디자인 구상을 완료할 수 있지만 더 신중하고
완성도 높은 인테리어를 위해 다소 번거로운
과정일지라도 3D 작업을 진행하고 있습니다.




이 과정에서 저희도 생각지 못한 아이디어가
떠오르기도 하고, 고객님도 상상했던 모습과
현실감있게 구현된 도면을 비교하게 되는데요.
결과적으로 더 높은 만족도를
얻으시도록 의견을 수정하고 조율 합니다.
논현동학원인테리어 공사 현장 사진



최종 의견이 컨펌되면 시공에 돌입합니다.
전문 기술자로만 구성한 팀으로 신속하고
안정감있게 작업하고 있습니다.



이번 논현동학원인테리어 현장은 비교적
오래된 상가 공실이었기 때문에 벽면과
바닥, 천장까지 전면 수정이 필요했습니다.



넓은 평수를 효과적으로 분리하기 위해서
가벽을 세우는 목공 작업을 먼저 시작합니다.
동시에 전기 배선과 조명 설치를 실시하여
시간을 효율적으로 배분하기도 합니다.


목공과 전기, 수도 등 인테리어에 필요한
전반적인 기술을 모두 전문가 수준으로
갖추고 있기에 믿고 맡겨주실 수 있습니다.
어떤 자재를 사용하더라도 퀄리티 있는
손질과 목공을 자신있게 완성해 드립니다.


도면을 통해 사전에 상의한 디자인과
오차를 최대한 줄이기 위해 작업하는
중간에도 책임자가 꼼꼼히 체크합니다.
다년간의 노하우와 경험으로 효율적인
작업동선 구상과 시간 분배, 인력 배치로
약속된 시간 안에 완성이 가능합니다.
논현동학원인테리어 시공 완료

논현동학원인테리어 준공 현장입니다.
입구 유리문에 깔끔하고 직관적인 학원
로고를 부착하여 신뢰감을 더했습니다.
심플하면서도 밝은 컨셉으로 화려하지
않아도 오로지 실력으로 승부한다는
운영 메시지를 표현해 드렸습니다.

학생들이 집중하는데 도움이 되도록
밝은 조명을 천장에 넓게 설치하고
교실 벽면에는 통유리창을 달았습니다.
마치 연구소같은 분위기를 연출하면서
최대한 인테리어에서 심미적인 요소를
덜어내고 기능적인 부분에 집중했습니다.

또한 학생들이 머무는 장소인 만큼 청소와
공간 관리가 용이하도록 친환경 소재나
페인트 등을 사용하고 습기와 오염에
강하고 청소에 용이한 바닥재를 사용하였습니다.

원장님께서 결과적으로 이렇게 심플하게
면학분위기를 조성하면서도 조명 디자인이나
원목 소재, 벽면 디테일만으로도 충분히
학원의 이미지 메이킹이 가능하다는 점에
대단히 높은 만족도를 표현해 주셨습니다.

사전 상담시 충분히 소통하고 있기 때문에
저희 인테리어 작업물은 고객님들의 높은
만족도와 좋은 내용의 후기를 받고 있습니다.

오늘 소개해드린 논현동학원인테리어 현장은
원장님께서 원하신 신뢰와 집중을 컨셉으로
구상하고 구현해 드리게 되었는데요.

저희 업체는 항상 고객님의 입장에 서서
맡겨주신 장소의 주인이라면 혹은 고객이라면
어떤 인테리어를 원할지 심사숙고합니다.
더불어 시공 마지막의 마지막까지 미흡한
부분은 없었는지 더블체크를 하며 가능한
두번 작업하는 일이 없도록 노력합니다.

고객님께 신뢰를 드리기 위해 늘 집중하고
노력하는 저희 업체를 찾아주신다면
만족하실 수 있는 공간을 창조하겠습니다.
관련하여 궁금하신 사항은 언제든지 편안하게
문의해 주시면 정성을 다해 안내드리겠습니다.
공사문의 010-3235-8427
▼▼▼▼포트폴리오 더보기▼▼▼
https://916er.com/category/academy/
Academy - 사무실인테리어 디자인 공사 비용견적 플랫폼
제1조 [목적] 이 약관은 “916디자인”이 온라인으로 제공하는 “콘텐츠” 및 “916디자인” 과 업무계약을 맺은 인테리어 디자인 제휴업체의 “인테리어견적서비스” 이용과 관련한 “9
916er.com
2024.06.11 - [학원인테리어] - 개포학원인테리어 가성비와 확실한 디자인
개포학원인테리어 가성비와 확실한 디자인
시공 진행 현장 개포학원인테리어 가게를 창업하거나 사무실을 이전하거나 많은 분이 다양한 이유로 건물 인테리어, 디자인 등을 신중하게 고민합니다. 건물 인테리어 디자인은 어
dopamine7.com
2024.03.28 - [학원인테리어] - 강남 서초동인테리어 행복공간 아이들을 위한 학원 교습소 디자인
강남 서초동인테리어 행복공간 아이들을 위한 학원 교습소 디자인
강남 서초동인테리어 행복공간 아이들을 위한 학원 교습소 디자인 안녕하세요, 916디자인입니다. 이제는 뗄레야 뗄 수 없는 존재인 학원 학교에서의 교육을 보충해주는 역할을 하는 동시에 또
dopamine7.com
2023.04.17 - [학원인테리어] - 구로구 신도림 수학학원인테리어 디자인과 공간활용을 모두 잡은 30평 현장 깔끔하고 미니멀한 컨셉
구로구 신도림 수학학원인테리어 디자인과 공간활용을 모두 잡은 30평 현장 깔끔하고 미니멀한
구로구 신도림 수학학원인테리어 디자인과 공간활용을 모두 잡은 30평 현장 깔끔하고 미니멀한 컨셉 안녕하세요 916디자인입니다. 오늘은 구로구 신도림 수학학원인테리어 디자인과 공간활용을
dopamine7.com
'학원인테리어' 카테고리의 다른 글
| 광명학원인테리어 체계적인 디테일 마감 (1) | 2024.06.14 |
|---|---|
| 인천학원인테리어 감각적인 디자인으로 세련된 공간 (0) | 2024.06.13 |
| 상암학원인테리어 견적과 마감까지 확실하게 (0) | 2024.06.13 |
| 고양 덕양구 향동학원인테리어 고급스러움과 최적의 환경 (0) | 2024.06.12 |
| 개포학원인테리어 가성비와 확실한 디자인 (0) | 2024.06.11 |
| 의왕학원인테리어 매력적인 디자인의 재탄생 (0) | 2024.06.11 |
| 압구정인테리어 빠른 AS와 고객만족 (1) | 2024.04.02 |
| 강남 서초동인테리어 행복공간 아이들을 위한 학원 교습소 디자인 (0) | 2024.03.28 |
- Total
- Today
- Yesterday
- 사무실리모델링
- 사무실인테리어비용
- interior
- 지식산업센터인테리어
- 인테리어
- 3D디자인
- 헤어샵인테리어
- 상가인테리어
- 인테리어디자인
- 병원인테리어
- 헬스장인테리어
- 사무실인테리어잘하는곳
- 회사인테리어
- 3D사무실인테리어
- 사무실인테리어
- 사무실인테리어후기
- 916디자인
- 사무실인테리어전문
- 오피스인테리어
- 사무실인테리어공사
- 미용실인테리어
- 사무실인테리어업체
- 사무실인테리어추천
- 사무실인테리어견적
- 사무실인테리어디자인
- 피티샵인테리어
- 사무실디자인
- 학원인테리어디자인
- 학원인테리어
- 인천사무실인테리어
| 일 | 월 | 화 | 수 | 목 | 금 | 토 |
|---|---|---|---|---|---|---|
| 1 | 2 | |||||
| 3 | 4 | 5 | 6 | 7 | 8 | 9 |
| 10 | 11 | 12 | 13 | 14 | 15 | 16 |
| 17 | 18 | 19 | 20 | 21 | 22 | 23 |
| 24 | 25 | 26 | 27 | 28 | 29 | 30 |
| 31 |
