티스토리 뷰
목차
향동학원인테리어 3D디자인 시안

안녕하세요.
916 디자인입니다.
공간 인테리어의 본질과 중요성은 단순히
공간을 아름답게 꾸미는 것을 넘어서,
그 공간에 머무는 사람들의 심리와 정서에
깊은 영향을 미치는 중요한 요소입니다.

이에 따라 공간의 목적과 사용자의 요구를
충족시키기 위해 체계적이고 계획적인 설계가
필요하기에 전문 업체를 잘 선정해야 합니다.

3
오늘은 올 3월에 저희가 진행했던 구로구
향동학원인테리어 시공 사례를 자세하게
소개드려 보도록 하겠습니다.

고양 향동 학원 인테리어 현장은 복합 상가건물
중에서도 동종업계인 학원이 밀집한 곳입니다.
이에 따라 다른 학원들보다도 전문성과 신뢰를
더할 수 있으면서도 학생의 집중을 도우며,
선생님은 수업하기에 좋고 쾌적하게 머무를 수
있는 강의실 인테리어를 요청하셨습니다.

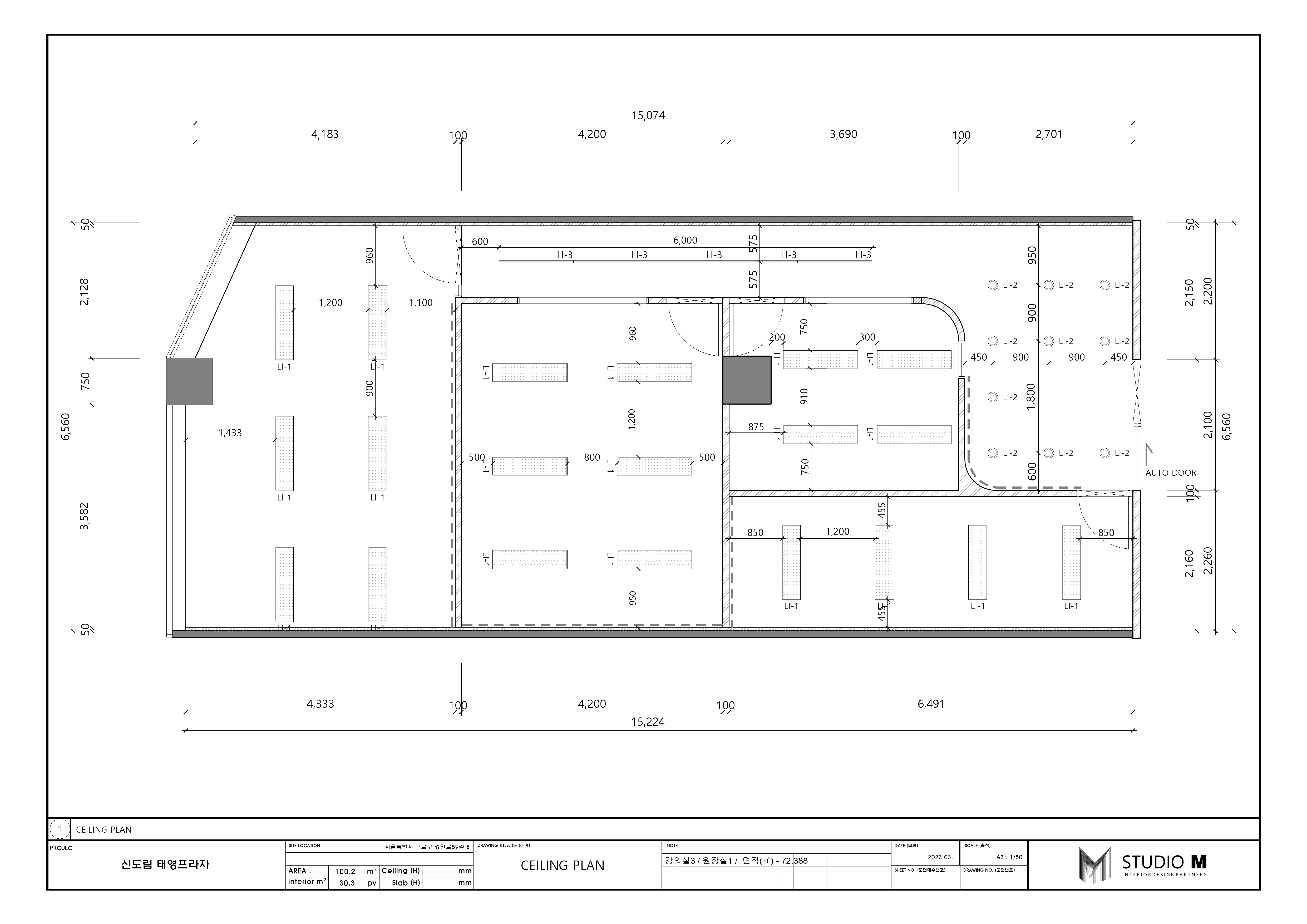
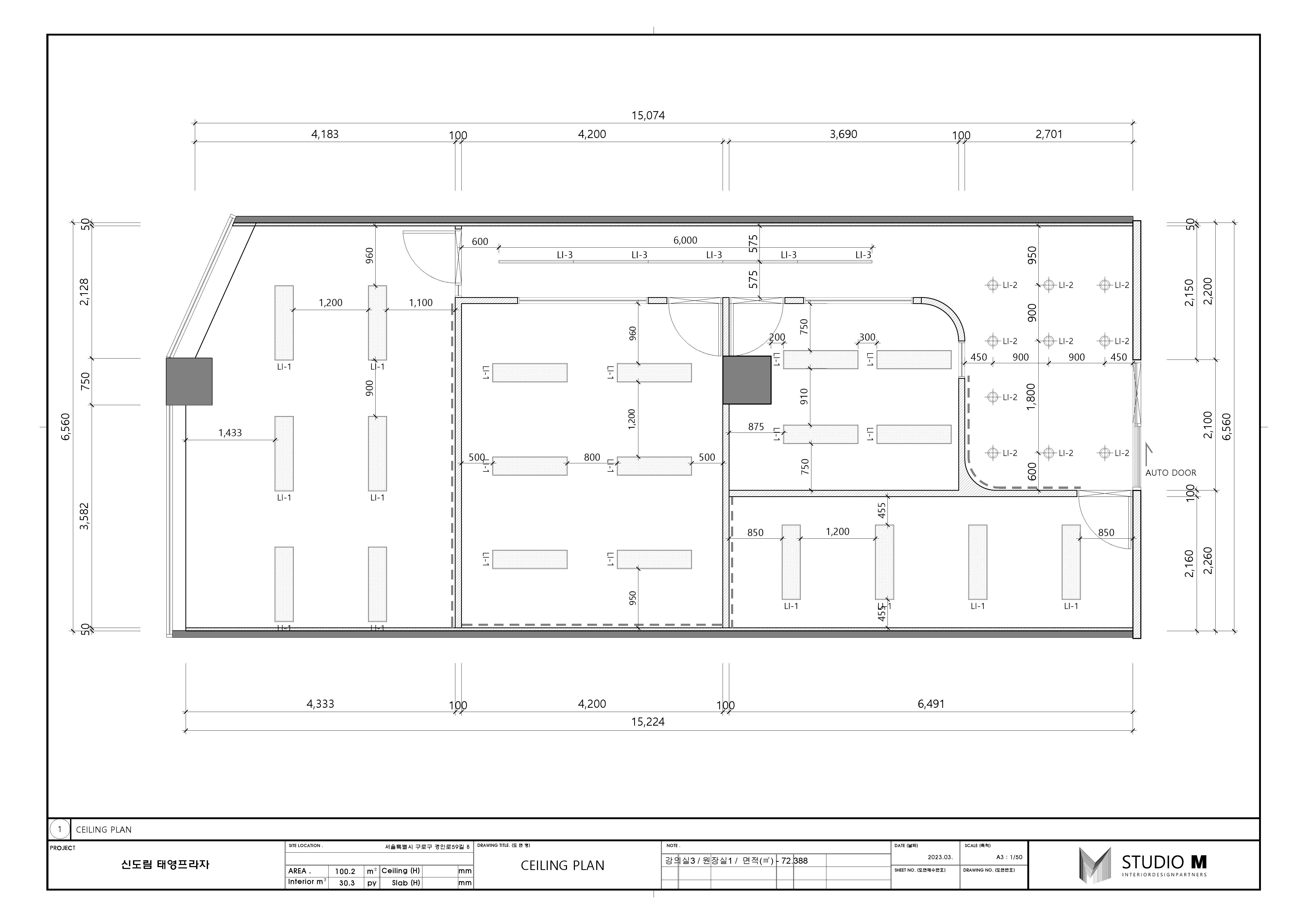
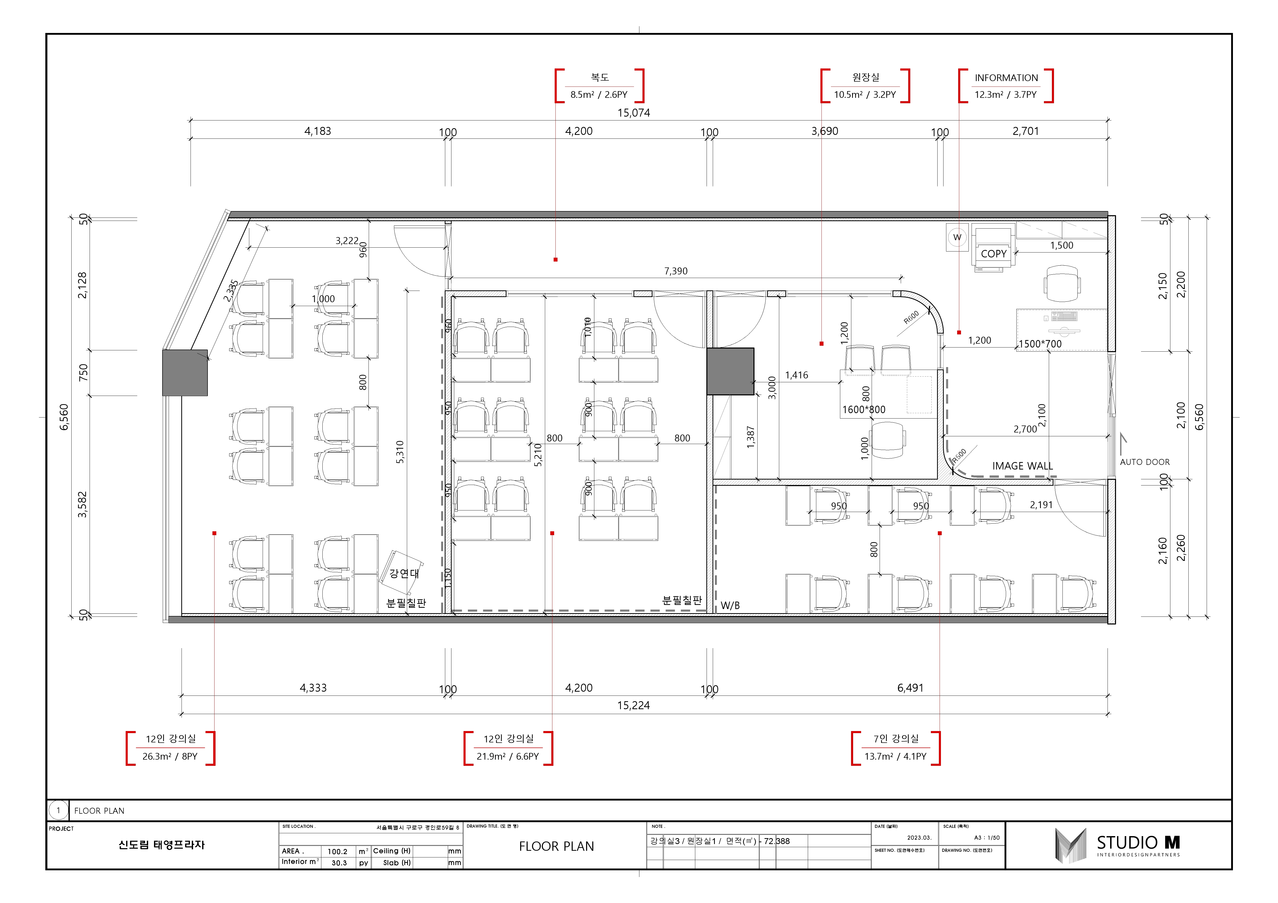
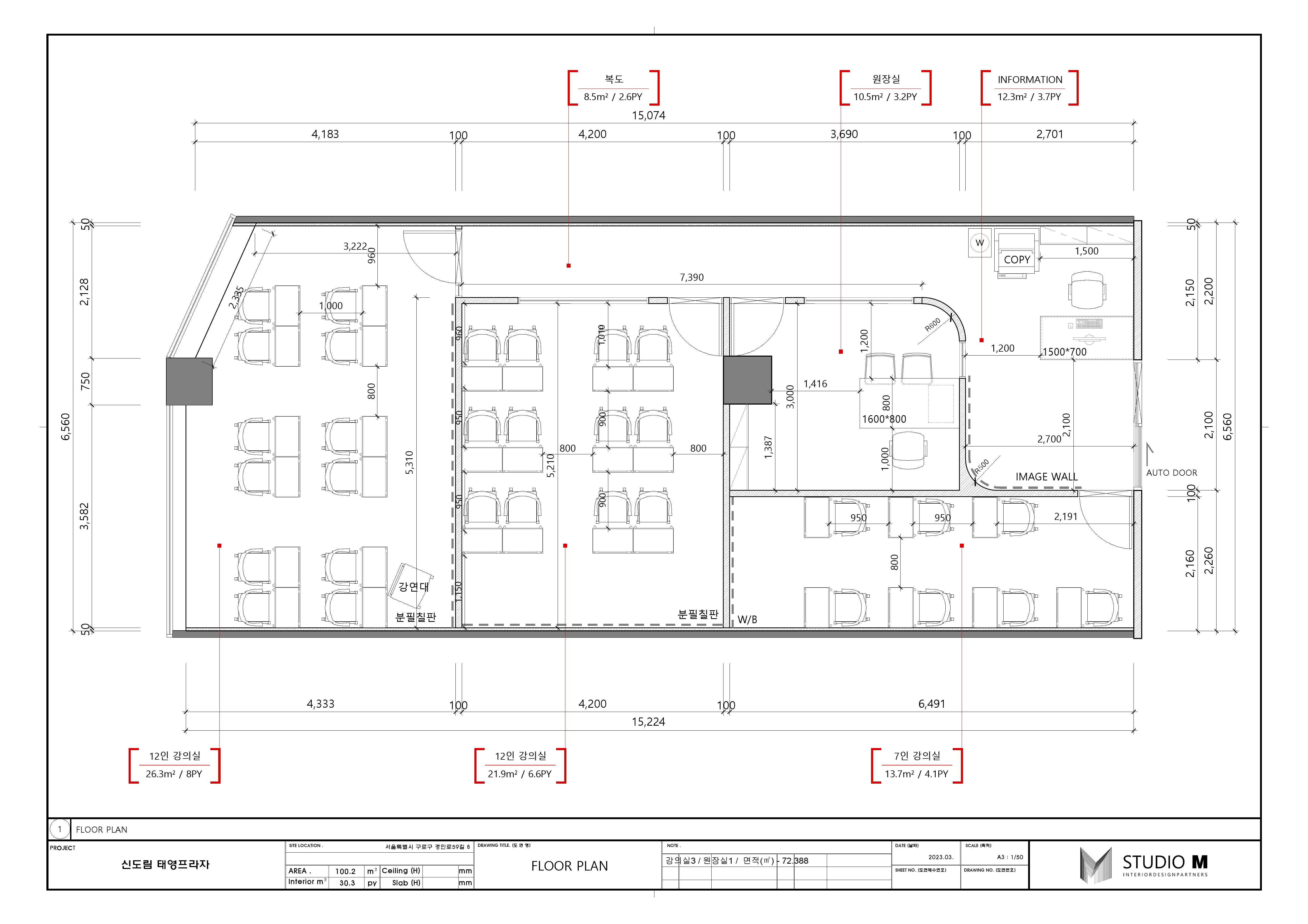
고객님과의 상담 과정에 반드시 필요한 3D
디자인을 작업하며 완성도를 높이고 있습니다.
평면도보다 번거롭지만, 정확한 상담과 만족도
높은 결과를 위해 3D 작업은 필수적입니다.
이때 구조나 디자인은 물론이고 시공에
사용하는 소재까지 고객님과 함께 확인하고
결정하는 과정을 갖게 됩니다.

벽면과 카운터에 원목을 사용한
항동학원인테리어 현장에서도 소재에 따라
비용이 상이해지고 작은 차이로도 전체적인
분위기가 판이하게 바뀔 수 있다는 점을 미리
안내해 드리면서 다양한 디자인 시안을
보여드리고 비교하며 도안을 완성했는데요.
몇 번의 수정과 조율을 마치고 나면 최종
승인이 이루어지며 이후 시공을 시작합니다.
고양 향동학원인테리어 시공 공사 현장 사진


덕양구 향동학원인테리어 시공 현장을 살펴보니
별도로 철거할 필요가 없는 상태라 작업
효율을 높이고 시간을 줄일 수 있었습니다.


실제 작업을 시작하면서 사전에 확인한 것과
조금이라도 다른 점이 발견되거나 시공 방향을
변경해야 한다면 즉시 고객님께 연락을 취하여
서로 확인 후 다시 작업에 돌입하고 있습니다.
사전에 컨펌된 내용 이외의 재료나 작업은
일절 임의로 진행하지 않고 있습니다.


전체 전문성을 갖추어 안전과 기술 퀄리티를
보장하는 팀원으로만 작업 인원을 꾸려서
항동학원인테리어 현장을 완성해 나갔습니다.


학원 입구부터 저희 작업은 시작되는데요.
첫인상이 중요하기에 통창으로 밝고 화사한
내부가 들여다보일 수 있도록 작업합니다.
밝은 조명 설치를 위해 전기 배선 작업부터
공간 분리를 위한 가벽 작업을 진행했는데요.


원목 카운터를 직접 짜서 입구 옆면에
배치하였고 강의실과 상담실, 자습실을 면학
분위기 조성을 위해서 가벽에는
방음에 효율적인 소재를 사용했습니다.
고양 덕양구 향동학원인테리어 시공 완료 사진


항동학원인테리어 고객님께서 원하셨던
고급스러운 분위기에 학습하기에 최적의
환경을 위해 밝은 조명과 공간 분리로 깔끔한
학원 인테리어 시공을 완성한 전경입니다.



전체적으로 우드 앤 화이트 색상으로 분위기를
맞추었는데요, 고객님께서 너무 강압적이고
딱딱한 느낌을 원하지 않으셔서 편안하고
부드러운 곡선 벽면을 디자인하였습니다.
실제로 학원 수업 방식이 개별식 맞춤교육을
지향하고 원활한 소통을 중심으로 지도하기에
결과적으로 저희도 아주 만족스러웠습니다.



벽면에 대형 칠판과 화이트보드를 부착하고
자습이 많은 곳이기 때문에 복도에서 창문으로
학습실을 들여다볼 수 있도록 면학 분위기
조성에 도움을 드리는 디자인을 진행했습니다.
항동학원인테리어 고급스러움과 최적의 환경


좁고 길게 난 복도에 라인 조명등을 설치하여
효과적으로 공간을 밝히도록 하였고요.
집중력을 해칠만한 요소를 모두 제거하였기에
최소한의 디자인으로 분위기가 조성될 수
있도록 생략과 여백, 포인트로 완성했습니다.
자칫 삭막해 보일 수 있기에 바닥과 창문, 문
테두리를 원목으로 감싸는 형태로 아늑함과
편안함을 잃지 않도록 신경 써 드렸습니다.



최종적으로 시공을 마감하기 전 전기와 마감
등 부족하거나 실수한 곳은 없었는지 꼼꼼하게
확인하며, 혹시라도 보완이 필요한 부분이
발생하였다면 신속하게 해결을 도와드립니다.


오늘은 향동 고양 인테리어학원 시공 사례를 소개해
드리면서 저희 업체의 작업을 보여드렸습니다.
다년간의 시공 경험과 노하우, 전문 인력으로
인테리어의 심미적 및 기능적인 측면을
총동원하여 고객님이 가장 만족하실 만한
결과를 보여드릴 자신이 있습니다.
관련하여 궁금하신 사항은 언제든지 문의해
주시면 자세하게 안내해 드리겠습니다.
공사문의 010 3235 8427
▼▼▼▼포트폴리오 더보기▼▼▼
https://916er.com/category/academy/
Academy - 사무실인테리어 디자인 공사 비용견적 플랫폼
제1조 [목적] 이 약관은 “916디자인”이 온라인으로 제공하는 “콘텐츠” 및 “916디자인” 과 업무계약을 맺은 인테리어 디자인 제휴업체의 “인테리어견적서비스” 이용과 관련한 “9
916er.com
2021.12.23 - [학원인테리어] - 위례 송도 배곧 20평 25평 학원인테리어전문으로 하는 곳에서!
위례 송도 배곧 20평 25평 학원인테리어전문으로 하는 곳에서!
위례 송도 배곧 20평 25평 학원인테리어전문으로 하는 곳에서! 공사진행 위례 송도 배곧 지역에 학원 개원을 계획하신다면 20평 25평 학원인테리어전문으로 하는 곳에서! 진행하시기를 강력 추천
dopamine7.com
2024.03.25 - [학원인테리어] - 영어 수학 교습소인테리어 공간의 레이아웃
영어 수학 교습소인테리어 공간의 레이아웃
영어 수학 교습소인테리어 공간의 레이아웃 안녕하세요, 916디자인입니다. 우리주변을 볼 때 굉장히 많은 사람들이 건물을 새롭게 디자인하기 위해서 고민을 하십니다. 각각의 니즈에 따라서 원
dopamine7.com
2024.03.20 - [학원인테리어] - 수학학원인테리어 학생들의 공간으로
수학학원인테리어 학생들의 공간으로
수학학원인테리어 학생들의 공간으로 안녕하세요, 916디자인입니다. 최근 다양한 공간을 새롭게 디자인 하기 위해서 인테리어를 고민하시는 분들이 굉장히 많으리라 생각됩니다. 인테리어를 통
dopamine7.com
'학원인테리어' 카테고리의 다른 글
| 부평학원인테리어 매력적인 공간의 탄생 (0) | 2024.06.14 |
|---|---|
| 광명학원인테리어 체계적인 디테일 마감 (1) | 2024.06.14 |
| 인천학원인테리어 감각적인 디자인으로 세련된 공간 (0) | 2024.06.13 |
| 상암학원인테리어 견적과 마감까지 확실하게 (0) | 2024.06.13 |
| 논현동학원인테리어 신뢰와 집중의 상징으로 (0) | 2024.06.12 |
| 개포학원인테리어 가성비와 확실한 디자인 (0) | 2024.06.11 |
| 의왕학원인테리어 매력적인 디자인의 재탄생 (0) | 2024.06.11 |
| 압구정인테리어 빠른 AS와 고객만족 (1) | 2024.04.02 |
- Total
- Today
- Yesterday
- 학원인테리어
- 사무실인테리어추천
- 사무실인테리어
- 상가인테리어
- 헤어샵인테리어
- 사무실디자인
- 학원인테리어디자인
- 오피스인테리어
- 헬스장인테리어
- 병원인테리어
- 미용실인테리어
- 사무실인테리어잘하는곳
- 지식산업센터인테리어
- 사무실인테리어전문
- interior
- 인천사무실인테리어
- 피티샵인테리어
- 사무실인테리어디자인
- 사무실리모델링
- 사무실인테리어견적
- 3D디자인
- 사무실인테리어업체
- 인테리어디자인
- 회사인테리어
- 사무실인테리어후기
- 916디자인
- 3D사무실인테리어
- 사무실인테리어비용
- 사무실인테리어공사
- 인테리어
| 일 | 월 | 화 | 수 | 목 | 금 | 토 |
|---|---|---|---|---|---|---|
| 1 | 2 | 3 | 4 | 5 | 6 | 7 |
| 8 | 9 | 10 | 11 | 12 | 13 | 14 |
| 15 | 16 | 17 | 18 | 19 | 20 | 21 |
| 22 | 23 | 24 | 25 | 26 | 27 | 28 |
