티스토리 뷰
목차
미인의 성지인 대구는 많은 이들의 사랑을 받고 있는 피부과 의원이 많습니다.
그렇기 때문에 남다른 디자인컨셉의 병원인테리어가 무엇보다 중요한데요.
오늘은 대구병원인테리어의 남다른 디자인 컨셉이 돋보이는 피부과 컨셉에 대해 알려드리고
시공과정 및 완공 모습을 살펴보겠습니다.
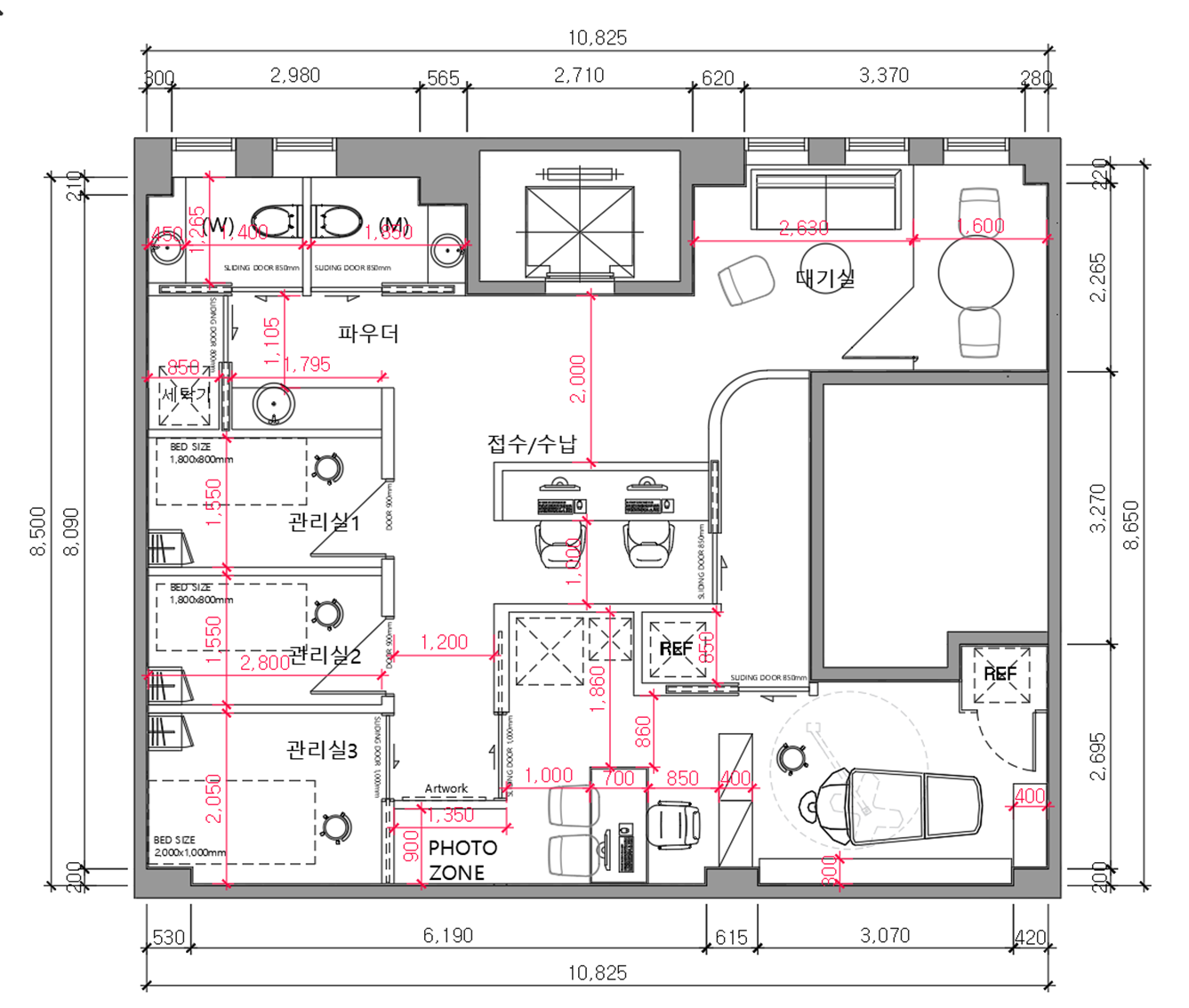
대구병원인테리어 남다른 공간 설계

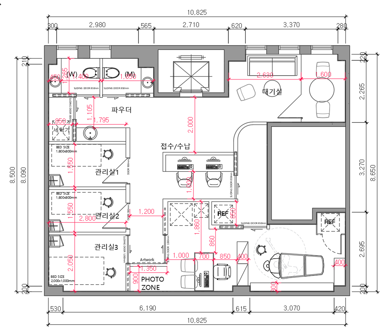
먼저 대구병원인테리어 피부과의 2D 레이아웃입니다.
2D 디자인은 병원인테리어의 핵심으로, 실제 시공 전에 공간의 구획, 동선, 가구 배치, 조명 위치 등을
정밀하게 계획할 수 있어 공사 과정에서의 시행 작오를 줄여주는 역할을 합니다.
대구병원인테리어 피부과 맞춤형 시공




대구병원인테리어 피북과 의원의 공사 진행 모습입니다.
기존 마감재, 천장 몰딩, 바닥 타일을 철거하고 로비의 구조물을 평탄하게 잡아줍니다.




목공 작업은 원형 곡선 벽체를 위한 합판 및 목재 프레임을 설치하였습니다.
특히 원형 벽체는 커브 각도를 일정하게 잡는게 중요해 현장 실측 후 프레임 재단 작업을 진행합니다.



이번 시공 과정에서는 공간마다 각각의 기능과 특성에 맞게 공사 프로세스를 정교하게 나누어서 진행했습니다.
병원 인테리어는 단순히 마감재를 이쁘게 입히는 것이 아니라 공간마다 환자의 경험과 의료 공간의 효율성을 함께 고려하는
작업이라는 점을 다시금 확인할 수 있었던 현장이었습니다.
대구병원인테리어 피부과 완성 공간
병원인테리어에서 가장 중요한 공간 중 하나가 바로 로비 인포메이션입니다.
병원에 방문한 고객이 가장 먼저 마주하는 공간인 만큼 편안함과 고급스러움, 그리고 브랜드 아이덴티티를 동시에 담아내야 하죠.
이번 피부과 로비 인포메이션 공간은 은은한 베이지 톤의 마감재와 고급스러운 원목 마감, 그리고 브라운 컬러의 조화를 통해
따뜻하면서도 모던한 공간미를 완성했습니다.








인포메이션 뒤쪽 벽면은 가로 매립형 조명을 활용하여 공간의 깊이와 분위기를 살렸습니다.
은은하게 퍼지는 조명은 밝고 아늑한 병원의 이미지를 구축하는 동시에, 로비 공간에 고급스러움을 더하는 요소로 작용합니다.
특히 조명과 함께 배치된 아트월 형태의 입체적 벽 마감 디자인은 피부과 의원의 품격을 보여주는 인테리어 포인트랍니다.




병원 공간 특유의 딱딱하고 차가운 분위기를 없애기 위해, 입구와 벽면에는 자연 친화적인 플랜테리아 공간을 마련했습니다.
유리문 입구 벽면에는 화단 형태의 플랜테리아를 설치하여 병원에 방문한 고객에게 싱그러움과 안락함을 동시에 선사하며,
공간의 첫 인상을 완전히 바꿔줍니다.







아이보리 톤의 벽면과 어우러진 식재 공간은 자연과 병원이 조화를 이루는 공간미를 강조하며,
공간의 공기 정화와 심리적 안정에도 긍정적인 영향을 줍니다.
이러한 디자인 연출로 병원 공간임에도 불구하고 갤러리나 카페 같은 분위기를 연출하는데 성공했습니다.





대구병원인테리어는 현대적이면서도 세련된 감각을 잃지 않았습니다.
미니멀리즘을 바탕으로 한 디자인은 공간을 정돈된 느낌으로 만들어주면서도, 고급스러운 재질의 가구와 인테리어 소품들은
전체적인 분위기를 더욱 고조시켜 줍니다.



대기실은 넓고 아늑하게 꾸며져 있어 환자들이 불안감을 느끼지 않고 편안하게 기다릴 수 있도록 하였으며,
개방감 있는 구조로 소통하고 신뢰를 쌓을 수 있는 공간으로 연출하였습니다.








피부과 의원에서 고객이 자주 사용하는 세면대와 파우더룸 공간 역시 이번 프로젝트의 핵심 공간 중 하나입니다.
단순한 기능성 공간을 넘어, 자신을 가꿀 수 있는 아늑한 힐링공간으로 디자인했습니다.
세면대 공간에는 심플하고 고급스러운 마감재를 사용하여 위생과 관리가 용이하도록 설계했으며,
그 위에 둥근 거울과 간접 조명으로 공간의 포인트를 주었답니다.
미인의 성지인 대구병원인테리어 피부과의 남다른 디자인 컨셉은 단순한 피부과 이상의 의미를 지니고 있습니다.
환자들에게 아름다움과 자신감을 주기 위한 세심한 디자인 연출은 많은 이들에게 긍정적인 경험을 선사하죠.
다시 찾고 싶은 병원인테리어로 기억되고 싶다면 오랜 경험과 노하우를 바탕으로 병원 공간을 연출하는
저희와 함께 새로운 공간을 디자인 해 보시기 바랍니다.
📞 상담 문의 📞
010-3235-8427
🔽 포트폴리오 더 보기 🔽
사무실인테리어 디자인 공사 비용견적 플랫폼 - 사무실인테리어 916
사무실인테리어 916
916er.com
2025.04.22 - [병원인테리어] - 영상의학과인테리어 병원 공간 연출도 전문업체에게 맡겨야 하는 이유
영상의학과인테리어 병원 공간 연출도 전문업체에게 맡겨야 하는 이유
영상의학과는 진단적 검사와 치료가 이루어지는 중요한 공간으로, 그에 맞는 인테리어가 필요합니다. 하지만 이러한 공간을 효과적으로 디자인하기 위해서는 전문적인 지식과 경험이 요구되는
dopamine7.com
2025.04.22 - [병원인테리어] - 비뇨기과인테리어 편안한 진료 환경 조성 병원 디자인
비뇨기과인테리어 편안한 진료 환경 조성 병원 디자인
최근에는 병원 인테리어에도 많은 관심이 쏠리고 있습니다. 특히 비뇨기과 같은 경우에는 환자들이 편안하게 진료를 받을 수 있는 환경을 조성하는 것이 중요한데요. 이를 위해서는 비뇨기과인
dopamine7.com
2025.03.25 - [병원인테리어] - 정형외과인테리어 병원 진료공간 최적화 맞춤 디자인 설계
정형외과인테리어 병원 진료공간 최적화 맞춤 디자인 설계
최근 들어 병원인테리어 문의가 많아지고 있습니다.그중에서도 정형외과는 다른 과와는 조금 다른 특징을 가지고 있는데요. 환자들이 주로 수술이나 물리치료 등을 받기 때문에, 진료공간 뿐
dopamine7.com
'병원인테리어' 카테고리의 다른 글
| 피부관리샵인테리어 창업 성공을 위한 20평대 에스테틱 디자인 시공 현장 (5) | 2025.06.16 |
|---|---|
| 요양병원인테리어 편안한 안식처같은 리모델링 공사 후기 (0) | 2025.06.10 |
| 진료실인테리어 편안함을 주는 프라이빗한 병원 공간 디자인 설계 (1) | 2025.06.10 |
| 부산병원인테리어 치과 디자인 레이아웃에 대해 알려드립니다 (0) | 2025.06.09 |
| 안성병원인테리어 최신트렌드 반영한 세련된 디자인의 내과 공사후기 (0) | 2025.05.08 |
| 영등포병원인테리어 여성 고객층 공략 우아한 피부과 컨셉 시공 포트폴리오 (1) | 2025.05.08 |
| 통증의학과인테리어 진료과목 특화 병의원 디자인 전문 업체 시공 포트폴리오 (0) | 2025.04.23 |
| 수액실 인테리어 내과 병원에 꼭 필요한 공간 디자인 (0) | 2025.04.23 |
- Total
- Today
- Yesterday
- 사무실인테리어전문
- 3D사무실인테리어
- 인테리어
- 회사인테리어
- 사무실리모델링
- 학원인테리어디자인
- 오피스인테리어
- 사무실인테리어비용
- 미용실인테리어
- 사무실인테리어디자인
- 병원인테리어
- 사무실인테리어
- 헤어샵인테리어
- 학원인테리어
- 인천사무실인테리어
- 916디자인
- 사무실인테리어잘하는곳
- 사무실디자인
- 사무실인테리어공사
- 사무실인테리어견적
- 사무실인테리어추천
- 3D디자인
- 상가인테리어
- 피티샵인테리어
- 인테리어디자인
- 지식산업센터인테리어
- 사무실인테리어업체
- 헬스장인테리어
- interior
- 사무실인테리어후기
| 일 | 월 | 화 | 수 | 목 | 금 | 토 |
|---|---|---|---|---|---|---|
| 1 | 2 | 3 | ||||
| 4 | 5 | 6 | 7 | 8 | 9 | 10 |
| 11 | 12 | 13 | 14 | 15 | 16 | 17 |
| 18 | 19 | 20 | 21 | 22 | 23 | 24 |
| 25 | 26 | 27 | 28 | 29 | 30 | 31 |





