티스토리 뷰
목차
은은한 조명 아래, 우아한 인테리어가 돋보이는 피부과가 여성 고객들의 발길을 끌 수 있겠죠.
이번 영등포병원인테리어 시공 현장에서는 특별히 여성 고객층을 겨냥한 우아한 컨셉의 피부과를 시공하였는데요.
이 공간은 단순한 진료 공간을 넘어 고객이 편안하게 느꼈으면 하는 마음으로 디자인해 보았습니다.
요즘은 피부관리에 대한 관심이 높아지는 추세로 특히 여성을 위한 아름다움과 건강 지향의 클리닉이 부각되고 있는 만큼 영등포인테리어 포트폴리오를 통해 독특한 디자인과 여성 고객층을 공략하기 위한 다양한 전략을 소개해 보려고 합니다.
아늑하면서도 우아한 분위기를 지닌 피부과에서 이루어지는 관리가 어떻게 고객에게 최상의 경험을 제공하는지, 그리고 이러한 컨셉이 왜 중요한지를 알아보시기 바랍니다.
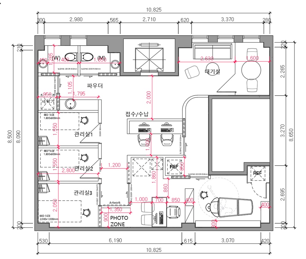
영등포병원인테리어 우아한 피부과 디자인 요소

우아한 피부과를 만드는 데 있어서 디자인은 매우 중요한 요소입니다.
인테리어의 색감과 재질, 그리고 가구의 배치는 고객이 진료받는 동안 느끼는 감정에 큰 영향을 미치기 때문인데요.
이번 영등포인테리어는 자연친화적인 색감을 활용하여 아늑하면서도 우아한 느낌을 주도록 디자인해 보았습니다.
고급스러운 목재 가구가 전체적인 따뜻한 톤과 조화롭게 어우러져 우아한 분위기를 연출할 수 있도록 한 것인데요.
고객들이 피부 관리라는 스트레스에서 벗어나 기분 전환을 할 수 있도록 한 것입니다.
영등포병원인테리어 여성 고객 맞춤형 환경 조성


여성 고객층을 공략하기 위한 전략으로 고객의 개별적인 필요와 선호도를 고려하여 공간을 설계했습니다.
진료시로가 대기 공간이 분리되어 있어 개인의 프라이버시를 최대한 보장할 수 있돋록 했으며 고객은 대기 시설에서 편안하게 시간을 보내고 상담 시에도 보다 안정된 마음가짐을 가질 수 있도록 한 것이죠.




뿐만 아니라 대기 공간에는 다양한 미용 관련 도서와 잡지, 차와 커피 등의 음료를 제공하여 고객이 편안하게 대기할 수 있도록 했습니다.
이렇게 세심한 부분에서도 고객 경험을 향상시킬 수 있는 방안을 드렸는데요.
고객은 단순히 피부 진료를 받으러 온 것이 아니라 전반적인 힐링의 경험을 느낄 수 있는 공간을 찾고 있다는 점을 잘 이해하고 이를 반영하여 영등포병원인테리어 시공에 임했습니다.

조명의 배치도 매우 중요하게 생각하고 설계했습니다.
자연광을 최대한으로 활용하여 인상적인 연출이 이루어지도록 했지만 현실적으로 자연광을 활용할 수 없는 공간에서는 부드럽고 따스한 조명을 설치하여 고객에게 편안함을 전하며 자신을 돌아볼 수 있는 공간으로 만들었습니다.
피부과라는 특성상, 고객들이 대기하는 시간이 길어질 수 있는데 이럴 때 우아한 디자인이 더욱 효과적으로 작용하죠.
영등포병원인테리어 세련된 공간 구성






이번 영등포병원인테리어에서 웰컴 공간은 고객이 처음 방문했을 때 느끼는 첫인상에 큰 영향을 미치기 때문에 고객이 들어오는 순간 아늑한 공간과 친절한 스태프의 미소가 고객을 맞이해줄 수 있도록 연출해 보았습니다.
이는 단순한 피부과라는 공간에서의 치료 개념을 넘어 고객이 편안하게 느낄 수 있도록 만들어지는 중요한 요소입니다.
웰컴 공간에는 전문적인 스태프가 대기할 수 있는 구역을 설계하여 고객의 궁금증이나 필요를 즉시 해결해 줄 수 있도록 했는데요.
탄탄한 소통과 빠른 대응력은 고객의 만족도를 높이는 데 큰 역할을 하죠.



환자 대기 공간과 진료실, 시술실의 배치는 환자 진료 흐름을 고려했습니다.
대기 공간은 환자들이 편안하게 앉을 수 있는 공간으로 구성했으며 개인 프라이버시를 보장할 수 있는 거리를 두도록 했는데요.
이는 치료 대기 시간 동안 환자들이 보다 안정감을 느끼게 해주기 때문입니다.
이렇듯 전반적인 흐름이 원활해야 만이 진료의 질이 높아지고 환자의 만족도를 높일 수 있답니다.




전문적인 느낌을 주면서도 독특함을 더할 수 있는 방법으로 예술적 요소를 도입했습니다.
예술가의 작품을 전시하고 피부와 관련된 아트워크를 통해 공간의 스타일을 한층 높여줄 수 있죠.
이러한 요소들은 환자에게 기억에 남는 경험을 제공하고, 브랜드 이미지에도 긍정적인 영향을 미칩니다.



조용하고 아늑한 분위기를 만들어주기 위해 소리의 관리 또한 중요한 요소입니다.
배경 음악을 통해 심리적 안정감을 조성할 수 있고 동시에 다른 방에서 일어나는 소음이 잘 흘러들어오지 않도록 방음 기술을 고려했습니다.
이렇게 소리 관리를 철저히하면 환자들은 더욱 편안하게 느끼고 긴장을 풀 수 있답니다.







피부과에서 환자 진료가 이루어지는 만큼 개인정보 보호는 필수적입니다.
대기실과 상담실은 소음 차단이 필요하며 개인 정보를 나누는 공간은 최대한 비공식적인 분위기를 유지해야 하죠.
또한 프라이버시를 보장하는 디자인 구성이 이루어져야 환자들 모두가 안심할 수 있습니다.
이러한 세심한 배려가 피부과의 신뢰도를 높이는데 기여합니다.








자연 요소를 공간에 도입하는 것은 피부과의 분위기를 한층 더 치유적인 방향으로 이끌 수 있습니다.
식물이나 조경을 통해 청결하고 신선한 이미지를 주며, 이는 환자들에게 더욱 편안하고 안정된 감정을 전달하게 됩니다.
자연과의 연결이 환자들의 스트레스를 줄여줄 수 있으며 이런 소소한 변화로 큰 효과를 볼 수 있는 것이랍니다.




조명은 공간을 구성하는 데 있어 빠질 수 없는 중요한 요소입니다.
자연광을 최대한 활용하고, 부드러운 인공 조명을 배치하면 환자들이 더욱 편안하게 느낄 수 있도록 했습니다.
과도한 조도나 얇고 찬빛은 불안감을 줄 수 있으니 조명의 밝기를 조절하는 것도 필수적입니다.
또한 진료실에서는 조명이 피부 상태를 제대로 보여줄 수 있는 환경을 만들어주는 것도 중요하죠.
색상의 선택은 공간의 첫인상과 직접적으로 연결되어 있습니다.
부드러운 파스텔 색상은 안정감과 편안함을 선사해주는데요.
따뜻한 톤의 바닥재와 벽면 색상이 조화를 이루면, 환자들은 더 편안하게 느낄 수 있죠.
반면 차가운 느낌의 색상은 긴장을 유발할 수도 있으니 주의가 필요합니다.
이러한 색상들을 적절히 조합하여 피부과의 브랜드 이미지와 일치하도록 설정해야 합니다.




가구는 실용성과 디자인, 두 마리 토끼를 잡는 것이 중요합니다.
편안한 소파와 의자를 배치하면 환자들이 대기하는 동안 긴장을 풀 수 있습니다.
더불어 세련된 디자인의 가구는 공간에 품격을 더해줄 수 있죠.
이때, 청소와 유지 관리가 용이한 소재를 선택하는 것도 잊지 말아야 합니다.
시간이 지남에 따라 가구의 상태가 좋지 않으면, 전반적인 이미지에도 나쁜 영향을 미칠 수 있기 떄문입니다.












각 환자의 니즈에 맞춘 맞춤형 서비스 공간을 갖추는 것이 중요합니다.
피부 타입에 따라 다양한 치료를 제공하므로 이를 효율적으로 진행할 수 있는 공간이 필요한데요.
각각의 공간은 다양한 치료 기기와 설비를 갖춰 환자들의 치료 경험을 극대화 해야 합니다.
이러한 커스터마이즈된 서비스는 황량한 공간을 더 역동적이게 만들어 주죠.










피부과는 피부에 대한 진료를 받는 것 이상으로 환자들이 편안함과 신뢰를 느끼며 치료를 받을 수 있는 복합적인 환경으로 인테리어에도 많은 노력을 더해야 합니다.
바쁜 일상 속에서 스트레스를 최소화하고 치유와 회복을 도와주는 우아한 피부과 공간 설계를 통해 공간의 기능뿐 아니라 고객의 심리적 안정과 만족도를 높일 수 있기 때문입니다.
피부과를 방문하고 치료 후 나가는 그 순간까지도 고객이 만족할 수 있도록 공간을 효과적으로 설계하기 위해 여러 방향성을 고려했습니다.





우아한 피부과 컨셉 시공은 멋진 인테리어 이상으로 피부과가 어떤 철학과 가치를 가지고 있는지를 반영하는 중요한 과정입니다.
이상적인 공간은 환자들에게 편안함을 주고 치료의 효과를 극대화할 수 있는 환경을 만들어 줍니다.
디자인은 고객의 심리 상태에 큰 영향을 미치므로 각 요소들의 조화로운 결합이 필요한데요.
색상, 조명, 가구 배치 등 모든 요소가 전문가의 손길을 거쳐 최적화 되어야 제대로 된 공간이 형성될 수 있습니다.
환자들이 찾고 싶은 피부과, 믿고 치료받고 싶은 곳으로 만들고 싶다면 언제든지 영등포병원인테리어 전문 업체인 구일육디자인으로 문의 바랍니다.
☎ 공사문의 ☎
010 -3235- 8427
▼ 포트폴리오 더보기 ▼
https://916er.com/
사무실인테리어 디자인 공사 비용견적 플랫폼 - 사무실인테리어 916
사무실인테리어 916
916er.com
2025.03.05 - [병원인테리어] - 강동구병원인테리어 전문업체가 차질없이 진행한 치과 리모델링 완공 현장
강동구병원인테리어 전문업체가 차질없이 진행한 치과 리모델링 완공 현장
치과를 방문할 때 느끼는 불안감과 두려움은 많은 사람들이 공감하는 부분입니다.그런데 이 불안감을 줄일 수 있는 방법 중 하나가 바로 치과 인테리어입니다. 환자들이 편안하게 느낄 수 있는
dopamine7.com
2025.03.20 - [병원인테리어] - 포항병원인테리어 럭셔리한 무드의 디자인으로 여성의원 개원 성공적
포항병원인테리어 럭셔리한 무드의 디자인으로 여성의원 개원 성공적
현대 사회에서 여성의원은 단순한 진료 공간이 아닌, 여성의 건강과 삶의 질을 높이는 중요한 공간으로 자리 잡고 있습니다. 여성의원이 이렇게 중요한 공간인 만큼 그 인테리어 디자인도 주목
dopamine7.com
2025.03.25 - [병원인테리어] - 구로병원인테리어 고급스러운 피부과 의원 디자인을 경험하세요
구로병원인테리어 고급스러운 피부과 의원 디자인을 경험하세요
구로병원인테리어는 환자들에게 고급스러움과 편안함을동시에 제공하는 특별한 경험을 선사하고 있습니다. 피부과 의원이라는 특성상, 환자들은 치료뿐만 아니라 그 공간에서 느끼는 감정도
dopamine7.com
2025.03.25 - [병원인테리어] - 정형외과인테리어 병원 진료공간 최적화 맞춤 디자인 설계
정형외과인테리어 병원 진료공간 최적화 맞춤 디자인 설계
최근 들어 병원인테리어 문의가 많아지고 있습니다.그중에서도 정형외과는 다른 과와는 조금 다른 특징을 가지고 있는데요. 환자들이 주로 수술이나 물리치료 등을 받기 때문에, 진료공간 뿐
dopamine7.com
'병원인테리어' 카테고리의 다른 글
| 진료실인테리어 편안함을 주는 프라이빗한 병원 공간 디자인 설계 (1) | 2025.06.10 |
|---|---|
| 부산병원인테리어 치과 디자인 레이아웃에 대해 알려드립니다 (0) | 2025.06.09 |
| 대구병원인테리어 미인의 성지 피부과 의원의 남다른 디자인 컨셉 (1) | 2025.06.09 |
| 안성병원인테리어 최신트렌드 반영한 세련된 디자인의 내과 공사후기 (0) | 2025.05.08 |
| 통증의학과인테리어 진료과목 특화 병의원 디자인 전문 업체 시공 포트폴리오 (0) | 2025.04.23 |
| 수액실 인테리어 내과 병원에 꼭 필요한 공간 디자인 (0) | 2025.04.23 |
| 비뇨기과인테리어 편안한 진료 환경 조성 병원 디자인 (0) | 2025.04.22 |
| 영상의학과인테리어 병원 공간 연출도 전문업체에게 맡겨야 하는 이유 (0) | 2025.04.22 |
- Total
- Today
- Yesterday
- 회사인테리어
- 3D디자인
- 사무실인테리어잘하는곳
- 사무실인테리어공사
- 오피스인테리어
- 인테리어
- 상가인테리어
- 사무실인테리어업체
- 학원인테리어디자인
- 미용실인테리어
- 사무실인테리어
- 헬스장인테리어
- 916디자인
- 피티샵인테리어
- 사무실인테리어견적
- 사무실인테리어비용
- 사무실인테리어후기
- 학원인테리어
- 인테리어디자인
- 사무실디자인
- 사무실인테리어전문
- 지식산업센터인테리어
- 사무실리모델링
- interior
- 사무실인테리어디자인
- 헤어샵인테리어
- 사무실인테리어추천
- 3D사무실인테리어
- 인천사무실인테리어
- 병원인테리어
| 일 | 월 | 화 | 수 | 목 | 금 | 토 |
|---|---|---|---|---|---|---|
| 1 | 2 | 3 | 4 | 5 | 6 | |
| 7 | 8 | 9 | 10 | 11 | 12 | 13 |
| 14 | 15 | 16 | 17 | 18 | 19 | 20 |
| 21 | 22 | 23 | 24 | 25 | 26 | 27 |
| 28 | 29 | 30 | 31 |




