티스토리 뷰
목차
최근 대구 지역의 상권 변화와 함께 상가라는 공간의 개념이 급격히 변화고 있습니다.
과거에는 단순히 물건을 팔거나 서비스를 제공하는 장소에 불과했다면, 이제는 브랜딩과 업무 효율의 결합으로 이동하고 있는데요.
특히, 상가 건물 내에 사무실 공간을 함께 배치해야 하는 복합 공간의 프로젝트의 경우, 동선 분리와 공간의 목적성을 명확히 하는 것이 무엇보다 중요합니다.
그래서 이번 글에서는 대구상가인테리어 사례를 통해 사무실 복합 공간 설계 전략 3가지를 실제 프로젝트 진행 과정과 함께 심층적으로 분석해 드리겠습니다.
대구상가인테리어 첫 번째 전략: 정교한 3D 디자인

대구상가인테리어의 시작이자 가장 중요한 단계는 바로 시각화입니다.
머릿속으로만 그리던 이미지를 실제 수치와 질가믕로 구현하는 3D 디자인 단계에서 모든 리스크를 제거해야 합니다.
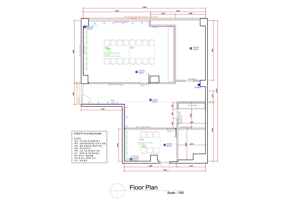
상가와 사무실이 공존하는 공간은 층고와 기둥의 위치에 따라 개방감이 확연히 달라지기에 저희는 대구 현장을 실측한 후, 오차 없는 도면을 바탕으로 3D 모델링을 진행합니다.


이때, 클라이언트께서 가장 궁금해하시는 동선을 시뮬레이션 하는데, 손님이 방문하는 상업 구역과 직원들이 집중해야 하는 사무 구역이 겹치지 않도록 동선을 분리하는 것이 핵심입니다.
그리고 텍스처와 컬러감은 조명 아래에서 전혀 다르게 보일 수 있습니다.
3D 렌더링 단계에서 대구의 강한 햇빛이 들어오는 창가 쪽 좌석과 안쪽 어두운 공간의 조도 차이를 계산하여 조명 배치를 확정합니다.
이는 추후 발생할 수 있는 재시공 비용을 0원에 가깝게 줄여주는 경제적 전략이기도 합니다.
대구상가인테리어 두 번째 전략: 정밀한 시공 작업



디자인이 확정되었다면 이제는 현실로 구현할 차례인데, 대구상가인테리어 현장에서는 변수가 많습니다.
특히, 오래된 상가 건물이 많은 대구 도심권에서는 설비와 전기 기초 작업이 승패를 가릅니다.
그래서 저희는 철거 단계부터 건물의 노후도를 체크합니다.
사무실 공간에 필요한 수많은 전자기기 전력 부하를 계산하여 전기 승압 및 배선 공사를 선행합니다.



그리고 상가 공간의 탕비실이나 화장실 배수 설비는 층간 소음과 누수 방지를 위해 이중 점검을 원칙으로 합니다.
공간의 뼈대를 잡는 목공 작업은 대구상가인테리어의 퀄리티를 결정짓습니다.
사무 공간의 소음을 차단하기 위한 흡음재 삽입, 상업 공간의 진열장을 위한 보강 작업 등 보이지 않는 벽면 안쪽까지 매뉴얼대로 시공합니다.


그리고 대구 지역의 숙련된 기술자들과 협력하며, 실시간으로 공정을 체크합니다.
'내 집을 짓는다'는 마음가짐이 없으면 결코 하이엔드 퀄리티의 결과물은 나올 수 없습니다.
시공 중간중간 클라이언트께 현장 사진과 진행 상황을 공유하여 심리적인 안심까지 설계해 드립니다.
대구상가인테리어 세 번째 전략: 사무실 완공 디테일


모든 공정이 마무리된 대구상가인테리어 현장을 공개합니다.
이번 프로젝트의 핵심은 '코스메틱 브랜드의 깨끗한 이미지'와 '업무의 효율성'을 한 공간에 녹여내는 것이었습니다.
사진을 통해 구체적인 설계 포인트와 완공 디테일을 살펴보겠습니다.






상가인테리어의 퀄리티는 마감에서 결정됩니다. 바닥은 오염에 강하면서도 차분한 그레이 톤의 데코타일을 시공하여 상부의 화이트 톤을 안정감 있게 받쳐줍니다.
시스템 에어컨과 화재 감지기, 스피커 등을 천장 라인에 맞춰 대칭으로 배치하여 시각적 노이즈를 제거했습니다.
벽면은 친환경 수성 도장 공법을 사용하여 가까이서 보았을 때도 매끄러운 질감을 자랑하며, 새집증후군 없는 쾌적한 사무실 환경을 조성했습니다.







이번 현장에서 가장 먼저 눈에 띄는 것은 공간 전체의 분위기를 지배하는 민트 컬러의 포인트 월입니다.
대구상가인테리어 사무실시공 시, 무채색 위주의 사무실은 자칫 지루함을 줄 수 있습니다.
그래서 저희는 브랜드 로고인 'DEWYTREE'의 색감을 벽면에 과감하게 적용하여 공간에 생동감을 불어넣었습니다.




민트와 티파니 블루 사이의 오묘한 컬러감은 방문객에게는 청량함과 신뢰감을, 직원들에게는 창의적인 영감을 제공합니다.
천장의 슬림 라인 조명과 매립등이 민트 벽면에 반사되도록 설계하여, 별도의 장식 없이도 공간이 꽉 차 보이는 효과를 주었습니다.







이번 사무실 인테리어의 핵심은 '유리'의 활용입니다.
공간을 벽으로 완전히 막아버리면 답답함을 유발할 수 있기에, 통유리 가벽을 설치하여 시각적 개방감을 확보했습니다.
회의실과 외부 홀을 유리로 구분하되, 프라이버시가 필요한 시점에는 화이트 블라인드를 내려 즉각적으로 독립된 공간을 만들 수 있도록 했습니다.







금속 프레임을 최소화한 시공법을 통해 마치 벽이 없는 듯한 투명함을 연출했으며, 이는 좁은 면적을 넓어 보이게 만드는 최고의 기술적 전략입니다.
그리고 코스메틱 브랜드인 만큼, 제품이 돋보여야 하는 쇼룸 공간에 가장 많은 공을 들였습니다. 벽면 전체를 활용한 매립형 진열장은 이번 현장의 하이라이트라고 할 수 있습니다.
각 선반 칸마다 고휘도 LED 간접 조명을 매립하여 제품 하나하나가 주인공처럼 보이도록 연출했습니다.
화이트 유광 마감재와 조명이 만나 화장품 패키지의 색감을 더욱 선명하게 부각시킵니다.
하단은 여닫이 도어를 설치한 수납장으로 구성하여, 재고 물품이나 사무용품을 깔끔하게 숨길 수 있도록 실용성을 높였습니다.
상단은 유리 도어를 장착해 먼지 유입을 방지하면서도 전시 효과는 극대화했습니다.
또, 중앙에는 10인 이상이 동시에 회의할 수 있는 대형 화이트 테이블을 배치했습니다.
이는 단순한 회의 공간을 넘어 제품 품평회나 외부 업체와의 미팅 시 브랜드의 규모감을 보여주는 장치가 됩니다.
이번 프로젝트를 통해 증명했듯, 대구상가인테리어는 독창적인 3D 디자인, 철저한 시공 관리, 그리고 목적에 부합하는 완공 퀄리티가 삼박자를 이룰 때 비로소 최고의 가치를 창출합니다.
상가와 사무실이라는 복합적인 과제를 안고 계신 대구의 많은 대표님들, 이제는 고민을 확신으로 바꿀 때입니다.
이처럼 여러분의 꿈이 실현되는 그 공간을 위해, 저희가 가장 든든한 조력자가 되어 드리겠습니다.
더 구체적인 포트폴리오나 견적 문의가 필요하시다면 언제든 아래 연락처로 상담 요청해 주시기 바랍니다.
📞상담문의📞
010-3235-8427
🔽포트폴리오 더보기🔽
사무실인테리어 디자인 공사 비용견적 플랫폼 - 사무실인테리어 916
사무실인테리어 916
916er.com
2026.02.26 - [사무실인테리어] - 사무실공사 대형평수 인테리어의 핵심은 레이아웃과 동선 설계입니다
사무실공사 대형평수 인테리어의 핵심은 레이아웃과 동선 설계입니다
신규 사옥으로의 이전이나 대규모 확장을 앞두고 진행하는 사무실공사는 단순한 인테리어 이상의 의미를 갖습니다. 특히 100평 이상의 대형평수 인테리어의 경우 공간이 넓어지는 만큼 관리해
dopamine7.com
2026.02.25 - [사무실인테리어] - 사무실원상복구 기준 임대인도 만족한 싱크트리 오피스 철거 및 원스톱 공정 사례
사무실원상복구 기준 임대인도 만족한 싱크트리 오피스 철거 및 원스톱 공정 사례
오피스 이전이나 계약 만료를 앞두고 가장 신경 쓰이는 부분이 바로 사무실원상복구 기준을 맞추는 일입니다. 단순히 짐을 빼는 것을 넘어, 임대차 계약 당시의 상태로 안전하고 깔끔하게 되돌
dopamine7.com
2026.02.13 - [사무실인테리어] - 사무실배치도 최적화 제안 | 플랜테리어와 효율적 동선의 조화로운 오피스 시공 사례
사무실배치도 최적화 제안 | 플랜테리어와 효율적 동선의 조화로운 오피스 시공 사례
기업의 정체성을 시각적으로 투영하고 직원들의 잠재된 창의력을 끌어내는 전략적인 비즈니스 허브로 진화 중인 사무실! 특히 외부 고객이 방문했을 때 기업의 첫인상을 결정짓는 파사드 디자
dopamine7.com
2025.12.19 - [사무실인테리어] - 상가사무실인테리어 시공 시 꼭 확인해야 할 조명 & 가벽 레이아웃 완벽 정리
상가사무실인테리어 시공 시 꼭 확인해야 할 조명 & 가벽 레이아웃 완벽 정리
안녕하세요! 여러분의 비즈니스 공간에 가치를 더하는 인테리어 전문 파트너, 구일육디자인입니다. 최근 업무 환경이 기업의 정체성을 나타내는 중요한 요소로 자리 잡으면서, 사무 공간이 브
dopamine7.com
'사무실인테리어' 카테고리의 다른 글
| 사무실공사 대형평수 인테리어의 핵심은 레이아웃과 동선 설계입니다 (0) | 2026.02.26 |
|---|---|
| 사무실원상복구 기준 임대인도 만족한 싱크트리 오피스 철거 및 원스톱 공정 사례 (0) | 2026.02.25 |
| 부동산사무실인테리어 계약률 높이는 화이트 미니멀 공인중개사 오피스의 3가지 설계 원칙 (0) | 2026.02.24 |
| 사무실배치도 공간의 효율이 곧 전문성! 화이트&딥블루로 완성한 법무법인 오피스 레이아웃 추천 (0) | 2026.02.23 |
| 회사인테리어 감성 디자인으로 사옥 사무실 브랜드 이미지 효과적으로 강화하기 (0) | 2026.02.23 |
| 사무실배치도 최적화 제안 | 플랜테리어와 효율적 동선의 조화로운 오피스 시공 사례 (0) | 2026.02.13 |
| 의정부인테리어업체 사무실 '쉼'과 '일'의 조합 뷰(View)를 품은 카페형 오피스 갤러리 (0) | 2026.02.11 |
| 부동산 사무실 인테리어 비용 평당 얼마? 공인중개사 니즈를 담은 맞춤형 소형 오피스 시공건 (0) | 2026.02.10 |
- Total
- Today
- Yesterday
- 병원인테리어
- 사무실리모델링
- 인테리어
- 사무실인테리어견적
- 916디자인
- 사무실인테리어디자인
- 회사인테리어
- 피티샵인테리어
- 사무실인테리어업체
- 사무실인테리어잘하는곳
- 지식산업센터인테리어
- 상가인테리어
- 오피스인테리어
- 사무실인테리어비용
- 미용실인테리어
- 사무실인테리어
- 사무실인테리어후기
- 사무실인테리어공사
- 학원인테리어디자인
- 인테리어디자인
- 학원인테리어
- 헤어샵인테리어
- 사무실인테리어추천
- interior
- 사무실디자인
- 3D디자인
- 사무실인테리어전문
- 인천사무실인테리어
- 3D사무실인테리어
- 헬스장인테리어
| 일 | 월 | 화 | 수 | 목 | 금 | 토 |
|---|---|---|---|---|---|---|
| 1 | 2 | 3 | 4 | 5 | 6 | 7 |
| 8 | 9 | 10 | 11 | 12 | 13 | 14 |
| 15 | 16 | 17 | 18 | 19 | 20 | 21 |
| 22 | 23 | 24 | 25 | 26 | 27 | 28 |
| 29 | 30 | 31 |








