티스토리 뷰
목차
기업의 정체성을 시각적으로 투영하고 직원들의 잠재된 창의력을 끌어내는 전략적인 비즈니스 허브로 진화 중인 사무실!
특히 외부 고객이 방문했을 때 기업의 첫인상을 결정짓는 파사드 디자인부터, 내부 구성원들의 업무 몰입도를 결정하는 동선 설계까지, 사무실배치도를 어떻게 기획하느냐에 따라 기업의 전체적인 분위기와 성과가 완전히 달라지곤 하죠.
오늘은 저희 916디자인의 세련된 템바보드 포인트와 싱그러운 플랜테리어가 조화를 이루며, 개방감 있는 유리 가벽으로 효율적인 동선을 완성한 프리미엄 오피스 인테리어 시공 사례를 아주 상세하게 소개해 드리려고 합니다.
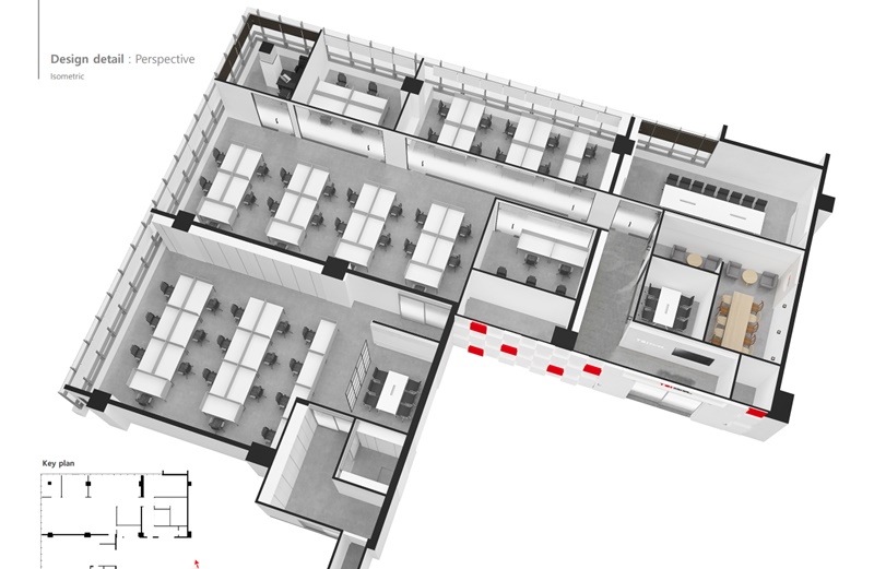
사무실배치도 3D 디자인 가이드


본격적인 철거와 시공에 앞서 진행된 디자인 설계 단계에서는 한정된 면적 내에서 공간 활용도를 극대화하는 데 모든 역량을 집중했습니다.
클라이언트와의 심도 있는 미팅을 통해 부서 간의 협업 빈도와 개인 업무의 독립성을 면밀히 분석하였고, 이를 바탕으로 막힘 없는 시야를 확보하면서도 각 실의 프라이버시를 지킬 수 있는 최적의 사무실배치도를 3D 시뮬레이션으로 구현했답니다.




전체적인 컨셉은 '모던 내추럴'로 설정하여 화이트 톤의 깔끔한 베이스 벽체에 따뜻한 질감의 우드 템바보드를 포인트 요소로 매치했습니다.
이를 통해 자칫 차갑게 느껴질 수 있는 오피스 공간에 아늑한 온기를 불어넣었죠.




또한 조명이 은은하게 매립된 다단 선반과 하단의 고정식 조경 공간을 설계에 포함시켜, 시각적인 심미성은 물론 실내 공기 질 개선까지 고려한 '바이오필릭(Biophilic)' 디자인의 정석을 보여주는 설계를 확정 지었습니다.
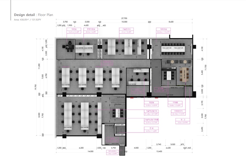
사무실배치도 완성된 공간 디테일


모든 공정이 마무리된 후 마주한 오피스는 감각적인 디자인 요소와 실용적인 동선이 완벽하게 어우러진 프리미엄 공간으로 거듭났습니다. 각 공간별 시공 특징을 하나씩 짚어보며 전문가의 시선을 공유해 드릴게요.



가장 먼저 시선이 닿는 곳은 업체의 얼굴인 파사드입니다.
입체적인 세로 결이 살아있는 화이트 템바보드 벽면은 빛의 각도에 따라 풍부한 그림자를 만들어내며 고급스러운 질감을 자랑합니다.




그 중심에는 백라이트가 적용된 'TSI Korea' 로고가 은은하게 발광하며 방문객들에게 신뢰감 있는 기업 이미지를 전달하죠.
벽면 우측에는 매립형 니치 공간을 설계하여 향후 디지털 사이니지나 홍보물을 배치할 수 있도록 사무실배치도 기획 단계에서부터 미래의 확장성을 고려했습니다.



복도를 따라 내부로 들어오면 이번 시공의 하이라이트인 아트 월 공간이 나타납니다.
부드러운 우드 톤 패널 위로 간접 조명이 내장된 화이트 선반들을 불규칙하게 배치하여 세련된 갤러리 같은 느낌을 주었죠.





특히 선반 하단에 길게 조성된 플랜테리어 공간은 삭막한 사무실에 생명력을 불어넣습니다.
이는 단순한 장식이 아니라, 이동하는 직원들이 자연스럽게 식물을 접하며 스트레스를 낮추고 심리적 안정감을 얻을 수 있도록 계산된 사무실배치도의 결과물입니다.



본격적인 업무가 이뤄지는 연구소와 사무 공간은 투명 유리 가벽을 적극적으로 활용했습니다.
'기술연구소'와 같은 핵심 부서는 프레임리스 유리를 통해 공간을 분리하면서도 시각적으로는 전체 공간과 소통할 수 있게 하여 답답함을 완전히 제거했습니다.


다만 업무 시의 집중력을 저해하지 않도록 유리 가벽 중앙부에 안개 시트지를 부착해 적절한 시선 차단 효과를 주었죠.
노출 천장의 거친 느낌과 세련된 라인 조명의 조화는 현대적인 산업 디자인의 멋을 잘 보여줍니다.



대회의실은 기업의 글로벌한 성장을 상징하는 세계지도 타공판을 벽면 전체에 배치해 임팩트를 주었습니다.
지도 내부에서 새어 나오는 은은한 조명은 회의실의 품격을 한 단계 높여주죠.




반대편에는 아이디어 회의 시 유용하게 사용할 수 있는 대형 글라스 보드와 템바보드 디자인을 혼합하여 기능성과 심미성을 모두 충족시켰습니다.
창가 쪽으로 배치된 넓은 창과 정돈된 사무실배치도 덕분에 탁 트인 시야를 확보하여, 보다 유연하고 창의적인 의사결정이 가능한 환경을 조성했습니다.


가장 핵심적인 디자인 요소는 블랙 프레임의 격자무늬 유리 파티션인데, 이는 시야를 완전히 차단하지 않으면서도 공간을 효율적으로 분리해 사무실 전체에 탁 트인 개방감을 부여합니다.
특히 파티션 중앙부에 안개 시트를 부착하여 시각적인 리듬감을 주는 동시에 업무에 필요한 적절한 프라이버시를 확보한 점이 돋보입니다.




공간의 완성도는 디테일한 벽면 마감과 조명 계획에서 차별화됩니다.
회의 공간의 메인 벽면은 세로 결이 살아있는 화이트 템바보드로 시공하고, 그 상하단에 은은한 간접 조명을 매립하여 기업 로고가 돋보이는 입체적인 포인트 월을 완성했습니다.
또한, 수납장과 선반이 위치한 벽면에는 부드러운 그레이 베이지 톤의 벽돌 타일을 매치해 자칫 차가워 보일 수 있는 사무 공간에 카페 같은 아늑하고 편안한 무드를 더했습니다.









직원들의 만족도가 가장 높은 공간인 카페테리아는 별도의 독립된 공간으로 구획되었습니다.
상단에 설치된 'cafeteria' 네온 사인과 그 위의 플랜트 박스는 이 공간의 정체성을 명확히 해줍니다.
블랙 무광 싱크대와 그레이 톤의 서브웨이 타일은 오염에 강하면서도 모던한 분위기를 자아내며, 벽면의 큐브형 벽등은 아늑한 카페 분위기를 연출하죠.
이곳은 단순히 커피를 마시는 곳을 넘어, 부서 간 경계를 허물고 자유로운 소통이 일어나는 전략적 공간으로 배치되었습니다.







성공적인 오피스 인테리어의 본질은 결국 그 공간을 사용하는 '사람'을 향해야 합니다.
사용자 중심의 정교한 사무실배치도 위에 플랜테리어라는 자연의 요소와 템바보드 같은 감각적인 소재가 덧입혀질 때, 비로소 기업과 직원이 함께 성장하는 생동감 넘치는 터전이 완성됩니다.
저희의 이번 시공 사례처럼 효율과 디자인, 그리고 복지까지 모두 담아낸 스마트 오피스 시공을 통해 여러분의 비즈니스 가치를 한층 더 높여보시기 바랍니다.
916디자인의 세심한 설계, 공간의 변화는 곧 기업의 경쟁력이 될 것이니 궁금한 점이 있다면 언제든 문의 주세요!
☎️ 공사문의 ☎️
010 -3235- 8427
📷 포트폴리오 더보기 📷
https://916er.com/
사무실인테리어 디자인 공사 비용견적 플랫폼 - 사무실인테리어 916
사무실인테리어 916
916er.com
2026.02.10 - [사무실인테리어] - 부동산 사무실 인테리어 비용 평당 얼마? 공인중개사 니즈를 담은 맞춤형 소형 오피스 시공건
부동산 사무실 인테리어 비용 평당 얼마? 공인중개사 니즈를 담은 맞춤형 소형 오피스 시공건
최근 공인중개사법 개정이나 시장 변화로 인해 오프라인 객장의 신뢰도가 어느 때보다 중요해졌는데요. 그래서인지 많은 대표님께서 부동산 사무실 인테리어 비용에 대해 문의를 주고 계십니
dopamine7.com
2026.02.04 - [사무실인테리어] - 로비인테리어 전문, 외부 파사드부터 첫인상을 장악하는 압도적 커스터마이징 월의 힘
로비인테리어 전문, 외부 파사드부터 첫인상을 장악하는 압도적 커스터마이징 월의 힘
기업의 첫인상을 결정짓는 가장 중요한 공간은 어디일까요? 고객이나 파트너사가 방문했을 때 가장 먼저 마주하게 되는 외부 파사드와 로비인테리어는 그 기업의 전문성과 비전을 시각적으로
dopamine7.com
2025.12.31 - [사무실인테리어] - 강남인테리어업체추천 세련된 라운지와 간접 조명이 매력적인 IT 기업 사무실 시공 사례
강남인테리어업체추천 세련된 라운지와 간접 조명이 매력적인 IT 기업 사무실 시공 사례
감각적인 디자인과 정교한 시공으로 공간의 가치를 더하는 오피스 인테리어 전문, 구일육디자인입니다. 최근 많은 기업이 단순한 업무 공간을 넘어 기업의 정체성을 담고 직원들의 창의력을 자
dopamine7.com
'사무실인테리어' 카테고리의 다른 글
| 사무실원상복구 기준 임대인도 만족한 싱크트리 오피스 철거 및 원스톱 공정 사례 (0) | 2026.02.25 |
|---|---|
| 부동산사무실인테리어 계약률 높이는 화이트 미니멀 공인중개사 오피스의 3가지 설계 원칙 (0) | 2026.02.24 |
| 사무실배치도 공간의 효율이 곧 전문성! 화이트&딥블루로 완성한 법무법인 오피스 레이아웃 추천 (0) | 2026.02.23 |
| 회사인테리어 감성 디자인으로 사옥 사무실 브랜드 이미지 효과적으로 강화하기 (0) | 2026.02.23 |
| 의정부인테리어업체 사무실 '쉼'과 '일'의 조합 뷰(View)를 품은 카페형 오피스 갤러리 (0) | 2026.02.11 |
| 부동산 사무실 인테리어 비용 평당 얼마? 공인중개사 니즈를 담은 맞춤형 소형 오피스 시공건 (0) | 2026.02.10 |
| 사무실 레이아웃 도면 설계를 기반으로 시공 계획 세우기 (0) | 2026.02.06 |
| 사무실인테리어전문 층고를 활용한 라인 조명 설계, 갤러리 같은 워크플레이스의 완성 (0) | 2026.02.04 |
- Total
- Today
- Yesterday
- 사무실인테리어
- 헤어샵인테리어
- 헬스장인테리어
- 미용실인테리어
- 사무실인테리어후기
- 사무실인테리어공사
- 인천사무실인테리어
- 사무실인테리어견적
- 사무실인테리어업체
- 상가인테리어
- 학원인테리어
- 사무실인테리어추천
- 사무실리모델링
- 3D사무실인테리어
- 학원인테리어디자인
- 사무실인테리어디자인
- interior
- 인테리어디자인
- 3D디자인
- 916디자인
- 병원인테리어
- 사무실인테리어비용
- 사무실디자인
- 회사인테리어
- 지식산업센터인테리어
- 오피스인테리어
- 사무실인테리어전문
- 사무실인테리어잘하는곳
- 인테리어
- 피티샵인테리어
| 일 | 월 | 화 | 수 | 목 | 금 | 토 |
|---|---|---|---|---|---|---|
| 1 | 2 | |||||
| 3 | 4 | 5 | 6 | 7 | 8 | 9 |
| 10 | 11 | 12 | 13 | 14 | 15 | 16 |
| 17 | 18 | 19 | 20 | 21 | 22 | 23 |
| 24 | 25 | 26 | 27 | 28 | 29 | 30 |
| 31 |
