티스토리 뷰
목차
사업을 처음 시작하거나 사무실 이전을 할 때 많은 고민을 하게 됩니다.
그 중 하나가 사무실 레이아웃일 것 입니다.
업무의 효율성과 직원들의 편의성을 고려하여 사무실 레이아웃을 설계해야 하는데요.
이를 위해서는 사무실 레이아웃 도면을 작성해야 하는데, 이 도면을 바탕으로 시공 계획을 세울 수 있습니다.
그래서 이번 글에서는 사무실 레이아웃 도면 설계를 기반으로 시공 계획 세우는 방법에 대해서 알려드리겠습니다.
사무실 레이아웃 도면 설계 고려사항



사무실 레이아웃은 공간 활용 방식을 결정하는 중요한 요소로서 업무 효율성과 직원들의 업무 만족도에 큰 영향을 미칩니다.
사무실 레이아웃 도면을 설계할 때 고려해야 할 주요 사항들은 다음과 같습니다.
각 부서나 팀의 업무 특성을 파악하여 그에 맞는 공간 구성을 해야 합니다.
예를 들어, 집중 업무가 필요한 부서에는 독립된 공간을 제공하고, 협업이 필요한 부서에는 오픈된 공간을 제공하는 것이 좋습니다.



그리고 직원들의 이동 동선을 최소화하여 업무 효율성을 높일 수 있는데, 이를 위해 가구 배치, 출입구 위치, 창문 위치 등을 고려해야 합니다.
또, 제한된 공간을 최대한 활용하려면 수납공간 확보, 벽면 활용, 천장 높이 조절 등 다양한 방법을 활용해야 합니다.
조명과 환기 시설은 업무 환경에 큰 영향을 미치므로 충분히 고려해야 합니다.
자연광을 최대한 활용하고, 어두운 곳에는 추가 조명을 설치하며, 환기 시설을 적절히 배치하여 쾌적한 실내 환경을 유지해야 합니다.




더불어 사무실에서는 안전사고가 발생할 수 있으므로 안전성을 최우선으로 고려해야 합니다.
비상구 위치, 소화기 배치, 화재 예방 시설 등을 꼼꼼히 확인해야 합니다.
마지막으로 시간이 지남에 따라 사무실 레이아웃은 변경될 수 있으므로 유지보수가 용이한 구조로 설계되어야 합니다.
분해와 조립이 쉬운 가구를 선택하거나, 모듈식 구조를 도입하는 것이 좋은 방법입니다.
사무실 레이아웃 도면 작성 기본 원칙



사무실 레이아웃 도면은 공간을 최대한 효율적으로 활용할 수 있도록 설계해야 합니다.
이를 위해서는 공간의 크기와 형태, 가구 배치 등을 고려해야 하며, 불필요한 공간을 최소화하고, 공간을 최대한 활용할 수 있는 방법을 모색해야 합니다.





또한, 직원들의 업무 효율성을 높일 수 있도록 설계해야 합니다.
이를 위해서는 직원들의 동선을 고려하여 가구를 배치하고, 업무 공간과 휴식 공간을 적절히 구분해야 합니다.
특히, 소음 차단 및 환기 시설 등을 적절하게 설치해야 합니다.






그리고 사용자의 편의성을 고려하여 설계해야 합니다.
사용자의 신체적 특성과 취향을 고려하여 가구를 선택하고, 조명, 온도, 습도 등을 적절하게 조절할 수 있는 시스템을 구축해야 합니다.
마지막으로 안전사고를 예방할 수 있도록 설계해야 하는데, 이를 위해서는 화재 예방 시설, 비상구, 소화기 등을 충분히 설치하고, 전기나 가스 시설 등을 안전하게 관리해야 합니다.
사무실 레이아웃 도면 시공 계획 세우기



사무실 레이아웃 도면 설계를 시작하기 전에 공간 분석과 요구 사항 파악이 선행되어야 합니다.
이를 통해 실제 공간의 크기, 형태, 구조 등을 파악하고, 회사의 요구 사항과 목표를 고려하여 최적의 레이아웃을 설계할 수 있습니다.
현장 조사를 통해 실제 공간의 크기, 형태, 구조, 주변 환경 등을 파악하여 공간의 장단점을 파악하고, 문제점을 미리 예측하여 해결책을 모색할 수 있습니다.






회사의 요구 사항과 목표를 파악합니다.
이 단계에서는 인원 수, 업무 유형, 장비 및 기기 종류, 보안 요구 사항, 예산 등을 고려해야 하며, 이러한 정보를 바탕으로 사무실 레이아웃 도면 설계 방향을 설정할 수 있습니다.
그리고 고객과의 협의를 통해 최종 레이아웃 도면을 확정합니다.
이때 고객의 의견을 적극적으로 수렴하여 원하는 결과를 얻을 수 있도록 노력해야 합니다.
시공 업체를 선정할 때는 신뢰성, 전문성, 가격 경쟁력 등을 고려해야 합니다.
충분한 검토 후 적합한 업체를 선정하여 시공 계약을 체결합니다.
시공 일정을 계획할 때는 공사 기간, 인력 수급, 자재 조달 등을 고려해야 하는데, 체계적인 일정 관리를 통해 원활한 시공 진행을 도모할 수 있습니다.






사무실 레이아웃 도면 설계를 할 때 디자인 콘셉트와 테마를 설정하는 것은 매우 중요합니다.
이는 사무실의 분위기와 이미지를 결정하며, 직원들의 업무 효율성과 만족도에도 영향을 미칩니다.
먼저, 콘셉트는 회사의 정체성, 비전, 목표 등을 고려하여 설정합니다.
예를 들어, 창의적인 아이디어를 강조하는 회사라면 자유로운 분위기의 디자인 콘셉트로 설정할 수 있습니다.






테마는 컬러, 소재, 조명 등을 활용하여 표현합니다.
예를 들어, 자연 친화적인 테마로 설정한다면 녹색 계열의 컬러와 목재 소재를 활용하고, 자연광을 최대한 활용하는 조명 계획을 세울 수 있습니다.
이렇게 디자인 콘셉트와 테마를 설정하면 일관된 디자인 요소를 적용할 수 있어 통일감 있는 사무실을 만들 수 있습니다.
또한, 이렇게 만들어진 사무실은 직원들의 창의성과 생산성을 높이는 데 도움이 됩니다.




이처럼 사무실 레이아웃 도면 설계 후에는 설계 내용을 검토하고, 시공에 필요한 자재와 인력 등을 파악합니다.
그리고 안전사고 예방을 위한 대책을 마련하고, 공사 현장에서 근로자들의 안전을 최우선으로 고려해야 합니다.
정기적으로 안전 교육을 실시하고, 안전 장비를 제공하며, 사고 발생 시 신속하게 대처할 수 있는 시스템을 구축해야 합니다.
이렇게 사무실 레이아웃 도면 설계를 기반으로 시공 계획 세우는 방법에 대해서 알아봤습니다.
단순히 공간을 나누는 것이 아니라 업무의 효율성과 편의성을 고려해서 설계해야 한다는 점을 잊지 마시기 바랍니다.
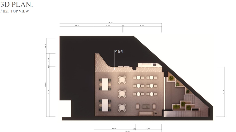
그리고 3D 모델링을 통해서 미리 확인해 보는 것도 좋은 방법이니 참고하시기 바랍니다.
이와 관련하여 더 궁금한 점이나 도움이 필요하시면 언제든지 저희에게 문의해 주시기 바랍니다.
📞상담문의📞
010-3235-8427
🔽포트폴리오 더보기🔽
사무실인테리어 디자인 공사 비용견적 플랫폼 - 사무실인테리어 916
사무실인테리어 916
916er.com
2026.02.04 - [사무실인테리어] - 사무실인테리어전문 층고를 활용한 라인 조명 설계, 갤러리 같은 워크플레이스의 완성
사무실인테리어전문 층고를 활용한 라인 조명 설계, 갤러리 같은 워크플레이스의 완성
새로운 비즈니스의 시작을 알리는 공간은 그 기업의 정체성을 담아내는 그릇과도 같기에 신중한 선택이 필요하답니다. 이번에 저희 구일육디자인이 진행한 프로젝트는 영상과 음향 제작 판매
dopamine7.com
2026.01.30 - [사무실인테리어] - 구로구인테리어업체 대형 사무실 로비 디자인부터 회의실까지, 원스톱 맞춤 설계 솔루션
구로구인테리어업체 대형 사무실 로비 디자인부터 회의실까지, 원스톱 맞춤 설계 솔루션
여러분의 사무실은 단순한 일터 이상의 의미를 가지고 있습니다. 고객과 협력자들이 처음 만나게 되는 공간인 로비부터 신뢰를 쌓는 회의실까지, 사무실 환경은 업무의 성과에 큰 영향을 미칠
dopamine7.com
2026.01.15 - [사무실인테리어] - 평택인테리어업체 잘하는곳 효율적인 사무실 공간 구성 및 디자인 제안
평택인테리어업체 잘하는곳 효율적인 사무실 공간 구성 및 디자인 제안
근래 창업 열풍이 불면서 많은 분들이 사무실 오픈을 준비하고 계신데요. 이때, 가장 중요하게 고려해야 할 부분 중 하나가 바로 인테리어입니다. 사무실 인테리어는 업무 효율성을 높이는 것은
dopamine7.com
2025.09.29 - [사무실인테리어] - 사무실배치도 3D설계 작업 인테리어 시공에 꼭 필요한 이유
사무실배치도 3D설계 작업 인테리어 시공에 꼭 필요한 이유
사무실은 단순한 업무 공간을 넘어 직원의 창의성과 효율성을 극대화하는 중요한 장소로 잘 알려져 있습니다. 하지만 사무실 환경이 우리의 생산성에 미치는 영향은 생각보다 큰데요. 그래서
dopamine7.com
'사무실인테리어' 카테고리의 다른 글
| 사무실인테리어전문 층고를 활용한 라인 조명 설계, 갤러리 같은 워크플레이스의 완성 (0) | 2026.02.04 |
|---|---|
| 로비인테리어 전문, 외부 파사드부터 첫인상을 장악하는 압도적 커스터마이징 월의 힘 (0) | 2026.02.04 |
| 구로구인테리어업체 대형 사무실 로비 디자인부터 회의실까지, 원스톱 맞춤 설계 솔루션 (0) | 2026.01.30 |
| 의왕인테리어업체 브랜딩 강화를 위한 맞춤형 사무실 시공 사례 (0) | 2026.01.28 |
| 구로인테리어업체 혁신 솔루션, 사무실 효율성과 디자인을 동시에 (0) | 2026.01.27 |
| 오피스인테리어 편안함 속에 빛나는 전문성을 담은 노무법인 사무실 디자인 가이드 (0) | 2026.01.26 |
| [대전인테리어업체] 컬러의 힘! 강렬한 블루 진입부와 딥그린 미팅룸으로 완성한 오피스 디자인 (0) | 2026.01.26 |
| 부동산사무실인테리어 비용 절감 노하우? 세련된 공인중개사 레이아웃이 돋보이는 현장 사진 (1) | 2026.01.22 |
- Total
- Today
- Yesterday
- 사무실인테리어전문
- 사무실디자인
- 피티샵인테리어
- interior
- 사무실인테리어비용
- 헤어샵인테리어
- 상가인테리어
- 사무실인테리어공사
- 사무실인테리어추천
- 사무실인테리어디자인
- 미용실인테리어
- 헬스장인테리어
- 사무실리모델링
- 학원인테리어
- 회사인테리어
- 3D디자인
- 인천사무실인테리어
- 오피스인테리어
- 3D사무실인테리어
- 사무실인테리어잘하는곳
- 인테리어
- 인테리어디자인
- 사무실인테리어후기
- 학원인테리어디자인
- 병원인테리어
- 사무실인테리어견적
- 지식산업센터인테리어
- 916디자인
- 사무실인테리어업체
- 사무실인테리어
| 일 | 월 | 화 | 수 | 목 | 금 | 토 |
|---|---|---|---|---|---|---|
| 1 | 2 | 3 | 4 | 5 | 6 | 7 |
| 8 | 9 | 10 | 11 | 12 | 13 | 14 |
| 15 | 16 | 17 | 18 | 19 | 20 | 21 |
| 22 | 23 | 24 | 25 | 26 | 27 | 28 |






