티스토리 뷰
목차
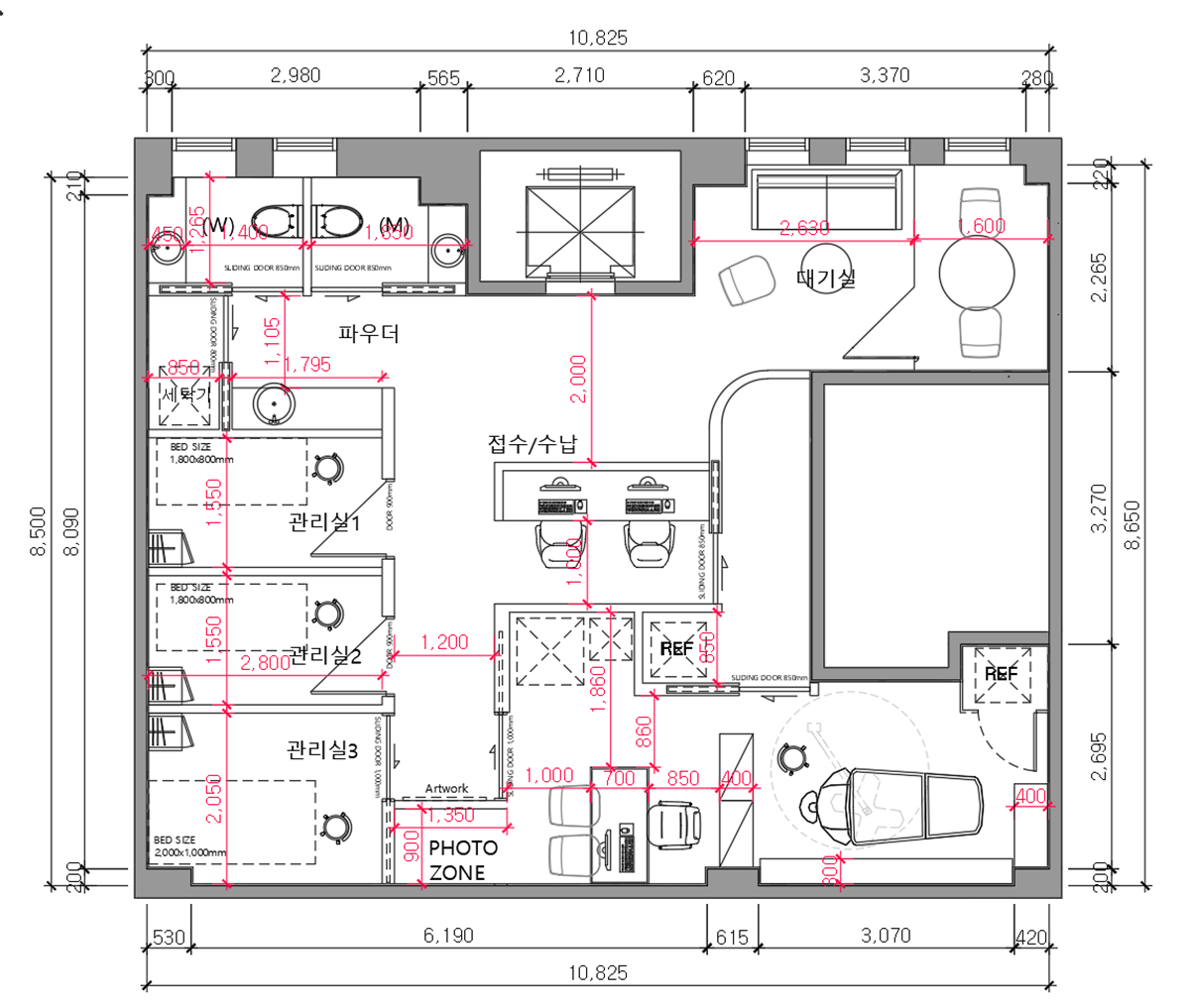
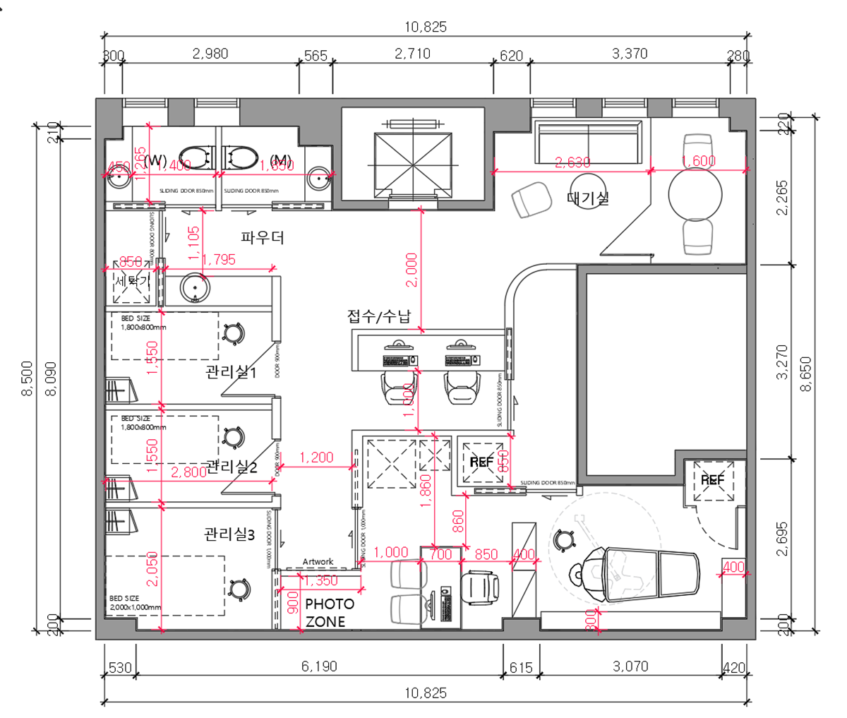
대치동은 서울에서도 특히 피부과 병원이 밀집해 있는 지역으로 유명합니다
.
다양한 피부 고민을 가진 사람들이 찾아오는 이곳에서,
병원인테리어는 단순한 공간 이상의 의미를 지니고 있습니다.
환자들은 치료를 받기 위해 병원을 방문하지만, 그 과정에서 느끼는 편안함과 안정감은 인테리어에 크게 영향을 받죠.
대치동병원인테리어는 환자의 심리적 안정과 치료 효과에 중요한 역할을 합니다.
오늘은 대치동 피부과 병원의 인테리어가 어떻게 구성되고,
어떤 요소들이 환자에게 긍정적인 영향을 미치는지에 대해 살펴보려 합니다.
대치동병원인테리어 환자중심의 디자인과 청결과 위생을 고려한 디자인

대치동병원인테리어는 환자 중심의 디자인이 핵심입니다.
환자들이 편안하게 느낄 수 있도록 공간을 구성하는 것이 가장 중요하죠.
예를 들어, 대기실은 넓고 쾌적하게 설계되어야 합니다.
다양한 좌석 옵션과 아늑한 조명은 환자가 긴장을 풀고 편안하게 대기할 수 있도록 도와줍니다.
또한, 대기실에서 볼 수 있는 자연 요소나 식물들은 마음의 안정감을 주는 데 큰 도움이 돼요.


병원 내부의 치료실 또한 환자의 편안함을 고려해 디자인됩니다.
치료를 받는 동안 환자가 느끼는 불안감을 최소화하기 위해,
따뜻한 색감의 벽지와 조명, 그리고 부드러운 가구가 배치되죠.
이러한 요소들이 환자에게 안정감을 주어 치료에 더 집중할 수 있도록 도와준답니다.


피부과 병원에서 청결과 위생은 무엇보다도 중요합니다.
대치동병원인테리어는 이러한 점을 고려하여 인테리어를 설계하죠.
바닥재나 벽재는 청소가 용이하고, 세균 번식이 적은 소재로 선택되며, 손쉽게 관리할 수 있는 구조로 되어 있습니다.


또한, 환자들이 자주 접촉하는 부분은 항균 처리가 되어 있는 경우가 많습니다.
이렇게 청결과 위생을 고려한 디자인은 환자들에게 신뢰감을 주고,
치료에 대한 긍정적인 인식을 심어주는 데 큰 역할을 합니다.
대치동병원인테리어 자연채광 활용과 색상 선택의 심리적 효과

자연 채광은 대치동 피부과 병원의 인테리어에서 빼놓을 수 없는 요소입니다.
충분한 자연광이 들어오는 공간은 환자에게 긍정적인 기분을 주고, 스트레스를 줄이는 데 효과적이에요.
대기실이나 치료실에 큰 창을 두어 외부의 자연 풍경을 바라볼 수 있도록 하면,
환자들은 치료 대기 중에도 마음의 여유를 찾을 수 있습니다.



또한, 자연광은 실내의 공기 질에도 긍정적인 영향을 미치죠.
햇빛이 들어오면 실내가 밝아지고, 환기 효과가 높아져 청결한 환경을 유지할 수 있습니다.
이런 점에서 자연 채광은 건강한 피부 치료에 기여하는 중요한 요소라고 할 수 있답니다.

색상은 인테리어에서 매우 중요한 역할을 해요.
대치동병원인테리어에서는 환자의 심리적 안정감을 고려하여 부드러운 색조를 선택하는 경향이 있습니다.
예를 들어, 파스텔 톤의 색상은 편안함을 주고, 긴장을 완화하는 효과가 있죠.
이러한 색상들은 병원의 전반적인 분위기를 부드럽고 아늑하게 만들어 줍니다.

또한, 색상은 공간의 크기와 느낌을 조절하는 데도 큰 영향을 미쳐요.
밝은 색상은 공간을 넓어 보이게 하고, 어두운 색상은 아늑함을 더해 줄 수 있어요.
따라서 대치동병원인테리어에서는 환자들이 편안하게 느낄 수 있도록 색상을 신중하게 선택하고 있답니다.
대치동병원인테리어 기능성과 미적요소의 조화 그리고 공간 활용의 효율성

대치동병원인테리어는 기능성과 미적 요소의 조화가 잘 이루어져 있습니다..
치료를 위한 공간은 물론, 환자들이 대기하는 공간도 기능적으로 잘 설계되어야 하죠.
예를 들어, 대기실에 있는 책이나 잡지, 음료 코너는 환자들이 편안하게 대기할 수 있도록 도와주는 기능을 합니다.



미적 요소 또한 환자들에게 긍정적인 경험을 제공합니다.
예쁜 인테리어 소품이나 그림은 공간을 더욱 아늑하게 만들어 주고,
환자들에게 좋은 기억으로 남을 수 있도록 해요.
이렇게 기능성과 미적 요소가 조화롭게 결합된 인테리어는 환자들의 만족도를 높이는 데 큰 역할을 합니다.




대치동피부과병원에서는 공간 활용의 효율성도 중요한 요소예요.
제한된 공간에서 최대한의 효율을 끌어내기 위해, 각 공간의 용도를 명확히 하고,
불필요한 요소를 최소화하는 방향으로 인테리어가 진행됩니다.
예를 들어, 대기실과 상담실이 서로 연결되어 있어 환자들이 이동하는 데 불편함이 없도록 설계되기도 해요.



또한, 공간을 효율적으로 활용하기 위해 가구 배치나 수납 공간도 신경 쓰여야 해요.
환자들이 편안하게 대기할 수 있도록 충분한 공간을 확보하면서도,
의료진이 필요한 장비나 자료를 효율적으로 관리할 수 있는 구조를 갖추는 것이 중요하답니다.
대치동피부과병원에서는 환자와의 소통을 중요시합니다.
이를 위해 상담 공간이나 치료실은 환자가 의료진과 편안하게 대화할 수 있도록 설계되어야 해요.
예를 들어, 상담 공간은 비공식적인 느낌이 드는 인테리어로 꾸며져 환자가 마음을 열고 이야기할 수 있도록 도와줍니다.


또한, 의료진이 환자의 이야기를 잘 들을 수 있는 공간 배치는 환자와의 신뢰를 쌓는 데 큰 도움이 됩니다.
이러한 소통 공간의 중요성은 환자의 치료 만족도를 높이고, 병원에 대한 긍정적인 이미지를 형성하는 데 기여하죠.

대치동피부과인테리어에서는 최신 기술과 인테리어의 융합이 이루어지고 있습니다.
디지털 기기와 인테리어가 조화를 이루어 환자들에게 더 나은 경험을 제공하는 것이죠.
예를 들어, 전자 대기 시스템이나 모바일 예약 시스템은 환자들이 대기 시간을 줄이고,
편리하게 병원을 이용할 수 있도록 도와줍니다.



또한, 최신 의료 장비와 대치동병원인테리어가 잘 어우러지면, 병원에 대한 신뢰감도 높아진답니다.
환자들은 최신 기술이 적용된 병원에서 치료를 받는 것이 더 안전하고 효과적이라고 느끼게 되죠.
이러한 기술과 인테리어의 융합은 대치동 피부과 병원이 환자들에게 높은 만족도를 제공하는 비결 중 하나입니다.





대치동피부과병원인테리어는 환자에게 편안함과 안정감을 주는 데 중점을 두고 설계되었어요.
환자 중심의 디자인, 자연 채광, 색상 선택, 청결과 위생, 기능성과 미적 요소의 조화 등
다양한 요소들이 조화를 이루어 환자들의 치료 경험을 향상시키고 있죠.
이러한 인테리어는 단순한 미적 요소를 넘어, 환자의 심리적 안정과 치료 효과에 긍정적인 영향을 미친답니다.



또한, 공간 활용의 효율성, 환자와의 소통을 위한 공간,
최신 기술과 인테리어의 융합 등은 대치동 피부과 병원이 환자들에게 신뢰를 주고,
만족도를 높이는 데 큰 기여를 하고 있어요.
병원인테리어는 단순히 공간을 꾸미는 것이 아니라, 환자들의 경험을 향상시키고,
치료의 질을 높이는 중요한 요소라는 점에서 매우 의미 있는 작업이에요.
앞으로도 대치동피부과병원이 환자들에게 더욱 나은 환경을 제공하기 위해 지속적으로 발전해 나가길 기대해요.
☎ 공사문의 ☎
010 - 3235 - 8427
포트폴리오 더보기
▼
사무실인테리어 디자인 공사 비용견적 플랫폼 - 사무실인테리어 916
사무실인테리어 916
916er.com
2024.12.12 - [병원인테리어] - 한의원인테리어 우드디자인 컨셉을 반영한 한방병원 포트폴리오
한의원인테리어 우드디자인 컨셉을 반영한 한방병원 포트폴리오
한의원인테리어 우드디자인 컨셉 적용 최근 다양한 진료 과목의 병의원들이 개원을 준비하고 있습니다.그 중에서도 한의원은 현대인들의 관심이 증가하면서 수요가 많아지고 있는데요. 한
dopamine7.com
2024.12.11 - [병원인테리어] - 병원전문인테리어 환자와 의료진이 원하는 의료환경디자인을 시공한 사례
병원전문인테리어 환자와 의료진이 원하는 의료환경디자인을 시공한 사례
병원은 단순히 치료를 받는 공간이 아니라, 환자와 그 가족이 안심하고 회복할 수 있는 환경을 제공해야 하는 곳입니다. 그래서 병원전문인테리어는 단순히 아름다움을 넘어, 기능성과 안
dopamine7.com
2024.12.04 - [병원인테리어] - 양재병원인테리어 편안함을 제공하는 정신건강의학과 디자인추천
양재병원인테리어 편안함을 제공하는 정신건강의학과 디자인추천
병원은 단순히 치료를 받는 곳이 아니라, 환자와 가족이 안락함과 신뢰를 느낄 수 있는 공간이어야 합니다.특히 양재병원은 그 지역 주민들에게 오랜 역사를 가지고 있는 의료기관으로, 많은
dopamine7.com
2024.12.03 - [병원인테리어] - 역삼병원인테리어 깨끗한 이미지의 피부과의원 포트폴리오
역삼병원인테리어 깨끗한 이미지의 피부과의원 포트폴리오
역삼병원인테리어 첫인상을 결정하는 피부과 디자인 최근 다양한 병원 업종 중에서도 피부과의원 개원이 많아지고 있습니다.그만큼 경쟁이 치열하기 때문에 차별화된 인테리어와 마케팅 전략
dopamine7.com
2024.12.04 - [병원인테리어] - 구리병원인테리어 트렌드에 현대적인 감각을 더한 피부과 포트폴리오
구리병원인테리어 트렌드에 현대적인 감각을 더한 피부과 포트폴리오
최근 병원 인테리어 디자인에서는 미니멀리즘과 모던한 스타일이 인기를 끌고 있습니다. 이러한 트렌드는 공간을 깔끔하고 넓어 보이게 만들어 주며, 환자들에게 편안하고 안정감 있는 분위기
dopamine7.com
'병원인테리어' 카테고리의 다른 글
| 성형외과인테리어 및 피부과 병원 디자인 모던 럭셔리 컨셉 시공 사례 (1) | 2024.12.26 |
|---|---|
| 한의원인테리어 재개원을 위한 병원 리모델링 부분공사 (1) | 2024.12.24 |
| 개포동병원인테리어 심신의 안정을 치유할 수 있는 정신의학과 포트폴리오 (0) | 2024.12.16 |
| 신사동병원인테리어 친환경소재를 활용한 맞춤 소아과 의원 디자인 (0) | 2024.12.16 |
| 상암병원인테리어 환자에게 안정감을 주는 산부인과 디자인 추천 (1) | 2024.12.13 |
| 한의원인테리어 우드디자인 컨셉을 반영한 한방병원 포트폴리오 (2) | 2024.12.12 |
| 병원인테리어전문 업체가 추천하는 치과 시공 디자인 포트폴리오 (1) | 2024.12.11 |
| 병원인테리어공사 아이들이 좋아하는 소아과 디자인 성공 사례 모음 (0) | 2024.12.11 |
- Total
- Today
- Yesterday
- 사무실인테리어후기
- 지식산업센터인테리어
- 헬스장인테리어
- 3D디자인
- 916디자인
- 사무실인테리어공사
- 피티샵인테리어
- 인테리어
- 사무실인테리어잘하는곳
- 학원인테리어
- 오피스인테리어
- 회사인테리어
- 사무실인테리어업체
- 사무실인테리어
- 사무실인테리어견적
- 사무실디자인
- 사무실인테리어디자인
- 병원인테리어
- 상가인테리어
- 사무실리모델링
- 사무실인테리어추천
- 3D사무실인테리어
- 헤어샵인테리어
- 미용실인테리어
- 학원인테리어디자인
- 사무실인테리어비용
- 인천사무실인테리어
- 사무실인테리어전문
- interior
- 인테리어디자인
| 일 | 월 | 화 | 수 | 목 | 금 | 토 |
|---|---|---|---|---|---|---|
| 1 | 2 | 3 | 4 | |||
| 5 | 6 | 7 | 8 | 9 | 10 | 11 |
| 12 | 13 | 14 | 15 | 16 | 17 | 18 |
| 19 | 20 | 21 | 22 | 23 | 24 | 25 |
| 26 | 27 | 28 | 29 | 30 |




