티스토리 뷰
목차
안녕하세요. 916 디자인입니다. 
다 같은 사무실처럼 보여도 업종에 따라 
인테리어 컬러, 소재, 조명을 달리하여 
그 공간에 힘을 부여해야 합니다. 
이번에 문정동사무실인테리어 30평대 
법무법인 사무실 인테리어 시공 사례를 
보여드리면서 설명해 드리겠습니다.
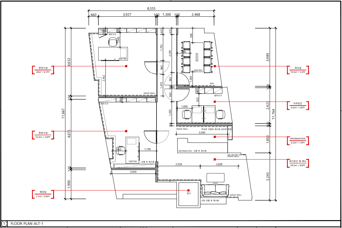
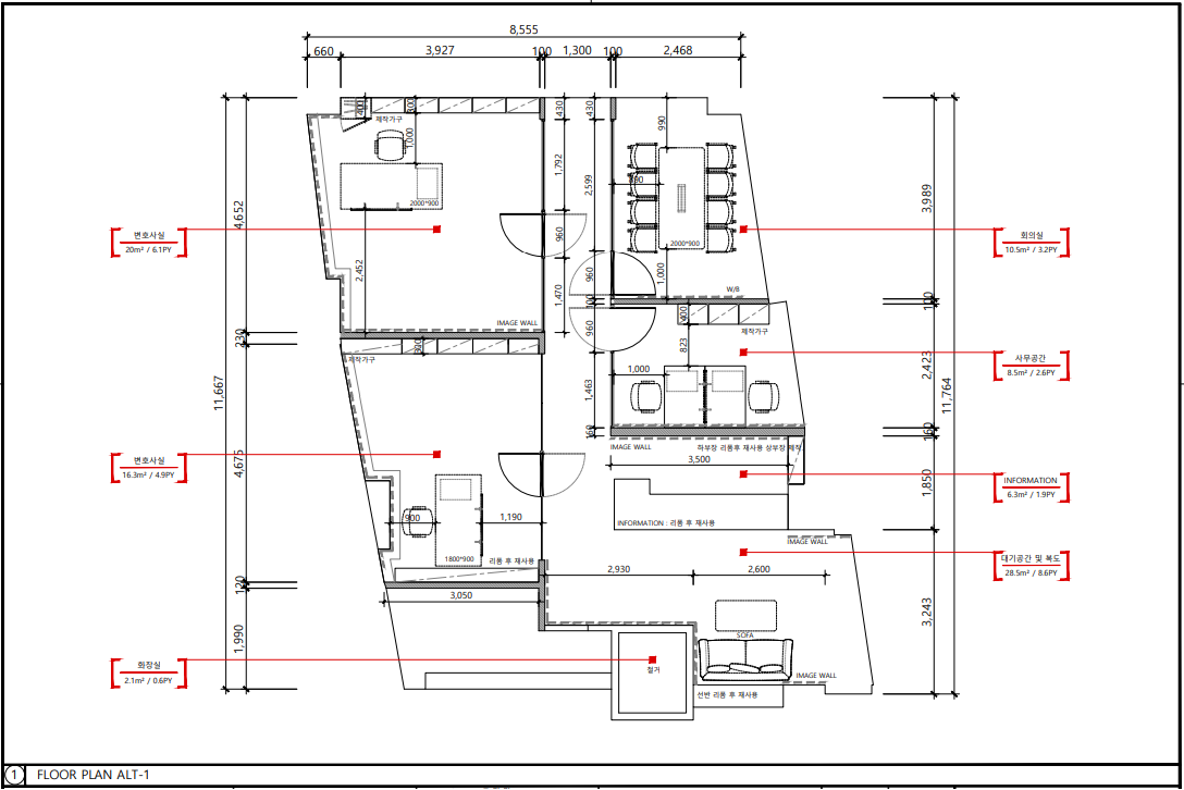
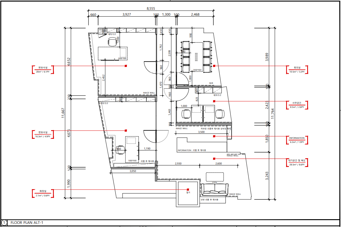
문정동사무실인테리어 3D 디자인 시안

2D 평면도를 그리면서 전체 공간을 어떻게 
활용할지 구상하는 과정을 거칩니다. 
크게 7개의 레이아웃으로 변호사실 2개, 
회의실, 사무공간, 리셉션, 복도, 화장실로 
구상하였으며 방문객이 많다는 법무법인 
특성을 고려하여 배치했습니다.

화이트 톤을 배경 삼아 무채색의 무난한 
색감을 쓰면서 조명과 포인트 컬러를 
활용하자는 방식으로 디자인 방향을 잡습니다. 
3D 프로그램을 사용하여 클라이언트와 
회의하면서 뺄 것은 빼고 더할 것은 더하며 
충분한 의논하는 시간을 가집니다.

아무래도 한번 시공에 들어가면 수정하기 
난감하게 되므로 가능하면 시간이 오래 
걸리더라도 사전 미팅과 도안 작성에 최대한 
심혈을 기울여 완벽을 도모하고 있습니다.

저희 916 디자인은 전문직 사무소 인테리어 
시공 경험을 다수 보유하고 있어서 
포트폴리오와 함께 3D 프로그램을 소개해 
드리면 흔쾌히 믿고 맡겨주시는 편입니다.


기존에 작업한 결과물을 보고 완성도나 
디자인, 디테일과 심미성에 만족하시고 
저희를 신뢰하게 되었다고 하시는데요.


그 심리의 밑바탕에는 916 디자인이 
직접 시공한 그 공간에 자연스럽게 
드러나는 전문성, 신뢰도에 나 또한 
그 업체와 거래하고 싶게 만드는 
요소들이 분명히 작용했다고 봅니다.

저희는 공간 인테리어가 사람 심리와 
행동에 영향을 미치는 힘을 믿으며 
작은 요인도 신경 써서 디자인합니다. 
클라이언트께도 그런 요소들을 제안하면서 
결과적으로 만족도 높은 시공을 진행합니다.

클라이언트의 요청과 저희의 의견과 
창의력을 조합하여 최고의 인테리어 결과로 
보답해 드리고 있으며, 3D 도안까지 완벽히 
컨펌이 떨어진 후 본격적인 시공에 착수합니다.
문정동사무실인테리어 시공 완료 사진

이번 법무법인 사무실의 아이덴티티 컬러는 
블루였고, 입구 파사드에도 해당 색상으로 
포인트를 주어 디자인을 진행했습니다.
채광이 잘 들어오는 구조가 아니기에 
입구 도어 상단에 다운 라이트로 공간을 
밝히면서 화사함을 더해 드렸습니다.

사무실 입장 후 바로 보이는 리셉션은 
이곳의 첫인상을 결정짓는 중요한 곳입니다. 
간접 조명등을 곳곳에 설치하여 은은하면서 
세련된 분위기를 살려드렸습니다. 
리셉션 테이블은 베이지 계열의 타일을 
부착하여 고급스럽게 연출했습니다.

우물천장 디자인으로 돌출형 라인 조명을 
둘러 환하게 공간을 밝히는 것도 잊지 않습니다.  
법무법인 사무실에 발걸음하는 고객은 중대사를  
논의하기 위해 방문하기에 긴장감을  
내려놓을 수 있도록 신경 썼습니다. 
리셉션 맞은편에는 신뢰를 주기 위한  
법무법인 사무소 관련 상패를  
전시하기 위한 선반을 작업했습니다.
문정동사무실인테리어 공간의 힘



이번 현장은 평수가 넓지 않은 만큼 
글라스월로 사무공간을 효율적으로 
분리하면서 업무공간을 배치했습니다.
집무실의 경우 천장 라인 조명을 사용하여  
회의실과 디자인적으로 통일감을  
더하면서도 좀 더 부드러운 조명과 
중후함이 느껴지는 가구를 배치하였습니다.

직원 업무공간은 색감을 더 빼면서도 
다운 라이트를 사용해 더 밝은 조명으로 
집중력을 높일 수 있도록 구상했습니다. 
전체적으로 천장은 우물형으로 통일하여 
각각 다른 분위기 속에서도 통일감을 주어 
어색함이 느껴지지 않도록 신경 썼습니다.

탕비실에도 수납공간이 많이 보입니다. 
법률사무소 특성상 서류를 보관할 장소가 
많이 필요한데 한정된 공간에서 최대한의 
수납 효율을 끌어내기 위해 모든 요소를 
활용할 수 있도록 신경 써서 설계했습니다.

외부 간판도 저희가 직접 제작해 드렸습니다. 
916 디자인은 외부 간판부터 싱크대, 전기,  
수도 등 인테리어에 대한 모든 부분을 맡아서  
진행해 드리고 있으니 한 번에  
믿고 맡겨주시면 되겠습니다.

건물 외벽 간판은 회사 아이덴티티 컬러를 
사용하여 눈에 잘 들어오도록  
배치 및 디자인해 드렸습니다.
전체적으로 통일감 있는 분위기에서 
독특한 구조의 건물과 제한된 공간  
속에서도 최대한의 효율과 디자인,  
신뢰감 있는 요소를 배치함으로써  
공간이 주는 힘을 살려서 시공하고 있습니다.
공간 인테리어에 도움을 받고 싶으시다면  
언제든지 편하게 문의해 주시기를 바랍니다.
공사문의 010-3235-8427 
▼▼▼▼포트폴리오 더보기▼▼▼▼
사무실인테리어 디자인 공사 비용견적 플랫폼 - 사무실인테리어 916
사무실인테리어 916
916er.com
2024.06.21 - [사무실인테리어] - 분당사무실인테리어 경쟁력있게
분당사무실인테리어 경쟁력있게
분당사무실인테리어 경쟁력있게 안녕하세요, 근래 들어 사무실을 확장하면서 더 넓은 공간을 효율적으로 쓰기 위해 인테리어를 결정하시는 분들이 많은데요. 인테리어는 공간 구
dopamine7.com
2024.06.15 - [사무실인테리어] - 개포동 사무실인테리어 최적의 능률을 위한
개포동 사무실인테리어 최적의 능률을 위한
개포동 사무실인테리어 최적의 능률을 위한 안녕하세요,916디자인입니다. 인테리어 디자인을 하면서 여러 컨셉과 다양한 업종을 진행해 왔지만 신뢰성이 가장 드러나야 하며 공간
dopamine7.com
2024.05.09 - [사무실인테리어] - 강동구인테리어 풍부한 경험을 바탕으로
강동구인테리어 풍부한 경험을 바탕으로
강동구인테리어 3D디자인 시안 사무실 인테리어는 아마도 많은 대표님이 항상 갖고 있는 대표적인 고민거리일 것 같습니다. 사무실은 많은 직원들이 하루 동안 상주하며 근무하는
dopamine7.com
'사무실인테리어' 카테고리의 다른 글
| 마포인테리어 홍대의 분위기를 느끼다 (0) | 2024.06.30 | 
|---|---|
| 일산사무실인테리어 컨셉과 연출디자인 (0) | 2024.06.29 | 
| 목동인테리어업체 분위기에 취하다 (0) | 2024.06.29 | 
| 과천사무실인테리어 회사의 포커스를 (0) | 2024.06.29 | 
| 인천사무실인테리어 전문적인 현장감으로 (0) | 2024.06.28 | 
| 청라인테리어 신속 정확하게 공사를 합니다. (0) | 2024.06.28 | 
| 광교사무실인테리어 일하는 즐거움 (0) | 2024.06.28 | 
| 여의도사무실인테리어 업무공간의 레이아웃 (1) | 2024.06.27 | 
- Total
 
- Today
 
- Yesterday
 
- 사무실인테리어추천
 - interior
 - 3D사무실인테리어
 - 사무실인테리어전문
 - 사무실인테리어업체
 - 3D디자인
 - 학원인테리어
 - 헤어샵인테리어
 - 인테리어
 - 병원인테리어
 - 학원인테리어디자인
 - 회사인테리어
 - 사무실인테리어
 - 사무실디자인
 - 헬스장인테리어
 - 916디자인
 - 피티샵인테리어
 - 사무실인테리어잘하는곳
 - 지식산업센터인테리어
 - 사무실인테리어공사
 - 사무실인테리어비용
 - 사무실인테리어견적
 - 미용실인테리어
 - 오피스인테리어
 - 인천사무실인테리어
 - 사무실리모델링
 - 사무실인테리어후기
 - 인테리어디자인
 - 사무실인테리어디자인
 - 상가인테리어
 
| 일 | 월 | 화 | 수 | 목 | 금 | 토 | 
|---|---|---|---|---|---|---|
| 1 | ||||||
| 2 | 3 | 4 | 5 | 6 | 7 | 8 | 
| 9 | 10 | 11 | 12 | 13 | 14 | 15 | 
| 16 | 17 | 18 | 19 | 20 | 21 | 22 | 
| 23 | 24 | 25 | 26 | 27 | 28 | 29 | 
| 30 | 
