티스토리 뷰
목차
과천사무실인테리어 회사의 포커스를
안녕하세요. 916 디자인입니다.
회사 인테리어를 할 때는 무엇보다
업무에 최적화된 공간을 디자인하는 데
모든 포커스를 맞춰야 합니다.
어떤 평수와 규모, 건물의 구조에도
인테리어 전문가로서 회사의 모습을
갖출 수 있도록 시공하고 있는데요.
오늘은 과천사무실인테리어에서 진행한
회사 인테리어를 소개해 드리겠습니다.
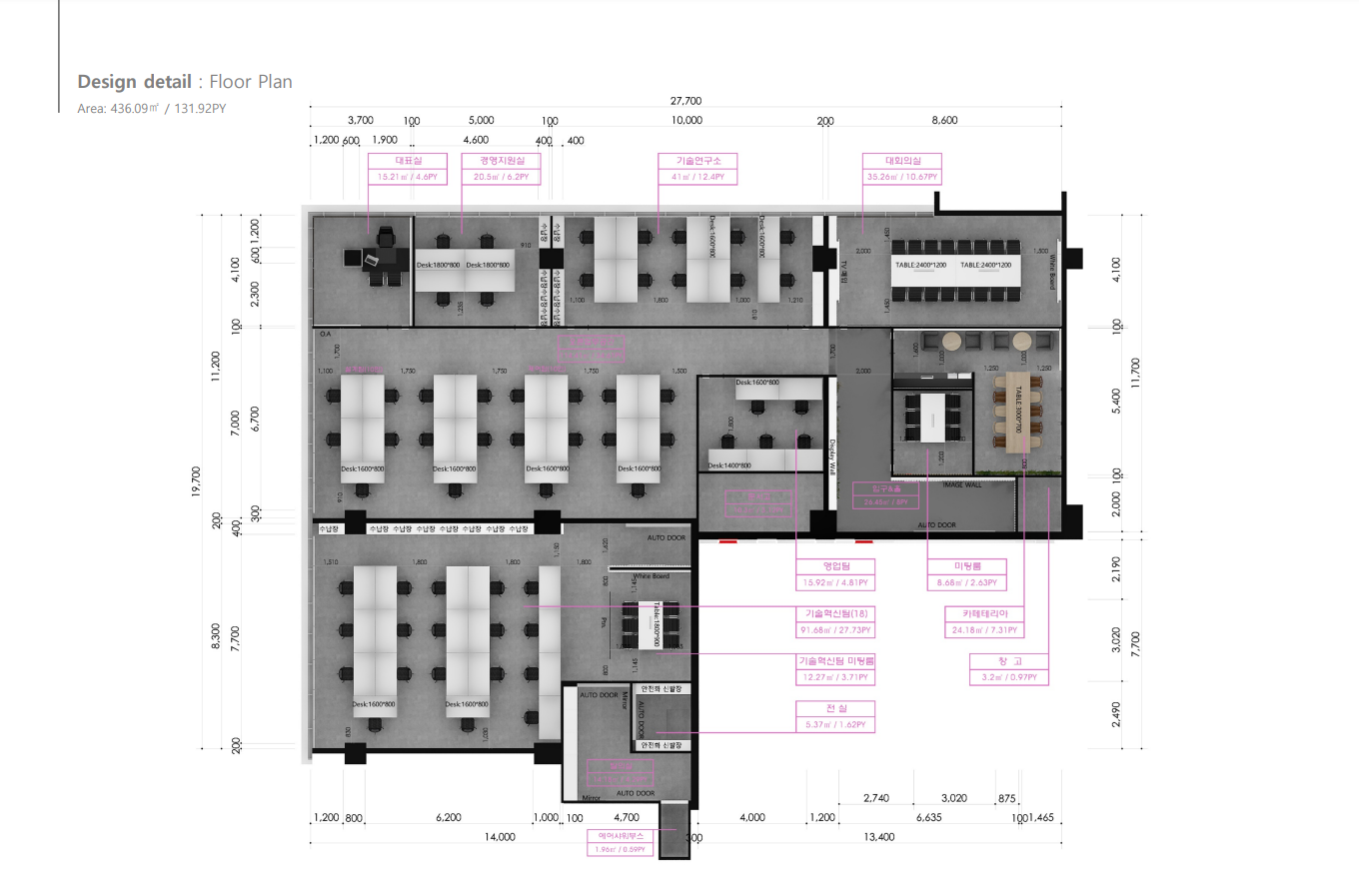
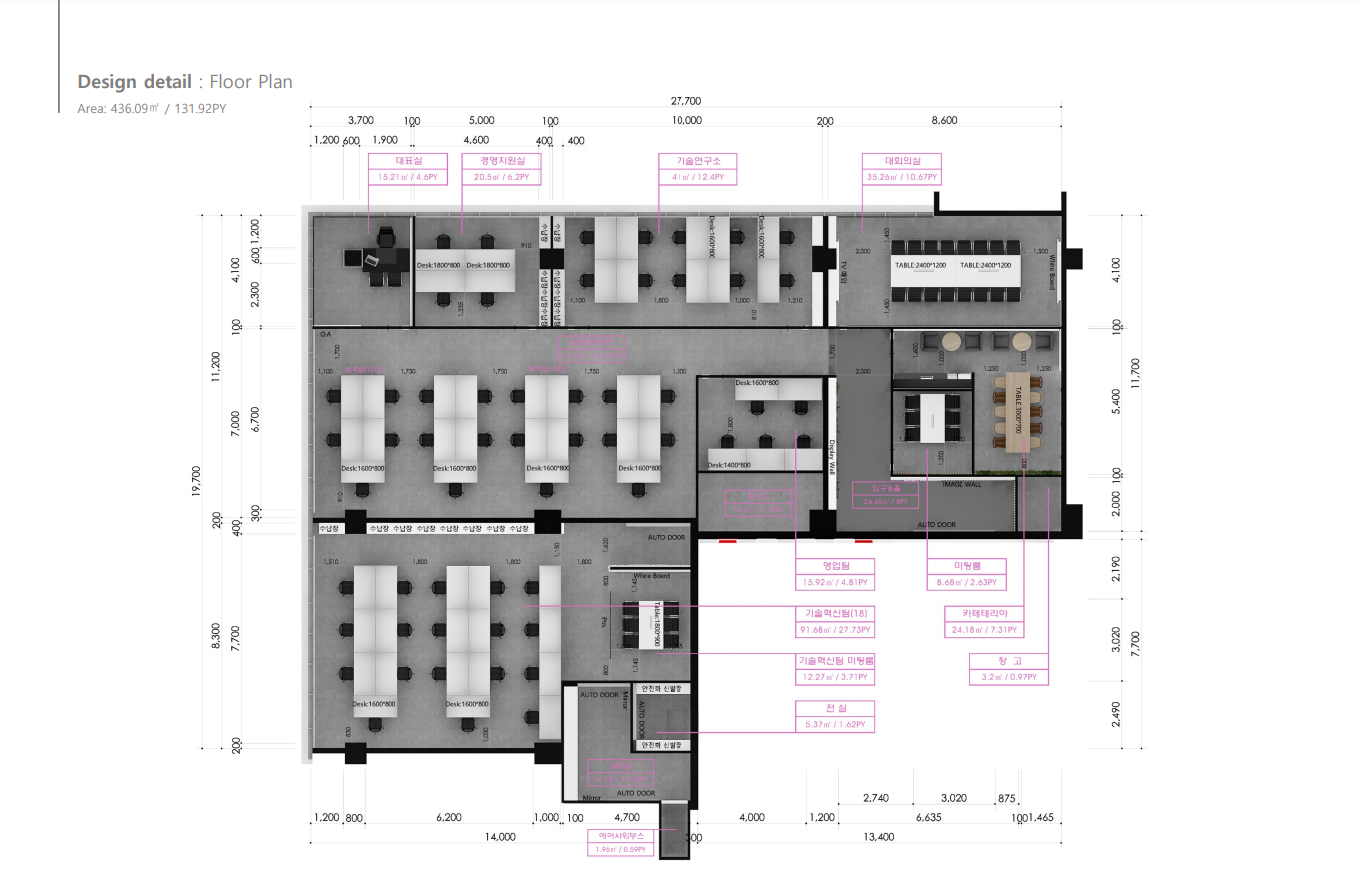
과천사무실인테리어 3D 디자인

저희 916 디자인은 고객님이 의뢰하신
현장을 효과적으로 이해하고 재구성하기
위해 3D 프로그램으로 디자인합니다.

통상적으로 회사에는 데스크와 의자,
PC가 설치된 개인 업무 지정석과
미팅룸, 카페테리아, 대표실, 창고로
공간을 구성하게 됩니다.

이번 과천사무실인테리어는 130여 평의
대형 사무실이라는 특성이 있는데요.
회사 규모가 큰 만큼 여러 팀으로 짜여
있고 업무 공간도 나눠야 했습니다.

출입구, 카페테리아, 회의실은 다 같이 공유하기
때문에 각 팀원분이 이동할 때 동선이
편리하도록 고려하여 디자인했습니다.

전체적으로 무채색의 깔끔한 컬러를
사용하고 플랜테리어로 생동감을
부여하면서 기업 대표 이미지인 레드를
곳곳에 배치하여 포인트를 주었습니다.
과천사무실인테리어 시공 현장 사진

이번 과천사무실인테리어는 주차장과
연결된 드라이브인 구조였습니다.
아무 시공도 되어있지 않은 상태에서는
주차장에 창고 문처럼 아무런 존재감이
없어 보였기 때문에 외부 파사드 디자인에
더욱 신경을 집중해 작업하기로 했습니다.

사무실 내부로 들어오면 통창으로 채광이
들어오는 넓고 쾌적한 공간이 나옵니다.
완전한 공실에 새로 입주하는 것이어서
철거나 청소 작업을 생략할 수 있었죠.

가장 먼저 이 넓은 공간을 분리할 수 있는
가벽을 세우는 작업을 진행하게 됩니다.
목조로 기본 뼈대를 세우고 석고보드를
덧대어 설계하는 방식을 택했는데요.

회사가 넓은 만큼 필요한 자재들을 원활히
수급하도록 사전에 준비를 완료했습니다.
현장에서는 도안에 맞추어 실측하고
부지런하게 목공 작업을 진행합니다.

층고가 높은 이번 현장에서는 특수 장비를
동원하여 냉방 시설과 조명 설치 작업을
안전하고 신속하게 수행하였습니다.

자동문을 따로 설치하여서 누구나
오가기 편리하게 하였고,
외부 파사드에 기업 아이덴티티를 표현했습니다.
과천사무실인테리어 시공 완료 사진

과천사무실인테리어 시공 완료
현장을 보여드리도록 하겠습니다.
외부에서도 회사 위치를 한눈에 알아볼 수
있도록 외부 창에 로고가 나타나는
인테리어 필름을 시공했습니다.

외부 파사드에는 아크릴 소재의 스카시
사인물을 설치해 드렸습니다.
밋밋하고 삭막하던 주차장 공간에
강렬한 회사 이미지가 눈에 띄어
클라이언트가 만족해하셨습니다.

내부 아트월은 루버 디자인으로 자연스럽고
화사한 이미지를 연출해 드렸어요.
업무공간으로 진입하는 복도 부분에는
선반에 기업 관련 오브젝트를 전시할 수
있게 장식 공간을 만들어 드렸으며,
플랜테리어를 배치하여 생동감을 더했습니다.


각 내부 공간에는 업무 보안 유지를 위해
절반가량을 시트지로 보호했습니다.
화이트보드는 백 페인트 글라스로
마무리하여 군더더기 없이 배치했고요.

휴게 공간인 카페테리아는 싱크대를
직접 제작해 드렸는데요.
전체적으로 화이트 & 이지 톤으로
꾸며진 업무 공간에 포인트를 주기 위해
사용한 블랙 컬러를 싱크대 전체에 입혀
조화로운 느낌을 살려내었습니다.

카페테리아 공간 역시 플랜테리어를
통해 분위기를 전환해 드렸고요.

층고가 높은 데다 배관 노출형이라
허전하고 삭막해 보일 수 있기에
사각형 라인 등으로 공간을 채우면서
세련된 느낌을 구현했습니다.

대표실은 기둥에 석고보드로 장식하여
은은한 분위기를 연출하면서 매립 조명으로
세련된 느낌을 더해 드렸습니다.

오늘은 과천사무실인테리어 시공 현장을
보여드리면서 어떠한 공간에서도
회사라는 업무 공간에 포커스를 맞추어
완성도 높았던 사례를 보여드렸습니다.
오피스 인테리어 관련해서 궁금하신 점은
언제든지 문의해 주시면 안내해 드리겠습니다.
공사문의 010-3235-8427
▼▼▼▼포트폴리오 더보기▼▼▼▼
https://916er.com/
사무실인테리어 디자인 공사 비용견적 플랫폼 - 사무실인테리어 916
사무실인테리어 916
916er.com
2024.06.19 - [사무실인테리어] - 성수동사무실인테리어 행복한 공간
성수동사무실인테리어 행복한 공간
성수동사무실인테리어 행복한 공간 요즘은 기업의 특색과 특징을 잘 나타낸 공간 인테리어를 많은 분이 선호하면서 기존 사무실을 리모델링하거나 기업 색깔에 맞춰서 분위기
dopamine7.com
2024.06.17 - [사무실인테리어] - 홍대사무실인테리어 합리적인 비용과 확신의 현장
홍대사무실인테리어 합리적인 비용과 확신의 현장
홍대사무실인테리어 합리적인 비용과 확신의 현장 새로 창업하거나 기존의 공간을 이전하면서 리모델링할 때, 많은 분이 중요시 고민하는 문제 중에 하나가 바로 공간 인테리어입
dopamine7.com
2024.06.13 - [사무실인테리어] - 용인인테리어 업체의 선정이 디자인을 말하다
용인인테리어 업체의 선정이 디자인을 말하다
용인인테리어 업체의 선정이 디자인을 말하다 안녕하세요, 우리 주변을 볼 때 굉장히 개성있는 사무실들이 많다는 것을 알 수 있습니다. 각각의 사무실마다 기업의 특성을보유하고 있으며
dopamine7.com
'사무실인테리어' 카테고리의 다른 글
| 성수동인테리어 업체 공사 알아보기 (0) | 2024.07.01 |
|---|---|
| 마포인테리어 홍대의 분위기를 느끼다 (0) | 2024.06.30 |
| 일산사무실인테리어 컨셉과 연출디자인 (0) | 2024.06.29 |
| 목동인테리어업체 분위기에 취하다 (0) | 2024.06.29 |
| 문정동사무실인테리어 공간의 힘 (0) | 2024.06.28 |
| 인천사무실인테리어 전문적인 현장감으로 (0) | 2024.06.28 |
| 청라인테리어 신속 정확하게 공사를 합니다. (0) | 2024.06.28 |
| 광교사무실인테리어 일하는 즐거움 (0) | 2024.06.28 |
- Total
- Today
- Yesterday
- 사무실인테리어디자인
- 사무실인테리어견적
- 지식산업센터인테리어
- 사무실인테리어후기
- 미용실인테리어
- 인테리어디자인
- 학원인테리어디자인
- 사무실인테리어
- interior
- 사무실인테리어전문
- 사무실인테리어잘하는곳
- 사무실인테리어공사
- 인테리어
- 오피스인테리어
- 회사인테리어
- 헤어샵인테리어
- 3D디자인
- 사무실리모델링
- 사무실인테리어업체
- 상가인테리어
- 인천사무실인테리어
- 사무실인테리어비용
- 3D사무실인테리어
- 피티샵인테리어
- 병원인테리어
- 학원인테리어
- 사무실디자인
- 헬스장인테리어
- 사무실인테리어추천
- 916디자인
| 일 | 월 | 화 | 수 | 목 | 금 | 토 |
|---|---|---|---|---|---|---|
| 1 | 2 | 3 | 4 | 5 | 6 | 7 |
| 8 | 9 | 10 | 11 | 12 | 13 | 14 |
| 15 | 16 | 17 | 18 | 19 | 20 | 21 |
| 22 | 23 | 24 | 25 | 26 | 27 | 28 |
| 29 | 30 | 31 |
