티스토리 뷰
목차
성수동인테리어
성수동인테리어 업체 공사 알아보기
안녕하세요,
최근 많은 공간에서 인테리어
시공을 진행하기 위해 고민하실텐데요.
각각의 공간들을 인테리어하는 것은
굉장히중요하지만, 사무실 공간 또한
인테리어를 하게 된다면 굉장히
큰 만족감을 얻을 수 있습니다.
사무실의 경우 일반적인 공간 대비
차별적으로 구성하는 것이 가장 중요하기
때문에, 오늘은 이러한 부분과 관련하여
저희가 진행해드린 성수동인테리어 시공
사례를 자세하게 살펴보도록 하겠습니다.
성수동인테리어 3D 디자인








성수동인테리어 시공을 의뢰해주셨던
고객님께서는 이번에 새롭게 사무실을
이전하시게 되면서 저희에게 문의주셨습니다.
저희 또한 고객님의 문의내용을
토대로 3D 디자인을 제작했는데요.
실측된 공간 디자인을 바탕으로
진행해야 했고, 고객님의 니즈를
모두 반영하여 시안을 제작했습니다.
완성된 시안을 토대로 본격적인 시공을
진행하게 되며, 전문성을 보유하고 있는
팀원들이 직접 작업을 수행하기 때문에,
각 공간들을 완벽하게 작업해드릴 수 있습니다.
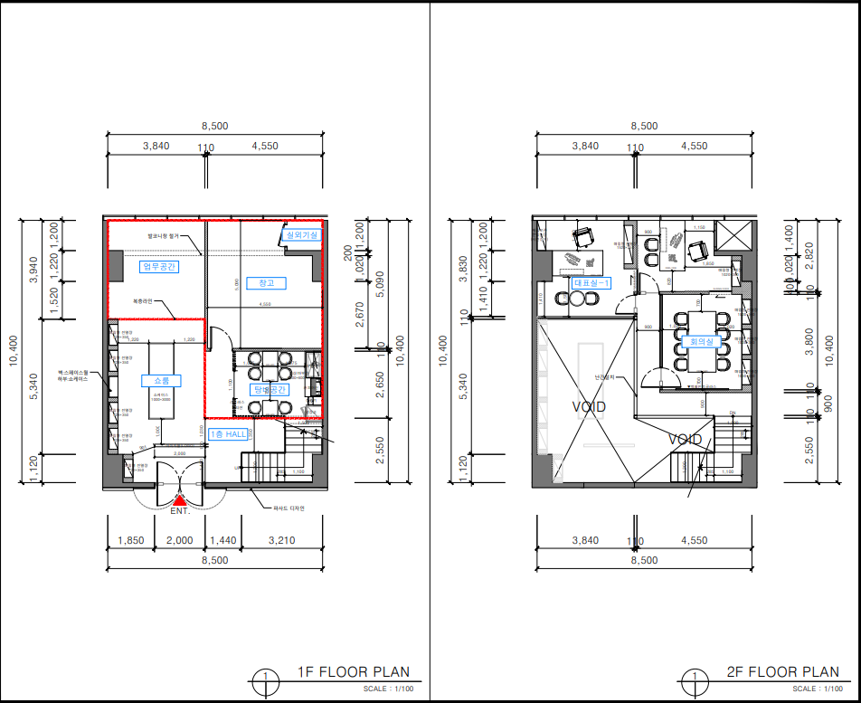
성수동인테리어 시공 완료 현장





3D 디자인 시안대로 전체적인
시공이 완료된 현장입니다.
각 공간별로 고객님의 니즈가 모두
포함되었다는 것을 확인할 수 있는데요.
입구로 들어서면 로비가 보이며,
로비는 굉장히 넓게 구성되었습니다.
직원들이 편안하게 이동할 수 있도록
동선을 고려하여 작업했으며, 중앙에는
포인트 조명을 설치함으로써 굉장히
세련된 공간이라는 것을 알 수 있습니다.
각 조명 아래에는 제품을
전시할 수있도록 만들었는데요.
제품이 빛을 받아서 더욱 화려하게 보이고,
고객님들께서 실내로 들어올 때 마치 명품관과
같이 느껴질 수 있도록 완성되었습니다.






로비 안쪽에서는
휴게공간이 마련되어 있습니다.
방문하는 고객님들도 이용할 수
있도록 구성되었으며, 언제든지
편안하게 쉴 수 있도록 디자인했는데요.
바닥과 테이블을 통일시켜서 우드톤으로
만들었기 때문에, 심적으로도 편안하게
휴식을 취할 수 있도록 만들어드렸습니다.
업무를 수행하는 과정에서
휴게공간을 사용할 경우 굉장히
큰 만족감을 느낄 수 있을 것입니다.




위층에는 회의공간을 마련해두었는데요.
회의실의 경우 층고가 높았기 때문에,
별도의 조명을 설치하였고, 추가적으로
직원들이 편안하게 논의할 수 있도록
글라스월로 구성해드렸습니다.
답답한 느낌의 벽이 아닌 유리로 회의실을
만들어둔다면 창의적인 생각이 가능하고,
보다 수월하게 회의가 이루어질 수 있게 됩니다.



입구 디자인까지
모두 저희가 진행해드렸는데요.
우드와 가장 매치가 잘 되는 색상이
레드이며, 입구에는 회사 사인물을
부착함으로써 고급스러움을 더했습니다.
직원들 또한 더욱 모던해진 회사에 출근을
한다면 소속감을 느끼면서 업무 생산성을
높일 수 있으리라 생각되었습니다.

시공이 마무리 되었다면 마지막으로
전체적인 공간들을 점검해드렸습니다.
점검 과정에서 다른 미흡한 부분들이
있는지 다시한번 살펴보았으며,
만약 다시 작업해야하는 부분들이 확인될
경우 저희가 즉시 보완해드릴 수 있습니다.
시공 중간중간 고객님과 조율해야하는
부분들이 있었지만, 큰 범위를 벗어나지
않는 선에서 시공을 완료할 수 있었습니다.

오늘은 저희가 진행해드린
성수동인테리어 시공 사례를
자세하게 살펴보았습니다.
오늘 현장과 동일한 상황으로
고민하고 계시다면저희를 통해서
해결해주시는 것이 좋습니다.
저희의 경우 다년간의 경험을 보유하고
있으며, 좋은 결과를 제공해드릴 수 있습니다.
이와 관련하여 문의사항이 있으시다면
언제든지 편하게 문의주시기 바랍니다.
공사문의 010-3235-8427
▼▼▼▼포트폴리오 더보기▼▼▼▼
사무실인테리어 디자인 공사 비용견적 플랫폼 - 사무실인테리어 916
사무실인테리어 916
916er.com
2024.06.25 - [사무실인테리어] - 마포인테리어 홍대의 분위기를 느끼다
마포인테리어 홍대의 분위기를 느끼다
마포인테리어 홍대의 분위기를 느끼다 안녕하세요, 최근 우리 주변을 볼 때 굉장히 많은 사람들이 사무실 공간을 새롭게 디자인하기 위해서 고민하시는데요. 사무실을 디자인하기 위해서는
dopamine7.com
2024.06.26 - [사무실인테리어] - 일산사무실인테리어 컨셉과 연출디자인
일산사무실인테리어 컨셉과 연출디자인
일산사무실인테리어 컨셉과 연출디자인 안녕하세요. 916 디자인입니다. 개인 사업장 인테리어는 비교적 자유도가 높은 축에 속하기 때문에 견적 및 디자인 컨펌 전까지 원
dopamine7.com
2024.06.25 - [사무실인테리어] - 목동인테리어업체 분위기에 취하다
목동인테리어업체 분위기에 취하다
목동인테리어업체 분위기에 취하다 안녕하세요, 최근 우리에게 있어서 한 공간을 디자인하는 것은 굉장히 중요하게 여겨지고 있습니다. 다양한 공간을 인테리어하면서 만족스럽
dopamine7.com
2024.06.26 - [사무실인테리어] - 과천사무실인테리어 회사의 포커스를
과천사무실인테리어 회사의 포커스를
과천사무실인테리어 회사의 포커스를 안녕하세요. 916 디자인입니다. 회사 인테리어를 할 때는 무엇보다 업무에 최적화된 공간을 디자인하는 데 모든 포커스를 맞춰야 합니다.
dopamine7.com
2024.06.25 - [사무실인테리어] - 문정동사무실인테리어 공간의 힘
문정동사무실인테리어 공간의 힘
안녕하세요. 916 디자인입니다. 다 같은 사무실처럼 보여도 업종에 따라 인테리어 컬러, 소재, 조명을 달리하여 그 공간에 힘을 부여해야 합니다. 이번에 문정동사무실인테리어 30평
dopamine7.com
'사무실인테리어' 카테고리의 다른 글
| 지식산업센터인테리어 효율적으로 사용이 가능하게 (0) | 2024.07.07 |
|---|---|
| 사옥인테리어 능률이 올라가는 체계적인 공간 (0) | 2024.07.07 |
| 100평사무실인테리어 전체적인 조화로 새롭게 (0) | 2024.07.06 |
| 광명인테리어 오피스디자인을 만들다 (0) | 2024.07.02 |
| 마포인테리어 홍대의 분위기를 느끼다 (0) | 2024.06.30 |
| 일산사무실인테리어 컨셉과 연출디자인 (0) | 2024.06.29 |
| 목동인테리어업체 분위기에 취하다 (0) | 2024.06.29 |
| 과천사무실인테리어 회사의 포커스를 (0) | 2024.06.29 |
- Total
- Today
- Yesterday
- 사무실리모델링
- 미용실인테리어
- 학원인테리어
- 인천사무실인테리어
- 사무실인테리어전문
- 사무실인테리어후기
- 헬스장인테리어
- 3D사무실인테리어
- 3D디자인
- 오피스인테리어
- 피티샵인테리어
- 사무실인테리어업체
- 사무실인테리어비용
- 회사인테리어
- 학원인테리어디자인
- 헤어샵인테리어
- 사무실인테리어견적
- 사무실인테리어추천
- 인테리어디자인
- 병원인테리어
- 916디자인
- 사무실인테리어디자인
- 사무실인테리어공사
- 사무실인테리어
- 지식산업센터인테리어
- 사무실인테리어잘하는곳
- 인테리어
- 상가인테리어
- 사무실디자인
- interior
| 일 | 월 | 화 | 수 | 목 | 금 | 토 |
|---|---|---|---|---|---|---|
| 1 | 2 | |||||
| 3 | 4 | 5 | 6 | 7 | 8 | 9 |
| 10 | 11 | 12 | 13 | 14 | 15 | 16 |
| 17 | 18 | 19 | 20 | 21 | 22 | 23 |
| 24 | 25 | 26 | 27 | 28 | 29 | 30 |
| 31 |
