티스토리 뷰
목차
안녕하세요. 916디자인입니다.
사옥인테리어에서는 공간의 구조를 비교적
자유롭게 재구성할 수 있어 재미가 있죠.
고객님과 머리를 맞대어 원하시는 분위기와
디자인을 반영하기 위해 주어진 평수 내에서
창의력을 힘껏 발휘하면서도 업무의 능률을
올릴 수 있도록 참신한 인테리어가 필요합니다.
이번에 저희 작업으로 고객님과 저희 모두
크게 만족스러웠고 재미있었던 복층 사무실
공사 현장을 소개해 드릴 테니 주목해 주세요.
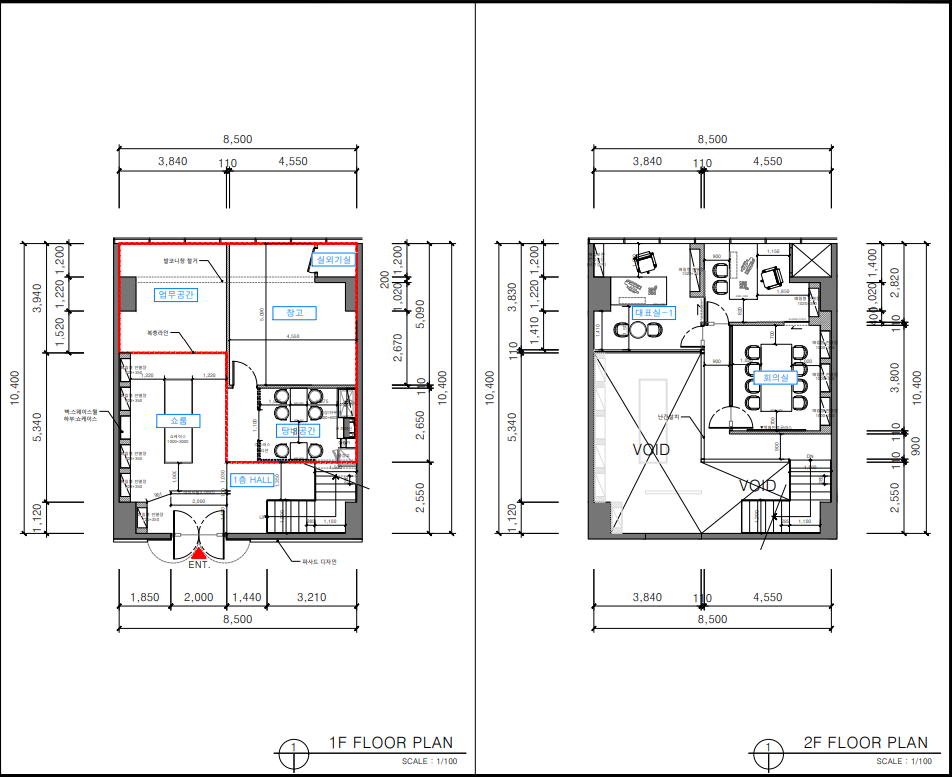
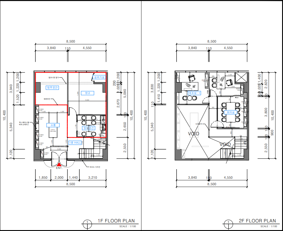
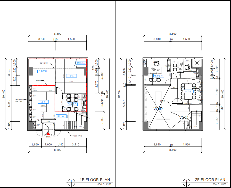
사옥인테리어 3D 디자인

이번 현장은 신내동 지식산업센터에 입주한
무역회사의 복층 사무실 공사를 의뢰받았습니다.
복층의 장점은 층고가 높다면 2층을 통해
공간을 최대한 활용할 수 있다는 점인데요.

1층에 고객님이 둘러보실 수 있는 쇼룸과
업무공간, 창고 및 탕비실을 배치하였고요.
2층에는 대표실과 직원회의실을 두는
것으로 규모를 정하고 디자인을 진행했어요.

저희는 디자인 상담 시에 3D 프로그램과
ISO를 통해 공간에 대한 전문가적 견해를
고객님께 최대한 이해하실 수 있도록 돕고
이처럼 비교적 복잡한 시공 현장에서
생길 수 있는 예외 사항이나 실수를 상당히
줄이는 데 작업자 입장에서도 도움이 됩니다.

전체적인 컨셉을 확실히 말씀해 주셔서
최대한 구현할 수 있도록 소재와 디자인을
고려하였고 쇼룸이 있는 만큼 직원들의
업무 동선과 능률을 수월하게 보조할 수
있도록 디자인하기 위해 힘썼습니다.

복층 아래로 깔리는 공간은 창고로
설정하여 넉넉한 수납공간을 확보해
드리면서 사람이 실제로 머무르고
일하는 곳이 답답하게 느껴지지 않게
인테리어를 구상해 드렸습니다.

2층의 대표실과 회의실은 전체적으로
1층과는 다른 바닥재를 활용했어요.
1층에 비해 층고가 낮다고 느낄 수 있는
부분이 단점으로 작용할 수 있으나
어두운 컬러의 헤링본 목재를 깔아두어
아늑하고 고급스럽게 연출했습니다.

대표실은 전체적인 공간과는 확실히
차별화된 포인트를 주기 원하셨는데요.
네이비색의 컬러를 사용해서 전문성이
돋보일 수 있도록 구상하였습니다.

실측을 정확하게 재고 현장에 대한
꼼꼼한 분석을 통해 오차 없이 설계를
완벽하게 진행할 수 있도록 도안을
정성껏 작성하여 고객님 컨펌을 받습니다.
사옥인테리어 시공 완료 현장

고객님의 니즈에 맞게 전체적인 분위기를
압도하는 화려한 샹들리에 조명을 달아
포인트를 더하면서 고급스러움을 가미했어요.

목재의 나이테와 결이 느껴지는 바닥재를
선택하여 전체적으로 아늑한 분위기를 냈습니다.
벽체에는 웨인스코팅 기법으로 갤러리와
비슷한 세련된 느낌을 더했습니다.

샹들리에와 맞닿아있는 쇼케이스는
마치 백화점이나 테일러샵의 액세서리를
구경하는 듯한 세련되고 품격 있는 분위기를
고객이 느낄 수 있도록 디자인했고요.
취급하시는 품목이 워낙 다양하고
공구 느낌이 들 수 있기 때문에 자칫
철물점 같은 느낌이 들지 않기 위해
고급스러운 분위기를 연출해 드렸습니다.

하루에도 수십 개의 물류가 오가는 만큼
자주 찾으시는 품목과 아닌 것을 적절히
배치하되 금방 꺼낼 수 있도록 능률적으로
공간을 구상하는 것도 저희의 몫이었는데요.
취급 품목의 사이즈에 맞춰 수납장을
직접 목공 작업하여 완성해 드렸고
클라이언트의 만족도가 매우 높았습니다.

직원들의 휴게공간과 탕비실은 2층
아래 공간으로 편안히 휴식하되
답답하지 않도록 부분 칸막이를
제작하여 개방감을 유지했습니다.

2층의 바닥재는 도안과 달리 밝은
색상의 카펫 타일을 배치해 드렸어요.
벽체는 글라스월로 마무리해 공간감을
넓고 쾌적하게 느낄 수 있습니다.

대표실 역시 기존의 도안과 달리
밝고 아늑한 느낌으로 구현했어요.
아무래도 공간이 협소하고 채광이 넉넉지
않은 만큼 어두운 느낌은 자칫 감정적인
영향을 주어 능률이 저하될 수 있기 때문입니다.
사옥인테리어 능률이 올라가는 체계적인 공간

전체적으로 샹들리에를 제외한
모든 공간에 사각 등을 배치하여서
화려한 샹들리에가 더 돋보일 수 있도록
균형 잡힌 선택을 내렸습니다.


외부 파사드는 기업 특색을 표현하는
진한 버건디 컬러에 포인트 조명을
배치하여 고급스러운 느낌을 연출했습니다.
능률이 올라가는 체계적인 인테리어와
원하는 컨셉의 인테리어 두 가지를 모두
원하신다면 저희 916 인테리어로 문의하세요.
만족할 만한 결과로 보답해 드리겠습니다.
공사문의 010-3235-8427
▼▼▼▼포트폴리오 더보기▼▼▼▼
사무실인테리어 디자인 공사 비용견적 플랫폼 - 사무실인테리어 916
사무실인테리어 916
916er.com
2024.06.25 - [사무실인테리어] - 광교사무실인테리어 일하는 즐거움
광교사무실인테리어 일하는 즐거움
광교사무실인테리어 일하는 즐거움 안녕하세요, 일반적인 직장인의 경우 주말을 제외하면 사무실에 있는 시간은 집과 비슷할 정도로, 혹은 집을 뛰어넘을 정도로 오랜 시간 동
dopamine7.com
2024.06.17 - [사무실인테리어] - 홍대사무실인테리어 합리적인 비용과 확신의 현장
홍대사무실인테리어 합리적인 비용과 확신의 현장
홍대사무실인테리어 합리적인 비용과 확신의 현장 새로 창업하거나 기존의 공간을 이전하면서 리모델링할 때, 많은 분이 중요시 고민하는 문제 중에 하나가 바로 공간 인테리어입
dopamine7.com
2024.06.10 - [사무실인테리어] - 용산인테리어 퀄리티의 차이
용산인테리어 퀄리티의 차이
용산인테리어 퀄리티의 차이 안녕하세요, 우리 주변을 볼 때 각종 다양한 디자인을 구성하고 있는 사무실들이 많다는 것을 알 수 있습니다. 사무실별로 기업의 특성을 잘 갖추고
dopamine7.com
'사무실인테리어' 카테고리의 다른 글
| 동탄사무실인테리어 업체는 미팅에서 다릅니다. (0) | 2024.08.17 |
|---|---|
| 분당사무실인테리어 고객님의 선택 (0) | 2024.08.17 |
| 강남사무실인테리어 편안함과 분위기의 아름다운 화합 (0) | 2024.07.07 |
| 지식산업센터인테리어 효율적으로 사용이 가능하게 (0) | 2024.07.07 |
| 100평사무실인테리어 전체적인 조화로 새롭게 (0) | 2024.07.06 |
| 광명인테리어 오피스디자인을 만들다 (0) | 2024.07.02 |
| 성수동인테리어 업체 공사 알아보기 (0) | 2024.07.01 |
| 마포인테리어 홍대의 분위기를 느끼다 (0) | 2024.06.30 |
- Total
- Today
- Yesterday
- 상가인테리어
- 사무실인테리어비용
- 인테리어
- 3D사무실인테리어
- 사무실디자인
- 학원인테리어디자인
- 회사인테리어
- 지식산업센터인테리어
- 학원인테리어
- 인천사무실인테리어
- interior
- 사무실인테리어후기
- 3D디자인
- 사무실인테리어공사
- 사무실인테리어
- 사무실인테리어추천
- 사무실인테리어업체
- 헤어샵인테리어
- 미용실인테리어
- 사무실인테리어잘하는곳
- 사무실인테리어디자인
- 오피스인테리어
- 병원인테리어
- 헬스장인테리어
- 916디자인
- 사무실리모델링
- 인테리어디자인
- 피티샵인테리어
- 사무실인테리어견적
- 사무실인테리어전문
| 일 | 월 | 화 | 수 | 목 | 금 | 토 |
|---|---|---|---|---|---|---|
| 1 | 2 | |||||
| 3 | 4 | 5 | 6 | 7 | 8 | 9 |
| 10 | 11 | 12 | 13 | 14 | 15 | 16 |
| 17 | 18 | 19 | 20 | 21 | 22 | 23 |
| 24 | 25 | 26 | 27 | 28 | 29 | 30 |
| 31 |
