티스토리 뷰
목차
광명인테리어 오피스디자인을 만들다
안녕하세요,
사무실 공간을 인테리어하는 것은
굉장히 중요한 요소라 할 수 있는데요.
누구든지 사무실을 방문했을 때,
목적에 맞는 분위기로 인테리어가
성되어 있다면 그 공간에 대한 좋은
이미지를 가지게 된다고 합니다.
최근에는 사무실을 기업의 특색에 맞게
구성하고자 하시는 분들이 많아진만큼,
인테리어를 고민하신다면 정확한
방법으로 꼼꼼하게 수행해야하는데요.
오늘은 저희가 직접 진행해드린
광명인테리어 시공 사례를
자세하게 살펴보도록 하겠습니다.
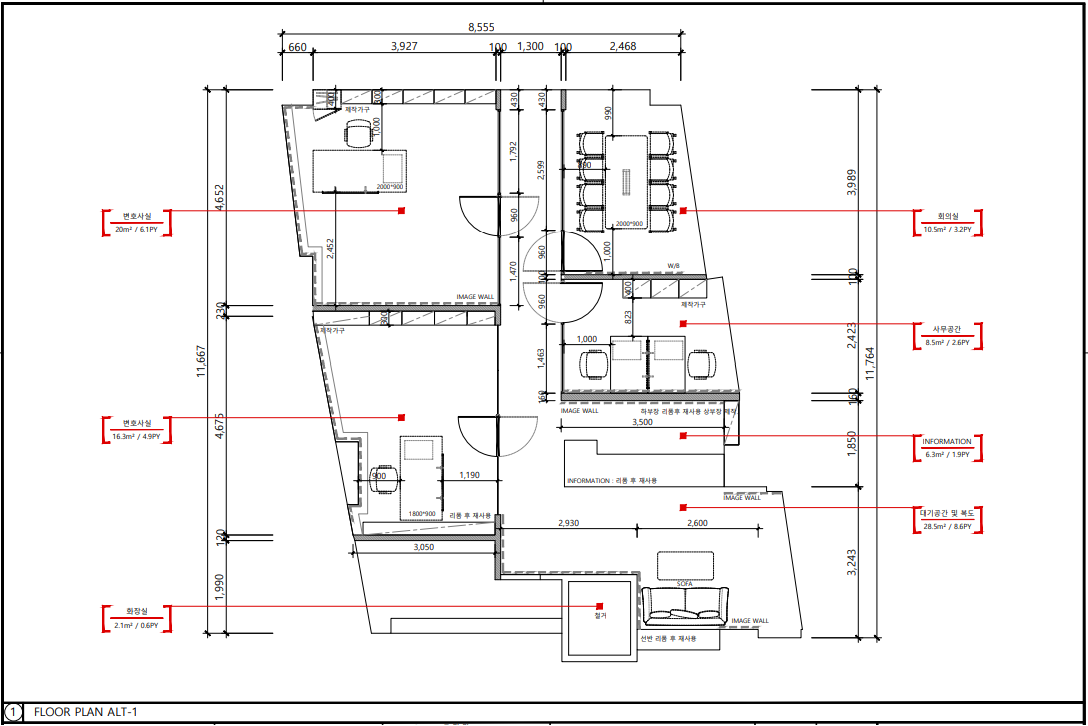
광명인테리어 3D 디자인










광명인테리어 시공을 의뢰해주셨던
고객님께서는 이번에 새롭게 사무실을 디자인
하기 위해서 저희에게 문의를 주셨습니다.
평수가 넓은 사무실이다보니
저희 또한 꼼꼼하게 확인해서
작업해야되겠다고 생각했는데요.
처음 상담 과정에서 3D 디자인 작업을
진행하였고, 회의실과 사무공간,
화장실 등 전체적인 공간을 꽉 차게
보일 수 있도록 만들어야했습니다.
광명인테리어 시공 완료 현장





3D 디자인 이후
시공이 완성된 현장입니다.
내부로 들어서자마자 바로
인포메이션이 보이는데요.
돌출 우물형 천장으로 만들어드렸으며,
간접조명과 더불어 다운 라이트의 구성을
통해 밝은 이미지를 느낄 수 있습니다.
또한, 오른쪽에는 작게 아트월을 만들어서
사인물을 별도로 부착해드렸습니다.
인포메이션 맞은 편에는
진열장을 별도로 구성해놓았습니다.
진열장 내부에도 조명이 있어서 상패 등을
올려놓도록 만들어드렸으며, 더욱 눈에
잘 들어올 수 있도록 화사하게 구성했습니다.
전체적인 공간들이 고객님의
니즈에 맞게 시공되었던 만큼
고객님께서도 굉장히 흡족해하셨습니다.





인포메이션에서 들어온다면
각 분리되는 공간들이 있습니다.
벽으로 막아버린다면 굉장히
답답해보일 수 있으며, 글라스 월을
이용하여 시공해드렸는데요.
시선을 정면으로 볼 수 있도록 하기 위해서
벽면에는 아트월을 별도로 만들어드렸습니다.
이렇게 시공을 진행한다면 공간이
좁아지지 않게 느껴진다는 장점이 있습니다.





회의실과 더불어서
업무공간 등도 함께 만들었는데요.
전체적으로 천장은 우물형으로
디자인하였고, 다운 라이트로만
구성하여 굉장히 밝게 만들어드렸습니다.
그래서 방이 각기 다른 분위기더라도 어딘가
통일감이 느껴진다는 것도 알 수 있는데요.
각 분리된 공간마다 수납 및 진열장이
있기 때문에, 서류들을 많이 활용하는
사무실에서 활용하기 좋습니다.


외부 간판의 경우
저희가 직접 제작해드렸습니다.
푸른 계열의 색상을 포인트 컬러로
사용하였으며, 입구 파사드도 푸른
계열 바탕의 아트월로 시공했습니다.
간판보다는 조금 더 짙은 색의
블루를 바탕으로 하고 화이트로
사인물을 제작하여 부착했는데요.
짙은 색상을 이미 사용했기 때문에,
도어가 있는 부분에는 깔끔한 화이트와 상단의
다운라이트로 깔끔하게 마무리해드렸습니다.

시공이 마무리되어가는 단계에서는
마지막으로 점검을 도와드렸습니다.
전체적인 공간들을 점검하면서 혹여나
미흡한 공간이 없는지 자세히 살펴보는데요.
이 과정에서 미흡한 부분들이 발견될
경우 저희가 다시 보완해드리면서
완벽하게 구성해드릴 수 있습니다.
다행히도 이번 현장에서는 미흡한 공간 없이
모두 깔끔하게 마무리가 되었습니다.

오늘은 저희가 직접 진행해드린
광명인테리어 시공 사례를
자세하게 살펴보았습니다.
오늘 현장과 같이 사무실을
인테리어해야한다면 저희를
통해서 해결해주시는 것이 좋습니다.
저희의 경우 다년간의 경험을 보유하고
있으며, 좋은 결과를 제공해드릴 수 있습니다.
이와 관련하여 문의사항이 있으신 경우
언제든지 편하게 문의주시기 바랍니다.
공사문의 010-3235-8427
▼▼▼▼포트폴리오 더보기▼▼▼▼
사무실인테리어 디자인 공사 비용견적 플랫폼 - 사무실인테리어 916
사무실인테리어 916
916er.com
2024.07.01 - [사무실인테리어] - 성수동인테리어 업체 공사 알아보기
성수동인테리어 업체 공사 알아보기
성수동인테리어성수동인테리어 업체 공사 알아보기 안녕하세요, 최근 많은 공간에서 인테리어 시공을 진행하기 위해 고민하실텐데요. 각각의 공간들을 인테리어하는 것은 굉장히
dopamine7.com
2024.06.25 - [사무실인테리어] - 마포인테리어 홍대의 분위기를 느끼다
마포인테리어 홍대의 분위기를 느끼다
마포인테리어 홍대의 분위기를 느끼다 안녕하세요, 최근 우리 주변을 볼 때 굉장히 많은 사람들이 사무실 공간을 새롭게 디자인하기 위해서 고민하시는데요. 사무실을 디자인하기 위해서는
dopamine7.com
2024.06.26 - [사무실인테리어] - 일산사무실인테리어 컨셉과 연출디자인
일산사무실인테리어 컨셉과 연출디자인
일산사무실인테리어 컨셉과 연출디자인 안녕하세요. 916 디자인입니다. 개인 사업장 인테리어는 비교적 자유도가 높은 축에 속하기 때문에 견적 및 디자인 컨펌 전까지 원
dopamine7.com
2024.06.25 - [사무실인테리어] - 목동인테리어업체 분위기에 취하다
목동인테리어업체 분위기에 취하다
목동인테리어업체 분위기에 취하다 안녕하세요, 최근 우리에게 있어서 한 공간을 디자인하는 것은 굉장히 중요하게 여겨지고 있습니다. 다양한 공간을 인테리어하면서 만족스럽
dopamine7.com
2024.06.26 - [사무실인테리어] - 과천사무실인테리어 회사의 포커스를
과천사무실인테리어 회사의 포커스를
과천사무실인테리어 회사의 포커스를 안녕하세요. 916 디자인입니다. 회사 인테리어를 할 때는 무엇보다 업무에 최적화된 공간을 디자인하는 데 모든 포커스를 맞춰야 합니다.
dopamine7.com
'사무실인테리어' 카테고리의 다른 글
| 강남사무실인테리어 편안함과 분위기의 아름다운 화합 (0) | 2024.07.07 |
|---|---|
| 지식산업센터인테리어 효율적으로 사용이 가능하게 (0) | 2024.07.07 |
| 사옥인테리어 능률이 올라가는 체계적인 공간 (0) | 2024.07.07 |
| 100평사무실인테리어 전체적인 조화로 새롭게 (0) | 2024.07.06 |
| 성수동인테리어 업체 공사 알아보기 (0) | 2024.07.01 |
| 마포인테리어 홍대의 분위기를 느끼다 (0) | 2024.06.30 |
| 일산사무실인테리어 컨셉과 연출디자인 (0) | 2024.06.29 |
| 목동인테리어업체 분위기에 취하다 (0) | 2024.06.29 |
- Total
- Today
- Yesterday
- 사무실인테리어견적
- 인천사무실인테리어
- 인테리어디자인
- interior
- 오피스인테리어
- 사무실인테리어잘하는곳
- 헬스장인테리어
- 사무실인테리어
- 916디자인
- 병원인테리어
- 피티샵인테리어
- 사무실인테리어업체
- 지식산업센터인테리어
- 학원인테리어
- 학원인테리어디자인
- 사무실인테리어추천
- 헤어샵인테리어
- 사무실인테리어후기
- 사무실인테리어비용
- 사무실리모델링
- 3D사무실인테리어
- 사무실인테리어공사
- 사무실디자인
- 회사인테리어
- 사무실인테리어전문
- 3D디자인
- 상가인테리어
- 미용실인테리어
- 사무실인테리어디자인
- 인테리어
| 일 | 월 | 화 | 수 | 목 | 금 | 토 |
|---|---|---|---|---|---|---|
| 1 | 2 | 3 | 4 | 5 | 6 | 7 |
| 8 | 9 | 10 | 11 | 12 | 13 | 14 |
| 15 | 16 | 17 | 18 | 19 | 20 | 21 |
| 22 | 23 | 24 | 25 | 26 | 27 | 28 |