티스토리 뷰
목차
이제는 직원들의 창의성과 휴식을 동시에 고려한 사무공간 인테리어가 대세로 자리 잡고 있는데요.
오늘 소개해 드릴 구일육디자인의 사무실리모델링 현장은 딱딱한 칸막이 문화를 탈피하고 싱그러운 플랜트 박스를 활용하여 공간을 분리한 아주 특별한 사례입니다.
친환경적인 요소와 트렌디한 컬러감이 조화를 이룬 이번 시공을 통해 저희만의 탄탄한 기술력과 감각적인 설계 능력을 확인해 보실 수 있답니다. ☘️
사무실리모델링 설계 : 2D 레이아웃 전략

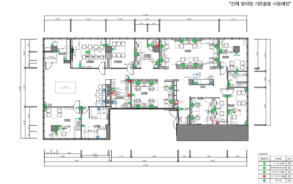
본격적인 공사에 앞서 가장 공을 들인 부분은 바로 도면 설계와 동선 배치를 결정하는 단계였는데요.
이번 프로젝트는 클라이언트께서 요청하신 '개방감'과 '집중도'라는 두 가지 상충하는 가치를 조화롭게 녹여내는 것이 핵심이었죠.
사무실리모델링의 성패는 가벽을 어디에 세우느냐에 따라 갈리는데, 저희는 과감하게 눈높이를 가리는 답답한 칸막이를 걷어내고 낮은 수납장을 활용한 플랜트 박스 레이아웃을 제안해 드렸답니다.

2D 디자인 단계에서는 실제 시공 후 직원들의 이동 경로를 수십 번 시뮬레이션하며 최적의 효율을 찾아냈는데요.
메인 업무 공간과 공용 공간인 카페테리아, 그리고 집중이 필요한 연구소 구역을 명확히 구분하되, 시각적으로는 하나로 이어지는 유기적인 구조를 설계했답니다.
특히 도면상에서 곡선 가벽의 곡률을 정교하게 계산하여 자칫 낭비될 수 있는 데드스페이스를 최소화하고, 수납 가구들이 벽면과 일체화될 수 있도록 빌트인 방식의 규격을 확정했죠.

조명 설계 역시 이 단계에서 세밀하게 이루어졌는데요.
업무의 몰입도를 높이기 위해 메인 등기구의 위치를 책상 배치와 맞추고, 복도와 휴게 공간에는 은은한 간접 조명을 배치하여 심리적인 안정감을 유도했답니다.
이러한 철저한 사전 설계 덕분에 공기 정화 효과와 심리적인 힐링을 동시에 누릴 수 있는 완성도 높은 오피스의 밑그림이 나올 수 있었답니다.
사무실리모델링 완공 : 감각적인 공간 연출




이제 이번 프로젝트의 진면목을 확인할 수 있는 공사 완료 모습을 하나하나 자세히 살펴보겠습니다.
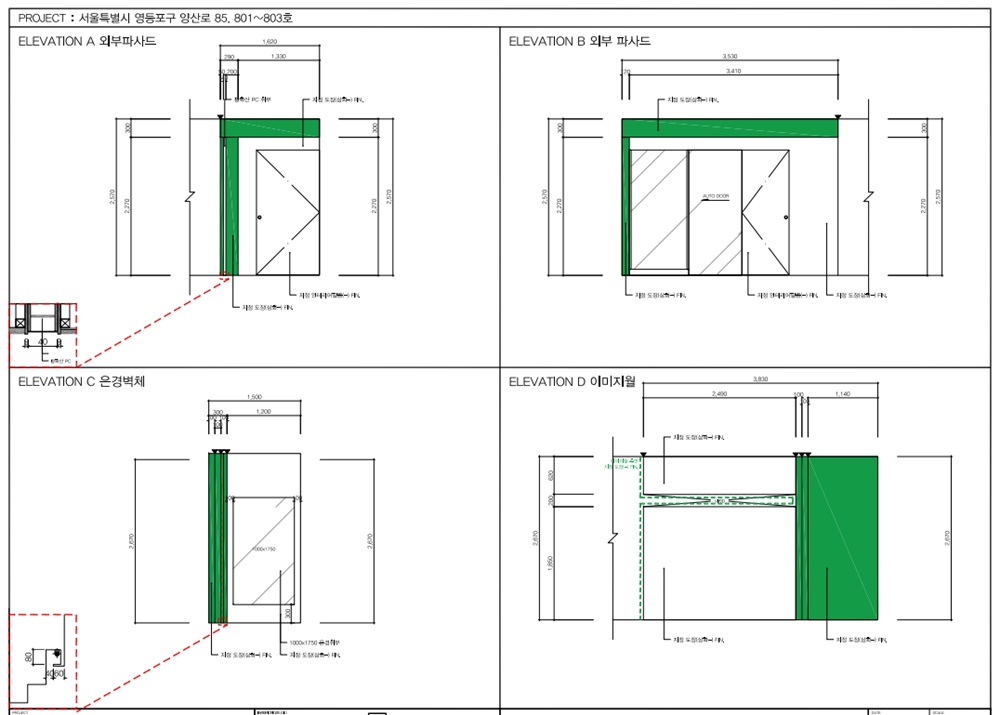
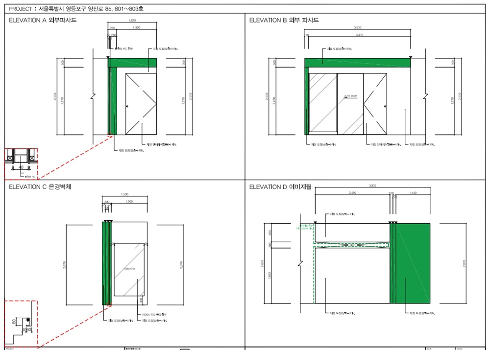
먼저 사무실의 첫인상을 결정짓는 입구 파사드부터 살펴보면, 화이트 도어와 세이지 그린 컬러의 대비가 아주 세련되게 연출되었는데요.



'제이씨엘리서치 트라이즈'와 '리프경제연구소' 로고가 새겨진 입구는 신뢰감을 주기에 충분하답니다.
특히 불투명 유리와 투명 유리를 적절히 혼합한 슬라이딩 도어를 설치하여 프라이버시 보호와 개방감을 동시에 잡았으며, 도어 상단의 매립형 라인 조명이 입구부터 트렌디한 분위기를 자아내고 있죠.



사무실 내부로 들어서면 이번 리모델링의 하이라이트인 플랜트 박스 칸막이들이 파노라마처럼 펼쳐지는데요.
베이지 톤의 하부 수납장은 실제 업무 서류를 보관하는 실용적인 기능을 수행함과 동시에, 상단에 식재된 싱그러운 식물들이 자연스러운 파티션 역할을 한답니다.





사진 속 공간들을 보면 낮은 플랜트 박스 덕분에 사무실 끝에서 끝까지 시야가 확보되어 공간이 실제 평수보다 훨씬 넓어 보이는 효과를 확인할 수 있죠.
천장의 텍스 마감과 조화를 이루는 원형 매립등은 공간 구석구석 어두운 곳 없이 화사한 빛을 전달해 준답니다.



복도와 각 구역을 나누는 구간에는 부드러운 곡선형 가벽이 설치되었는데요.
직선 위주의 오피스 공간에 곡선이 가미되면서 심리적인 경직성을 완화해 준답니다.










뒤편에는 직원들의 개인 물품이나 외투를 깔끔하게 보관할 수 있는 행거 시스템과 오픈형 수납 공간이 마련되어 있는데요.
화이트 톤의 가구와 세이지 그린 포인트 컬러가 가구의 옆면까지 세심하게 입혀져 통일감을 더했답니다.
또한 복도 끝에 설치된 대형 전신 거울은 공간에 깊이감을 더해주며 직원들이 출퇴근 시 용모를 확인하기에도 아주 유용한 포인트가 된답니다.





카페테리아 공간은 이번 시공의 백미라고 할 수 있는데요.
따뜻한 베이지 컬러의 세로형 타일로 벽면을 마감하여 아늑한 무드를 극대화했답니다.
싱크대 상하부장은 우드 소재와 화이트 소재를 믹스 매치하여 깔끔하면서도 고급스러운 주방 분위기를 연출했죠.


또한 실무자들의 편의를 위해 맞춤 제작된 분리수거함 공간을 주목해 주세요.
Waste, Vinyl, Plastic, Paper, Can 등 항목별로 깔끔하게 매립된 수납장은 지저분해 보일 수 있는 쓰레기통을 완벽히 가려주어 오피스의 청결도를 높여준답니다.


특히 카페테리아 한쪽 가벽에는 유리 가드를 설치한 전용 플랜트 공간을 마련하여 대형 선인장과 다육식물들을 배치했는데요.
천장에 설치된 우드 톤의 대형 실링팬과 어우러져 마치 숲속의 카페에 온 듯한 착각을 불러일으킨답니다.



카페테리아와 연결된 긴 우드 테이블 바는 간단한 미팅이나 개인 업무, 혹은 휴식을 취하기에 최적화된 높이로 제작되었으며, 하단에는 전력 공급을 위한 콘센트까지 매립하여 실용성을 극대화했답니다.




창가 구역 역시 채광을 가리지 않도록 낮은 수납장 형태의 플랜트 박스를 배치하여 외부 전경과 실내 녹음이 자연스럽게 이어지도록 했습니다.


회의실과 연구실 사이사이에 위치한 유리 칸막이에는 에칭 필름 작업을 통해 시선은 차단하되 빛은 통과시켜 답답함을 없앴답니다.
전체적으로 화이트, 그린, 베이지, 우드 4가지 컬러가 조화롭게 배치된 이번 현장은 모든 사진 속 공간이 유기적으로 연결되어 '힐링'이라는 하나의 테마를 완성하고 있답니다.
이번 사무실리모델링 현장은 단순히 벽을 세우고 도배하는 수준을 넘어, 사람과 자연이 공존할 수 있는 업무 환경을 만드는 데 집중했는데요.
플랜트 박스와 곡선 설계, 그리고 세심한 가구 배치까지 어우러진 결과물을 보며 클라이언트께서도 큰 만족감을 표현해 주셨답니다.
저희 구일육디자인은 앞으로도 각 기업이 추구하는 가치를 공간에 녹여낼 수 있도록 끊임없이 연구하고 소통하며 최고의 시공 사례를 만들어 나갈 것을 약속드린답니다. 사무공간의 변화가 필요하시다면 언제든 전문가의 손길을 빌려보시길 권해드립니다.
☎️ 공사문의 ☎️
010 -3235- 8427
📷 포트폴리오 더보기 📷
https://916er.com/
사무실인테리어 디자인 공사 비용견적 플랫폼 - 사무실인테리어 916
사무실인테리어 916
916er.com
2026.03.11 - [사무실인테리어] - 회의실리모델링 맞춤형 미팅룸 설계로 견적 비용 거품 빼는 법
회의실리모델링 맞춤형 미팅룸 설계로 견적 비용 거품 빼는 법
많은 기업이 업무 효율을 높이기 위해 가장 먼저 고민하는 공간이 바로 회의실입니다. 하지만 막상 회의실리모델링을 결심하면 어디서부터 손을 대야 할지, 그리고 가장 민감한 견적 비용은 어
dopamine7.com
2026.03.12 - [사무실인테리어] - 용인인테리어업체 비교 추천, 2026년 최신 오피스 디자인 트렌드와 시공 후기
용인인테리어업체 비교 추천, 2026년 최신 오피스 디자인 트렌드와 시공 후기
2026년은 디자인 트렌드가 빠르게 변화하는 해로, 인테리어 업체들이 어떤 혁신과 창의성을 발휘할지가 기대되는 시점이기도 해요. 용인 지역은 최근 인테리어 업계에서도 빠르게 성장하고 있는
dopamine7.com
2026.03.03 - [사무실인테리어] - 대구상가인테리어 사무실 복합 공간 디자인의 한계를 넘는 3가지 설계 전략
대구상가인테리어 사무실 복합 공간 디자인의 한계를 넘는 3가지 설계 전략
최근 대구 지역의 상권 변화와 함께 상가라는 공간의 개념이 급격히 변화고 있습니다. 과거에는 단순히 물건을 팔거나 서비스를 제공하는 장소에 불과했다면, 이제는 브랜딩과 업무 효율의 결
dopamine7.com
2026.02.11 - [사무실인테리어] - 의정부인테리어업체 사무실 '쉼'과 '일'의 조합 뷰(View)를 품은 카페형 오피스 갤러리
의정부인테리어업체 사무실 '쉼'과 '일'의 조합 뷰(View)를 품은 카페형 오피스 갤러리
이제 오피스는 기업의 정체성을 담아내는 하나의 갤러리가 되어야 합니다. 의정부 지역에서 창의적이고 효율적인 업무 환경을 고민하시는 많은 분께 저희가 이번에 진행한 오피스 시공 현장은
dopamine7.com
'사무실인테리어' 카테고리의 다른 글
| 용인인테리어업체 비교 추천, 2026년 최신 오피스 디자인 트렌드와 시공 후기 (0) | 2026.03.12 |
|---|---|
| 회의실리모델링 맞춤형 미팅룸 설계로 견적 비용 거품 빼는 법 (0) | 2026.03.11 |
| 기업인테리어 대규모 사무실 공사 시 반드시 체크해야 할 동선 설계와 섹션 분리 노하우 (0) | 2026.03.10 |
| 용산상가인테리어 트렌디한 사무실 디자인과 디테일한 시공이 만든 차이 (0) | 2026.03.09 |
| 대구상가인테리어 사무실 복합 공간 디자인의 한계를 넘는 3가지 설계 전략 (0) | 2026.03.03 |
| 사무실공사 대형평수 인테리어의 핵심은 레이아웃과 동선 설계입니다 (0) | 2026.02.26 |
| 사무실원상복구 기준 임대인도 만족한 싱크트리 오피스 철거 및 원스톱 공정 사례 (0) | 2026.02.25 |
| 부동산사무실인테리어 계약률 높이는 화이트 미니멀 공인중개사 오피스의 3가지 설계 원칙 (0) | 2026.02.24 |
- Total
- Today
- Yesterday
- 사무실디자인
- 헤어샵인테리어
- 사무실인테리어
- 사무실인테리어비용
- 사무실인테리어공사
- 사무실인테리어견적
- 인테리어디자인
- 오피스인테리어
- 학원인테리어디자인
- interior
- 지식산업센터인테리어
- 사무실인테리어후기
- 사무실리모델링
- 학원인테리어
- 헬스장인테리어
- 3D사무실인테리어
- 사무실인테리어업체
- 피티샵인테리어
- 사무실인테리어전문
- 회사인테리어
- 상가인테리어
- 3D디자인
- 인테리어
- 사무실인테리어잘하는곳
- 사무실인테리어추천
- 916디자인
- 사무실인테리어디자인
- 인천사무실인테리어
- 병원인테리어
- 미용실인테리어
| 일 | 월 | 화 | 수 | 목 | 금 | 토 |
|---|---|---|---|---|---|---|
| 1 | 2 | 3 | 4 | 5 | 6 | 7 |
| 8 | 9 | 10 | 11 | 12 | 13 | 14 |
| 15 | 16 | 17 | 18 | 19 | 20 | 21 |
| 22 | 23 | 24 | 25 | 26 | 27 | 28 |
| 29 | 30 | 31 |


