티스토리 뷰
목차
서울 강동구 고덕비즈밸리 u1센터 지식산업센터인테리어 스튜디오 쇼룸
안녕하세요 916디자인입니다.
요즘은 쇼룸이나 편집샵 그리고 팝업스토어가 하나의 마케팅 수단으로 자리잡히면서, 브랜드들은 자신의 정체성을 한 눈에 나타낼 수 있는 공간을 만들어내기 위해 집중하는 경우가 많은데요. 이번에 소개해드릴 서울 강동구 고덕비즈밸리 u1센터 지식산업센터인테리어 스튜디오 쇼룸현장 역시 해당 브랜드만의 강점을 고스란히 느낄 수 있도록 연출하였습니다.
916디자인만의 매력으로 세련되면서도 포인트를 잘 잡아 만들어냈으니 한번 보실까요?
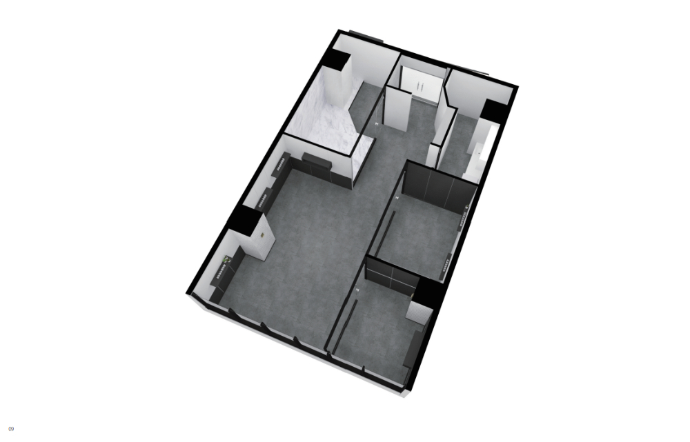
3D 디자인 설계, 디테일한 부분까지



우선 3D 이미지부터 보실텐데요. 보자마자 알 수 있는건, 이번 컨셉은 흑백의 모노톤이 잘 어울리는 모던한 공간이라는 것입니다. 다른 색감은 찾아볼 수 없을 정도로 시크한 블랙과 그레이가 전체 공간을 뒤덮고 있는데요. 컬러는 통일하더라도 소재를 다르게 하면서 포인트를 주는 방향으로 설정했습니다.


네이버하면 초록색이 떠오르고, 카카오하면 노란색이 떠오르듯이 요즘은 브랜드마다 자신이 밀고 나가는 대표 컬러가 있는 경우가 많은데요. 이번 브랜드 역시 블랙과 그레이의 모던한 컨셉이 메인이기 때문에 이를 그대로 반영하기 위해 노력했습니다. 그렇다면 공사현장부터 차근차근 설명드릴게요!
시공 진행 현장, 노하우를 바탕으로



이번 서울 강동구 고덕비즈밸리 u1센터 지식산업센터인테리어 스튜디오 쇼룸현장의 포인트는 같은 색감이지만 질감과 소재에서 차이를 두었다는 것인데요. 똑같이 화이트로 룸을 꾸미지만 어떤 곳은 대리석 질감으로, 어떤 곳은 벽돌 질감으로 바꾸면서 공간에 다채로운 매력을 부여했습니다.



그래서 시공할 때에는 오히려 다양한 기술이 필요했는데 아시겠지만 916디자인은 베테랑 기사님들만 모여 계셔서 무엇이든지 문제 없다는 사실. 그저 주어진대로, 해야하는대로 묵묵히 할일을 할 뿐입니다!
이번 현장도 설계도에 따라서 차근차근 목재를 자르고, 그에 맞추어서 작업을 하고 필요한 색감을 도장하며 한 단계씩 나아갔는데요.


각자의 맡은 자리에서 항상 최선을 다해주시고 있기 때문에 만족스러운 결과물로 고객님들을 마주하실 수 있는 것 아닐까 싶습니다. 그리고 시공 중에 특수한 상황이 발생하거나 진행 상황등은 실시간으로 피드백을 드리고 있는데요. 이처럼 신뢰할 수 있고, 높은 퀄리티의 결과물로 보답드리는 916디자인의 손길로 완성된 현장 이제보실까요?
고급스러운 마감 현장 서울 강동구 고덕비즈밸리 u1센터 지식산업센터인테리어 스튜디오 쇼룸



입구 파사드를 보았을 때 가장 먼저 눈에 들어오는건 아마 강렬한 조명이 아닐까 싶은데요. 상단에 주광색의 조명을 삽입하여 어두운 컬러와 상반되도록 연출했습니다. 그리고 위쪽을 사선으로 작업하면서 천장과의 단차를 두며 조명이 더욱 강렬한 인상을 줄 수 있도록 도와드렸습니다.


내부로 들어서면 아트월이 한 번 시야를 차단하는데요. 이는 내부 사무공간이 바로 보여지지 않도록 하는 장치의 역할을 하면서도, 마치 포토월같은 분위기를 만들어냅니다. 그리고 회색의 벽돌로 만들어낸 디자이이지만, 조명을 주광색으로 하면서 살짝 우드톤의 느낌도 보여져 너무 차갑지 않게 느껴집니다.


내부로 들어서면 그야말로 그레이&화이트&블랙의 조화가 연속되는데요. 사무실의 집기와 가구마저도 동일한 컬러로 통일하여 확실한 컨셉을 보여드렸습니다.


가장 먼저 보이는 쇼룸은 마치 예쁜 욕실을 연상케 하는데요. 이곳은 애견용품중에서도 바스관련된 분야를 연구하고 만들어내는 곳이기에 그에 적합한 쇼룸을 만들었습니다. 강아지가 편하게 사용할 수 있는 넓은 공간과, 다양한 사용을 해볼 수 있도록 환경을 구축한 것인데요.



블랙 프레임으로 전체를 마감하고 내부에는 실제로 이곳에서 판매되는 샴푸와, 바스용품, 미스트 등을 써볼 수 있는 곳으로 실용성 높게 꾸며졌습니다. 조명은 라인 사각조명이 천장에 매립되어 있으면서도 레일 조명도 함께 배치되었는데요. 보통 쇼룸은 이목을 집중시켜야 하기에 이렇게 많은 조명으로 시야를 밝히는 것이 대부분입니다.


그래서 라인 조명을 겹쳐서 연출하고, 거울 뒷편에도 매립하는 등 곳곳에 조명을 비치해두었습니다. 그리고 모두가 지켜볼 수있도록 글라스월로 시공하였으며, 고급스러운 대리석 질감과 함께 럭셔리한 서울 강동구 고덕비즈밸리 u1센터 지식산업센터인테리어 스튜디오 쇼룸을 완성하였습니다.


그리고 전체적으로 미니멀하면서도 깔끔한 인테리어를 완성했는데요. 걸레받이나 마감 몰딩이 별도로 없고, 프레임의 컬러도 통일했습니다.


쇼룸의 내부로 들어서면 그 환한 느낌을 더욱 선명하게 받아보실 수 있는데요. 내부에 들어서있는 기구에 비해서 공간이 너무 넓게 쓰여진 것아니냐고 느낄 수 있지만, 이곳에서 제품 촬영이 이뤄지기도 하고 실제로 강아지가 들어와서 편안한 환경에서 머물러야 하기에 이렇게 마련된 부분을 고려해주시기를 바랍니다.


그리고 해당 브랜드의 가치관도 스카치작업하여 벽면에 새겨두었는데요. 이렇게 문구를 새겨두는 것이 유치해보일 수 있지만, 계속해서 눈에 띄고 사람들에게 각인되면서 저절로 브랜드에 동화되는 효과를 불러옵니다. 그래서 직원들의 사기를 증가시키는데에 도움이 될 수 있다고 생각합니다.



입구 바로 옆에 위치한 진열대에는 해당 브랜드에서 취득한 다양한 증서를 나열할 수 있도록 맞춤 제작되었습니다. 높이를 설정하였고 아래는 어두운 컬러로, 상단은 화이트 컬러로 하여 무게감을 실었는데요. 층마다 조명을 매립하여서 안에 놓여진 소품이 더욱 눈에 잘띄이게도 도와드렸습니다.



회의가 진행되는 서울 강동구 고덕비즈밸리 u1센터 지식산업센터인테리어 스튜디오 쇼룸의 컨퍼런스룸은 심플함 그 자체입니다. 심플한 것이 최고라는 의미가 그대로 담겨진 해당 컨퍼런스룸은 시크하고 현대적인 느낌이 물씬 풍겨지는데요.



벽면에는 선반을 설치하여서 간단한 제품을 올려둘 수 있게 하였고, 화이트보드를 감쪽같이 매립하여 군더더기 없는 미니멀 인테리어를 완성했습니다. 이렇게 빌트인할것을 고려하여서 전체 벽면도 동일한 디자인으로 구성하는 센스까지!



마지막으로 CEO룸은 동일한 컨셉이지만, 독립적인 공간에 마련되었습니다. 시멘트 질감이 고급스럽게 느껴지는 바닥재와 동일한 테이블로 통일감을 주었으며, 뒷 벽면은 블랙 컬러를 활용하여 전체적으로 무게감있는 공간을 만들어냈습니다.



메인 사무실은 다른 곳보다는 살짝 한 톤을 밝혔습니다. 업무를 보아야 하는 공간이기에 너무 어두우면 집중이 되지 않기 때문인데요. 그리고 자체제작으로 만들어진 가구들은 서랍장과 테이블의 상판도 동일하게 만들어졌는데요. 이렇게 컨셉에 충실한 가구들도 함께하기에 조금 더 완성도 높은 서울 강동구 고덕비즈밸리 u1센터 지식산업센터인테리어 스튜디오 쇼룸이 만들어졌다고 보여집니다.

이렇게 디테일한 부분까지 하나한 신경쓰며 만들어진 쇼룸 인테리어.
고급스럽고 깔끔한 애견 용품을 만들어내는 회사에 걸맞는 디자인이라 클라이언트분도 너무나 만족하셨는데요. 직원들이 행복할 수 있는 곳에서 더욱 높은 효율을 기대할 수 있는것은 당연한 이야기입니다.
사무실 인테리어 아직도 고민하고 계신가요? 컨셉도 제대로 못정하셨다고요?
괜찮습니다. 916디자인이 함께할테니!
아래의 번호로 언제든지 문의 부탁드립니다.
공사문의 010-3235-8427
▼▼▼▼포트폴리오 더보기▼▼▼▼
https://916er.com/
\
2023.09.08 - [사무실인테리어] - 광명 티아모 it타워 사무실인테리어 편안한 시공현장
광명 티아모 it타워 사무실인테리어 편안한 시공현장
광명 티아모 it타워 사무실인테리어 편안한 시공현장 안녕하세요 916디자인입니다. 이제는 저녁이 되면 살짝 쌀쌀한 바람이 느껴질 정도로, 가을이 찾아왔습니다. 시간은 왜이리도 빠른지 벌써 2
dopamine7.com
2023.09.03 - [사무실인테리어] - 동대문구 청량리 지식산업센터인테리어 세련된 우드컨셉의 사무실디자인 시공과정 소개
동대문구 청량리 지식산업센터인테리어 세련된 우드컨셉의 사무실디자인 시공과정 소개
동대문구 청량리 지식산업센터인테리어 세련된 우드컨셉의 사무실디자인 시공과정 소개 안녕하세요 916 디자인입니다. 자연에서 흔히 볼 수 있는 색감인 브라운과 그린 계열을 인테리어에 사용
dopamine7.com
2023.09.02 - [사무실인테리어] - 수원 광교 플렉스데시앙 사무실인테리어 75평형 다양한 공간별 시공 과정 소개
수원 광교 플렉스데시앙 사무실인테리어 75평형 다양한 공간별 시공 과정 소개
수원 광교 플렉스데시앙 사무실인테리어 75평형 다양한 공간별 시공 과정 소개 안녕하세요 916디자인입니다. 요즘 점점 세련된 사무실이 많이 생기면서, 새로이 리모델링을 앞둔 대표님들의 고
dopamine7.com
2023.09.05 - [DOPAMINE] - 백화점 아울렛 팝업스토어인테리어 브랜드의 이미지를 녹여낸 결과물
백화점 아울렛 팝업스토어인테리어 브랜드의 이미지를 녹여낸 결과물
ㅂ백화점 아울렛 팝업스토어인테리어 브랜드의 이미지를 녹여낸 결과물 안녕하세요 916디자인입니다. 이번엔 또 색다른 현장을 가지고 왔는데요. 매번 사무실이나 다양한 상업공간을 하다가,
dopamine7.com
2023.08.30 - [DOPAMINE] - 평택 지원 G1 지식산업센터인테리어 60평형 사무실 공간 활용 배치 디자인
평택 지원 G1 지식산업센터인테리어 60평형 사무실 공간 활용 배치 디자인
ㅍ평택 지원 G1 지식산업센터인테리어 60평형 사무실 공간 활용 배치 디자인 안녕하세요 916디자인입니다. 요즘은 아파트 인테리어도 같은 평수에 여러 타입을 만들어 고객들의 선택권을 존중해
dopamine7.com
'사무실인테리어' 카테고리의 다른 글
| 구리갈매 현대테라타워 사무실인테리어 효율적인 지식산업센터 리모델링 디자인 (0) | 2023.09.21 |
|---|---|
| 영등포 에이스ns타워 지식산업센터인테리어 81평형 넓은 개방감이 느껴지는 디자인 (0) | 2023.09.18 |
| 화성 동탄 우미뉴브 지식산업센터 사무실인테리어 깔끔하고 균형잡힌 배치 (0) | 2023.09.15 |
| 교습소 학원리모델링 견적 디자인 시공 최상의 만족도를 보여드립니다 (0) | 2023.09.12 |
| 광명 티아모 it타워 사무실인테리어 편안한 시공현장 (0) | 2023.09.08 |
| 백화점 아울렛 팝업스토어인테리어 브랜드의 이미지를 녹여낸 결과물 (0) | 2023.09.05 |
| 동대문구 청량리 지식산업센터인테리어 세련된 우드컨셉의 사무실디자인 시공과정 소개 (0) | 2023.09.03 |
| 수원 광교 플렉스데시앙 사무실인테리어 75평형 다양한 공간별 시공 과정 소개 (0) | 2023.09.02 |
- Total
- Today
- Yesterday
- 사무실인테리어
- 회사인테리어
- 헤어샵인테리어
- 피티샵인테리어
- 사무실인테리어공사
- 인천사무실인테리어
- 인테리어
- 3D디자인
- 사무실인테리어후기
- 인테리어디자인
- 사무실인테리어비용
- 3D사무실인테리어
- 사무실리모델링
- 상가인테리어
- 사무실인테리어디자인
- 지식산업센터인테리어
- 사무실인테리어업체
- 학원인테리어
- 헬스장인테리어
- 미용실인테리어
- 오피스인테리어
- 병원인테리어
- 사무실인테리어전문
- 학원인테리어디자인
- 사무실인테리어견적
- interior
- 사무실인테리어잘하는곳
- 사무실디자인
- 916디자인
- 사무실인테리어추천
| 일 | 월 | 화 | 수 | 목 | 금 | 토 |
|---|---|---|---|---|---|---|
| 1 | ||||||
| 2 | 3 | 4 | 5 | 6 | 7 | 8 |
| 9 | 10 | 11 | 12 | 13 | 14 | 15 |
| 16 | 17 | 18 | 19 | 20 | 21 | 22 |
| 23 | 24 | 25 | 26 | 27 | 28 | 29 |
| 30 |
