티스토리 뷰
목차
구리갈매 현대테라타워 사무실인테리어 효율적인 지식산업센터 리모델링 디자인
안녕하세요 916디자인입니다.
오늘은 구리갈매 현대테라타워 1층 전체를
사용한 사무실인테리어 시공 현장 소개를
준비 했습니다.
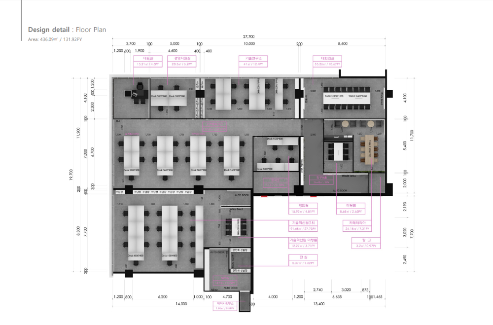
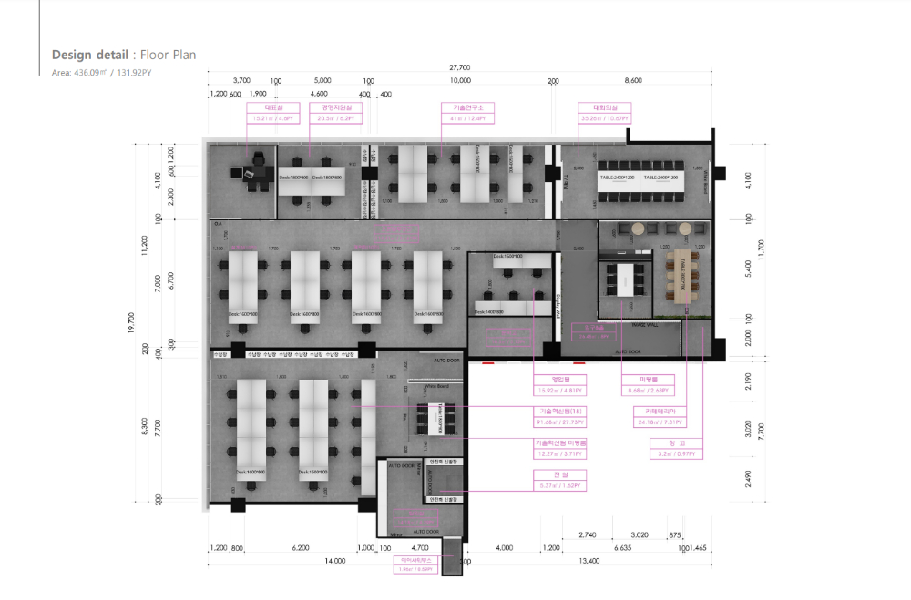
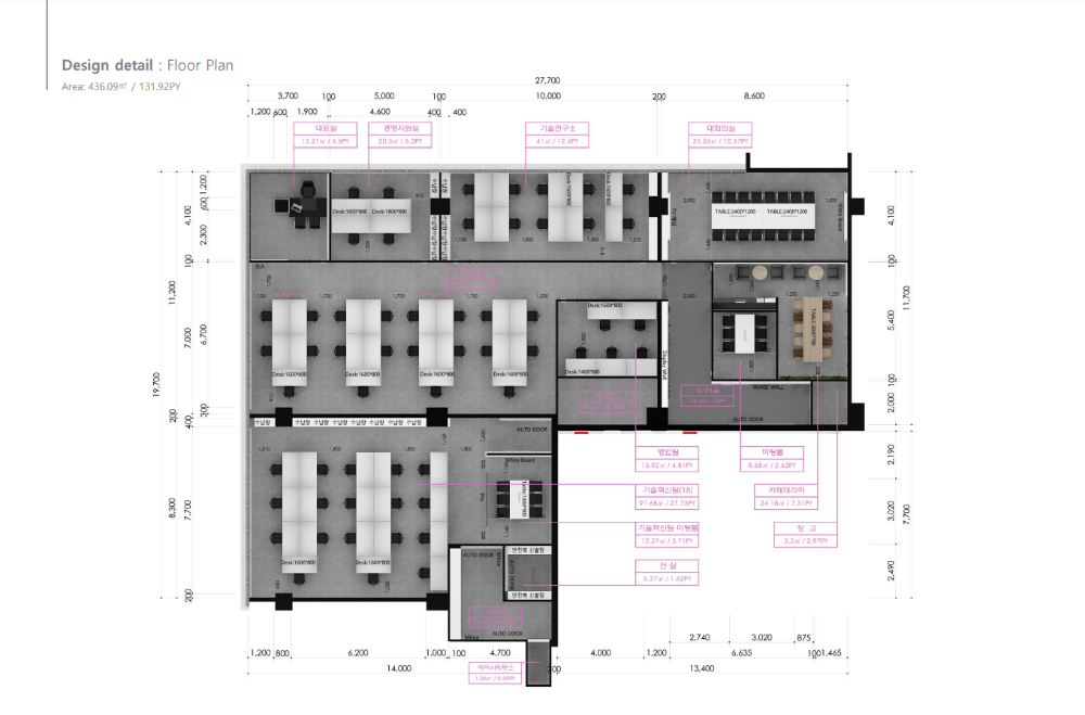
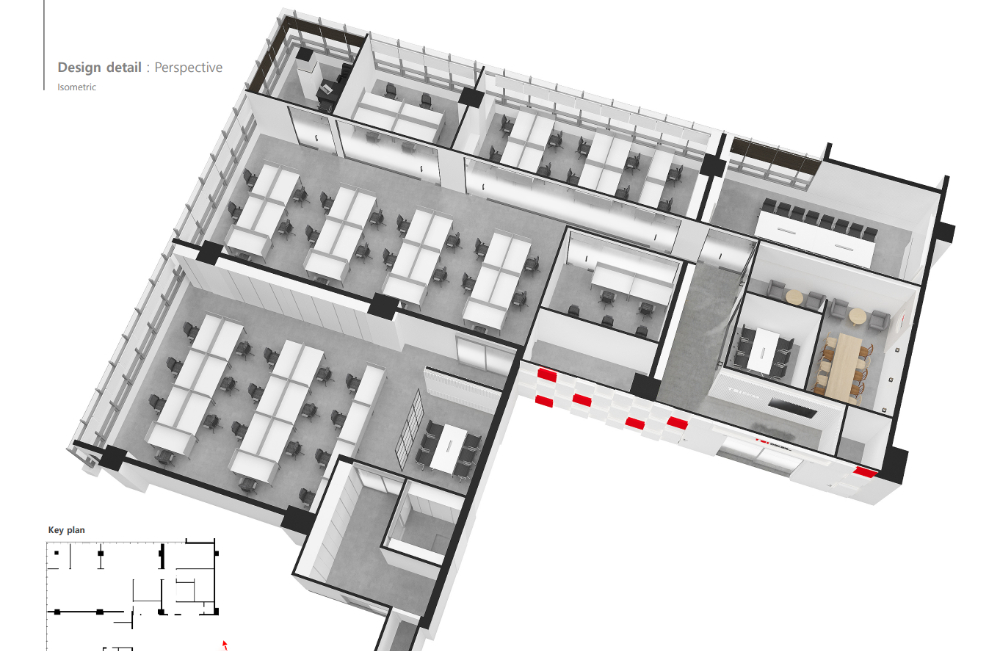
- 3D 디자인 소개


먼저 3D아이소를 통해 사무실인테리어의 전체적인 구조부터 살펴보도록 하겠습니다. 1층 전체를 사용하고 있는 만큼 기술연구소,기술혁신팀, 경영지원실, 카페테리아 등 다양한 공간이 구성 되었는데요. 각각의 공간들은 업무 효율과 이동 동선을
고려해 가장 적합한 위치로 배치 했습니다.


현대테라타워는 모던한 인테리어 컨셉으로 다양한 마감재와 조명, 아이덴티티 컬러를 활용해 현대적이면서도 편안한 분위기를 연출해 3D디자인을 제작 했습니다. 외부 파사드부터 2가지 컨셉으로 기업의 이미지가 잘 나타날 수 있도록 디자인적 요소를 가미해 제안 드렸습니다.2가지 모두 아크릴 스카시와 인테리어 필름으로 포인트를 준 디자인으로 기업 이미지를 강조 시켰습니다.





그리고 사무실 내부는 전체적으로 모던한 칼라를 사용해 차분하고 편안한 분위기로 연출 했습니다. 공간마다 플랜트 박스나 인조대리석, 데코타일 등을 활용하여 밋밋함을 줄이고 기업의 현대적인 이미지를 더해주었는데요.
클라이언트분의 니즈와 기업의 이미지가 3D디자인을 통해 자연스럽게 표현되어 완성도가 매우 높았습니다. 이를 바탕으로 현장에서도 전문가들의 발 빠른 작업이 진행 되었는데요. 지금부터는 구리갈매 현대테라타워 사무실인테리어의 시공 현장을 함께 보시죠!
- 시공 진행 현장





이번 현장은 신축 건물이라 별도의 철거없이 목작업부터 진행되었습니다. 천장은 화이트 컬러 도장이나 석고흡음 타공판으로 바닥은 깔끔하게 에폭시 마감으로 시공 될 예정입니다.



그래서 목작업과 글라스월 등의 구조물부터 설치하는 작업이 진행 되었는데요. 텅 비어있던 공간이 어떻게 채워질지 기대 됩니다.




점점 제안 드린 3D디자인처럼 완성되고있는 구리갈래 사무실 인테리어! 메인 포인트 요소였던 템바보드 마감과 조명까지 더해지니 완성 전인데도 벌써 현대적이고 편안한 분위기가 느껴집니다. 공정 별 전문가가 직접 시공하는 만큼 완성도 역시 높게 마무리 된 것 같습니다.


외부 파사드는 제안 드렸던 2가지 시안 중 상단에 로고가 들어가는 첫 번째 시안으로 확정 되어 인테리어 필름 마감 후 조명 공사가 진행되고 있습니다. 시공 현장은 여기까지 살펴보도록 하고 지금부터는 시공이 완성된 모습을 자세히소개해드리도록 하겠습니다.
- 시공 완료 현장


먼저 구리갈매 현대테라타워 사무실인테리어의 외관입니다. 1층에 위치해있어 외부 창에도 시트 작업을 진행 했는데요. 시트 작업이 깔끔하게 마무리 되어 멀리서도 한눈에 사무실 위치가 파악됩니다.


파사드에는 상단에 아크릴 스카시로 싸인로고까지 설치되니 가시성이 더 높아진 것 같습니다. 벽면에는 아이덴티티 컬러인 레드로 포인트를 주었고, 편의를 위해 자동문도 신규로 설치해주었습니다. 주차장과 연결된 통로라 바닥은 에폭시로 시공하지 않고 효율적으로 기존 바닥마감을 유지 했습니다.



내부로 들어가면 가장 먼저 화이트 템바보드의 입구가 눈에 들어옵니다. 템바보드에는 LED 전면 발광 스카시를 설치하고
TV를 매립해 기업 관련 영상을 띄울 수 있도록 만들었습니다. 실내 공간은 다크 그레이 컬러의 에폭시로 바닥을 마감하고 천장도 화이트로 도장해 깔끔한 이미지를 더해주었습니다.




사무실 내부로 이어지는 복도 공간에는 우드 템바보드와 선반, 간접조명, 조화 디스플레이, 싸인 로고로 포인트를 주었는데요. 다수의 포인트 요소들이 사용 되었음에도 컬러 톤을 맞춰 복잡하지 않고 심플하게 연출 되었습니다.




그 다음으로 소개해드릴 공간은 미팅룸입니다. 미팅룸은 복도에 위치해 있어 출입문은 글라스월에 그라데이션 시트지를 부착해 프라이빗하게 이용할 수 있도록 했습니다. 그리고 내부 우드 템바보드 벽면에는 백글라스 페인팅을 사용해 화이트 보드를 설치해 미팅룸의 활용도를 높였습니다.





다음은 플렌테리어로 포인트를 준 구리갈매 현대테라타워 사무실의 카페테리아입니다.카페테리아도 화이트&우드 인테리어가 적용되었는데요. 여기에 라인 조명과 팬던트 조명이 더해져 편안한 분위기를 더해주었습니다. 더불어 출입문 쪽으로는 싱크대와 상하부장을 설치해 실용성도 높였습니다.




다음은 벽면의 세계지도 디자인이 돋보이는 대회의실입니다. 입구 맞은편으로 큰 창도 있고 천장과 벽면에 다수의 조명이 설치 되어있어서 안쪽으로 들어가는 구조임에도 답답함 없이 개방감이 크게 느껴집니다. 또한, 대회의실은 벽면과 천장 모드 흡음 보드를 사용하여 프라이빗하게 이용하실 수 있도록 만들었습니다.



구리갈매 현대테라타워의 대표실은 2면이 통창으로 설치되어있어 내부 인테리어는 최대한 심플하게 구성 했습니다. 중간 기둥에만 아크릴 스카시로 기업 로고를 넣어주었고, 수납장도 매립하여 화이트 컬러로 깔끔하게 마감 했습니다.




다음은 메인 업무 공간입니다. 회의실이나 연구실 등 기타 업무시설 중앙에 위치하여 업무 효율을 높여주었습니다. 업무 공간은 두 곳으로 구분되어 있는데 두 공간 모두 넓은 스페이스를 사용하도록 설계해 여유있는 공간감을 자랑합니다.



그리고 안쪽으로는 유리월 가벽을 사용해 기술혁신팀 공간으로 만들어주었습니다. 반오픈형 구조지만 바닥 마감재도 다르게 시공하여 공간이 구분되어 있다는 것을 확실하게 느낄 수 있습니다.



그리고 중간 자동문을 지나 가장 안쪽으로 들어가면 기술 연구소가 위치해 있습니다. 아예 자동문으로 업무 공간과 구분시켜 소음 걱정 없이 사용할 수 있도록 만들었습니다.
여기까지 구리갈매 현대테라타워 사무실인테리어 시공 현장 소개였습니다. 대형 평수 시공인 만큼 다양한 공간들의 인테리어를 살펴볼 수 있었는데요. 916디자인은 대형 평수 시공 경험도 많은 곳이니 언제든 편안하게 문의 주시길 바랍니다.
공사문의 010-3235-8427
▼▼▼▼포트폴리오 더보기▼▼▼▼
https://916er.com/
사무실인테리어 디자인 공사 비용견적 플랫폼
오피스 회사 사무실인테리어 아파트형공장 지식산업센터 사옥 공장리모델링 복층공사 헬스장 피티샵 시공 견적 비용 3D디자인 비교 중개플랫폼 업체
916er.com
2023.09.18 - [사무실인테리어] - 영등포 에이스ns타워 지식산업센터인테리어 81평형 넓은 개방감이 느껴지는 디자인
영등포 에이스ns타워 지식산업센터인테리어 81평형 넓은 개방감이 느껴지는 디자인
영등포 에이스ns타워 지식산업센터인테리어 81평형 넓은 개방감이 느껴지는 디자인 안녕하세요 916디자인입니다. 공간의 개방감을 넓히는데에는 다양한 방법이 있는데요. 저희는 그 중에서도 뻔
dopamine7.com
2023.09.15 - [사무실인테리어] - 화성 동탄 우미뉴브 지식산업센터 사무실인테리어 깔끔하고 균형잡힌 배치
화성 동탄 우미뉴브 지식산업센터 사무실인테리어 깔끔하고 균형잡힌 배치
화성 동탄 우미뉴브 지식산업센터 사무실인테리어 깔끔하고 균형잡힌 배치 안녕하세요 916디자인입니다. 오늘은 화성 동탄 우미뉴브 지식산업센터 사무실인테리어를 소개해드리려고 하는데요.
dopamine7.com
2023.09.12 - [사무실인테리어] - 교습소 학원리모델링 견적 디자인 시공 최상의 만족도를 보여드립니다
교습소 학원리모델링 견적 디자인 시공 최상의 만족도를 보여드립니다
교습소 학원리모델링 견적 디자인 시공 최상의 만족도를 보여드립니다 안녕하세요 916디자인입니다. 예전에는 무조건 대형 학원이 대세였다면, 요즘은 아이들을 1:1로 밀착하여 가르칠 수 있는
dopamine7.com
2023.09.10 - [사무실인테리어] - 서울 강동구 고덕비즈밸리 u1센터 지식산업센터인테리어 스튜디오 쇼룸
서울 강동구 고덕비즈밸리 u1센터 지식산업센터인테리어 스튜디오 쇼룸
서울 강동구 고덕비즈밸리 u1센터 지식산업센터인테리어 스튜디오 쇼룸 안녕하세요 916디자인입니다. 요즘은 쇼룸이나 편집샵 그리고 팝업스토어가 하나의 마케팅 수단으로 자리잡히면서, 브랜
dopamine7.com
2023.09.08 - [사무실인테리어] - 광명 티아모 it타워 사무실인테리어 편안한 시공현장
광명 티아모 it타워 사무실인테리어 편안한 시공현장
광명 티아모 it타워 사무실인테리어 편안한 시공현장 안녕하세요 916디자인입니다. 이제는 저녁이 되면 살짝 쌀쌀한 바람이 느껴질 정도로, 가을이 찾아왔습니다. 시간은 왜이리도 빠른지 벌써 2
dopamine7.com
'사무실인테리어' 카테고리의 다른 글
| 안산 KDT 지식산업센터 블랙인테리어 다크톤이 매력적인 사무실디자인 (0) | 2023.10.10 |
|---|---|
| 가산 퍼블릭 지식산업센터인테리어 대형 사무실 확실한 컨셉으로 (0) | 2023.10.08 |
| 강서구 마스터밸류 에이스 사무실인테리어 스튜디오를 겸비한 세련된 MZ오피스 (0) | 2023.10.06 |
| 청담동 피부과 병원인테리어 주목받는 강남인테리어업체의 시공기 (0) | 2023.09.25 |
| 영등포 에이스ns타워 지식산업센터인테리어 81평형 넓은 개방감이 느껴지는 디자인 (0) | 2023.09.18 |
| 화성 동탄 우미뉴브 지식산업센터 사무실인테리어 깔끔하고 균형잡힌 배치 (0) | 2023.09.15 |
| 교습소 학원리모델링 견적 디자인 시공 최상의 만족도를 보여드립니다 (0) | 2023.09.12 |
| 서울 강동구 고덕비즈밸리 u1센터 지식산업센터인테리어 스튜디오 쇼룸 (0) | 2023.09.10 |
- Total
- Today
- Yesterday
- 사무실리모델링
- 사무실인테리어견적
- 병원인테리어
- 3D사무실인테리어
- 인천사무실인테리어
- 사무실인테리어추천
- 학원인테리어디자인
- 피티샵인테리어
- 사무실인테리어공사
- 인테리어디자인
- 미용실인테리어
- 지식산업센터인테리어
- interior
- 사무실인테리어비용
- 학원인테리어
- 사무실인테리어잘하는곳
- 사무실인테리어전문
- 오피스인테리어
- 헤어샵인테리어
- 상가인테리어
- 사무실인테리어후기
- 사무실인테리어업체
- 회사인테리어
- 3D디자인
- 사무실디자인
- 사무실인테리어
- 사무실인테리어디자인
- 인테리어
- 헬스장인테리어
- 916디자인
| 일 | 월 | 화 | 수 | 목 | 금 | 토 |
|---|---|---|---|---|---|---|
| 1 | 2 | 3 | ||||
| 4 | 5 | 6 | 7 | 8 | 9 | 10 |
| 11 | 12 | 13 | 14 | 15 | 16 | 17 |
| 18 | 19 | 20 | 21 | 22 | 23 | 24 |
| 25 | 26 | 27 | 28 | 29 | 30 | 31 |
