티스토리 뷰
목차
청담동 피부과 병원인테리어 주목받는 강남인테리어업체의 시공기
안녕하세요 강남인테리어업체 916디자인입니다.
요즘 감사하게도 많은 분들이 저희의 시공기를 보고 많은 연락을 주시고 있는데요.
사무실인테리어 뿐만 아니라 다양한 업종에서도 문의를 주셔서 바쁜 하루를 보내고 있습니다.
그래서 오늘도 준비한 시공사례는 바로 청담동 피부과 병원인테리어인데요.
예전에는 병원하면 모두가 하얗고 단조로운 공간을 떠올렸지만, 요즘은 그렇지 않습니다.
물론 깨끗한 이미지를 주는건 매한가지이지만, 그것을 표현하는 방식이 색달라졌는데요.
한번 함께 보실까요?
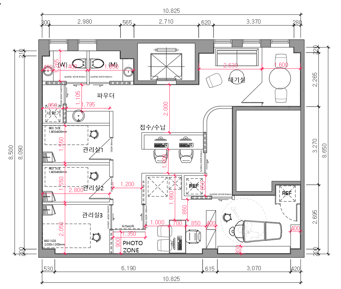
- 설계도

- 공사 진행 현장




이번에 의뢰해주신 클라이언트분께서는 다양한 강남인테리어업체와 상담을 해보았지만, 저희처럼 명확한 컨셉으로 제안을 주는 곳이 없다고 하셨는데요. 그래서 결국 916디자인과 함께 하기로 결정을 내리셨다고 합니다. 저희는 디자인에 있어서 심미성도 중요하지만 공간의 실용성까지 고려하여 제안을 드리는데요.



그리고 공간별로의 특색을 살리면서 다른 병원과의 차별성까지 둘 수 있는 세련된 아이디어를 항상 고민합니다. 덕분에 이번 청담동 피부과 병원인테리어현장도 남다른 컨셉으로 재탄생할 수 있었는데요. 시공 과정에서도 이를 표현하기 위해서 많은 노력을 기울였으며 어디 한 군데도 허투루하지 않았습니다.



고급스러우면서도 차분하고 환자들에게 믿음을 줄 수 있는 공간으로 다시 태어난 현장
이제 같이 보실까요?
- 시공 완료 현장


전체적으로 베이지와 우드톤으로 조화가 이루어진 청담동 피부과 병원인테리어는 아늑하면서도 럭셔리한 무드를 형성하는데요. 한가지 색상으로 통일하는 것이 아니라 톤온톤 조화로 비슷하면서도 조금은 색다른 느낌이 가미되었습니다. 그리고 일반적인 화이트 인테리어가 아닌만큼 확실한 차별성을 두었다 할 수 있는데요.
병원 로비가 주는 이미지가 강하기 때문에 이러한 컨셉을 사용하였으며, 미니멀한 느낌을 살리기위해 군더더기 없이 깔끔한 선으로 전체를 마무리하였습니다.

통로 사이에 빈벽은 그대로 두지 않고 또 하나의 작품을 전시하여서 공간의 특색을 살렸는데요. 병원인테리어라고해서 모두의 스테레오타입을 따르는 것이 아니라 자체적으로 혁신을 만들어낸 것이 바로 포인트입니다.


물론 깔끔한 이미지를 주어야 하는 병원이고 위생적으로 관리되어야 하는만큼 밝은 톤을 사용한 곳들도 있는데요. 이런 곳에서도 너무 쨍한 화이트보다는 살짝 아이보리 혹은 그레이 색상이 가미된 컬러를 사용했습니다. 그리고 몰딩은 과감하게 전부 삭제하고 군더더기 없는 라인이 돋보이는 것이 특징입니다.


또한, 따스한 느낌을 주기위해 청담동 피부과 병원인테리어 주목받는 강남인테리어업체에서는 우드소재를 활용했는데요. 살짝 다크한 우드톤의 목재를 활용하여서 럭셔리하면서도 세련된 분위기를 연출했습니다.


병원 특성상 개별실로 이뤄져 있는 경우가 많은데, 이때 답답하게 느끼지 않도록 벽면에는 타일로 색다른 변화를 주고 조명을 매립하는등의 포인트를 주었는데요. 곳곳에서 나타나는 이러한 조화들이 공간의 매력도를 더욱 높이고, 비슷하면서도 다른 소재를 활용해 재미는 올렸습니다.


또한 916디자인은 항상 재미있는 디테일 요소를 주는 것을 집중하는데요. 카운터 뒷편에는 직사각형으로 벽을 타공하여 조명을 매립해 신비로운 분위기를 만들어냈습니다. 그리고 포쉐린타입의 바닥 타일은 관리하기에도 용이하고 자연스러운 분위기를 만들어내는데에 도움이 되는데요.


공간으로 들어가기전에 비어진 벽면에도 밋밋하게 두지 않기 위해서 이렇게 흰색 조약돌과 나무를 이용한 오브제도 전시두었습니다. 병원이라고하면 딱딱한 분위기만 떠올리기 쉬운데, 이렇게 곳곳에 가미한 인테리어 포인트가 마음의 안정을 가져다주는데에도 도움이 될 수 있는데요. 공간이 친숙하게 느껴질수록 사람들의 긴장이 쉽게 풀어지기 때문입니다.



그리고 엘리베이터를 감싸고 있는 벽면은 대리석질감이 느껴지는 재료를 사용하여 더욱 고급스러운 분위기를 만들었는데요. 정말 다양한 재료가 사용된 것 같지만 모든 톤이 일정하게 같은 채도를 유지하고 있어 어느 하나가 튀거나 부담스럽게 느껴지지 않습니다.


또한 곳곳에 직선가 곡선을 교묘하게 배치하여서 너무 정적인 느낌이 들지 않게끔 주의했는데요. 클라이언트분께서도 정말 어디에서도 보지 못한 아름다운 디자인이라며 마음에 들어하셨고, 마감까지 깔끔하게 이뤄진 저희의 시공 실력에 대해서도 엄지를 치켜세워주셨습니다.


그리고 피부과에서는 세수를 해야 한다거나 손을 씻어야 할 일이 많기 때문에 세면대를 외부에도 하나 설치해두었는데요. 하부장을 구성하여서 필요한 물건을 바로 수납할 수 있게만들어 실용성을 높이고 거울의 뒷면에는 led조명이 부착되어져 얼굴을 조금 더 밝게 확인할 수 있도록 도와드렸습니다. 그리고 타원형타입의 부드러운 곡선을 가지고 있는 세면대와 벽면에 매립되어있는 수전으로 센스는 +100!



탈의실에는 위치한 세면대들의 경우 조적벽으로 제작하여 전체 미관을 해치지 않고 미니멀한 느낌을 살리게 완성되었는데요.

이처럼 청담동 피부과 병원인테리어는 강남인테리어업체인 916디자인에 의해 높은 완성도로 마무리 되었습니다. 한 번 방문하면 이 인테리어에 반해서 또 오고 싶다고 느껴질만큼의 매력적인 공간으로 탄생했으며, 피부과라는 업종에 맞게끔 위생적으로도 깔끔히 유지될 수 있는 소재만을 선택하였는데요.
916디자인은 이렇게 높은 퀄리티의 공간만을 만들어내고 있으며 다양한 시공기를 보유하고 있어 어떤 공간이던 원하는대로 만들어드릴 준비가 되어 있으니 한 번 둘러보시고 언제든지 연락 주시기를 바랍니다.
공사문의 010-3235-8427
▼▼▼▼포트폴리오 더보기▼▼▼▼
https://916er.com/
사무실인테리어 디자인 공사 비용견적 플랫폼
오피스 회사 사무실인테리어 아파트형공장 지식산업센터 사옥 공장리모델링 복층공사 헬스장 피티샵 시공 견적 비용 3D디자인 비교 중개플랫폼 업체
916er.com
2023.05.19 - [사무실인테리어] - 정신의학과 병원인테리어 안정감과 세련됨이 나타는 공간연출
정신의학과 병원인테리어 안정감과 세련됨이 나타는 공간연출
정신의학과 병원인테리어 안정감과 세련됨이 나타는 공간연출 안녕하세요 916디자인입니다. 예전과는 다르게 마음의 병을 대하는 사람들의 자세가 달라지면서 더 나은 삶을 위해 정신의학과 병
dopamine7.com
2023.03.29 - [사무실인테리어] - 인천 서창동 치과병원 사무실인테리어 디자인 비용 견적 깔끔하게
인천 서창동 치과병원 사무실인테리어 디자인 비용 견적 깔끔하게
인천 서창동 치과병원 사무실인테리어 디자인 비용 견적 깔끔하게 안녕하세요 916디자인입니다. 오늘은 인천 서창동 치과병원 사무실인테리어 시공 현장 소개를 준비 했습니다. 의료 서비스를
dopamine7.com
2023.09.21 - [사무실인테리어] - 구리갈매 현대테라타워 사무실인테리어 효율적인 지식산업센터 리모델링 디자인
구리갈매 현대테라타워 사무실인테리어 효율적인 지식산업센터 리모델링 디자인
구리갈매 현대테라타워 사무실인테리어 효율적인 지식산업센터 리모델링 디자인 안녕하세요 916디자인입니다. 오늘은 구리갈매 현대테라타워 1층 전체를 사용한 사무실인테리어 시공 현장 소
dopamine7.com
2023.09.18 - [사무실인테리어] - 영등포 에이스ns타워 지식산업센터인테리어 81평형 넓은 개방감이 느껴지는 디자인
영등포 에이스ns타워 지식산업센터인테리어 81평형 넓은 개방감이 느껴지는 디자인
영등포 에이스ns타워 지식산업센터인테리어 81평형 넓은 개방감이 느껴지는 디자인 안녕하세요 916디자인입니다. 공간의 개방감을 넓히는데에는 다양한 방법이 있는데요. 저희는 그 중에서도 뻔
dopamine7.com
2023.09.15 - [사무실인테리어] - 화성 동탄 우미뉴브 지식산업센터 사무실인테리어 깔끔하고 균형잡힌 배치
화성 동탄 우미뉴브 지식산업센터 사무실인테리어 깔끔하고 균형잡힌 배치
화성 동탄 우미뉴브 지식산업센터 사무실인테리어 깔끔하고 균형잡힌 배치 안녕하세요 916디자인입니다. 오늘은 화성 동탄 우미뉴브 지식산업센터 사무실인테리어를 소개해드리려고 하는데요.
dopamine7.com
'사무실인테리어' 카테고리의 다른 글
| 강남사무실인테리어 변호사 법무법인 로펌 사무실인테리어업체 916디자인 (0) | 2023.10.13 |
|---|---|
| 안산 KDT 지식산업센터 블랙인테리어 다크톤이 매력적인 사무실디자인 (0) | 2023.10.10 |
| 가산 퍼블릭 지식산업센터인테리어 대형 사무실 확실한 컨셉으로 (0) | 2023.10.08 |
| 강서구 마스터밸류 에이스 사무실인테리어 스튜디오를 겸비한 세련된 MZ오피스 (0) | 2023.10.06 |
| 구리갈매 현대테라타워 사무실인테리어 효율적인 지식산업센터 리모델링 디자인 (0) | 2023.09.21 |
| 영등포 에이스ns타워 지식산업센터인테리어 81평형 넓은 개방감이 느껴지는 디자인 (0) | 2023.09.18 |
| 화성 동탄 우미뉴브 지식산업센터 사무실인테리어 깔끔하고 균형잡힌 배치 (0) | 2023.09.15 |
| 교습소 학원리모델링 견적 디자인 시공 최상의 만족도를 보여드립니다 (0) | 2023.09.12 |
- Total
- Today
- Yesterday
- 헤어샵인테리어
- 피티샵인테리어
- 사무실인테리어
- 사무실인테리어비용
- 인테리어디자인
- 미용실인테리어
- 사무실인테리어전문
- 사무실인테리어디자인
- 인천사무실인테리어
- 3D사무실인테리어
- 사무실디자인
- 사무실인테리어공사
- 사무실인테리어업체
- 916디자인
- 병원인테리어
- 사무실인테리어추천
- 인테리어
- 사무실인테리어후기
- 오피스인테리어
- 사무실인테리어견적
- 3D디자인
- 지식산업센터인테리어
- 헬스장인테리어
- 학원인테리어
- 사무실리모델링
- interior
- 회사인테리어
- 사무실인테리어잘하는곳
- 상가인테리어
- 학원인테리어디자인
| 일 | 월 | 화 | 수 | 목 | 금 | 토 |
|---|---|---|---|---|---|---|
| 1 | 2 | 3 | 4 | 5 | 6 | 7 |
| 8 | 9 | 10 | 11 | 12 | 13 | 14 |
| 15 | 16 | 17 | 18 | 19 | 20 | 21 |
| 22 | 23 | 24 | 25 | 26 | 27 | 28 |
