티스토리 뷰
목차
가산 퍼블릭 지식산업센터인테리어 대형 사무실 확실한 컨셉으로
안녕하세요 916 디자인입니다.
대형 평수일수록 자재도 많이 필요하고, 공사 기간도 길어지기 마련입니다. 또한 공간이 너무 넓다보니 자칫 잘못하다가는 컨셉이 흐려지거나, 제대로 배치하지 못하여 잉여 공간이 생기기도 하는데요. 그래서 916디자인은 처음 설계 단계부터 꼼꼼하게 체크하고, 실제로 이용했을 때를 생각하여 실용적인 디자인으로 가산 퍼블릭 지식산업센터인테리어를 진행했습니다.
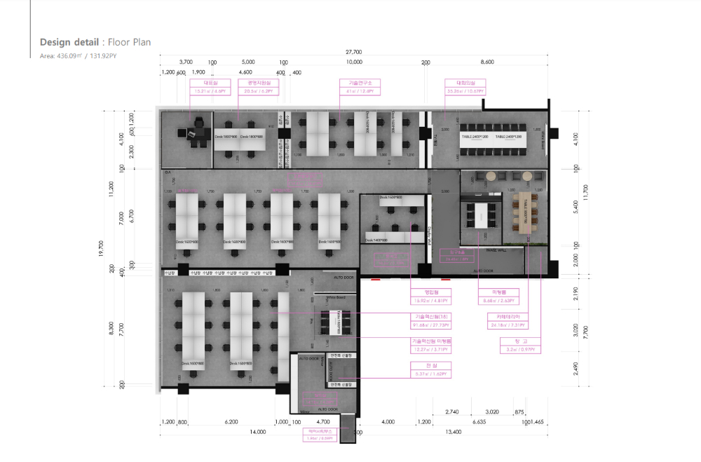
3D 디자인 제안




높은 퀄리티의 현장을 만들어내기 위해서 무엇보다 필요한 것은 사전 계획입니다. 그래서 916디자인에서는 이처럼 3D 디자인 계획을 먼저 수립하여 클라이언트와의 의견을 통일하고, 더 효율적인 공사 진행을 위한 밑바탕을 제작하는데요.




미리 공간마다 어떤 가구가 배치되고 어떻게 디자인 될지를 확인할 수 있기 때문에 의사결정도 빠르게 진행된다는 장점이 있습니다. 그렇다면 시공 현장 살펴볼까요?
시공 진행 현장





일반 사무실이 아니라 지식산업센터인테리어의 경우 주차장에서 바라보는 외관 파사드부터 시작하여 내부 모든 공간을 디자인해야 합니다. 그리고 요즘은 트렌디하면서도 실용적인 것을 바라시기 때문에 두 마리 토끼를 모두 잡을 수 있는 아이디어를 매번 고민해야 하는데요. 또한, 이미 합의된 디자인 도면대로 공간이 만들어질 수 있도록 단계별 더블 체크도 항시 이뤄지고 있습니다.



특히 현장에서는 어떠한 실수도 나오지 않도록 모든 전문가들이 서로 협업하고 꾸준한 소통을 이어가고 있는데요. 이번 현장에서는 외관 파사드에 입체적인 포인트를 주기 위해서 목작업을 덧대어가며 작업하였는데요. 이러한 과정 속에서도 오차가 발생하지 않도록 세심하게 작업하고 있으며, 모두가 한 마음 한 뜻으로 임하고 있습니다.




또한, 공간마다 필요한 작업을 진행하고 그 시기와 순서에 맞추어서 각자의 할일을 묵묵히 해내는것이 바로 916디자인의 큰 장점인데요. 세련된 디자인과 꼼꼼하고 높은 퀄리티의 마감으로 이뤄지는 공사 이 2가지의 조건이 합쳐지면 바로? 가산 퍼블릭 지식산업센터인테리어이니 지금부터 함께 보실게요!
시공 완료 현장



- 외관
이번 가산 퍼블릭 지식산업센터인테리어의 경우 건물 1층에 위치하고 있어 가시성을 높이기 위한 외부 작업도 진행되었는데요. 파릇파릇한 가로수들의 전경에 어울리도록 전체가 유리 도어로 되어 있으며 상단에 시트지 작업을 통해 회사의 아이덴티티를 명확히 표현하고 있습니다.



- 외관 파사드
주차장쪽으로 진입하는 메인 도어에도 확실한 포인트를 주었는데요. 아트월을 제작하여서 입체적으로 블록이 지그재그로 포인트를 만들어내고 있으며 조명을 매립해 신비로운 분위기도 연출했습니다. 그리고 회사의 로고에서 느껴지는 기본 메인 컬러인 화이트와 레드를 주로 하고 있다는 것도 하나의 매력입니다.



- 로비
내부 로비부터 들어가면, 외부의 통통튀는 분위기와는 다르게 아늑하면서도 정적인 무드를 느낄 수 있는데요. 라이트한 우드 소재로 템바보드 형식의 아트월을 표현하였으며 하단에는 플랜테리어를 이용해 분위기를 중화시키고 있습니다.



또한 메인 사무실까지 이어지는 복도에도 양쪽으로 글라스도어가 처리되어 있다보니 답답함이 느껴지지 않는데요. 공간에 다채로움을 부여하기 위해서 살짝씩 달라지는 컨셉의 재미를 느끼실 수 있습니다. 그리고 답답함을 줄이기 위해서 천장은 노출 시공으로 진행하였습니다.


- 소회의실
개별 공간도 찬찬히 둘러보실텐데요. 기본적으로 벽면의 포인트는 템바보드 형식을 취하는 곳이 많습니다. 소회의실도 템바보드 벽면에 화이트보드를 매립하였으며 개별 공간이라는 느낌을 주기 위해 바닥의 소재를 달리한 것을 보실 수 있습니다.



- 카페테리아
카페테리아 공간은 휴식을 취한다는 목적에 맞게 힐링의 공간으로 꾸몄습니다. 과하지 않은 벽등으로 은은한 포인트를 만들어주고, 쉬어가는 느낌이 들 수 있도록 상단에는 벽선반에 플랜테리어를 가미했습니다.


그리고 부엌이 위치하고 있어 필요한 도움을 받을 수 있는데요. 간단한 조리도 가능하고 위아래 수납장이 제대로 준비되어져 있기에 간식 수납도 가능합니다. 그리고 모던한 컨셉을 위해서 벽면도 그레이 컬러의 타일로 이루어져 있으며 어두운색의 수납장이 눈에띄는 가산 퍼블릭 지식산업센터인테리어의 카페테리아 입니다.



- 대회의실
지금 보시면 아시겠지만 공간이 바뀔 때마다 눈에 띄게 바뀌는 게 있는데요. 바로 바닥의 컬러와 소재입니다. 대회의실의 경우 무거우면서도 조금 진중한 분위기를 위해 어두운 컬러를 활용했습니다. 그러면서도 눈이 밝아야 하다보니 우물형 천장의 둘레에 모두 다운라이트 조명을 설치했습니다.


- 또한 팀별 사무실도 마찬가지로 바닥은 어둡게 처리하였고, 근무를 하는 곳인만큼 LED 사각 조명을 설치하여서 훤히 밝힐 수 있도록 하였습니다.



- CEO룸
임원실도 마찬가지인데요. 한가지 다른점이 있다면 해당 공간에는 이미 건물의 기둥이 있어 동선에 조금 방해를 받는 상황이었습니다. 하지만 916디자인은 이런 조형의 특성조차도 높은 이해도를 바탕으로 효율적인 동선과 가구배치를 통해 하나의 디자인으로 승화시켰습니다.




가산 퍼블릭 지식산업센터인테리어는 공간이 여러개로 나뉘어져있고, 계속해서 분리가 되기 때문에 조금 좁다고 느껴지실 수도 있습니다. 하지만 기본적으로 대형 평수이기에 이러한 장점을 살리기 위한 개방감도 곳곳에 준비되어져 있는데요. 이를테면 전체 통창으로 이루어진 건물 벽면의 유리나 노출 천장에 달려 있는 라인 조명과 같은 것들입니다.




그리고 전체적으로 밝은 분위기를 유지하기 위해서 화이트톤으로 통일하고, 바깥으로는 바로 조경이 보이기 때문에 1층임에 누릴 수 있는 다양한 이점들을 인테리어에 녹여내기 위해 노력했는데요.



공간을 분리할 때에도 무조건적으로 나누는 것이 아니라 창문을 통해서 이어지는 느낌을 둔다거나 혹은 가벽을 임시적으로 세우거나 유리를 활용하는 등 다양한 아이디어를 진행했습니다.


특히 이렇게 중앙에 세워지는 유리가벽의 경우 공간이 나눠진다는 느낌은 확실히 주지만 그렇다고 차단된 무드는 아니기 때문에 공간의 연결성이 끊기지 않아서 개방감을 유지할 수 있다는 장점이 있습니다.




이번 가산 퍼블릭 지식산업센터인테리어 현장을 진행하면서 정말 많은 고민을 했는데요. 하지만 한가지, 너무 많은 것을 담아내려고 하다보면 이도저도 안된다는 저희만의 철학을 관통시켜 하나의 컨셉을 올곧게 유지한 것이 신의 한수였다고 생각합니다. 모던하면서도 깔끔한 사무실이 완성되었고 곳곳의 특징을 그대로 드러낼 수 있는 도화지가 되었습니다.



지금도 많은 분들이 저희에게 가산 퍼블릭 지식산업센터인테리어 문의를 주실때 해당 사례를 예시로 보여주시곤 하는데요. 깔끔하면서도 공간별로 어느 정도의 특징을 잡아 매력도를 살리고 싶으시다면 언제든지 문의 주시기를 바랍니다.
또한 해당 블로그를 둘러보시면 수 많은 시공사례가 준비되어 있으니 언제든지 살펴보세요!
공사문의 010-3235-8427
▼▼▼▼포트폴리오 더보기▼▼▼▼
https://916er.com/
사무실인테리어 디자인 공사 비용견적 플랫폼
오피스 회사 사무실인테리어 아파트형공장 지식산업센터 사옥 공장리모델링 복층공사 헬스장 피티샵 시공 견적 비용 3D디자인 비교 중개플랫폼 업체
916er.com
2023.10.06 - [사무실인테리어] - 강서구 마스터밸류 에이스 사무실인테리어 스튜디오를 겸비한 세련된 MZ오피스
강서구 마스터밸류 에이스 사무실인테리어 스튜디오를 겸비한 세련된 MZ오피스
강서구 마스터밸류 에이스 사무실인테리어 스튜디오를 겸비한 세련된 MZ오피스 안녕하세요 916디자인입니다. 얼마전까지 에어컨을 틀었던 여름 날씨인데, 갑자기 쌀쌀해지며 벌써 외투를 꺼내
dopamine7.com
2023.10.02 - [사무실인테리어] - 수원 광교 더퍼스트 지식산업센터인테리어 복층의 매력을 한껏 높인 레이아웃
수원 광교 더퍼스트 지식산업센터인테리어 복층의 매력을 한껏 높인 레이아웃
수원 광교 더퍼스트 지식산업센터인테리어 복층의 매력을 한껏 높인 레이아웃 안녕하세요 916디자인입니다. 즐거운 한가위 보내셨을까요? 올해는 개천절까지 이어지는 긴 연휴로 많은 분들이
dopamine7.com
2023.09.21 - [사무실인테리어] - 구리갈매 현대테라타워 사무실인테리어 효율적인 지식산업센터 리모델링 디자인
구리갈매 현대테라타워 사무실인테리어 효율적인 지식산업센터 리모델링 디자인
구리갈매 현대테라타워 사무실인테리어 효율적인 지식산업센터 리모델링 디자인 안녕하세요 916디자인입니다. 오늘은 구리갈매 현대테라타워 1층 전체를 사용한 사무실인테리어 시공 현장 소
dopamine7.com
2023.09.18 - [사무실인테리어] - 영등포 에이스ns타워 지식산업센터인테리어 81평형 넓은 개방감이 느껴지는 디자인
영등포 에이스ns타워 지식산업센터인테리어 81평형 넓은 개방감이 느껴지는 디자인
영등포 에이스ns타워 지식산업센터인테리어 81평형 넓은 개방감이 느껴지는 디자인 안녕하세요 916디자인입니다. 공간의 개방감을 넓히는데에는 다양한 방법이 있는데요. 저희는 그 중에서도 뻔
dopamine7.com
2023.09.15 - [사무실인테리어] - 화성 동탄 우미뉴브 지식산업센터 사무실인테리어 깔끔하고 균형잡힌 배치
화성 동탄 우미뉴브 지식산업센터 사무실인테리어 깔끔하고 균형잡힌 배치
화성 동탄 우미뉴브 지식산업센터 사무실인테리어 깔끔하고 균형잡힌 배치 안녕하세요 916디자인입니다. 오늘은 화성 동탄 우미뉴브 지식산업센터 사무실인테리어를 소개해드리려고 하는데요.
dopamine7.com
'사무실인테리어' 카테고리의 다른 글
| 수원시 영통구 영어학원인테리어 잘가르치는 학원의 이미지를 가득 담은 40평 공간 (1) | 2023.10.21 |
|---|---|
| 916디자인 교대 법무법인 70평 인테리어 리모델링 (0) | 2023.10.19 |
| 강남사무실인테리어 변호사 법무법인 로펌 사무실인테리어업체 916디자인 (0) | 2023.10.13 |
| 안산 KDT 지식산업센터 블랙인테리어 다크톤이 매력적인 사무실디자인 (0) | 2023.10.10 |
| 강서구 마스터밸류 에이스 사무실인테리어 스튜디오를 겸비한 세련된 MZ오피스 (0) | 2023.10.06 |
| 청담동 피부과 병원인테리어 주목받는 강남인테리어업체의 시공기 (0) | 2023.09.25 |
| 구리갈매 현대테라타워 사무실인테리어 효율적인 지식산업센터 리모델링 디자인 (0) | 2023.09.21 |
| 영등포 에이스ns타워 지식산업센터인테리어 81평형 넓은 개방감이 느껴지는 디자인 (0) | 2023.09.18 |
- Total
- Today
- Yesterday
- 상가인테리어
- 인천사무실인테리어
- 사무실인테리어전문
- 사무실인테리어잘하는곳
- 지식산업센터인테리어
- 회사인테리어
- 3D사무실인테리어
- 916디자인
- 사무실리모델링
- 3D디자인
- 헤어샵인테리어
- 사무실인테리어디자인
- 헬스장인테리어
- interior
- 병원인테리어
- 인테리어디자인
- 사무실디자인
- 학원인테리어
- 학원인테리어디자인
- 인테리어
- 사무실인테리어견적
- 사무실인테리어후기
- 사무실인테리어업체
- 사무실인테리어비용
- 사무실인테리어추천
- 사무실인테리어공사
- 사무실인테리어
- 피티샵인테리어
- 미용실인테리어
- 오피스인테리어
| 일 | 월 | 화 | 수 | 목 | 금 | 토 |
|---|---|---|---|---|---|---|
| 1 | 2 | 3 | 4 | 5 | 6 | 7 |
| 8 | 9 | 10 | 11 | 12 | 13 | 14 |
| 15 | 16 | 17 | 18 | 19 | 20 | 21 |
| 22 | 23 | 24 | 25 | 26 | 27 | 28 |
