티스토리 뷰
목차
현대 사회에서 사무실 공간은 단순히 업무를 수행하는 장소가 아니라,
기업의 이미지와 직원의 생산성을 결정짓는 중요한 요소라는 점이 점점 더 부각되고 있습니다.
특히 송파지역은 다양한 기업들이 밀집해 있는 만큼, 경쟁력 있는 사무실 디자인이 필요하죠.
대형 사무실 공간의 경우에는 그 규모에 맞는 전략적이고 창의적인 디자인이 필수적인데요.
오늘은 송파인테리어업체 대형 사무실 공간연출 디자인이 돋보이는 시공사례를 소개하겠습니다.
송파인테리어업체 공간 활용의 중요성

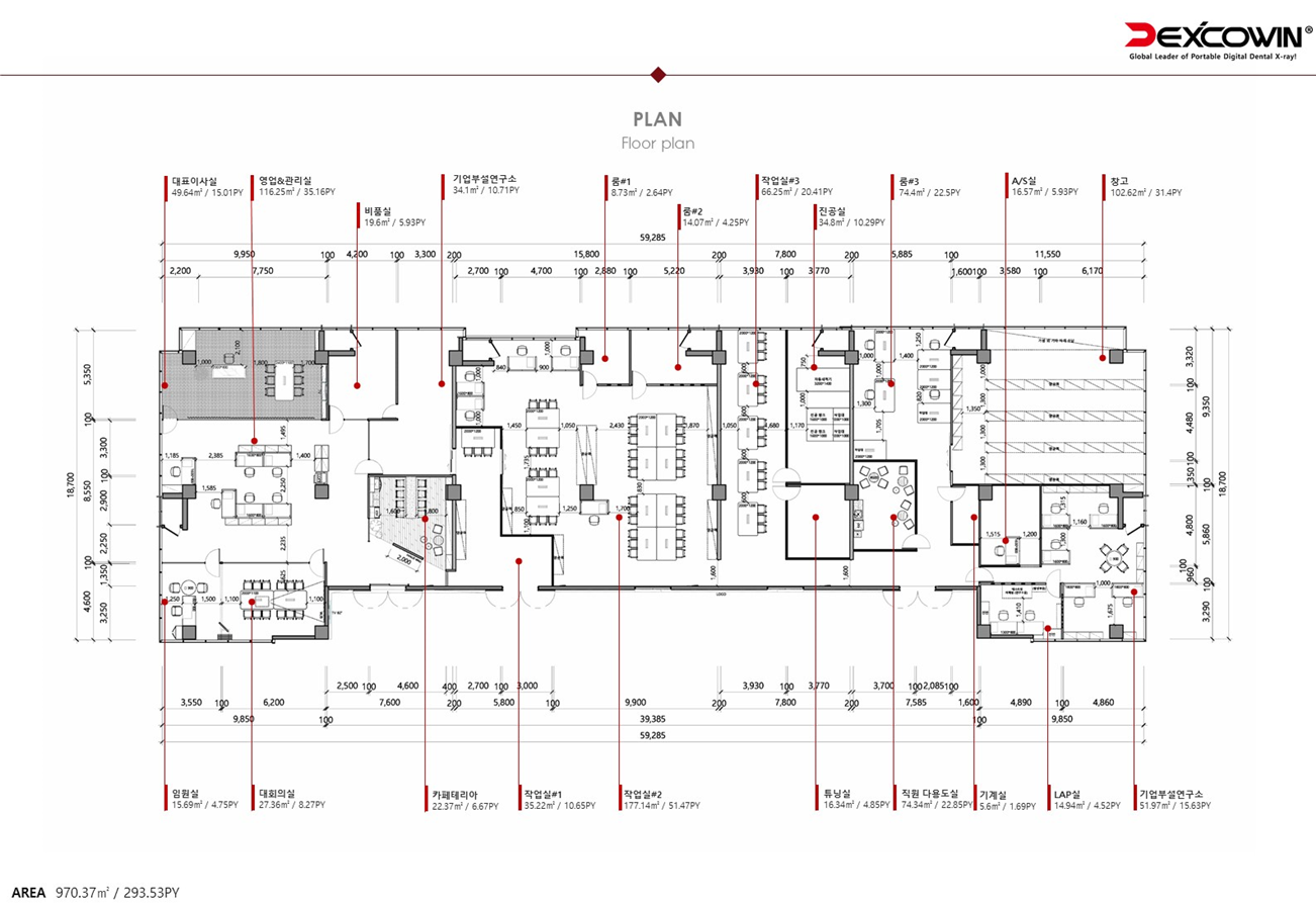
이번 송파인테리어업체 대형 사무실 공간 레이아웃 디자인입니다.
대형사무실 공간의 활용은 매우 중요합니다. 특히 직원들이 자주 사용하는 회의실, 휴게실, 작업 공간 등을
효율적으로 배치하면 업무의 흐름이 자연스러워 질수 있습니다.





직원들이 편리하게 이동할 수 있는 동선을 고려하여 공간을 구성하는 것이 필요합니다.
예를 들어 각 부서별로 가까운 위치에 회의실을 배치하면 팀 워크가 형성되고, 협업이 원활해 질 수 있습니다.


또한 공간을 어떻게 나누느냐에 따라 직원들의 집중력이 달라질 수 있습니다.
개방형 사무실과 개인 사무실의 혼합 구성을 통해 직원들은 서로의 소통을 원활하게 하면서도,
필요할 때는 조용한 공간에서 집중할 수 있는 환경을 조성하는 것도 중요합니다.
이러한 공간 활용은 직원들의 만족도를 높이고, 결과적으로 기업의 생산성에도
긍정적인 영향을 미친답니다.
송파인테리어업체 공사 진행 과정




설계가 완료되면, 본격적으로 사용할 자재를 선정하는 단계로 넘어갑니다.
이 과정에서는 고객의 예산과 디자인에 맞는 자재를 찾아야 하죠.
바닥재, 벽지, 가구 등 다양한 요소들이 포함되는데요.
송파인테리어업체는 다양한 공급업체와 협력하여 품질 좋은 자재를 확보하고,
고객이 만족할 수 있도록 최선을 다합니다.




공사가 시작되면, 송파인테리어업체의 전문가들이 현장에서 작업을 진행합니다.
이 단계에서는 설계도에 다라 공간을 실제로 변형시키는 과정이 이루어집니다.
각 분야의 전문가들이 협력하여 공사를 진행하며,
이 과저에서 발생할 수 있는 문제를 신속하게 해결해주죠.



공사가 완료된 후에는 인테리어 마감 작업이 진행됩니다.
이 단계에서는 세부적인 디테일을 다듬고, 공간의 최종적인 모습을 완성화는 과정입니다.
조명 설치, 가구 배치, 장식물 배치 등을 통해 전체적인 분위기를 조성하게 됩니다.
마감작업이 끝나면 최종 점검을 통해 모든 것이 제대로 설치되었는지 확인하고 공사를 마감하게 됩니다.
송파인테리어업체 기능성과 디자인의 조화
가장 먼저 송파인테리어업체 대형 사무실의 입구 아트월입니다.
유리 가벽을 통해 현대적인 세련미와 개방감을 동시에 선사하였는데요.
또한 조명과 색상으로 멋스러움을 더했습니다.
대형 사무실의 조명과 색상은 직원들의 기분에 큰 영향을 미치는데요.
밝고 자연스러운 조명은 작업 효율성을 높이고 , 색상 또한 중요한 역할을 하죠.










대형 사무실의 디자인은 단순히 미적인 요소뿐만 아니라 기능성도 고려해야 합니다.
송파인테리어업체는 실용적이면서도 세련된 디자인을 추구하는데요.
가구나 장비의 배치가 효율적이어야 하며, 직원들이 쉽게 접근할 수 있도록 설계하였습니다.
또한 바닥 인테리어에도신경써서 작업하였답니다.






대형 사무실은 자연광을 최대한 활용하는 것도 좋은 방법입니다.
창문을 통해 들어오는 자연광은 직원들에게 긍정적인 에너지를 주고,
사무실을 더욱 쾌적한 분위기로 만들어주죠.
자연광과 조명이 조화롭게 어우러진 공간은 직원들이 더욱 편안하게 느껴지도록 도와줄 뿐 아니라,
사무실의 이미지에도 긍정적인 영향을 미칠수 있습니다.






사무실의 디자인이 기능성과 조화를 이루는 것도 중요합니다.
대형 사무실에 맞게 오픈형 사무공간에 우드 포인트로 분위기를 자연스럽게 연출하였습니다.








대형 사무실 공간에서는 개방형공간과 개인 프라이버시를 어떻게 조화롭게 구성할지가 중요한 요소입니다.
송파인테리어업체는 이 두 가지를 균형 있게 조절하는 디자인을 선사하였습니다.
개방형 공간은 소통을 원활하게 하지만, 개인 프라이버시가 필요할 때는 쉽게 이동할 수 있는
소규모 회의실을 마련하는 것이 필요합니다.







마지막으로 송파인테리업체 대형 사무실의 입구 파사드 모습입니다.
입구는 기업을 알리기 위한 홍보 수단일 뿐만 아니라, 고객들에게 가장 먼저 보이는 공간이므로
특별히 더욱 신경써서 작업하였습니다.
대형 사무실이도 보니 넓은 입구 벽면을 활용하여 대형 기업 사인물을 설치하여 주었으며,
조명으로 포인트를 주어 따뜻하면서도 세련된 이미지로 연출하였습니다.
지금까지 송파인테리어업체의 대형사무실 공간 연출 디자인에 대해 살펴보았는데요.
대형 사무실 공간 연출 디자인 제안은 단순한 미적 요소를 넘어서는 다양한 고려가 필요합니다.
공간활용, 조명과 색상, 휴식공간, 기능성과 디자인의 조화 등 여러 요소가 복합적으로 작용하여
직원들의 업무 환경을 개선할 수 있습니다.
이러한 점을 바탕으로 대형사무실 뿐만 아니라 어떠한 사무공간의 디자인도 자신있으니
사무실인테리어를 고민하신다면 주저하지 마시고 저희에게 맡겨 주시기 바랍니다.
📞 공사 문의
010-3235-8427
🔽 포트폴리오 더 보기 🔽
사무실인테리어 디자인 공사 비용견적 플랫폼 - 사무실인테리어 916
사무실인테리어 916
916er.com
2025.02.14 - [사무실인테리어] - 안성인테리어업체 기업이 직원과 함께 성장할 수 있는 사무실 디자인 제안해드릴게요
안성인테리어업체 기업이 직원과 함께 성장할 수 있는 사무실 디자인 제안해드릴게요
안녕하세요, 916디자인입니다. 경기도 안성도 기업들이 사무실을 많이 두고 있습니다.안성의 경제적 성장과 함께 다양한 산업이 발전되고 있는데요, 사무실디자인을 통해 직원들의 생산성과
dopamine7.com
2025.01.22 - [사무실인테리어] - 향동사무실인테리어 인기있는 오피스디자인을 완성하고 싶으시다면 이 글에 주목하세요
향동사무실인테리어 인기있는 오피스디자인을 완성하고 싶으시다면 이 글에 주목하세요
안녕하세요, 916디자인입니다. 오늘은 '향동사무실인테리어'의 포트폴리오를 준비해보았습니다. 향동은 최근 몇 년간 빠르게 발전하고 있는 지역으로, 많은 기업들이 이곳에 사무실
dopamine7.com
2025.01.07 - [사무실인테리어] - 서초인테리어업체 세련된 사무실 공간연출이 돋보이는 오피스 시공기
서초인테리어업체 세련된 사무실 공간연출이 돋보이는 오피스 시공기
서초인테리어업체 오피스 디자인 분석 최근 다양한 업종의 회사들이 생겨남에 따라 업무공간 또한 다양한 스타일로 변화되고 있습니다.그 중에서도 가장 중요하게 생각하는 부분이 있다면
dopamine7.com
2024.12.12 - [사무실인테리어] - 사무실인테리어업체 기업의 특성을 살려내는 오피스 리모델링
사무실인테리어업체 기업의 특성을 살려내는 오피스 리모델링
안녕하세요. 구일육디자인 입니다. 최근 스타트업 열풍이 불면서 많은 회사들이 생겨났습니다.그에 따라 업무 공간의 중요성도 커지게 되었는데요.직원들의 업무 효율성과 창의성을 높이기 위
dopamine7.com
'사무실인테리어' 카테고리의 다른 글
| 의왕인테리어업체 전문가가 알려주는 소형 사무실 설계 시공 노하우 (0) | 2025.05.27 |
|---|---|
| 이천인테리어업체 사무실 디자인 구성부터 완공까지 한번에 해결 (0) | 2025.05.26 |
| 경기도 양평인테리어업체 톡톡 튀는 컬러가 돋보이는 사무실 디자인 완성 (0) | 2025.03.27 |
| 성수동리모델링 합리적인 가격으로 일하고 싶은 사무실인테리어 디자인 시공 후기 (0) | 2025.03.13 |
| 강남구역삼동인테리어 사무실리모델링 유리가벽을 활용한 오피스 공사 진행 (1) | 2025.02.18 |
| 강남서초동인테리어 오피스리모델링 전문시공 업체 (0) | 2025.02.18 |
| 인천인테리어업체 시공 포트폴리오 클래식과 현대의 조화로운 사무실 디자인 (0) | 2025.02.14 |
| 김포인테리어업체 오피스디자인 내집같은 분위기 연출 포트폴리오 (0) | 2025.02.14 |
- Total
- Today
- Yesterday
- 916디자인
- 인테리어디자인
- 사무실인테리어후기
- 상가인테리어
- 사무실리모델링
- 인테리어
- 학원인테리어디자인
- 피티샵인테리어
- 병원인테리어
- 회사인테리어
- 사무실인테리어추천
- 사무실인테리어잘하는곳
- interior
- 사무실인테리어업체
- 사무실인테리어전문
- 사무실디자인
- 3D사무실인테리어
- 인천사무실인테리어
- 미용실인테리어
- 학원인테리어
- 헤어샵인테리어
- 오피스인테리어
- 사무실인테리어견적
- 사무실인테리어비용
- 사무실인테리어디자인
- 지식산업센터인테리어
- 3D디자인
- 헬스장인테리어
- 사무실인테리어
- 사무실인테리어공사
| 일 | 월 | 화 | 수 | 목 | 금 | 토 |
|---|---|---|---|---|---|---|
| 1 | ||||||
| 2 | 3 | 4 | 5 | 6 | 7 | 8 |
| 9 | 10 | 11 | 12 | 13 | 14 | 15 |
| 16 | 17 | 18 | 19 | 20 | 21 | 22 |
| 23 | 24 | 25 | 26 | 27 | 28 | 29 |
| 30 |









