티스토리 뷰
목차
최근 저희 916디자인으로 사무실 인테리어 디자인 문의가 많아지고 있는데요.
그 중에서도 가장 많은 관심을 받는 스타일은 클래식과 현대적인 요소를 결합한 모던클래식 입니다.
고급스러우면서도 편안한 분위기를 연출할 수 있어 인기가 많은데요.
이번 포스팅에서는 실력 있는 인천인테리어업체 916디자인에서 시공한 모던클래식 스타일의 사무실 디자인을 소개해드리겠습니다.
인천인테리어업체 선택의 중요성

회사의 얼굴이라고 할 수 있는 사무실은 직원들의 업무 효율과 회사의 이미지에 큰 영향을 미칩니다.
그렇기 때문에 사무실 인테리어는 매우 중요한 요소 중 하나입니다.
이때, 인천인테리어업체 선택은 그 시작점이라고 할 수 있습니다.
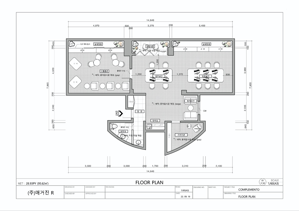
저희가 디자인한 3D 이미지를 보시면 그 이유를 아실겁니다.


그렇다면 왜 인천인테리어업체 선택이 중요할까요?
우선, 업체의 전문성이 결과물의 완성도를 좌우하기 때문입니다.
공간의 목적과 특성을 고려한 디자인, 사용자의 편의성을 고려한 설계, 안전하고 튼튼한 시공 등은 모두 전문성에서 비롯됩니다.
오랜 경험과 노하우를 가진 업체일수록 이러한 전문성을 보유하고 있을 확률이 높습니다.


다음으로, 업체의 소통 능력 역시 중요한 요소 중 하나 입니다.
인테리어는 고객의 요구사항을 반영해야 하는 작업이기 때문에, 고객과의 원활한 소통이 필수적입니다.
고객의 의견을 적극적으로 수용하고, 이를 반영한 결과물을 제시할 수 있는 업체를 선택하는 것이 좋습니다.



마지막으로 사후관리 여부 확인 해야 합니다.
시공이 완료된 후에도 일정 기간 동안 사후관리를 제공하는 업체를 선택하는 것이 추후 발생할 수 있는 문제에 대한 대처와 보완에 유리합니다.
인천인테리어업체 시공 전 체크리스트




성공적인 인테리어 시공을 위해서는 철저한 준비와 계획이 필요합니다.
클라이언트의 요구사항을 충분히 파악하고, 이를 바탕으로 디자인 컨셉을 결정해야 합니다.
또 현장 실측을 통해 정확한 도면과 견적을 산출해야 하며 공정표를 작성하여 일정 관리를 해야 합니다.


클라이언트와의 원활한 소통 역시 중요한데 수시로 의견을 교환하여 디자인을 수정하거나 보완해야 하고 공사진행 상황을 공유하여 클라이언트의 불안감을 해소시켜야 합니다.



하자 없는 공사를 위해 품질관리에도 신경 써야 하는데 자재 검수를 철저히 하고 시공 후에는 검수를 꼼꼼히 하여 하자를 예방해야 합니다.
인천인테리어업체 클래식과 현대 디자인의 조화




이번 인천인테리어업체의 시공 포트폴리오는 이러한 고민 끝에 클래식과 현대 디자인을 조화롭게 결합한 사무실 디자인을 제안했습니다.
각각의 스타일이 가진 장점을 살리면서도 서로 조화롭게 어우러져 독특하고 개성 있는 공간을 만들어냈습니다.
먼저, 클래식 디자인은 고급스럽고 우아한 분위기를 연출하며, 안정감과 편안함을 제공합니다.
반면 현대 디자인은 간결하고 모던한 분위기를 연출하며, 창의성과 생산성을 높이는 데 도움을 줍니다.
이번 프로젝트에서는 바닥, 천장, 벽 등의 기본 구조는 클래식한 디자인을 적용하되, 가구, 조명, 소품 등은 현대적인 디자인을 적용하였습니다.
이렇게 함으로써 전통적인 멋과 현대적인 감각이 공존하는 공간을 만들었습니다.











클래식 디자인의 대표적인 특징은 대칭과 균형입니다.
공간 구성과 가구 배치 등이 대칭적이고 균형 있게 이루어져 있어 안정감과 편안함을 느낄 수 있습니다.
또 다른 특징으로는 곡선과 직선의 조화롭게 어우러져 있다는 점이며, 목재, 대리석, 벨벳 등 다양한 소재를 사용하여 고급스러운 느낌을 강조한다는 점도 들 수 있습니다.


















이런 클래식 디자인은 다양한 장점을 가지고 있습니다.
우선, 시간이 지나도 변함없이 세련된 느낌을 유지 한다는 점인데, 이는 유행에 민감하지 않아 오래 사용해도 질리지 않는다는 뜻이기도 합니다.
또다른 장점은 다양한 공간에 적용할 수 있다는 점입니다.
사무실뿐만 아니라, 레스토랑, 카페, 호텔 등에서도 클래식 디자인을 활용하여 고급스럽고 우아한 분위기를 연출할 수 있습니다.










현대 디자인의 핵심 요소로는 단순함, 미니멀리즘, 기하학적 패턴 등이 있습니다.
불필요한 장식을 최소화하고, 간결하고 실용적인 디자인을 추구합니다.
또 화이트, 그레이, 블랙 등의 모노톤 컬러를 주로 사용하여 깔끔하고 세련된 느낌을 강조하기도 하며, 기하학적 패턴이나 그래픽 요소를 활용하여 독특하고 개성 있는 분위기를 연출하기도 합니다.
















이런 현대적인 디자인은 다양한 매력을 가지고 있는데, 그 중 하나는 높은 실용성입니다.
간결하고 실용적인 디자인으로 공간을 효율적으로 활용할 수 있으며, 업무나 생활에 편리함을 제공합니다.
또다른 매력은 다양한 스타일과 쉽게 조화를 이룰 수 있다는 점 입니다.
예를 들어, 클래식 디자인이나 자연주의 디자인과 함께 조합하여 독특하고 개성 있는 공간을 만들 수 있습니다.


최근 기업들은 사무실 디자인 개선에 많은 관심을 기울이고 있습니다.
사무실 환경이 직원들의 업무 성과와 밀접한 연관이 있다는 연구 결과가 나오고 있기 때문입니다.
실제로 미국의 한 연구에 따르면, 사무실 디자인이 좋을수록 직원들의 스트레스 수준이 낮아지고 업무 만족도와 생산성이 높아지는 것으로 나타났습니다.





그렇다면 사무실 디자인 변화가 어떻게 직원의 생산성에 영향을 미칠까요?
가장 큰 요인은 직원들의 심리적 안정감입니다. 편안하고 아늑한 분위기에서는 직원들이 스트레스를 덜 받고 집중력을 유지할 수 있어 업무 효율성이 높아집니다.
또 다양한 공간 구성 역시 직원들의 창의성을 자극하고 소통과 협업을 촉진하는 데 도움이 됩니다.



인천인테리어업체에서 시공한 모던클래식 스타일의 사무실 디자인을 살펴보았습니다.
공간의 목적과 클라이언트의 취향을 고려하여 맞춤형 인테리어를 제공하는 것이 중요한데요.
세련되고 고급스러운 분위기를 연출하면서도 업무 효율성을 높일 수 있는 공간을 원하신다면 언제든지 문의해주시기 바랍니다.
☎ 공사문의 ☎
010 -3235- 8427
▼ 포트폴리오 더보기 ▼
https://916er.com/
사무실인테리어 디자인 공사 비용견적 플랫폼 - 사무실인테리어 916
사무실인테리어 916
916er.com
2025.02.14 - [사무실인테리어] - 원주인테리어업체 사무실 우드디자인을 원하신다면 참고하세요
원주인테리어업체 사무실 우드디자인을 원하신다면 참고하세요
우드디자인은 최근 사무실 인테리어에서 큰 인기를 끌고 있습니다. 자연 친화적이고 따뜻한 느낌을 주는 나무 소재를 활용한 인테리어는 직원들의 생산성을 높이고, 고객에게도 긍정
dopamine7.com
2025.02.14 - [사무실인테리어] - 안성인테리어업체 기업이 직원과 함께 성장할 수 있는 사무실 디자인 제안해드릴게요
안성인테리어업체 기업이 직원과 함께 성장할 수 있는 사무실 디자인 제안해드릴게요
안녕하세요, 916디자인입니다. 경기도 안성도 기업들이 사무실을 많이 두고 있습니다.안성의 경제적 성장과 함께 다양한 산업이 발전되고 있는데요, 사무실디자인을 통해 직원들의 생산성과
dopamine7.com
2025.02.05 - [사무실인테리어] - 군포인테리어업체가 알려주는 모르면 후회할 오피스 디자인 한 끗 디테일
군포인테리어업체가 알려주는 모르면 후회할 오피스 디자인 한 끗 디테일
최근 기업들은 업무 환경 개선을 위해 다양한 시도를 하고 있습니다.그 중 가장 기본이 되는 것은 오피스인테리어라고 할 수 있는데요. 같은 규모와 예산이라도 어떻게 디자인하느냐에 따라 공
dopamine7.com
2025.01.22 - [사무실인테리어] - 향동사무실인테리어 인기있는 오피스디자인을 완성하고 싶으시다면 이 글에 주목하세요
향동사무실인테리어 인기있는 오피스디자인을 완성하고 싶으시다면 이 글에 주목하세요
안녕하세요, 916디자인입니다. 오늘은 '향동사무실인테리어'의 포트폴리오를 준비해보았습니다. 향동은 최근 몇 년간 빠르게 발전하고 있는 지역으로, 많은 기업들이 이곳에 사무실
dopamine7.com
'사무실인테리어' 카테고리의 다른 글
| 성수동리모델링 합리적인 가격으로 일하고 싶은 사무실인테리어 디자인 시공 후기 (0) | 2025.03.13 |
|---|---|
| 송파인테리어업체 대형 사무실 공간연출 디자인 제안 (0) | 2025.03.13 |
| 강남구역삼동인테리어 사무실리모델링 유리가벽을 활용한 오피스 공사 진행 (1) | 2025.02.18 |
| 강남서초동인테리어 오피스리모델링 전문시공 업체 (0) | 2025.02.18 |
| 김포인테리어업체 오피스디자인 내집같은 분위기 연출 포트폴리오 (0) | 2025.02.14 |
| 원주인테리어업체 사무실 우드디자인을 원하신다면 참고하세요 (0) | 2025.02.14 |
| 안성인테리어업체 기업이 직원과 함께 성장할 수 있는 사무실 디자인 제안해드릴게요 (1) | 2025.02.14 |
| 강남인테리어 직원들 만족도 높은 일하고 싶은 오피스 공간을 완성하다 (0) | 2025.02.14 |
- Total
- Today
- Yesterday
- 헤어샵인테리어
- 오피스인테리어
- 사무실인테리어디자인
- 인테리어
- 미용실인테리어
- 피티샵인테리어
- interior
- 사무실인테리어견적
- 학원인테리어디자인
- 헬스장인테리어
- 사무실인테리어비용
- 사무실인테리어전문
- 사무실인테리어업체
- 지식산업센터인테리어
- 3D사무실인테리어
- 사무실인테리어추천
- 3D디자인
- 사무실디자인
- 916디자인
- 사무실인테리어후기
- 상가인테리어
- 인테리어디자인
- 학원인테리어
- 인천사무실인테리어
- 사무실인테리어공사
- 사무실인테리어잘하는곳
- 회사인테리어
- 사무실인테리어
- 병원인테리어
- 사무실리모델링
| 일 | 월 | 화 | 수 | 목 | 금 | 토 |
|---|---|---|---|---|---|---|
| 1 | 2 | 3 | ||||
| 4 | 5 | 6 | 7 | 8 | 9 | 10 |
| 11 | 12 | 13 | 14 | 15 | 16 | 17 |
| 18 | 19 | 20 | 21 | 22 | 23 | 24 |
| 25 | 26 | 27 | 28 | 29 | 30 | 31 |













