티스토리 뷰
목차
사무실인테리어는 기업의 이미지와 분위기를 결정짓는 중요한 요소입니다.
특히 잠실과 같은 비즈니스 중심지에서 사무실 환경은 직원들의 근무 만족도와 생산성에 직접적인 영향을 주기 때문에
많은 기업들이 인테리어 공사에 신경을 씁니다.
하지만 예산이 한정되어 있는 상황에서 어떻게 가성비 좋은 인테리어 업체를 찾을 수 있을까요?
이번 잠실인테리어업체 사무실 공사 후기를 보면서 가성비까지 고려한 인테리어란 무엇인지 확인해 보시기 바랍니다.
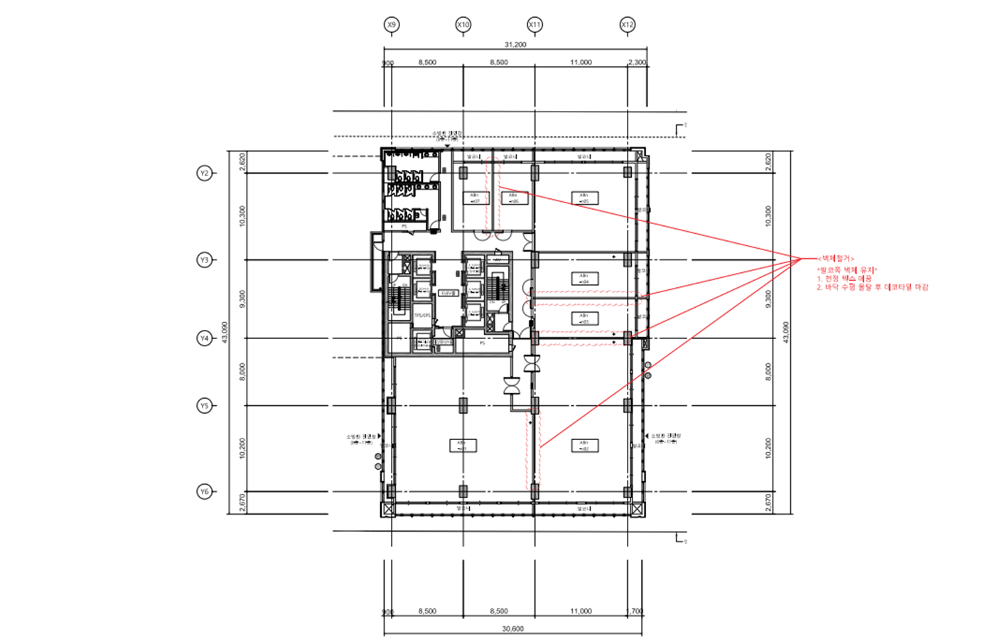
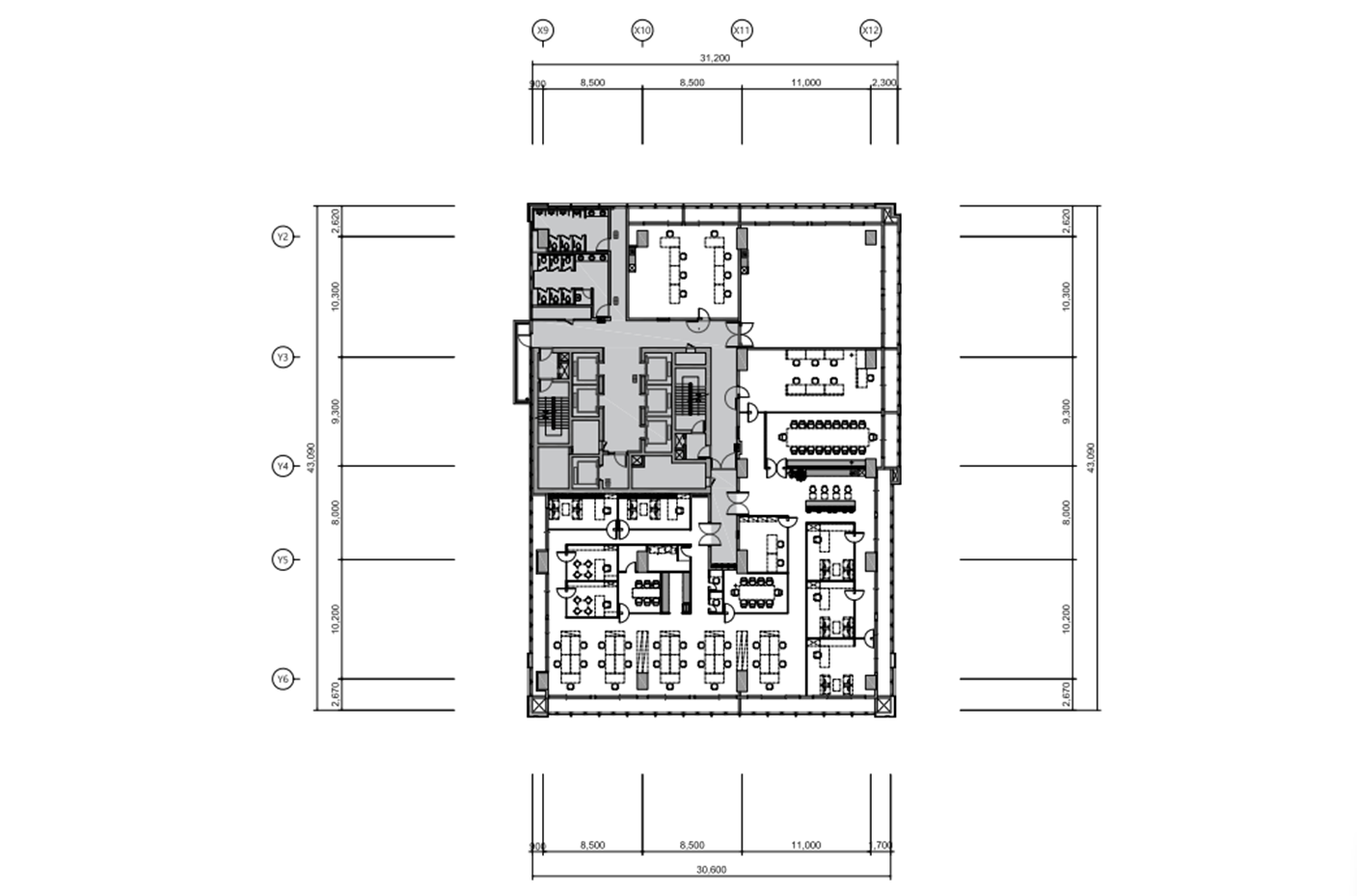
잠실인테리어업체 디자인 설계


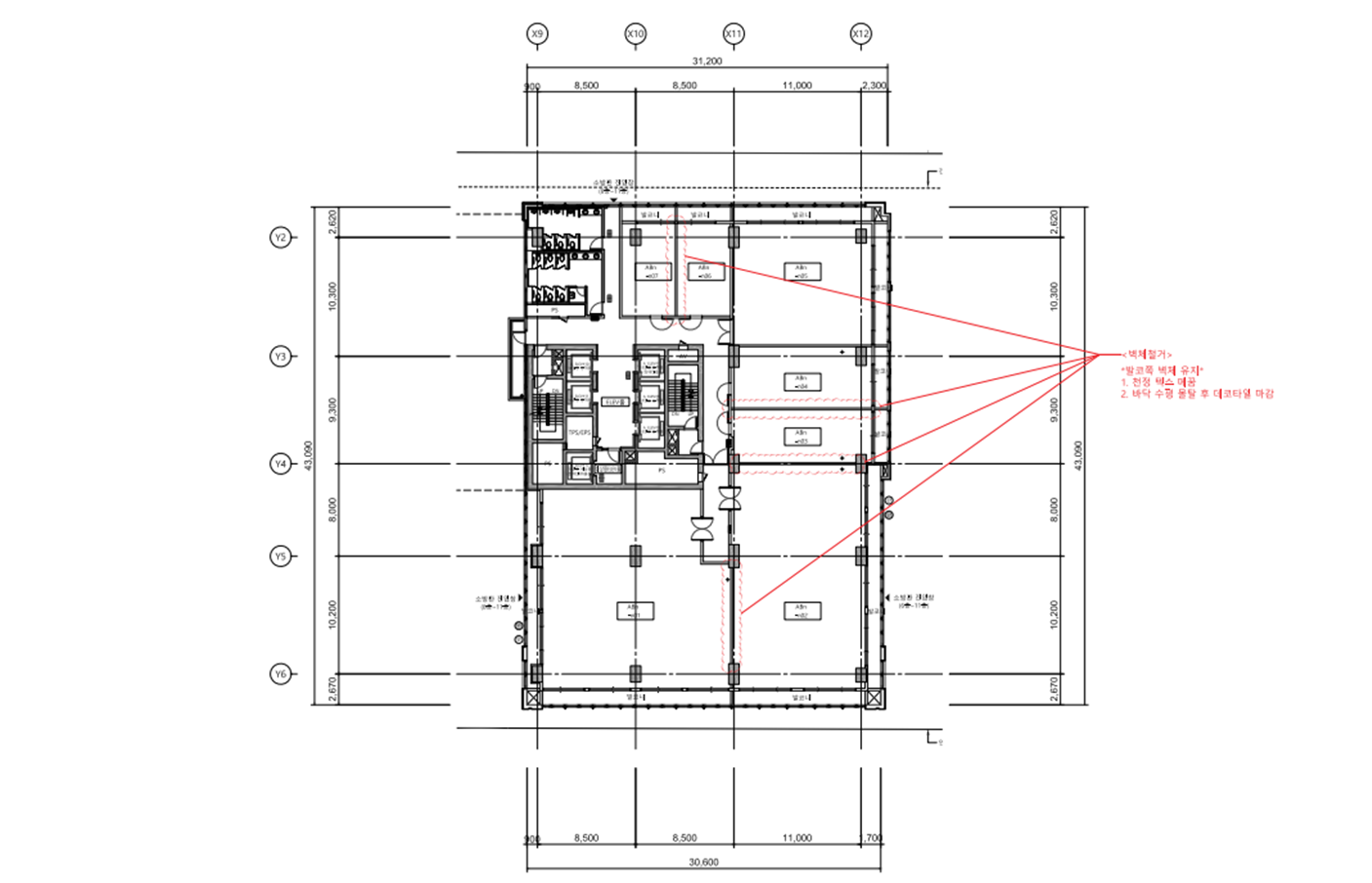
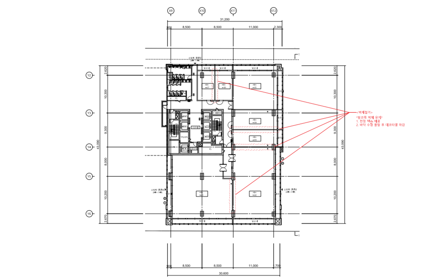
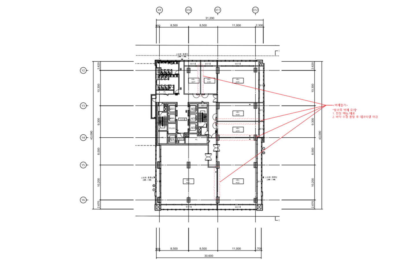
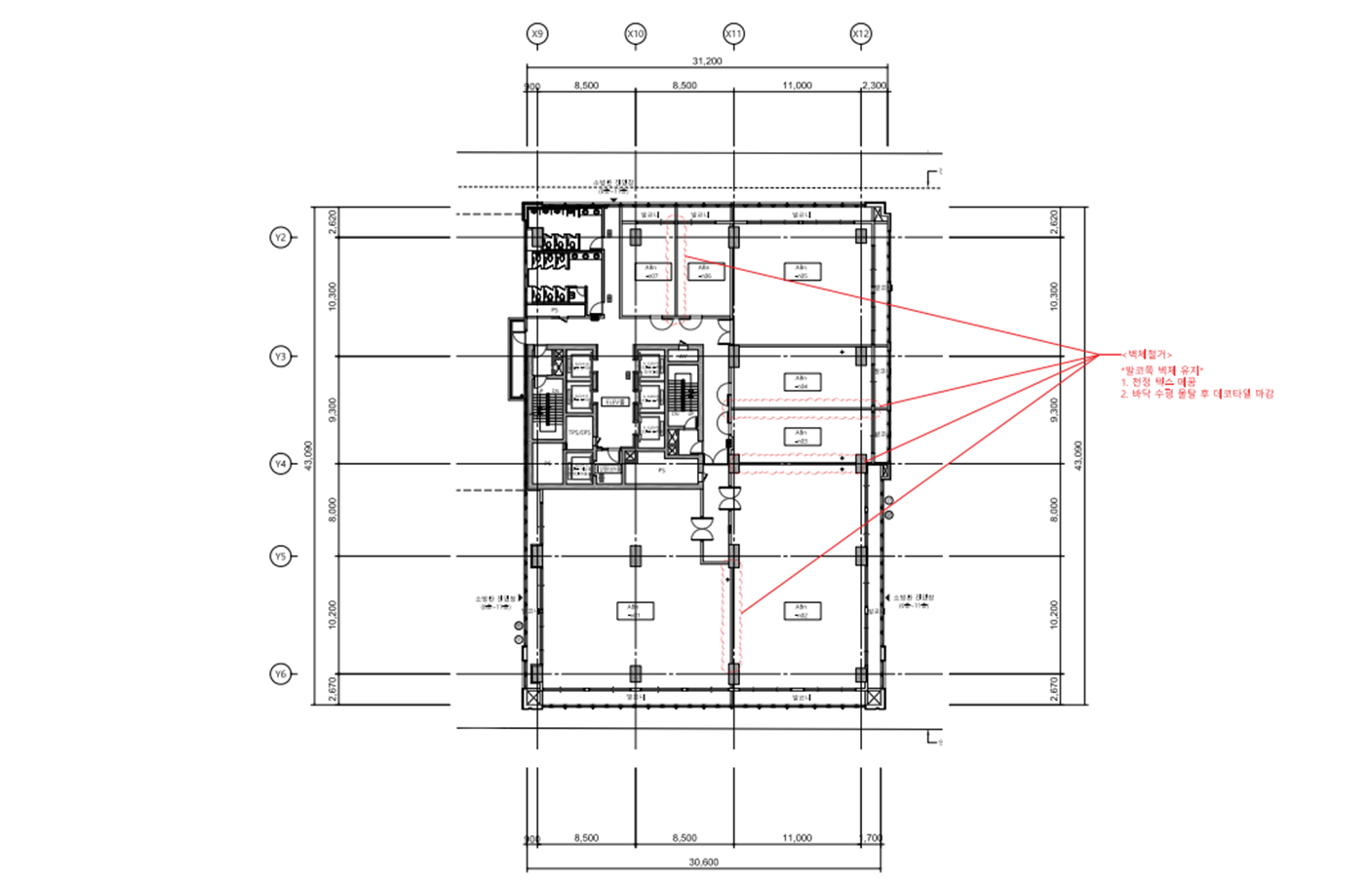
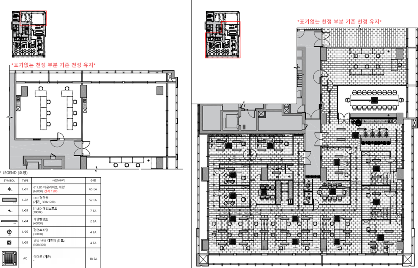
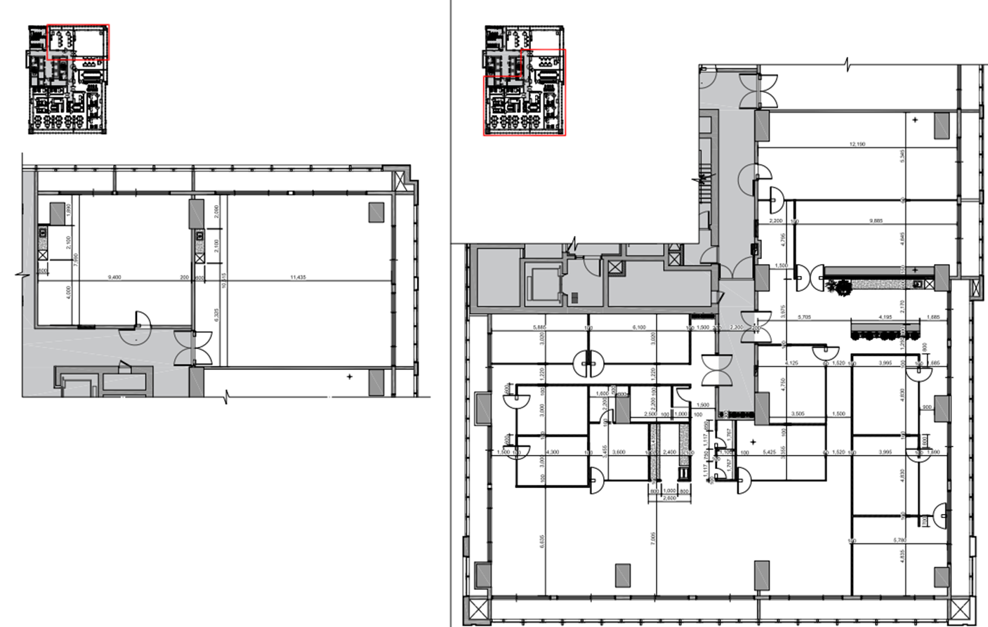
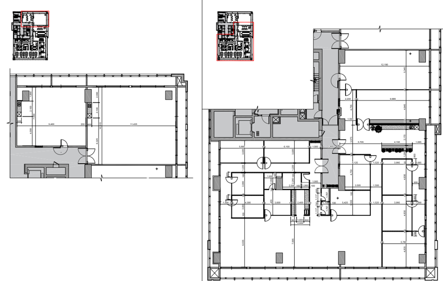
먼저 잠실인테리어업체 사무실의 2D 디자인 설계입니다.
인테리어 공사를 시작하기 전에 디자인 컨셉을 정하는 것이 중요한데요.
회사의 브랜드 이미지에 맞는 공간을 만들어야 하기에 공간 설계가 중요한 포인트입니다.




디자인 설계가 결정된 후에는 세부 사항을 조율하는 과정이 필요합니다.
색상 및 재료, 가구 배치 등을 논의하고 기업이 원하는 분위기를 더욱 구체화하여 디자인을 완성하였습니다.
잠실인테리어업체 공사 과정의 투명성




공사 과정에서 업체와의 소통은 매우 중요합니다. 공사 진행 상황을 주기적으로 업데이트 해주고,
필요한 경우 직접 현장을 방문해서 확인할 수 있게 해야 합니다. 이러한 소통이 공사과정의 투명성과 연결된답니다.





사무실 인테리어 공사에서 가장 중요한 것은 마감 상태입니다. 아무리 디자인이 멋져도 마감이 부실하면
전체적인 인상일 떨어질 수 밖에 없습니다. 모든 과정을 세심하게 작업을 진행하고, 특히 벽면과 바닥의 마감이
깔끔하게 이루어져야 전체적인 분위기가 한층 더 고급스러워 보인답니다.



마감 후에는 최종 점검도 철저히 진행해야 합니다. 작은 부분까지 신경써서 확인하고 ,고객의 읜경을 반영하는 것이 중요하죠.
이런 세밀한 배려가 고객 만족도와 이어지고 사무실 전문업체의 실력을 확인할 수 있는 방법입니다.
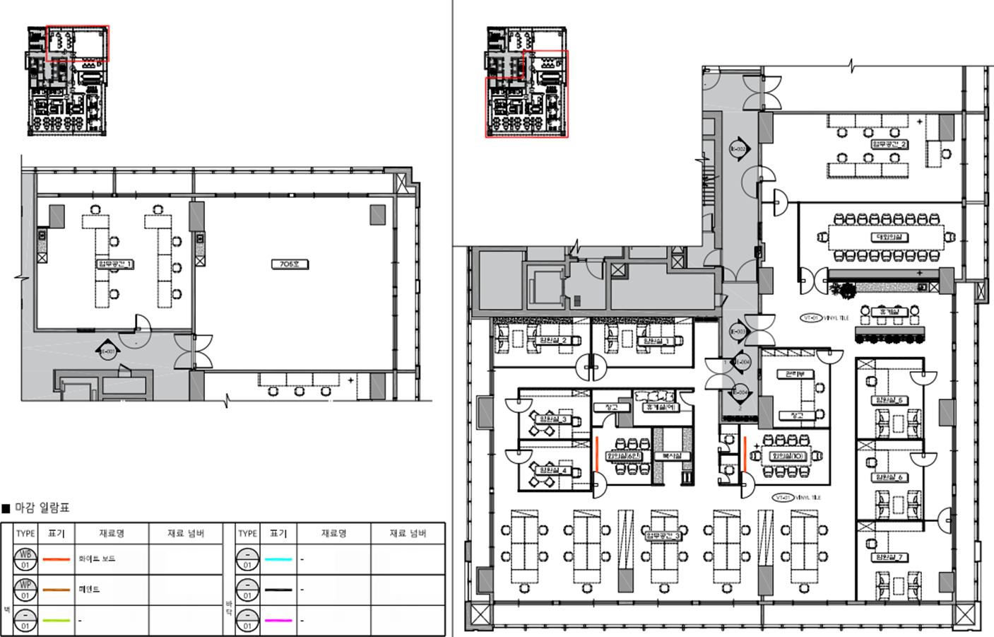
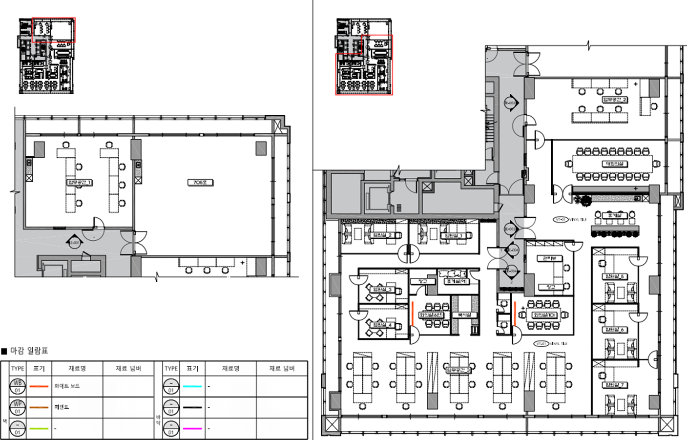
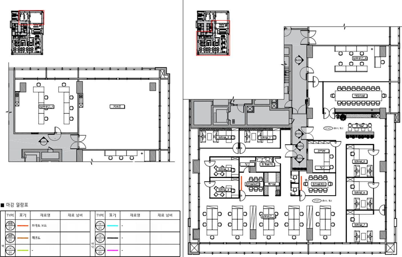
잠실인테리어업체 기업의 아이덴티티까지 살린 디자인






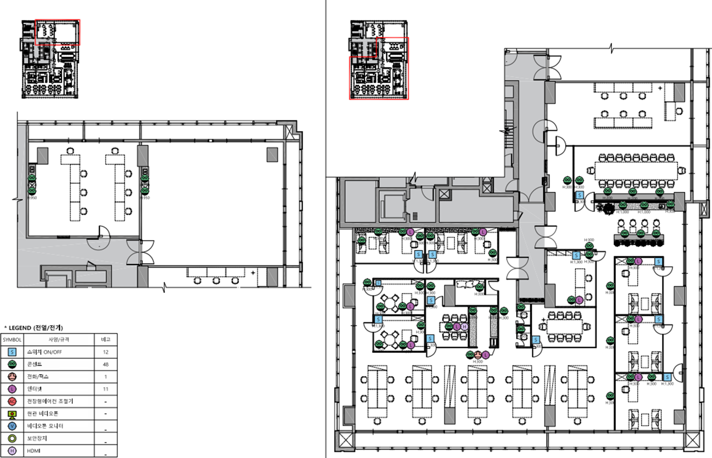
완공된 잠실인테리어업체 사무실의 입구 파사드부터 살펴보겠습니다.
사무실 방문 시 가장 먼저 눈에 띄는 입구 파사드는 기업 브랜드이 존재감을 강화하는 중요한 공간입니다.
이번 공사에서는 기업명을 중심으로한 입구 파사드를 제작하여 시각적 집중도를 높여주었습니다.
조명은 상단과 하단에 LED라인을 매립해 벽면과 로고를 은은하게 밝혀주도록 하였습니다.



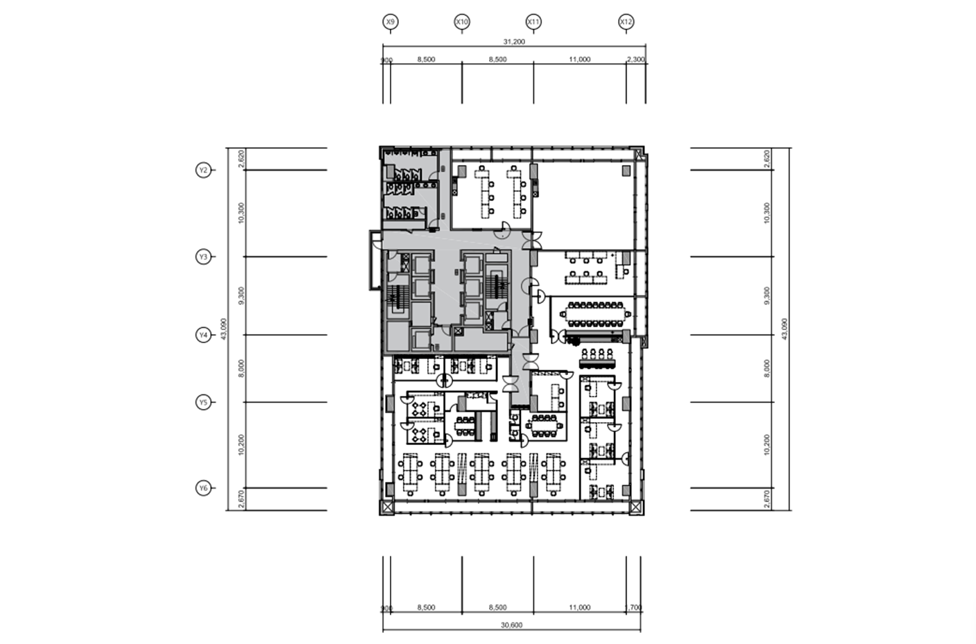
사무실의 내부 모습은 전체적으로 화이트톤을 베이스로 설계했습니다. 화이트 컬러는 시각적으로 공간을 넓게 보이게 할 뿐만 아니라 자연광과 인조조명을 함께 활용했을 때 밝고 환한 분위기를 연출합니다.
바닥에는 그레이 톤의 내구성 있는 바닥재를 시공하여 유지 보수 비용을 최소화하면서도 깔끔한 이미지를 유지했습니다.
또한 사무공간과 휴게공간을 자연스럽게 구분하면서도 공간 활용을 극대화하기 위해 벤치형 의자를 설치했습니다.
벶치형 의자는 복도 측면과 사무공간의 경계에 배치하여 이동 동선을 방해하지 않으면서도 간단한 휴식이나
직원간의 소통 공간으로 활용할 수 있습니다.






회의실은 유리가벽을 활용하여 개방감을 유지하면서도 회의 진행 시 집중력을 높일 수 있도록 설계했습니다.
유리 가벽은 프라이버시를 확보하면서도 시가적인 개방감을 주기에 가성비 사무실 회의실 구조에 적합하답니다.







사무공간은 최대한 심플하게 직원들의 동선과 효율성까지 고려하였습니다.
특히 가성비를 높이기 위해 고급 소재 대신 내구성과 실용성을 겸비한 재료를 선택하였습니다.





공간마다 불필요한 장식 요소를 최소화하고 기능 중심으로 설계한 덕분에
제한된 예산으로도 만족도 높은 잠실인테리어 사무실 공간을 완성할 수 있었습니다.



좁은 공간을 효율적으로 활용하기 위해 탕비 공간은 심플한 화이트 수납장으로 설치했습니다.
수납장의 상부장과 하부장은 화이트 컬러를 유지해 전체 사무실과 통일감을 주고, 최소한의 면적으로 필요한 기능만 구현했습니다.




이번 잠실인테리어업체의 사무실 공사는 브랜드 아이덴티티를 강조한 입구 파사드를 비롯하여,
화이트 톤의 환하고 깔끔한 사무공간과 유리가벽 회의실 및 개별 공간 등 공간별로 목적과 기능을 최적화하면서
전체 공사비와 시공효율을 고려한 가성비 높은 프로젝트였습니다.
사무실인테리어에서 가장 중요한 것은 직원의 업무 효율과 브랜드 이미지, 예산까지 고려한 균현 잡힌 설계와 시공입니다.
잠실 지역에서 사무실 인테리어를 고민하고 계시다면 사무실 공사 전문업체인 916디자인에게 연락바랍니다.
📞 상담 문의 📞
010-3235-8427
🔽 포트폴리오 더 보기 🔽
사무실인테리어 디자인 공사 비용견적 플랫폼 - 사무실인테리어 916
사무실인테리어 916
916er.com
2025.08.21 - [사무실인테리어] - 양주인테리어업체 옥정에서 후기 좋은 사무실 시공 실제 사례를 찾는다면
양주인테리어업체 옥정에서 후기 좋은 사무실 시공 실제 사례를 찾는다면
양주 옥정에서 사무실 인테리어를 계획중에 있다면 어떤 양주인테리어업체를 선택해야 할지 고민할 수 밖에 없죠. 많은 양주인테리어업체들이 존재하지만 그 중에서 신뢰할 수 있고 후기가 좋
dopamine7.com
2025.08.20 - [사무실인테리어] - 30평사무실인테리어 버리는 공간 없이 효율적인 소형 오피스 공간 레아아웃 방법
30평사무실인테리어 버리는 공간 없이 효율적인 소형 오피스 공간 레아아웃 방법
소형 오피스에서는 어떻게 공간을 효율적으로 활용하고 쾌적한 환경을 만들지 고민이 많을텐데요. 작은 공간일수록 인테리어와 레이아웃 설정에서 신중해야 하죠! 오늘은 구일육디자인의 시공
dopamine7.com
2025.08.01 - [사무실인테리어] - 40평 50평 사무실인테리어 구조와 오피스디자인의 트렌드
40평 50평 사무실인테리어 구조와 오피스디자인의 트렌드
안녕하세요. 916디자인입니다. 최근 몇 년간 상업 공간 디자인 분야에서는 미니멀리즘과 모던함이 강조되는 추세였습니다. 그러나 최근에는 다양한 스타일과 디자인 요소가 혼합된 새로운 트렌
dopamine7.com
'사무실인테리어' 카테고리의 다른 글
| 전시장인테리어 사무실 내 기업 전시공간 활용 팁 공개 (3) | 2025.08.26 |
|---|---|
| 동탄인테리어업체 사무실 공사 왜 전문가에게 맡겨야 할까요 (0) | 2025.08.25 |
| 서초인테리어 심플하지만 강력한 포인트 컬러로 생동감을 더한 사무실디자인 시공 스토리 (1) | 2025.08.22 |
| 용산인테리어 깔끔하지만 감각을 놓치지 않은 사무실 디자인 (0) | 2025.08.22 |
| 양주인테리어업체 옥정에서 후기 좋은 사무실 시공 실제 사례를 찾는다면 (2) | 2025.08.21 |
| 30평사무실인테리어 버리는 공간 없이 효율적인 소형 오피스 공간 레아아웃 방법 (2) | 2025.08.20 |
| 공인중개사사무실인테리어 작지만 디테일을 놓치지 않은 깔끔한 시공 (0) | 2025.08.19 |
| 대구사무실인테리어 화이트 오피스 디자인 합리적인 가격으로 깔끔하게 시공 잘 하는 업체 (4) | 2025.08.14 |
- Total
- Today
- Yesterday
- 사무실인테리어추천
- 3D사무실인테리어
- 학원인테리어
- 3D디자인
- 오피스인테리어
- 병원인테리어
- 피티샵인테리어
- 회사인테리어
- 인천사무실인테리어
- 사무실리모델링
- 사무실인테리어
- 사무실인테리어후기
- 사무실인테리어견적
- interior
- 헬스장인테리어
- 인테리어디자인
- 지식산업센터인테리어
- 사무실인테리어디자인
- 헤어샵인테리어
- 사무실디자인
- 인테리어
- 사무실인테리어잘하는곳
- 상가인테리어
- 학원인테리어디자인
- 미용실인테리어
- 916디자인
- 사무실인테리어전문
- 사무실인테리어공사
- 사무실인테리어비용
- 사무실인테리어업체
| 일 | 월 | 화 | 수 | 목 | 금 | 토 |
|---|---|---|---|---|---|---|
| 1 | 2 | 3 | 4 | |||
| 5 | 6 | 7 | 8 | 9 | 10 | 11 |
| 12 | 13 | 14 | 15 | 16 | 17 | 18 |
| 19 | 20 | 21 | 22 | 23 | 24 | 25 |
| 26 | 27 | 28 | 29 | 30 |






