티스토리 뷰
목차
현대 비즈니스 환경에서 기업의 이미지는 매우 중요합니다. 특히 고객과의 첫 만남에서 인상은 결정적인 역할을 하죠.
그래서 많은 기업들이 전시공간을 활용해 자신들의 브랜드를 더욱 돋보이게 하려고 노력을 기울이고 있습니다.
전시장인테리어는 단순히 제품을 전시하는 공간을 넘어, 기업의 가치를 전달하는 중요한 수단입니다.
그래서 이번 글에서는 사무실 내에서 기업 전신공간을 효과적으로 활용하는 팁에 대해 알려드리겠습니다.
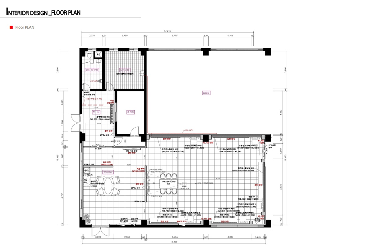
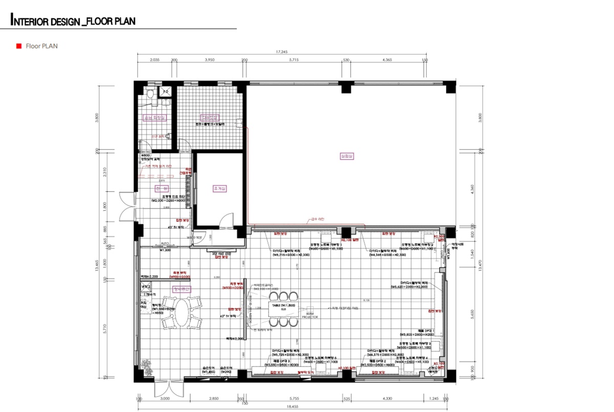
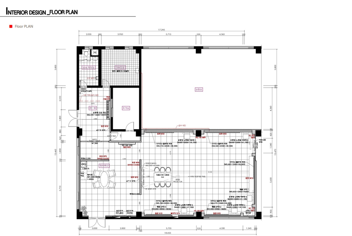
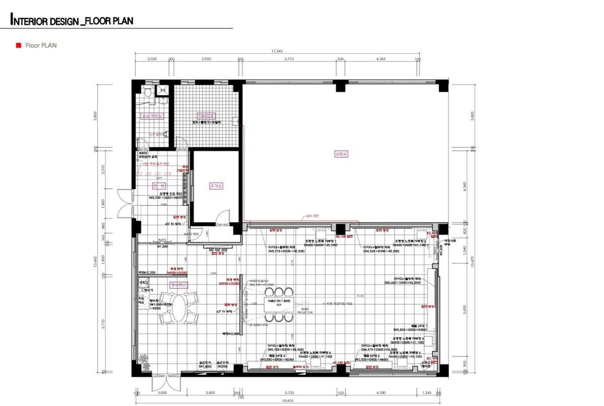
전시장인테리어 사무실 내 공간 설계




전시공간은 다양한 용도로 활용할 수 있습니다. 제품 전시 뿐만 아니라 고객과의 미팅이나 세미나, 네트워킹 이벤트 등
다양한 활용이 가능하기에 기업의 다양한 활동을 한곳에서 진행할 수 있도록 사무실 내 전시공간을 디자인하였습니다.




공간을 효율적으로 활용하기 위해 가변형 가구를 도입하는 것도 하나의 방법입니다.
필요에 따라 쉽게 변형할 수 있는 가구를 사용하면 공간 활용을 높일 수 있습니다. 이런 접근은 고객에게도 긍정적인 인상을 줄 수 있으며, 기업이 고객과의 소통을 위해 다양한 활동을 진행하고 있다는 것을 보여줌으로써 신뢰를 얻을 수 있기 때문이죠.
이러한 요소들을 적극 반영하여 사무실 내 전시공간 디자인을 설계하였습니다.
전시장인테리어 전시 공간의 다양성



사무실 내로 들어서면 가장 먼저 시선을 사로잡는 공간은 화이트 톤의 가벽에 구성된 기업 히스토리 공간입니다.
깨끗한 화이트 컬러 벽면은 차분하고 정돈된 이미지를 전달하며, 가벽 한쪽에는 세계지도 그래픽을 삽인해
기업이 성장해온 글로번 비전을 시각적으로 표현했습니다.


다음을 눈길을 끄는 부분은 원목 소재와 기업 사인물을 조화롭게 활용한 아트월 공간입니다.
화이트와 그레이 톤의 베이스 컬러 속에서 원목의 따뜻한 질감은 차분하면서도 자연스러운 포인트를 주며,
기업 로고와 함께 배치되었을 때 전문적인 분위기와 브랜드 아이덴티티를 더욱 강하게 전달합니다.





사무실의 중심부는 오픈형 공간으로 계획하여 회의나 교육, 전시 등 다양한 용도로 활용할 수 있도록 디자인했습니다.
넓은 바닥 면전과 개방감 있는 레이아웃은 다목적 공간으로 활용하기에 최적화되어 있으며, 특히 중앙에는 모듈형 회의 테이블을
배치해 필요에 따라 회으실, 세미나 공간, 도는 제품 시연 공간으로 쉽게 전환할 수 있도록 하였습니다.
또 하나의 핵심 포인트는 사무실 벽면을 활용한 전시공간 디자인입니다.
벽면 전체를 단순한 마감으로 두지 않고 제품과 기술 자료를 전시할 수 있도록 모듈형 디스플레이 존을 구성했습니다.
실제로 완공된 공간에서는 제품이 직접 진열할 수 있고, 그 위에 는 제품의 기능과 기술을 설명하는 패널과 디지털 플레이어가 함께 설치되어 있어 한눈에 이해할 수 있도록 연출되었습니다.




천장의 조명은 직선적인 LED 라인 조명을 설치하여 세련되고 모던한 분위기를 강조했으며, 공간 전체의 균형을 잡아주는 역할을 합니다. 이러한 오픈형 공간은 단순히 업무만을 위한 공간이 아니라, 전시와 커뮤니케이션을 동시에 이끌어낼 수 있는 유연한 공간으로 활용될 수 있습니다.


전시공간은 기업의 핵심 제품과 솔루션을 제공하기 위해 색채 대비도 고려하여 연출하였습니다. 바탕은 차분한 그레이 톤으로 마감하고, 제품은 블랙과 포인트 컬러를 활용해 시각적 집중도를 높였습니다. 이는 방문객긔 시선을 자연스럽게 제품에 머무렉 하고,
브랜드의 기술력을 효과적으로 전달할 수 있는 방식입니다.

전시공간인테리어에서 또 하나 중요한 부분은 제품 전시공간 활용 팁입니다. 기업은 실제 사용하는 제품들을 공간 속에 자연스럽게
배치하여 단순히 진열만 하는 것이 아니라, 사용 환경과 유사하게 디스플레이하거나 관련 자료와 영상을 함께 제공하여 제품을 보여주는 것이 아니라 경험하는 공간으로 만드는 것입니다.
이번 전시장인테리어 사례는 단순히 공간을 꾸미는 차원을 넘어, 기업의 가치와 비전을 공간에 담아내는 과정이었습니다.
기업의 연혁과 아트월 오픈형 사무공간, 제품 전시공간까지 각각의 요소가 유기적으로 연결되어 방문객은 공간 속에서
자연스럽게 기업을 경험할 수 있도록 하였습니다.
사무실 내 전시공간을 고려하고 계시다면 전시공간 활용 팁을 활용한 전문업체의 실력을 확인해 보시기 바랍니다.
상담 문의는 언제든 환영입니다.
📞 상담 문의 📞
010-3235-8427
🔽 포트폴리오 더 보기 🔽
사무실인테리어 디자인 공사 비용견적 플랫폼 - 사무실인테리어 916
사무실인테리어 916
916er.com
2025.08.22 - [사무실인테리어] - 서초인테리어 심플하지만 강력한 포인트 컬러로 생동감을 더한 사무실디자인 시공 스토리
서초인테리어 심플하지만 강력한 포인트 컬러로 생동감을 더한 사무실디자인 시공 스토리
많은 사람들이 사무실디자인을 단순한 작업 공간으로 인식하는 경향이 있는데요.그렇지만 조금의 변화로도 놀라운 효과를 기대할 수 있다는 점을 알고 계신가요? 어떻게 하면 사무실이라는 공
dopamine7.com
2025.06.18 - [사무실인테리어] - 멋진 예쁜사무실인테리어 다양한 디자인 요소들을 녹여낸 오피스 공간
멋진 예쁜사무실인테리어 다양한 디자인 요소들을 녹여낸 오피스 공간
몇 년 사이 업무 공간 인테리어와 관련하여 많은 관심이 집중되고 있습니다. 사무실은 단순히 일을 하는 공간이 아니라 직원들의 창의성과 생산성에도 영향을 미치는 중요한 장소이기 때문일
dopamine7.com
2024.03.21 - [사무실인테리어] - 팝업스토어인테리어 의류브랜드 행사장
팝업스토어인테리어 의류브랜드 행사장
팝업스토어인테리어 의류브랜드 행사장 안녕하세요,916디자인입니다. 오늘은 산뜻한 느낌으로 연출된 팝업스토어 인테리어를 소개해드리려 합니다. 분홍색 컬러가 인상적이며 키치한 브랜드의
dopamine7.com
'사무실인테리어' 카테고리의 다른 글
| 용산인테리어 한남동 사무실 디자인 업체 초기 상담부터 시공 완료까지 (1) | 2025.09.01 |
|---|---|
| 기업인테리어 회사의 아이덴티티를 살린 사옥 포트폴리오 (1) | 2025.09.01 |
| 사무실화장실인테리어 오피스 분위기와 어울리는 디자인 시공 모음 (0) | 2025.08.29 |
| 소형사무실인테리어비용 가성비로 원하는 디자인 시공 팁 (4) | 2025.08.28 |
| 동탄인테리어업체 사무실 공사 왜 전문가에게 맡겨야 할까요 (0) | 2025.08.25 |
| 서초인테리어 심플하지만 강력한 포인트 컬러로 생동감을 더한 사무실디자인 시공 스토리 (1) | 2025.08.22 |
| 용산인테리어 깔끔하지만 감각을 놓치지 않은 사무실 디자인 (0) | 2025.08.22 |
| 잠실인테리어업체 사무실 공사 전문 가성비까지 갖춘 공사 후기 (0) | 2025.08.21 |
- Total
- Today
- Yesterday
- 회사인테리어
- 병원인테리어
- 3D사무실인테리어
- 사무실인테리어견적
- 사무실인테리어후기
- 사무실인테리어잘하는곳
- 3D디자인
- 상가인테리어
- 지식산업센터인테리어
- 사무실인테리어공사
- 미용실인테리어
- 학원인테리어
- 사무실인테리어업체
- 인테리어
- 오피스인테리어
- 인천사무실인테리어
- 학원인테리어디자인
- 사무실인테리어
- 사무실리모델링
- interior
- 사무실인테리어전문
- 916디자인
- 피티샵인테리어
- 인테리어디자인
- 사무실디자인
- 사무실인테리어디자인
- 사무실인테리어추천
- 헤어샵인테리어
- 헬스장인테리어
- 사무실인테리어비용
| 일 | 월 | 화 | 수 | 목 | 금 | 토 |
|---|---|---|---|---|---|---|
| 1 | 2 | 3 | 4 | 5 | 6 | 7 |
| 8 | 9 | 10 | 11 | 12 | 13 | 14 |
| 15 | 16 | 17 | 18 | 19 | 20 | 21 |
| 22 | 23 | 24 | 25 | 26 | 27 | 28 |


