티스토리 뷰
목차
하남 미사학원인테리어 가성비있는 비용 공사견적
요즘 아이들의 하교 후 스케줄을 보면
웬만한 어른보다 바쁘게 사는 듯합니다.
학교 수업을 마친 아이들이 대부분
학원에서 남은 시간을 보내는 만큼
학원이라는 공간은 무엇보다 아이들에게
안정감을 주면서 동시에 효율적인 학습을 위한
집중력이 필히 요구되는 곳이기도 합니다.
따라서 대부분 학원 인테리어를 의뢰해 주시는
고객님들께서는 아이들이 집중할 수 있도록
산뜻하거나 차분한 분위기의 공간으로
많이 요청해 주시고 선호하기도 합니다.
그래서 오늘은 저희 업체에서 직접 진행한
하남 미사학원인테리어 시공 사례와 함께
시공 사례를 자세히 살펴보도록 하겠습니다.
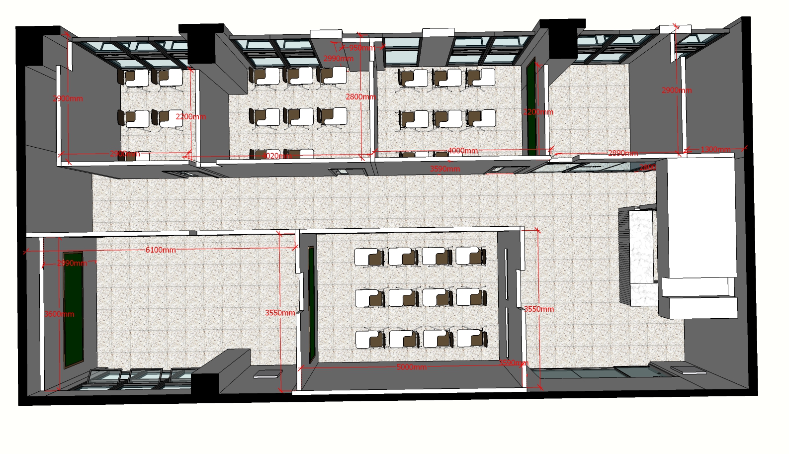
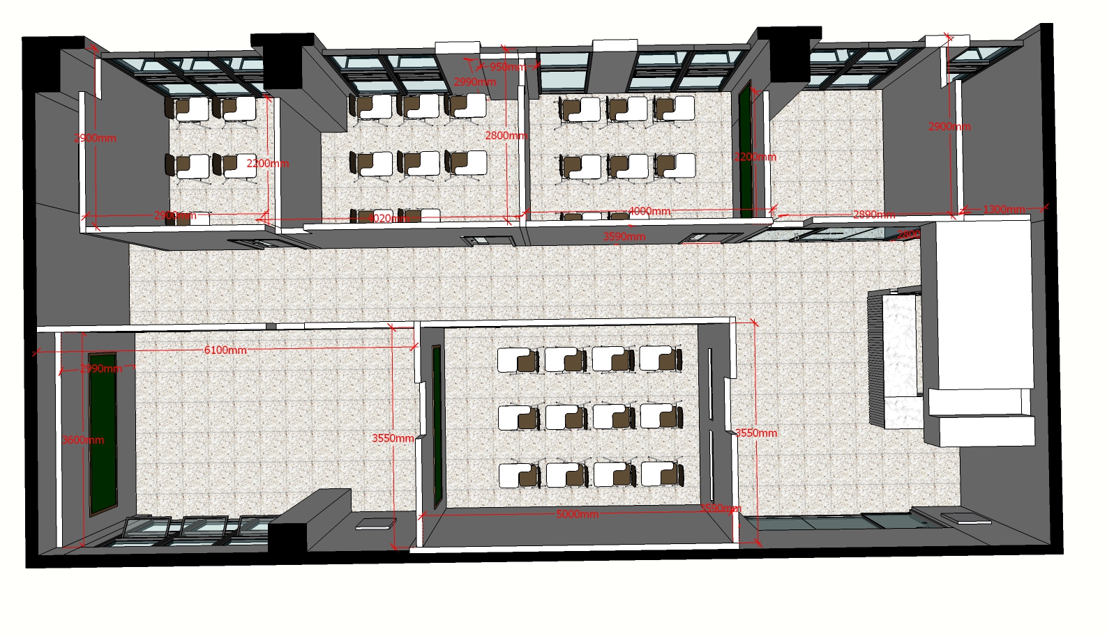
하남 미사학원인테리어 3D디자인 시안



이번 고객님께서도 아이들이 오랜 시간
머물며 학습하는 공간인 만큼
깔끔하고 심플한 분위기로 만들기 위해
전문 인테리어 업체인 저희에게
특별히 요청을 해주셨습니다.
고객님의 구체적인 요청 사항과 더불어서
전체 공간 면적과 구조를 전달받아
3D 디자인 작업을 진행했습니다.

전체적인 공간의 레이아웃을 구성하면서
고객님과 지속하여 피드백을 주고받고,
공간 구석구석 디테일까지 고객님의 니즈를
그대로 반영하기 위해 꼼꼼히 작업했습니다.


고객님 의견에 따라 3D 디자인이 최종적으로
컨펌 나게 되면, 디테일한 요소들을 조율해
공간의 구체성을 높여 완성도를 더합니다.
이 작업까지 완료하게 되면 본격적인
시공 단계로 나아갈 수 있습니다.
하남 미사학원인테리어 시공 공사 현장


이번 하남 미사학원인테리어는
기존의 공실 상태에서 별도로 철거가 필요한
부분은 없었기 때문에 시공 단계로
신속하게 진전시킬 수 있었습니다.
전체적인 공간 구조와 각각의 구분을 위한
레이아웃 확정을 위해 3D 도면을 토대로
고객님과 재차 검토를 진행했습니다.

저희 업체는 특히 학원 인테리어인 만큼
수업 공간은 물론이고 카운터, 원장실,
휴게실, 상담실 등의 각 공간이
뚜렷하게 구분되어야 하기에 고객님과
지속한 소통으로 디테일 면에서도
섬세하게 진행하고 있습니다.
무엇보다 다년간의 현장 작업으로 숙련된
베테랑 팀원들과 체계적으로 움직이고 있어
시공 이후에도 염려하실 일 없도록
마무리까지 최선을 다해 임합니다.
시공을 마무리한 후에는 다시금 고객님과
점검부터 검토 작업을 진행하게 됩니다.
이때 약간의 오차 발생이 있을 수 있으나
보완이 필요한 부분은 그 자리에서
신속하게 도와드리고 있으며,
꼼꼼한 반영은 완벽한 인테리어 시공
결과물로 제공해 드리고 있습니다.
하남 미사학원인테리어 시공 완료 현장


학원은 전체적으로 화이트 컬러를 메인으로
외관과 내부 공간 모두 통일해 진행했습니다.
그리고 블랙 컬러의 레터링과 문구 등으로
심플하고 깔끔한 분위기의 연출을 더했습니다.
학원 입구에 위치하는 출입문과 현판은
학원의 특색을 잘 나타낼 수 있도록
로고로 크게 강조하였으며, 학원에서
운영하는 학습 과목을 표시하여
학원에 방문하는 고객님과 수많은 학생이
혼동 없이 인지하도록 간결하게 표현했습니다.

또한 깔끔한 백색 조명과 따뜻한 황색 조명을
적절히 설치하여 시각적 피로도를 낮추고
화사한 내부 분위기로 연출했습니다.


학원 내부 벽면 곳곳에는 과목의 아이덴티티를
나타낼 수 있는 아이디어 요소를 창의적으로
표현하여 디자인 연출을 더했습니다.

카운터와 학원의 메인 공간을 잇는 경계는
전면 투명창으로 설치하여 공간 내부를
파악하는데 어렵지 않도록 구성했으며,
수업이 이루어지는 공간은 아이들의
학습 능률 증대와 집중도 향상을 위해
기본적인 방음을 고려한 도어 설치로
심플하게 마무리했습니다.

조명과 배선 작업까지 문제없이 완료된
모습을 확인한 고객님께서도 이번 시공을
굉장히 만족스러워하셨습니다.

저희 업체는 현장마다 고객님과의 소통을
기준으로 만족감을 드릴 수 있는 인테리어로
제공해 드리기 위해 노력하고 있습니다.

3D 디자인을 그대로 구현하기 위해서는
무엇보다 구체적인 방향 설정과
섬세한 디테일 처리가 중요하기 때문에
고객님과의 소통에 심혈을 기울입니다.


여기까지 하남 미사학원인테리어
시공 사례를 자세하게 살펴보았습니다.
학원 인테리어로 고민 중인 분들이 계신다면
언제든지 저희에게 문의해 주시기를 바랍니다.
고객님께 만족스러운 결과를 드릴 수 있도록
언제나 신속하게 움직이겠습니다.
공사문의 010-3235-8427
▼▼▼▼포트폴리오 더보기▼▼▼▼
https://916er.com/category/academy/
Academy - 사무실인테리어 디자인 공사 비용견적 플랫폼
제1조 [목적] 이 약관은 “916디자인”이 온라인으로 제공하는 “콘텐츠” 및 “916디자인” 과 업무계약을 맺은 인테리어 디자인 제휴업체의 “인테리어견적서비스” 이용과 관련한 “9
916er.com
2023.12.02 - [학원인테리어] - 60평 영어학원인테리어 편안하고 고급스러운 학습환경을 조성한 공간
60평 영어학원인테리어 편안하고 고급스러운 학습환경을 조성한 공간
60평 영어학원인테리어 편안하고 고급스러운 학습환경을 조성한 공간 안녕하세요 916디자인입니다. 오늘은 60평형대의 영어학원인테리어 현장을 소개해드리려고 하는데요. 고급스러우면서도 편
dopamine7.com
2023.04.17 - [학원인테리어] - 구로구 신도림 수학학원인테리어 디자인과 공간활용을 모두 잡은 30평 현장 깔끔하고 미니멀한 컨셉
구로구 신도림 수학학원인테리어 디자인과 공간활용을 모두 잡은 30평 현장 깔끔하고 미니멀한
구로구 신도림 수학학원인테리어 디자인과 공간활용을 모두 잡은 30평 현장 깔끔하고 미니멀한 컨셉 안녕하세요 916디자인입니다. 오늘은 구로구 신도림 수학학원인테리어 디자인과 공간활용을
dopamine7.com
2024.03.26 - [학원인테리어] - 영어학원인테리어 트랜드를 따라서
영어학원인테리어 트랜드를 따라서
영어학원인테리어 트랜드를 따라서 안녕하세요, 916디자인입니다. 최근 우리 주변의 학원들을 볼 때 굉장히 개성넘치게 인테리어를 구성해놓았다는 것을 알 수 있습니다. 과거에는 일반적인 책
dopamine7.com
'학원인테리어' 카테고리의 다른 글
| 청라 송도학원인테리어 빠른 소통으로 (0) | 2024.06.26 |
|---|---|
| 평택학원인테리어 전문성은 디테일에서 (0) | 2024.06.25 |
| 광교 영통학원인테리어 디자인을 찾다 (0) | 2024.06.25 |
| 별내 구리학원인테리어 임팩트있는 DESIGN (0) | 2024.06.25 |
| 일산학원인테리어 상세한 견적과 피드백 (0) | 2024.06.24 |
| 잠실학원인테리어 빠른 미팅부터 (0) | 2024.06.24 |
| 송파 위례학원인테리어 학습의 진심 (0) | 2024.06.23 |
| 서울학원인테리어 행복한 공간의 힘 (0) | 2024.06.23 |
- Total
- Today
- Yesterday
- 3D사무실인테리어
- 인테리어
- 상가인테리어
- 3D디자인
- 헬스장인테리어
- 회사인테리어
- 사무실인테리어디자인
- 사무실인테리어공사
- 피티샵인테리어
- interior
- 916디자인
- 인테리어디자인
- 사무실인테리어전문
- 학원인테리어디자인
- 사무실리모델링
- 미용실인테리어
- 사무실인테리어추천
- 사무실디자인
- 지식산업센터인테리어
- 사무실인테리어잘하는곳
- 사무실인테리어후기
- 헤어샵인테리어
- 오피스인테리어
- 인천사무실인테리어
- 병원인테리어
- 학원인테리어
- 사무실인테리어
- 사무실인테리어비용
- 사무실인테리어업체
- 사무실인테리어견적
| 일 | 월 | 화 | 수 | 목 | 금 | 토 |
|---|---|---|---|---|---|---|
| 1 | 2 | |||||
| 3 | 4 | 5 | 6 | 7 | 8 | 9 |
| 10 | 11 | 12 | 13 | 14 | 15 | 16 |
| 17 | 18 | 19 | 20 | 21 | 22 | 23 |
| 24 | 25 | 26 | 27 | 28 | 29 | 30 |
| 31 |
