티스토리 뷰
목차
청라 송도학원인테리어 빠른 소통으로
안녕하세요,
요즘은 학원인테리어 또한 다른 인테리어와
동일하게 트렌드를 따라가는 경향이 많은 것
같습니다. 학생과 학부모님들이 보았을 때
편안하면서도 쾌적하고 학습 집중도를
높일 수 있는 공간이 트렌드인데요.
디테일한 부분을 살려 완성된 퀄리티 높은
학원인테리어는 학원의 이미지 뿐만 아니라
실질적으로 면학 분위기 조성에 있어서도
매우 중요한 부분을 차지합니다.
오늘은 저희가 직접 시공한
청라 송도학원인테리어 사례를 들어
면밀히 이야기해 보도록 하겠습니다.
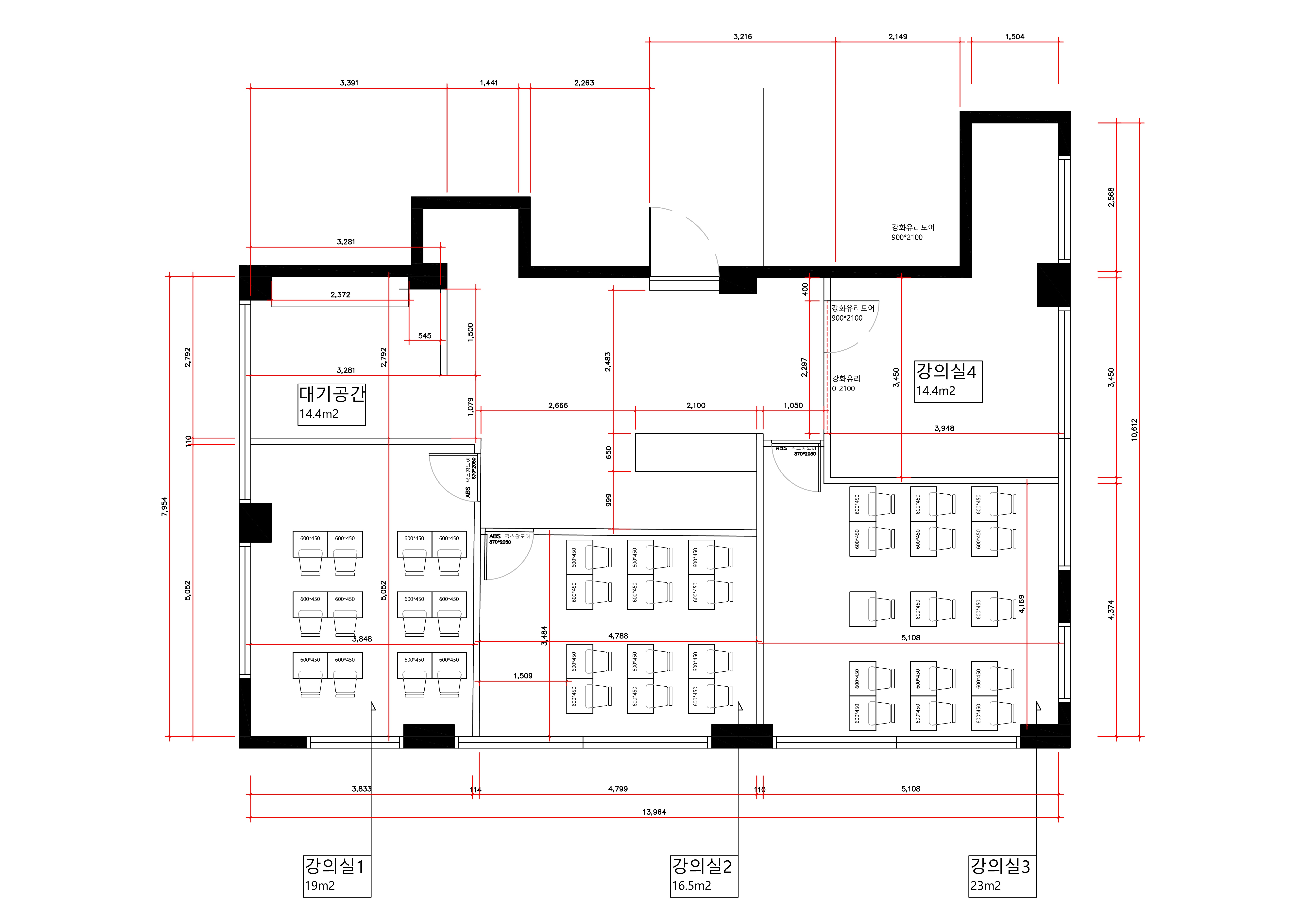
청라 송도학원인테리어 3D 디자인

청라 송도학원인테리어 3D 디자인 사진입니다.
이번 청라 송도학원인테리어 의뢰해 주셨던
고객님께서는 깔끔하면서도 쾌적한 공간을
조성하고자 하는 니즈가 있으셨는데요.

전체 면적과 관련하여 공간 실측을 통하여
3D 디자인 작업을 진행하여 공간 레이아웃
구성을 해나갑니다.
그 과정 중에 참고할 만한 혹은 고객님께서
원하시는 이미지의 컨셉 학원 참고 사진 등을
주셨기 때문에 구체적이면서도 디테일한
고객님의 니즈를 파악할 수 있었습니다.


이번 청라 송도학원인테리어의 경우
메인 홀을 비롯하여 상담실, 교실 4곳, 대기실
공간을 구분하여 구성하였는데요.

이렇게 레이아웃을 구성하여 3D 디자인을 통해
최종 컨펌을 진행하였습니다. 고객님의
컨펌 사인이 떨어지면 본격적인 시공에 들어갈 수
있게 됩니다.
청라 송도학원인테리어 시공 진행 사진


이번 청라 송도학원인테리어 현장은 철거할 부분이
따로 없어 바로 시공에 들어가게 되었는데요.
철거를 진행하거나 다른 작업이 들어가게 되면
고객님과의 빠른 소통이 매우 중요합니다.
어쨌든 고객님과의 소통을 통해 공간 구분을 위한
레이아웃 구성을 다시 한 번 조율을 하고
컨펌을 통하여 진행하였습니다.


가장 먼저 목공 작업에 착수하였습니다.
의자와 신발장, 하부장, 가구 문틀, 문 도어
등 제작과 시공에 들어갔으며 전체적인
인테리어의 내실을 다지는 목공 작업이기 때문에
매우 중요합니다. 때문에 각 전문가팀과 함께
꼼꼼하게 작업을 진행하였습니다.


또한 전기 작업과 배선 작업 조명 설치와 같은
부분도 저희가 맡아서 논스톱 원라인 서비스로
진행하였기 때문에 좀 더 퀄리티 높은
완성도를 보여드릴 수 있었습니다.

페인트 작업 또한 진행하였는데요.
메인 벽을 비롯하여 전체적인 색상은
화이트 컬러로 직접 조색하여 칠해줍니다.


목공 작업 팀과 연계하여 페인트 작업도 같이
들어갔기 때문에 완성도가 매우 높습니다.
페인트 작업만으로도 어느 정도 공간의 색감과
분위기를 표현할 수 있으나 드라마틱하고
퀄리티 높은 결과물을 보시기 위해선 목공 작업과
함께 들어가시는 게 좋습니다.
청라 송도학원인테리어 시공 완료 사진


청라 송도학원인테리어 시공 완료 사진입니다.
전체적인 화이트 색상으로 화사하면서도
깨끗하고 쾌적한 분위기를 내기 위해
구성하였습니다. 입구에 들어서는 순간부터
학부모님들은 신뢰가 가고 학생들은
학업에 집중이 잘 된다는 인식을 심어주기
위해 조명에도 신경을 썼습니다.


외/내부의 색감 통일하고 가구는 얕은 잿빛의
색감을 통해 조화롭도록 배치하였습니다.
또한 입구에 위치하는 출입문과 현판도
학원에 대한 강렬한 인식을 위해 디테일한
디자인을 진행하였으며, 마치 문을 열고
들어오고 싶다 라는 생각을 가질 수 있도록
밝은 빛의 조명 또한 함께 설치하였습니다.
이번 현장의 경우 고객님과의 빠른 소통이
매우 인상 깊었던 현장인데요.
고객님의 니즈가 확실하셨고, 요구 사항이나
보완 사항에 대해서도 명확하셨기 때문에
작업이 수월했던 부분이 있습니다.

작업하는 저희 입장에서도 일방적인 보고가
아니라 양 방향적으로 고객님과 빠른 소통이
가능했기 때문에 서로가 만족할 만한
결과물이 나오지 않았나 생각해 봅니다.
그 소통의 결과, 수정 사항은 발생하지 않았고
인테리어 완료를 보고드릴 수 있었습니다.
모든 인테리어 진행 과정은 소통이 매우 중요합니다.
저희는 다년간의 경험과 노하우를 바탕으로
고객님과 소통하며 다가서겠습니다.
관련 문의나 견적이 궁금하시다면 언제든지
연락 바랍니다. 감사합니다.
공사문의 010-3235-8427
▼▼▼▼포트폴리오 더보기▼▼▼▼
https://916er.com/category/academy
Academy - 사무실인테리어 디자인 공사 비용견적 플랫폼
제1조 [목적] 이 약관은 “916디자인”이 온라인으로 제공하는 “콘텐츠” 및 “916디자인” 과 업무계약을 맺은 인테리어 디자인 제휴업체의 “인테리어견적서비스” 이용과 관련한 “9
916er.com
2024.06.11 - [학원인테리어] - 개포학원인테리어 가성비와 확실한 디자인
개포학원인테리어 가성비와 확실한 디자인
시공 진행 현장 개포학원인테리어 가게를 창업하거나 사무실을 이전하거나 많은 분이 다양한 이유로 건물 인테리어, 디자인 등을 신중하게 고민합니다. 건물 인테리어 디자인은 어
dopamine7.com
2024.03.27 - [학원인테리어] - 학원인테리어비용 견적은 합리적으로
학원인테리어비용 견적은 합리적으로
학원인테리어비용 견적은 합리적으로 안녕하세요, 최근 많은 사람들이 인테리어를 결정하면서 다양한 공간에 시공을 결정하시는 분들이 상당히 많이 계십니다. 거주공간이나 사무실과 같은 공
dopamine7.com
2023.08.14 - [학원인테리어] - 수학학원인테리어 신뢰감이 나타나는 실내디자인 남양주 42평 학원공사
수학학원인테리어 신뢰감이 나타나는 실내디자인 남양주 42평 학원공사
수학학원인테리어 신뢰감이 나타나는 실내디자인 남양주 42평 학원공사 안녕하세요 916디자인입니다. 학원인테리어는 집중도가 높은 환경을 제공하면서도 아이들이 이용하는데에 불편하지 않
dopamine7.com
'학원인테리어' 카테고리의 다른 글
| 일산학원인테리어 사무실의 놀라운 변신 (0) | 2024.09.02 |
|---|---|
| 구리학원인테리어, 심플한 분위기 연출 (1) | 2024.09.02 |
| 분당학원인테리어, 공간을 최대한 활용 (2) | 2024.09.02 |
| 영통학원인테리어, 최상의 학업 분위기를 위해 (0) | 2024.09.02 |
| 평택학원인테리어 전문성은 디테일에서 (0) | 2024.06.25 |
| 광교 영통학원인테리어 디자인을 찾다 (0) | 2024.06.25 |
| 별내 구리학원인테리어 임팩트있는 DESIGN (0) | 2024.06.25 |
| 하남 미사학원인테리어 가성비있는 비용 공사견적 (0) | 2024.06.24 |
- Total
- Today
- Yesterday
- 피티샵인테리어
- 사무실인테리어전문
- 지식산업센터인테리어
- 사무실인테리어
- 사무실디자인
- 사무실인테리어업체
- 916디자인
- 인천사무실인테리어
- 3D사무실인테리어
- 헤어샵인테리어
- 사무실인테리어추천
- interior
- 인테리어
- 사무실인테리어디자인
- 사무실인테리어잘하는곳
- 사무실인테리어공사
- 사무실리모델링
- 상가인테리어
- 사무실인테리어견적
- 학원인테리어디자인
- 병원인테리어
- 인테리어디자인
- 학원인테리어
- 사무실인테리어후기
- 회사인테리어
- 헬스장인테리어
- 3D디자인
- 사무실인테리어비용
- 미용실인테리어
- 오피스인테리어
| 일 | 월 | 화 | 수 | 목 | 금 | 토 |
|---|---|---|---|---|---|---|
| 1 | ||||||
| 2 | 3 | 4 | 5 | 6 | 7 | 8 |
| 9 | 10 | 11 | 12 | 13 | 14 | 15 |
| 16 | 17 | 18 | 19 | 20 | 21 | 22 |
| 23 | 24 | 25 | 26 | 27 | 28 | 29 |
| 30 |
