티스토리 뷰
목차
일산학원인테리어 사무실의 놀라운 변신
예전과 다르게 요즘은 학원의
인테리어가 이미지와 브랜드 가치를
높이는 중요한 요소로 여겨지고 있습니다.
그래서 새롭게 개원하는 학원은
물론이며 기존 학원에서도 저희에게
리모델링을 많이 요청해 주시고 있는데요.
저희에게 맡겨주시면 언제나
깔끔하고 쾌적한 인테리어를 통해
아이들의 학습 능력이 지금보다 더욱더
높아질 수 있도록 만들어 드릴 수 있습니다.
오늘은 얼마 전 진행했던
일산학원인테리어 시공 사례를
사진과 함께 보여드리면서 인테리어의
중요성에 대해서도 설명해 드리겠습니다.
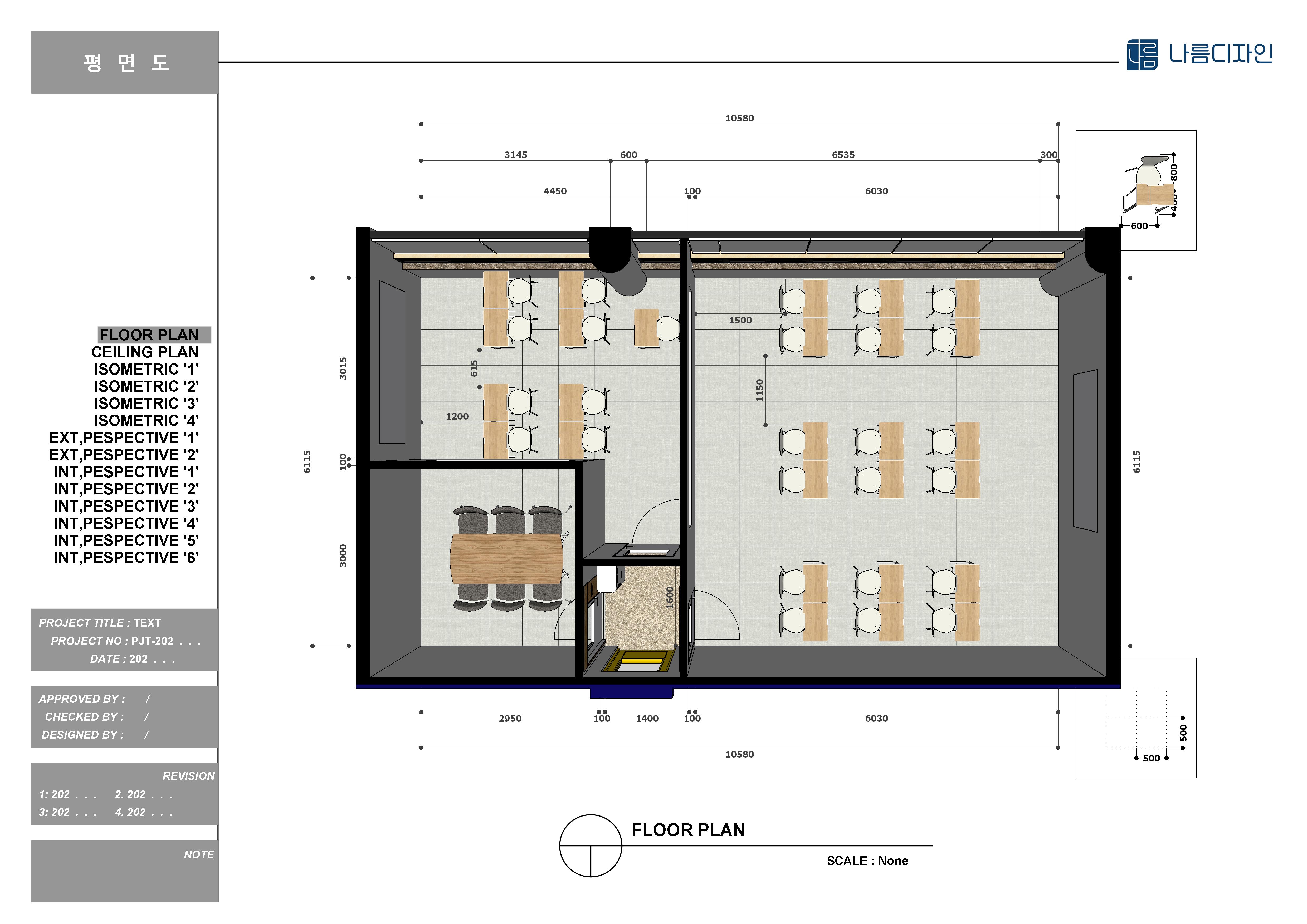
일산학원인테리어 3D 다지안 시안


학원 인테리어를 의뢰하시는
고객님들은 거의 100%의 확률로
깔끔함을 강조해달라고 요청하시는데요.
이번 고객님께서도 기존의 모습과
달리 최대한 깔끔하면서도 고급스러운
느낌으로 조성될 수 있도록 요청하셨습니다.


우선 전체 면적 정보를 전달
받은 뒤 3D 디자인을 활용하여
레이아웃 먼저 구성을 해보았습니다.
언제나 고객만족을 1순위로
생각하는 업체이기에 늘 레이아웃
구성 단계에서부터 고객님이 요청하는
요구사항을 확실하게 반영하여 구성한답니다.


3D 디자인 최종 컨펌을 받은 뒤
디테일한 부분들까지 모두 하나하나
따져 가면서 디자인 방향을 잡아 보는데요.
이렇듯 저희는 항상 고객님과의
정밀한 커뮤니케이션을 진행하면서
인테리어를 준비하고 있기에 매번 높은
만족감을 선사해 드릴 수 있는 것 같습니다.
일산학원인테리어 시공 공사 현장


이번 일산학원인테리어 현장은
사무실으로 사용되고 있었기 때문에
우선 철거 작업 먼저 진행해 보았습니다.
전체 리모델링이 진행될
예정이어서 모든 공간을 철거하며
초기 상태로 다듬는 작업이 진행됐답니다.
철거 이후에는 전체 공간을
다시 한번 점검한 뒤 본격적으로
내부 인테리어 시공이 시작되었는데요.
다년간의 인테리어 경력을 갖춘
전문가 직원들이 각자 구역을 분담하여
목공, 도장, 조명까지 순서대로 진행했습니다.

그중 인테리어에서 가장 기초가
되는 목공 작업은 고객님들께 보다
안전한 환경을 조성해 드릴 수 있도록
항상 튼튼한 자재만을 고집하고 있는데요.
작업 속도나 품질도 중요하지만
그보다도 더 중요한 것이 안전이라
생각하여 저희는 항상 어떤 과정에서든
안전에 유의하면서 작업을 도와드린답니다.
고객님들께서 우려하시는 일은
절대 발생하지 않도록 항상 조심스레
작업하니 크게 염려하지 않으셔도 됩니다.
일산학원인테리어 시공 완료 현장

기존의 유리문은 외부에서 내부가
쉽게 들여다 보이는 양문형 유리문이라
아이들의 사생활 보호가 어려워 보였습니다.
그래서 가운데 부분만 유리로 이루어진
단문형 문으로 교체하여 외부 시선을
차단하면서도 적당한 개방감이
유지될 수 있게 해드렸습니다.
입구부터 매우 깔끔해진 모습을
확인하신 고객님께서 굉장히 높은
만족감을 표현해 주셨던 현장이랍니다.


복도의 벽면은 화이트 & 옐로우
컬러 조합을 통해 공간을 보다 밝고
화사한 분위기로 만들어 드렸는데요.
창의력을 자극하는 색상으로
알려진 노란색을 포인트 컬러로
활용하여 학원생들의 창의력까지
높일 수 있도록 연출을 도와드렸습니다.


강의실 문은 완전히 불투명하게
설정할 경우 지나치게 폐쇄된 느낌을
받을 수 있어 상단부만 유리로 설정했는데요.
프라이버시를 보호하면서도
개방감을 유지하기 좋은 문이랍니다.


강의실 내부는 아이보리 컬러의
벽면과 베이지 색상의 바닥 조합으로
차분하면서 따뜻한 분위기로 연출했습니다.


밝은 색상 조합으로 공간을 더욱
넓어 보이게 하여 최대한 답답함 없이
쾌적한 느낌의 환경을 조성해 드렸습니다.


또한 화이트보드 상단부에 레일
조명을 설치하여 가시성을 극대화시켜
드렸으며 더욱 고급스러우면서도 모던한
분위기가 형성될 수 있도록 도와드렸습니다.


모든 시공이 완료된 이후
고객님께 최종 검토를 받는데요.


저희는 언제나 완벽한
결과물을 제공해 드리기 위해
늘 수차례씩 확인 과정을 거치면서
마무리를 짓고 있으니 믿고 맡겨주세요.


어떤 공간이든 확실하게
달라진 모습으로 변신 가능하니
일산학원인테리어가 필요하시다면
언제든 저희에게 연락 부탁드리겠습니다.
고객만족을 1순위로 여기는
인테리어 업체답게 항상 최선을
다해 최고의 결과를 보여드리겠습니다.
공사문의 010 3235 8427
▼▼▼포트폴리오 더보기 ▼▼▼
https://916er.com/category/academy/
Academy - 사무실인테리어 디자인 공사 비용견적 플랫폼
제1조 [목적] 이 약관은 “916디자인”이 온라인으로 제공하는 “콘텐츠” 및 “916디자인” 과 업무계약을 맺은 인테리어 디자인 제휴업체의 “인테리어견적서비스” 이용과 관련한 “9
916er.com
2024.06.23 - [학원인테리어] - 별내 구리학원인테리어 임팩트있는 DESIGN
별내 구리학원인테리어 임팩트있는 DESIGN
별내 구리학원인테리어 임팩트있는 DESIGN 요즘 아이들의 하루 일과 중에 학원이 차지하는 비율은 거의 과반 이상이라고 봐도 무방한 정도입니다. 그만큼 학원은 학교 외에 아이들
dopamine7.com
2024.06.12 - [학원인테리어] - 부평학원인테리어 매력적인 공간의 탄생
부평학원인테리어 매력적인 공간의 탄생
부평학원인테리어 매력적인 공간의 탄생 안녕하세요, 916디자인입니다. 새롭게 창업을 하시거나 리모델링 등 공간을 새로이 하시기 위해서는 여러 가지 고려해야 할 요소들이 많습
dopamine7.com
2022.12.20 - [학원인테리어] - 파주 운정 초등수학학원 소형 25평 인테리어 디자인 세련된 감각과 합리적인 견적 비용
파주 운정 초등수학학원 소형 25평 인테리어 디자인 세련된 감각과 합리적인 견적 비용
파주 운정 초등수학학원 소형 25평 인테리어 디자인 세련된 감각과 합리적인 견적 비용 안녕하세요 916디자인입니다. 한 해가 지나가는 시점이 되니 모든 학생들은 새학년을 맞이할 준비가 한창
dopamine7.com
'학원인테리어' 카테고리의 다른 글
| 청라학원인테리어 깔끔하고 아늑한 디자인 (0) | 2024.09.03 |
|---|---|
| 천안학원인테리어 더 좋은 환경에서 공부 (6) | 2024.09.03 |
| 50평학원인테리어 심플한 콘셉트로 집중력 향상 (1) | 2024.09.03 |
| 판교학원인테리어 부쩍 높아진 관심 (3) | 2024.09.02 |
| 구리학원인테리어, 심플한 분위기 연출 (1) | 2024.09.02 |
| 분당학원인테리어, 공간을 최대한 활용 (2) | 2024.09.02 |
| 영통학원인테리어, 최상의 학업 분위기를 위해 (0) | 2024.09.02 |
| 청라 송도학원인테리어 빠른 소통으로 (0) | 2024.06.26 |
- Total
- Today
- Yesterday
- 상가인테리어
- 사무실인테리어
- 916디자인
- 회사인테리어
- 사무실인테리어견적
- 오피스인테리어
- 헬스장인테리어
- 사무실인테리어전문
- 3D디자인
- interior
- 헤어샵인테리어
- 사무실인테리어추천
- 미용실인테리어
- 사무실디자인
- 사무실리모델링
- 사무실인테리어후기
- 학원인테리어
- 인테리어디자인
- 인천사무실인테리어
- 병원인테리어
- 피티샵인테리어
- 학원인테리어디자인
- 지식산업센터인테리어
- 인테리어
- 사무실인테리어업체
- 사무실인테리어비용
- 사무실인테리어잘하는곳
- 3D사무실인테리어
- 사무실인테리어공사
- 사무실인테리어디자인
| 일 | 월 | 화 | 수 | 목 | 금 | 토 |
|---|---|---|---|---|---|---|
| 1 | ||||||
| 2 | 3 | 4 | 5 | 6 | 7 | 8 |
| 9 | 10 | 11 | 12 | 13 | 14 | 15 |
| 16 | 17 | 18 | 19 | 20 | 21 | 22 |
| 23 | 24 | 25 | 26 | 27 | 28 | 29 |
| 30 |
