티스토리 뷰
목차
50평학원인테리어 심플한 콘셉트로 집중력 향상
안녕하세요
916 디자인입니다.
개인사업으로 활용하시는 곳의 경우에는
인테리어의 자율성이 상당히 높기 때문에
개인이 원하는 방향성의 인테리어로
구성을 하기 쉽다는 장점이 있습니다.
다만 인테리어를 진행하는 업체의
퀄리티에 따라서 니즈를 얼마나 충족할 수
있을지는 미지수라고 할 수 있는데요.
뚜렷한 콘셉트가 없다면 방향성을 상세하게
설정해나갈 수 있도록 디자이너의 섬세함과
경험에서 우러나오는 실력이 필요한
시점이라고 할 수 있습니다.
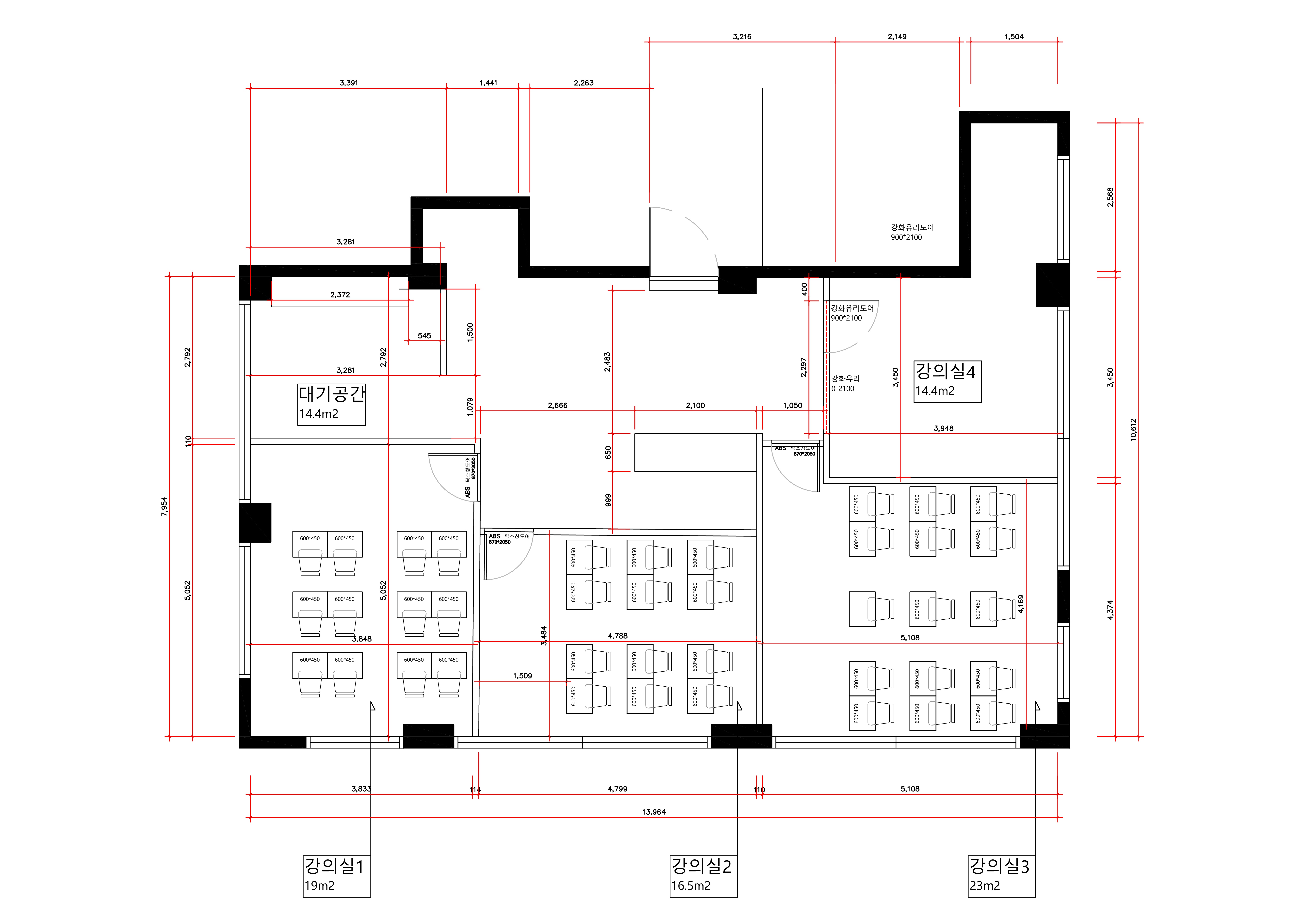
50평학원인테리어 3D디자인


오늘은 50평학원인테리어의뢰로 인하여
작업을 진행하게 되었는데요.
널찍한 교실 내부에 들어가는 인테리어가
얼마나 섬세하느냐에 따라서 교실의
크기나 공간의 분위기가 달라질 수
있는 부분이기 때문에 섬세한 작업이
요구된다고 볼 수 있습니다.


대기공간과 복도 그리고 4개의 강의실로
알차게 구성이 되어있도록 준비를
진행하였으며 각 강의실에 얼마나
인원을 수용할지 그리고 수용된 인원과
함께 칠판과의 거리 동선 등을 디테일하게
구성하되 내부 공간이 넓어 보일 수 있는
인테리어로 준비했습니다.
50평학원인테리어 시공 공사 현장


해당 현장의 경우는 아무도 없는
완벽 공실 상태로 작업이 진행되었습니다.
사전 철거가 진행될만한 별도의 인테리어가
없었기 때문에 기존에 인테리어에서 추가로
들어가는 가벽 설치 및 대기실 인테리어
등 시공에 있어 더욱 발 빠르게 준비가
가능했습니다.

목공 작업을 통해서 내부에 기초되는
틀을 잡고 깔끔하게 다듬어
드리기 위해서 꼼꼼하게 작업을
진행하였습니다. 기존에 3D 프린팅을
통하여 설계된 도안을 기초 삼아
오차 범위 없도록 목조 뼈대를 잡고
석고보드 작업을 진행했습니다.
이번 인테리어는 단순 목공 작업
뿐만 아니라 깔끔한 외관을 위해서
석고보드 작업과 함께 진행해 주었습니다.
50평학원인테리어 시공 완성 현장

이제 달라진 50평학원인테리어 내부
한번 보러 가실까요?

깔끔한 외관 덕분에 학업의 능률이
상승될 것 같습니다.
의뢰 주셨던 깔끔하면서도 정갈한
이미지 덕분에 더욱이 아이들이
학업에 집중할 수 있는 편안한
느낌을 줄 수 있는 인테리어로 구상했습니다.


인테리어의 공간과 상관없이
면적을 넓어 보이게 하기 위해서는
적재적소에 배치되어 있는 조명이
공간을 더욱 탁 트여 보이게 만들어주는데요.


휴식공간으로 쓰이는 곳은 넓은 외부와
연결되어 복합기를 자유자재로 사용함과
동시에 너무 답답하지 않도록 개방감을
주기 위하여 내외부를 연결하는 창을
투명하게 만들었습니다.
상담실로 활용이 가능한 공간입니다.


휴식공간은 햇살이 잘 들어올 수
있도록 인테리어를 진행하였습니다.
50평학원인테리어에 걸맞은
깔끔하면서도 모던한 디자인의
방석 또한 포인트 인테리어입니다.


다음으로는 대망의 교실인데요.
협소해 보이지만 책상을 어떤
디자인을 사용하느냐에 따라서
공간 사용 시 불편함을 최소화할 수
있습니다.



책상은 가벼운 소재를
활용하면서도 흔들림 없이 편안한
책상을 사용하였으며 내부 컬러를
회색빛이 도는 브라운 베이지 톤으로
매치하여 차분함을 더해주었는데요.



교실 공간 뒤쪽에는 충분한 잔여 공간 및
넓은 통창을 활용한 개방감을 통해서
아이들이 공부하면서도 답답함을
느끼지 않도록 최대한 편안하고도
심플한 인테리어를 추구해 주셨습니다.

공간의 미학이 느껴지는
50평학원인테리어였는데요.
개인사업을 진행하시는 분들은
본인들이 추구하는 추구니를 공간에
그대로 녹여내는 것을 원합니다.


그러한 니즈를 적절하게 충족하기
위해서는 단순히 공장형으로 찍어내는
인테리어가 아닌 개인 니즈를 적절히
반영할 수 있는 실력이 있어야만 합니다.


여러분들이 원하는 공간 저희들이
함께 만들어가겠습니다. 궁금하신 점이
생기셨다면 주저 없이 문의하시길 바랍니다.
공사문의 010 3235 8427
▼▼▼포트폴리오 더보기 ▼▼▼
https://916er.com/category/academy/
Academy - 사무실인테리어 디자인 공사 비용견적 플랫폼
제1조 [목적] 이 약관은 “916디자인”이 온라인으로 제공하는 “콘텐츠” 및 “916디자인” 과 업무계약을 맺은 인테리어 디자인 제휴업체의 “인테리어견적서비스” 이용과 관련한 “9
916er.com
2024.06.12 - [학원인테리어] - 상암학원인테리어 견적과 마감까지 확실하게
상암학원인테리어 견적과 마감까지 확실하게
상암학원인테리어 3D디자인 시안 안녕하세요. 916 디자인입니다. 공간 심리학에서 학습 분위기를 조성하고 집중력을 최대로 끌어올리려면 주변 환경이 청결해야 하고 따
dopamine7.com
2024.04.02 - [학원인테리어] - 압구정인테리어 빠른 AS와 고객만족
압구정인테리어 빠른 AS와 고객만족
압구정인테리어 빠른 AS와 고객만족 안녕하세요 916디자인입니다. 인테리어는 매출에 직접적으로 영향을 주는 요소가 되고, 고객들에게는 장소를 선택하는 기준이 되기도 합니다. 요즘은 맛집을
dopamine7.com
2021.12.22 - [학원인테리어] - 신내동 신림 관악 교습소인테리어, 30평 40평 학원 3D 디자인
신내동 신림 관악 교습소인테리어, 30평 40평 학원 3D 디자인
신내동 신림 관악 교습소인테리어, 30평 40평 학원 3D 디자인 3D 오늘은 신내동 신림 관악 교습소인테리어, 30평 40평 학원 3D 디자인으로 제안드렸던 시안을 소개해드리겠습니다. 저희는 학원, 아카
dopamine7.com
'학원인테리어' 카테고리의 다른 글
| 광주학원인테리어 밝고 세련된 공간으로 (2) | 2024.09.04 |
|---|---|
| 40평학원인테리어 전문적인 이미지로 (1) | 2024.09.03 |
| 청라학원인테리어 깔끔하고 아늑한 디자인 (0) | 2024.09.03 |
| 천안학원인테리어 더 좋은 환경에서 공부 (6) | 2024.09.03 |
| 판교학원인테리어 부쩍 높아진 관심 (3) | 2024.09.02 |
| 일산학원인테리어 사무실의 놀라운 변신 (0) | 2024.09.02 |
| 구리학원인테리어, 심플한 분위기 연출 (1) | 2024.09.02 |
| 분당학원인테리어, 공간을 최대한 활용 (2) | 2024.09.02 |
- Total
- Today
- Yesterday
- 병원인테리어
- 학원인테리어
- 사무실인테리어후기
- 사무실인테리어디자인
- 지식산업센터인테리어
- 오피스인테리어
- interior
- 피티샵인테리어
- 헤어샵인테리어
- 사무실리모델링
- 사무실인테리어추천
- 인테리어
- 사무실인테리어업체
- 3D사무실인테리어
- 916디자인
- 회사인테리어
- 미용실인테리어
- 사무실인테리어견적
- 사무실인테리어
- 사무실인테리어공사
- 사무실인테리어전문
- 인천사무실인테리어
- 헬스장인테리어
- 3D디자인
- 학원인테리어디자인
- 상가인테리어
- 인테리어디자인
- 사무실인테리어잘하는곳
- 사무실인테리어비용
- 사무실디자인
| 일 | 월 | 화 | 수 | 목 | 금 | 토 |
|---|---|---|---|---|---|---|
| 1 | 2 | 3 | 4 | 5 | 6 | |
| 7 | 8 | 9 | 10 | 11 | 12 | 13 |
| 14 | 15 | 16 | 17 | 18 | 19 | 20 |
| 21 | 22 | 23 | 24 | 25 | 26 | 27 |
| 28 | 29 | 30 | 31 |
