티스토리 뷰
목차
40평학원인테리어 전문적인 이미지로
학원은 아이들뿐만 아니라
학부모들의 왕래도 잦은 곳입니다.
그래서 학부모들이 학원을
믿고 아이를 맡기기 위해서는 보다
전문적인 이미지의 학원을 원할 것입니다.
그렇다 보니 최근들어 저희 쪽에
학원 인테리어 문의가 빗발치고 있습니다.
오늘은 얼마 전에 진행해 드리고 온
40평학원인테리어 시공 사례를
보여드리려고 합니다.
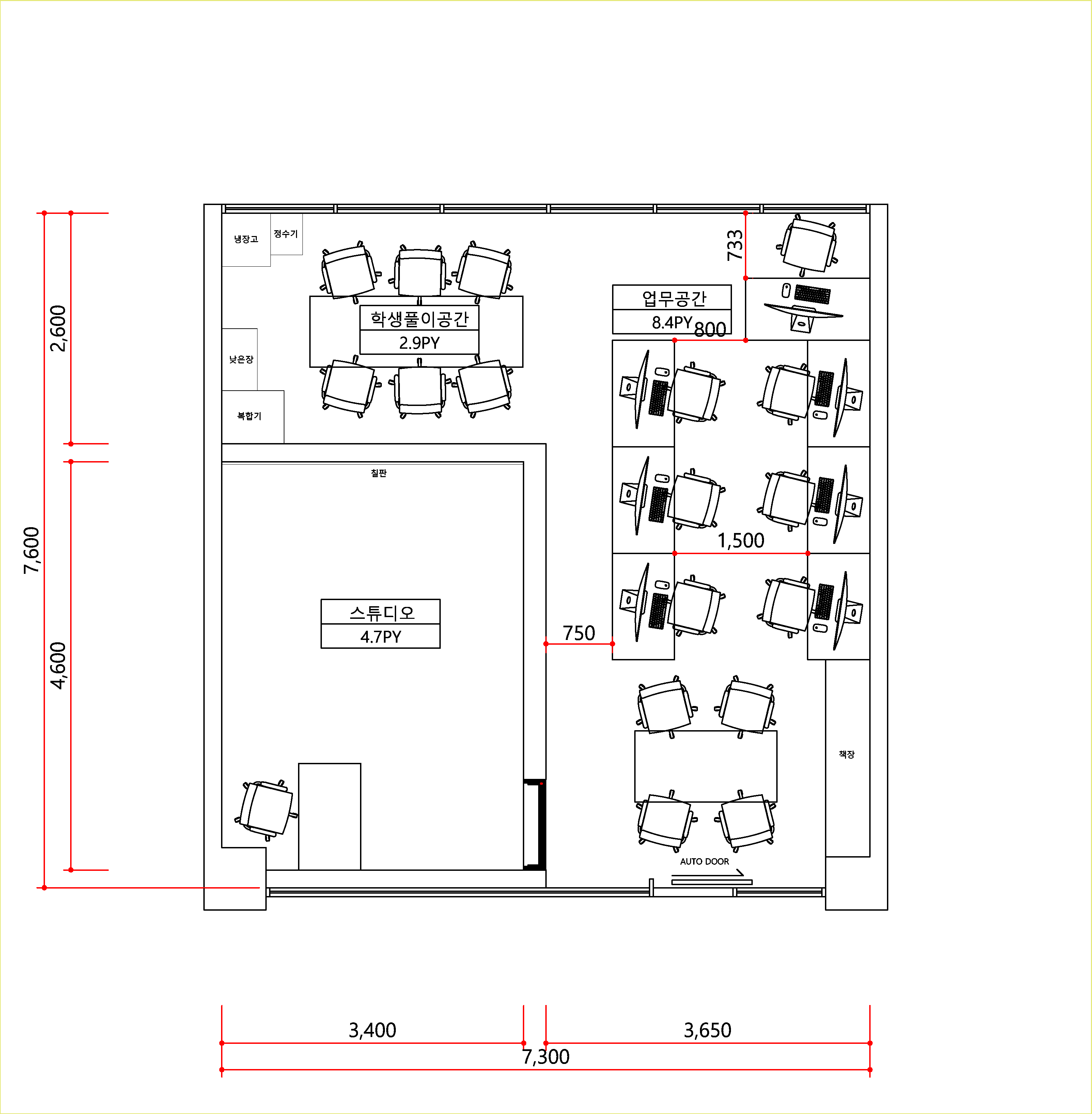
40평학원인테리어 3D 디자인 시안

이번에 작업을 도와드린 곳은
40평으로 이루어져 있었으며
고객님께서는 최대한 깔끔하고
전문적인 이미지를 요청하셨습니다.


곧바로 현장 실측을 진행한 뒤
고객님의 요구에 딱 들어 맞도록
3D 디자인 작업을 이어 나갔습니다.


각 구역별로 어떤 인테리어를
설정할지 고객님과 하나하나 맞춰
보면서 3D 디자인 작업을 진행하는데요.
사소한 부분까지 모두 조율하면서
고객님의 니즈에 100% 부합할 수
있도록 만드는 것이 저희 목표입니다.

완료된 다지인으로 고객님께서
최종 컨펌을 해주시면 해당 디자인을
토대로 본격적인 시공을 시작하게 됩니다.
40평학원인테리어 시공 공사 현장

공실이 아니었기 때문에 우선
전체 철거부터 진행이 되었습니다.
모든 공간을 새롭게 탈바꿈하기
위해 기존의 구조물을 모두 철거한 뒤
목공 작업부터 다시 시작을 해보았습니다.

언제나 수년동안 인테리어 시공을
진행해 온 전문가 직원들로 작업을
진행 중이니 걱정 않으셔도 됩니다.
목공부터 마감재 작업까지 하자가
발생하는 일이 없도록 꼼꼼한 공사를
진행하며 수차례 확인 과정도 거칩니다.

기본 뼈대가 잡히고 난 이후에는
간판 및 조명부터 전기 작업 등등
나머지 작업도 하나씩 진행됩니다.
앞서 제작해 놓은 3D 디자인에
맞게 전체 레이아웃 구성부터 쭉
세심한 손길로 작업을 이어나갑니다.
40평학원인테리어 시공 완료 현장



파사드는 차분한 우드 컬러를 메인으로
잡으면서 학원의 전체적인 이미지를
전문적인 스타일로 조성했습니다.

기존의 외관보다 전문성이 확연하게
더 높아진 모습을 볼 수 있습니다.


내부는 화이트 컬러를 베이스로
깔아서 전체적으로 깔끔한 인상을
심어주는 분위기로 탈바꿈 되었습니다.

입구를 지나 쭉 들어오면 바로
보이게 되는 강사실 역시 화이트를
메인 컬러로 통일하여 완성했습니다.


큰 창 너머로 보이는 울창한 나무의
산뜻함이 잘 어우러질 수 있도록 최대한
하얗고 깔끔한 인테리어를 도와드렸답니다.


단순히 밝은 톤으로 시공했을
뿐인데 공간의 분위기가 화사하게
변한 것에 큰 만족감을 표현해 주셨습니다.


조명도 전체적인 분위기에
딱 걸맞은 톤으로 시공 완료되어
이 부분도 매우 만족스러워해 주셨습니다.

항상 3D 디자인에 맞춰서 작업을
진행하고 있지만 혹시나 조율이 필요한
경우는 즉각적으로 보완해 드리고 있습니다.

다행히 이번 40평학원인테리어
현장에서는 결과가 매우 만족스럽게
나와서 별다른 수정은 필요하지 않았습니다.



영상 촬영이 진행될 예정인 강의실 내부는
학원의 내외부와 동일한 화이트 & 우드
컬러를 접목시켜 전문적이면서도
깔끔한 이미지를 만들었습니다.
또한 보드가 화면상으로도 선명하게
잡힐 수 있도록 상단에 밝은 조명을
설치하는 작업도 진행해 드렸습니다.
고객님께서 요청하신대로 전체적으로
군더더기 없이 깔끔한 스타일로 완성된
모습에 저희 역시 뿌듯함을 느꼈습니다.

벽면은 흡음 패널로 시공하여 외부
소음으로부터 자유롭게 강의 촬영이
가능하도록 시공을 완료해 드렸습니다.
강의실 내에서 발생하는 소리 역시
외부로 유출될 일이 없어 더욱 편하게
이용 가능한 강의실이 완성 되었답니다.


오늘은 이렇게 40평학원인테리어
현장을 사진과 함께 보여드렸는데요.
인테리어는 얼마나 전문적인 업체에게
시공을 받느냐에 따라서 결과물이
매우 천차만별로 달라진답니다.
그렇기 때문에 단순히 비용만 따져보는
것보다는 업종별 포트폴리오와 시공
사례를 꼼꼼하게 검토한 뒤 결정
하는 것을 추천드리겠습니다.
앞으로도 더 나은 인테리어를 진행해
드릴 수 있도록 노력하겠습니다.
공사문의 010 3235 8427
▼▼▼포트폴리오 더보기 ▼▼▼
https://916er.com/category/academy/
Academy - 사무실인테리어 디자인 공사 비용견적 플랫폼
제1조 [목적] 이 약관은 “916디자인”이 온라인으로 제공하는 “콘텐츠” 및 “916디자인” 과 업무계약을 맺은 인테리어 디자인 제휴업체의 “인테리어견적서비스” 이용과 관련한 “9
916er.com
2023.11.19 - [학원인테리어] - 김포 영어교습소인테리어 30평대 공간을 가득채운 화사한 컬러감
김포 영어교습소인테리어 30평대 공간을 가득채운 화사한 컬러감
ㄱ김포 영어교습소인테리어 30평대 공간을 가득채운 화사한 컬러감 안녕하세요 916디자인입니다. 요즘은 학원의 형태도 다양하죠? 대형 학원처럼 수 많은 아이들이 함께 수업을 들으며 단과반으
dopamine7.com
2024.03.28 - [학원인테리어] - 강남 서초동인테리어 행복공간 아이들을 위한 학원 교습소 디자인
강남 서초동인테리어 행복공간 아이들을 위한 학원 교습소 디자인
강남 서초동인테리어 행복공간 아이들을 위한 학원 교습소 디자인 안녕하세요, 916디자인입니다. 이제는 뗄레야 뗄 수 없는 존재인 학원 학교에서의 교육을 보충해주는 역할을 하는 동시에 또
dopamine7.com
2023.08.19 - [학원인테리어] - 합리적인 학원인테리어견적 만족도 높은 시공결과 디자인 비용
합리적인 학원인테리어견적 만족도 높은 시공결과 디자인 비용
합리적인 학원인테리어견적 만족도 높은 시공결과 디자인 비용 안녕하세요 916디자인입니다. 요즘 아이들에게 학원은 필수적인 공간입니다. 학교에서 기초적인 학습을 하더라도, 더욱 심화된
dopamine7.com
'학원인테리어' 카테고리의 다른 글
| 마포학원인테리어 공간활용 감성 다 챙기세요 (1) | 2024.09.04 |
|---|---|
| 20평 학원 인테리어 효율적이고 체계적인 디자인으로 시작 (3) | 2024.09.04 |
| 안양학원인테리어 평촌에서 트랜디한 공간으로 (1) | 2024.09.04 |
| 광주학원인테리어 밝고 세련된 공간으로 (2) | 2024.09.04 |
| 청라학원인테리어 깔끔하고 아늑한 디자인 (0) | 2024.09.03 |
| 천안학원인테리어 더 좋은 환경에서 공부 (6) | 2024.09.03 |
| 50평학원인테리어 심플한 콘셉트로 집중력 향상 (1) | 2024.09.03 |
| 판교학원인테리어 부쩍 높아진 관심 (3) | 2024.09.02 |
- Total
- Today
- Yesterday
- 사무실인테리어
- 사무실리모델링
- 지식산업센터인테리어
- 3D사무실인테리어
- 인테리어디자인
- 사무실인테리어업체
- 사무실인테리어잘하는곳
- interior
- 사무실인테리어후기
- 미용실인테리어
- 사무실인테리어공사
- 3D디자인
- 학원인테리어
- 피티샵인테리어
- 헬스장인테리어
- 916디자인
- 상가인테리어
- 회사인테리어
- 사무실인테리어추천
- 인테리어
- 인천사무실인테리어
- 학원인테리어디자인
- 오피스인테리어
- 사무실인테리어견적
- 헤어샵인테리어
- 사무실인테리어비용
- 사무실인테리어전문
- 사무실인테리어디자인
- 사무실디자인
- 병원인테리어
| 일 | 월 | 화 | 수 | 목 | 금 | 토 |
|---|---|---|---|---|---|---|
| 1 | 2 | 3 | ||||
| 4 | 5 | 6 | 7 | 8 | 9 | 10 |
| 11 | 12 | 13 | 14 | 15 | 16 | 17 |
| 18 | 19 | 20 | 21 | 22 | 23 | 24 |
| 25 | 26 | 27 | 28 | 29 | 30 | 31 |
