티스토리 뷰
목차
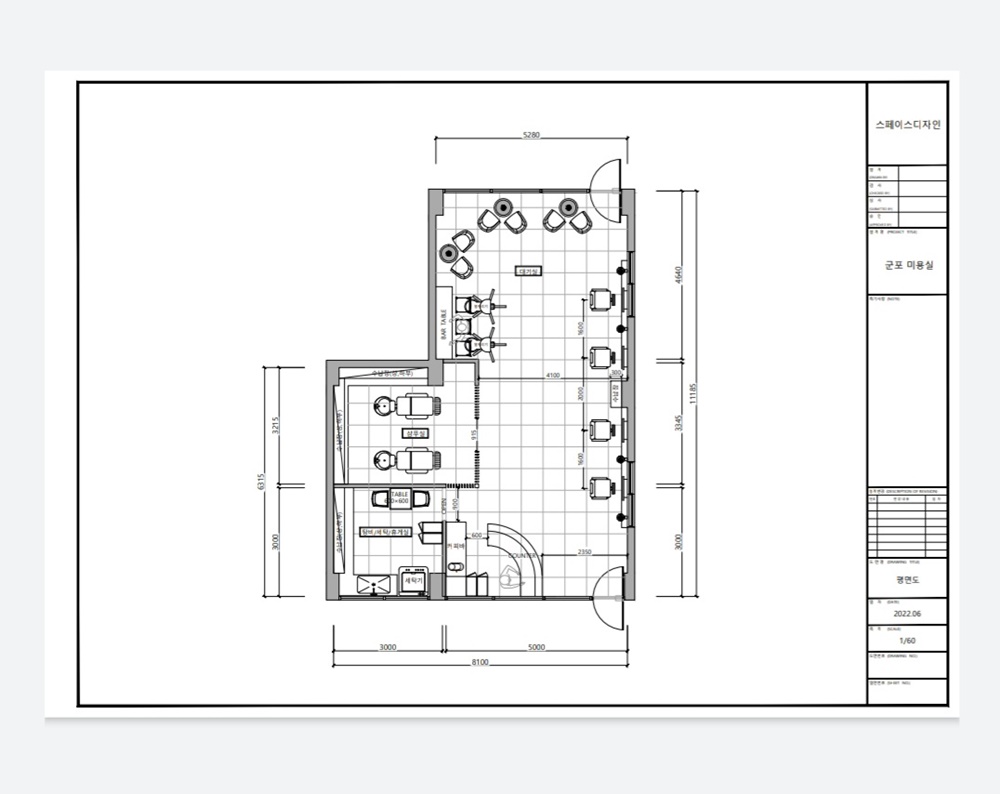
20평이나 30평 미용실인테리어는 공간 활용과 레이아웃 디자인의 중요성이 더욱 강조됩니다.
하지만 인테리어 시공을 고려할 때 가장 고민되는 부분은 비용견적이죠.
특히 적절한 미용실인테리어 예산으로 최고의 결과물을 얻기 위해서는 견적을 잘 받는 것이 매우 중요해요.
물론 이 과정에서 어떤 점들을 신경 써야 하는지 알면 더 쉽게 진행할 수 있겠죠?
따라서 오늘은 구일육디자인의 미용실인테리어 레이아웃 사례를 보면서 시공 비용견적을 잘 받는 방법에 대해 다양한 팁과 정보를 제공하려고 해요!
어떻게 고객의 마음을 사로잡고 매출에까지 긍정적인 영향을 미칠 수 있는지 함께 알아보죠. :)
20평 30평 미용실인테리어 기본 이해하기



미용실인테리어 시공 비용은 다양한 요소에 따라 달라지기 때문에 기본적인 요소들을 이해하는 것이 첫 걸음이에요.
평수에 따라 필요한 자재와 시공 방식이 달라지니까 처음부터 알아두는 게 좋죠.
20평 30평 미용실은 공간 활용의 차이가 나기 때문에 예상 비용에서도 차이를 보일 수 있어요.
또한 자재의 질과 디자인 스타일에 따라서 비용이 크게 달라질 수 있답니다.


대부분의 미용실 인테리어는 기본적으로 바닥, 벽, 조명, 가구 배치 등을 포함하는데요.
특히 조명은 고객의 직접적인 경험에 영향을 미치기 때문에 신중하게 선택해야 해요.
따라서 미용실인테리어를 시작하기 전에 어떤 스타일을 원하고 어떤 자재를 사용할지에 대한 계획을 세우는 것이 중요하죠.
20평 30평 미용실인테리어 예산 설정하기


미용실인테리어 시공 전에 예산을 세우는 것은 필수적이에요.
미용실의 수익성과도 직결되니까 신규 창업자나 리모델링을 고려하는 사업자는 더욱 중요한 단계죠.
최소한의 예산으로 최대의 효과를 얻기 위해서는 우선적으로 자주 사용하는 자재나 가구에 기준을 두는 것이 좋아요.
고가의 자재를 일부분 사용하는 대신 나머지 부분은 저렴한 자재로 채울 수도 있잖아요.




또한 예상되는 추가 비용도 미리 반영하는 것이 좋습니다.
시공 후 발생할 수 있는 디자인 수정이나 추가 자재 구입 같은 것들은 예산을 초과할 위험이 있어요.
따라서 예산을 설정할 때 이러한 변수들을 미리 고민해 보는 것이 바람직하죠.


자재와 가구 선택은 미용실인테리어에서 가장 많은 고민거리가 되는 부분이죠.
무엇보다도 고객이 자주 사용하는 공간인 만큼 기능성과 디자인 모두를 충족시켜야 해요.
바닥재는 내구성과 관리 편의성을 고려해야 하고 소파와 의자 같은 가구는 편안함과 디자인을 모두 고려해야 하죠.


자재와 가구를 결정할 때는 실제 사용해 볼 수 있는 기회를 적극 활용해 보는 것이 좋습니다.
또한 미리 샘플을 요청해서 실제 분위기를 비교하고 전반적인 조화를 이끌어내는 것이 중요해요.
20평 30평 미용실인테리어 개성과 아이덴티티 담기


20평 30평 미용실이라도 미용실만의 아이덴티티를 확실히 하는 것이 중요해요.
고객이 들어왔을 때 "여기는 다른 미용실과는 다르구나"라는 느낌을 줄 수 있어야 하죠.
강력한 브랜드 색상이나 로고를 사이트와 연관된 모든 요소에 잘 적용하여 통일감을 주는 것이 좋아요.





특정 대상 고객층을 정해 그들의 취향에 맞는 인테리어를 적용하는 것이 효과적이에요.
젊은 세대를 대상으로 하는 미용실은 현대적인 감각을 강조한 디자인을, 반면 중장년층을 대상으로 한 곳은 클래식한 스타일을 유지하는 것도 고려해보세요.




미용실의 공간은 필수적인 요소로 고객과 직원 모두의 만족도를 좌우해요.
20평 30평 처럼 평수가 좁을수록 어떻게 공간을 활용할지가 더욱 중요해지거든요.
미용실의 대기 공간을 넓히기 위해서는 안에 비치를 최소화하고 다양한 소품을 활용해 공간을 채우는 방법이 있어요.
또한 미용 기구는 이동 가능하게 배치해, 필요할 때 쉽게 사용할 수 있도록 조정하는 것이 중요해요.




고객이 미용실에 들어왔을 때, 자연스럽게 이어진 동선이 중요해요.
첫 단계에서 대기 섹션으로 이어지면서 다음으로는 시술 공간으로 직접적으로 이동할 수 있도록 설계하는 것이죠.
불필요하게 복잡한 동선은 고객에게 불편함을 주고 정체된 느낌을 줄 수 있으니까요.









또한 직원이 움직이는 동선도 고려해야 해요.
서비스 제공 시 직원들이 고객 옆을 안전하게 지나갈 수 있도록 여유로운 동선을 확보하는 것이 좋답니다.
그래서 결과적으로 모든 손님과 직원이 편안함을 느낄 수 있는 환경을 만들어야 해요.





미용실인테리어는 고객에게 첫인상을 결정짓는 중요한 요소죠.
따라서 고급스러운 느낌을 주기 위해서는 조명과 색상 선택이 핵심이에요.
따뜻한 톤의 조명을 사용하면 아늑한 느낌을 줄 수 있고 현대적인 감각을 원한다면 차가운 색감을 조화롭게 믹스할 수도 있어요.


실내 식물이나 아트워크를 배치해 공간을 더욱 생기있게 만들 수 있어요.
고객이 미용실에 들어서자마자 ‘오, 이곳은 특별한 곳이구나’라고 느낄 수 있도록 하는 것이죠.
편안한 분위기는 고객의 긴장을 풀어주고 지속적인 방문으로 이어지는 매우 중요한 요소랍니다.


가구의 배치 또한 미용실 레이아웃에서 큰 비중을 차지해요.
시술대와 대기 공간의 위치를 고려하여 대칭적인 배치를 적용하면 공간을 더욱 넓어 보이게 만들 수 있어요.
서로 다른 서비스 영역이 서로 잘 연결될 수 있도록 디자인하는 것이 중요하죠.







또한 가구의 크기와 형태도 고려해야 해요.
너무 큰 가구는 공간을 답답하게 할 수 있으니 소형 모듈 가구를 활용해 다양성 있는 배치를 시도해보세요.
또 저가형 제품보다는 내구성이 높은 제품으로 선택하면 오랫동안 사용할 수 있다는 장점도 있답니다.


위생 관련 제품을 쉽게 보관할 수 있도록 수납 공간을 마련하는 것이 중요해요.
청결은 신뢰를 쌓는 중요한 요소니까요.
고객이 믿고 방문할 수 있는 미용실을 만드는 것이 하우스의 목표랍니다.


미용실에서는 고객의 안전과 위생이 최우선이에요.
따라서 공간 설계를 할 때 안전한 동선을 계획하고 세면대나 바닥 등은 청소가 용이한 구조로 설계하는 것이 좋아요.



재료 또한 중요한 선택 요소인데요.
특히 바닥재와 벽재는 먼지나 기름때가 잘 묻지 않는 재질을 선택하는 것이 좋답니다.
쉽게 청소가 가능하면서도 디자인적인 요소를 더할 수 있는 다양한 재료로 공간을 꾸며보세요.





미용실의 디자인은 필요 이상으로 격식 있지 않아도 돼요.
고객의 눈을 사로잡는 창의적인 요소를 추가하는 것도 좋은 방법이죠.
특이한 조명이나 벽면에 설치된 독특한 아트워크는 고객의 호기심을 자극할 수 있답니다.
이렇게 하면 단골 고객을 유치하는 데 큰 부담을 주지 않으면서도 변화를 잘 반영할 수 있답니다.







고객의 마음을 사로잡고 지속적으로 방문하게 만들기 위해서는 20평 30평 미용실인테리어가 정말 중요하답니다.
위에서 알려드린 다양한 레이아웃 팁들을 활용하여 작은 평수의 미용실 공간에서도 고객이 편안함을 느끼고 직원이 효율적으로 작업할 수 있는 환경을 만드는 것이 핵심이죠.
또한 미용실인테리어 디자인과 시공 비용견적을 잘받는 과정은 많은 준비와 노력이 필요한데요.
무엇보다도 자신이 원하는 스타일과 예산에 대한 고민이 선행되어야 하고 그에 맞는 업체를 신중하게 선택하는 것이 중요하답니다.
인테리어의 모든 과정이 얼마나 중요한지를 잊지 말고 철저한 준비와 실행을 통해 원하는 결과물을 얻기를 바라며, 도움이 필요하다면 언제든지 구일육디자인으로 문의 바라요!
☎ 공사문의 ☎
010 -3235- 8427
▼ 포트폴리오 더보기 ▼
https://916er.com/
사무실인테리어 디자인 공사 비용견적 플랫폼 - 사무실인테리어 916
사무실인테리어 916
916er.com
♥ 함께 읽어보면 좋은 글 ♥
2025.06.19 - [미용실인테리어] - 강남구상가인테리어 세련된 느낌을 준 소형미용실 공간을 넓게 쓰는 디자인 제안
강남구상가인테리어 세련된 느낌을 준 소형미용실 공간을 넓게 쓰는 디자인 제안
강남구는 서울의 중심지로서 패션과 트렌드의 중심지라고 할 수 있어요. 특히 이 곳의 소형미용실들은 새롭고 세련된 인테리어로 고객들의 눈길을 사로잡고 있죠. 스타일리시한 미용실은 머리
dopamine7.com
2025.07.23 - [사무실인테리어] - 성남상가인테리어 맨즈헤어샵 디자인 추천 컨셉 확실한 남성전용 미용실 시공 모음
성남상가인테리어 맨즈헤어샵 디자인 추천 컨셉 확실한 남성전용 미용실 시공 모음
안녕하세요, 구일육디자인입니다! :) 요즘 점점 더 많은 남성들이 멋진 스타일을 얻기 위해서 남성전용 맨즈헤어샵을 선호하고 찾고 있죠. 그런데 맨즈헤어샵을 선택할 때 상가인테리어도 무시
dopamine7.com
2025.05.26 - [인테리어이야기] - 포천상가인테리어 미용실 공간 구성 어떻게 하면 좋을까
포천상가인테리어 미용실 공간 구성 어떻게 하면 좋을까
근래에 다양한 상업공간 중에서도 헤어샵 등 미용실 창업에 관심을 가지시는 분들이 많습니다. 이런 경우 내부 공간 구성을 어떻게 해야 할지 고민하게 됩니다. 이에 따라 고객 만족도와 매출에
dopamine7.com
2025.06.13 - [미용실인테리어] - 강동구상가인테리어 다양한 컨셉 미용실디자인 가능한 업체 프랜차이즈 헤어샵 시공 사례
강동구상가인테리어 다양한 컨셉 미용실디자인 가능한 업체 프랜차이즈 헤어샵 시공 사례
최근 강동구에서 프랜차이즈 헤어샵들이 많이 생겨나고 있는데 이는 지역 주민들을 대상으로 한 머리 스타일링 서비스의 수요가 높아지고 있기 때문이에요. 특히 강동구상가인테리어에 대한
dopamine7.com
'미용실인테리어' 카테고리의 다른 글
| 천안상가인테리어 방문하는 고객이 기분 좋아지는 미용실 포트폴리오 (1) | 2025.09.19 |
|---|---|
| 상가건물리모델링 좁은 공간도 분위기를 살려주는 소형 뷰티샵 컨셉 모음 (1) | 2025.09.10 |
| 이발소인테리어 바버샵 남성 고객의 마음을 사로잡은 시공 후기 (1) | 2025.09.02 |
| 건물외관리모델링 내부 구조 변경까지 완벽 변신한 헤어샵 인테리어 (2) | 2025.08.18 |
| 성동구상가인테리어 고객방문율 높이는 트렌디한 디자인 (6) | 2025.07.23 |
| 천안상가인테리어 자존감 올려주는 뷰티샵 시공후기 (4) | 2025.07.01 |
| 40평 50평 미용실인테리어 평수 맞춤 최적화 공간 활용하는 뷰티샵 레이아웃의 비밀 (1) | 2025.06.24 |
| 강남구상가인테리어 세련된 느낌을 준 소형미용실 공간을 넓게 쓰는 디자인 제안 (1) | 2025.06.19 |
- Total
- Today
- Yesterday
- 사무실인테리어전문
- 학원인테리어디자인
- 학원인테리어
- interior
- 3D디자인
- 사무실인테리어추천
- 병원인테리어
- 사무실인테리어후기
- 헬스장인테리어
- 인테리어디자인
- 피티샵인테리어
- 사무실인테리어디자인
- 사무실인테리어비용
- 오피스인테리어
- 사무실인테리어업체
- 3D사무실인테리어
- 지식산업센터인테리어
- 상가인테리어
- 사무실인테리어
- 인천사무실인테리어
- 사무실디자인
- 사무실리모델링
- 사무실인테리어잘하는곳
- 헤어샵인테리어
- 회사인테리어
- 916디자인
- 사무실인테리어공사
- 인테리어
- 미용실인테리어
- 사무실인테리어견적
| 일 | 월 | 화 | 수 | 목 | 금 | 토 |
|---|---|---|---|---|---|---|
| 1 | 2 | 3 | 4 | |||
| 5 | 6 | 7 | 8 | 9 | 10 | 11 |
| 12 | 13 | 14 | 15 | 16 | 17 | 18 |
| 19 | 20 | 21 | 22 | 23 | 24 | 25 |
| 26 | 27 | 28 | 29 | 30 | 31 |
