티스토리 뷰
목차
미용실인테리어는 아름답게 꾸미는 것도 물론 중요하지만 고객의 경험을 향상시키고 경영의 효율성을 높이는 것 또한 굉장히 중요해요.
특히 40평 50평 규모의 미용실은 공간 활용에 있어 더욱 세심한 접근이 필요한데요.
아늑하고 편안한 환경을 조성하는 것이 미용실의 성공 열쇠가 될 수 있겠죠?
하지만 실제로는 어떻게 뷰티샵 공간을 최적화할 수 있는지 어렵기만 해요.
부가가치를 창출하면서도 고객이 매장을 떠나기 전까지 즐거움을 느낄 수 있는 것, 그 비결은 바로 뷰티샵 레이아웃 설계에 있어요!
오늘은 구일육디자인의 미용실인테리어 시공 사례를 통해 40평 50평 평수 맞춤 최적화된 공간 활용법과 뷰티샵 레이아웃의 비밀을 소개하려고 해요.
저희가 알려드리는 팁은 디자인 요소를 넘어 비즈니스와 고객 만족도를 한 차원 높일 수 있는 방향으로 도움을 줄 것이기 때문에 끝까지 하나하나 꼼꼼하게 살펴보시기 바라요! :)
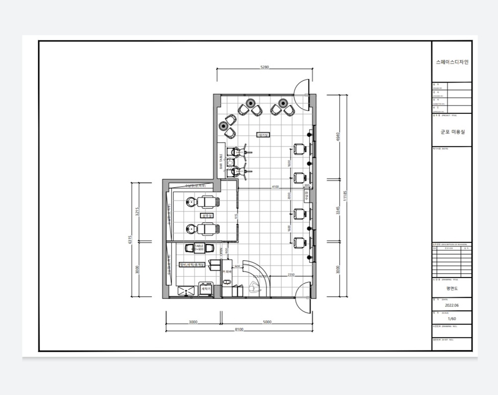
40평 50평 미용실인테리어 공간 기능 분리

미용실은 다양한 기능을 수행해야 하므로 각 섹션응ㄹ 명확하게 구분하는 것이 중요해요.
샴푸 구역, 스타일링 구역, 대기 공간 등 각각의 목적에 맞게 분리하여 레이아웃을 구성해 보았는데요.
이를 통해 고객이 각 공간에서 기대하는 경험을 제공할 수 있도록 했고 직원 또한 효율적으로 일할 수 있도록 했죠.
공간을 나누는 방법으로는 적절한 가구 배치나 파티션을 활용했어요.
이러한 분리는 소음과 시각적인 방해 요소를 줄여주죠.


또한 각 기능별로 필요한 장비나 소품을 가까운 곳에 배치함으로써 직원의 동선을 최소화하는 것이 중요해요.
스타일링 구역에서는 스타일링 도구와 제품을 가까이 두어 손쉽게 접근할 수 있도록 하고 셀프 바나 음료 코너도 대기 공간과 가까운 위치에 배치하도록 해서 고객의 편안함을 증대시킬 수 있도록 했죠.


최근 젊은 고객층이 선호하는 모던한 감성의 디자인을 선택했어요.
모던한 미용실에 컴팩트한 색조는 필수적인데요.
대개 화이트, 그레이, 블랙 등의 중립적인 색상이 자주 선택되죠.
이러한 색상은 공간을 넓고 시원하게 느끼게 만들고 심리적인 안정감을 가져다 줘요.
물론 포인트 색상을 추가하는 것도 좋은 방법인데 따뜻한 나무색이나 파스텔톤의 소품을 이용하여 전반적인 분위기가 한층 살아날 수 있도록 했죠.
40평 50평 미용실인테리어 서비스 동선 최적화


미용실에서 원활한 서비스를 제공하기 위해서는 종합적인 동선 계획이 필수적이에요.
서비스 동선은 고객과 직원의 움직임을 최적화하는 데 초점을 맞춰야 하는데요.
고객이 재방문한다면 자주 찾는 서비스 제공자는 일정한 위치에 배치하고 실내 전체를 한눈에 볼 수 있는 구조를 통해 고객의 시선을 분산시키고 원하는 스타일을 쉽게 요청할 수 있도록 도움이 되게 했죠.



그리고 모든 직원이 빠르게 동선에 접근할 수 있도록 배치했어요.
이렇게 하면 서비스의 질도 향상되겠죠.
고객 대기 시간 동안 직원이 바쁘게 움직이는 모습은 고객에게 신뢰를 줄 수 있기 때문에 동선 계획이 대단히 중요하죠.




고객이 미용실을 찾는 이유는 스타일링 뿐만 아니라 편안한 분위기와 소통을 원하기 때문이에요.
따라서 인테리어 디자인에서 편안함을 고려하는 것은 고객 경험을 크게 향상시킬 수 있는 요소가 되죠.
자연광을 최대한 활용하거나 인테리어 색상을 따뜻하게 조정하는 것은 좋은 시작입니다.




미용실 내 공용 시설인 화장실이나 세면대 배치도 중요하게 생각했어요.
고객이 필용할 때 쉽게 접근할 수 있도록 위치를 선정했으며 청결한 관리가 가능하도록 했는데요.
화장실의 출입구와 대기 공간의 위치를 잘 조절하여 고객의 동선을 방해하지 않도록 했죠.
40평 50평 미용실인테리어 고객의 편안함 고려

고객에게 편안함을 느낄 수 있도록 디자인된 미용실인테리어는 굉장히 중요해요.
고객이 방문하여 느끼게 되는 감정은 첫인상을 결정짓기도 한데요.
편안한 가구와 함께 편리한 동선, 퀄리티 높은 서비스 등 종합적인 모든 요소들은 고객들이 다시 찾고 싶어질 만큼의 장점으로 작용하게 되겠죠.


고객이 대기하게 되는 대기 공간 역시 미용실에서 매우 중요해요.
이 공간은 특히 고객이 처음 들어오는 곳을오 첫인상을 확정짓게 되는 곳이기도 한데요.
고객이 대기하는 동안 지루하지 않도록 소품 등을 배치하는 것이 좋고 대기 공간에서 고객끼리 소통할 수 있게끔 배치를 고려하는 것이 좋죠.


40평 50평 미용실에서는 인테리어가 고객 만족도에 굉장히 큰 영향을 미칠 수 밖에 없어요.
고객이 미용실을 이용하는 동안 불편한 점이 없도록 시스템을 잘 갖추는 것이 당연하며 다양한 인테리어 소품 등을 통해서 아늑한 분위기를 조성하면 고객은 더 기분 좋게 뷰티샵을 이용할 수 있죠.






시각적으로나 감정적으로 긍정적인 경험을 제공할 수 있는 디자인 요소를 더했어요.
이에 따라 차별화된 느낌을 줄 수 있는 인테리어 요소를 적극 활용했으며 추후에는 잡지와 음료를 제공하는 등 서비스적인 차원에서도 좋은 방법이 뒷따를 수 있겠죠.
미용실 벽면에는 감적적인 조명 기기 등을 추가하여 공간의 품격을 높여주었어요.
추상적인 그림이나 사진을 활용하여 현대적인 감각을 더욱 부각시키는 방법도 있는데요.
특색 있는 장식품이나 조명을 활용하면 시선을 끌며 분위기를 한층 다채롭게 만들 수 있답니다.





카운터 역시 심플하지만 평범하지 않는 디자인으로 만들어 보았어요.
이러한 인테리어 디자인 요소는 고객과의 대화 소재가 되기도 하고 인테리어의 주제를 더욱 쉽게 전달할 수 있는 도구가 될 수 있답니다.
고객이 좋아하는 스타일에 따라 큐레이터처럼 예술작품을 선정해보는 것도 좋은 방법이 되죠.








미용실에 다양한 도구와 소품들이 많기 때문에 효율적인 저장 공간이 필요해요.
수납 공간을 어떻게 잘 디자인하느냐에 따라 직원의 업무 효율성에 직접적으로 영향을 미치니까요.
특히 기술적 장비나 제품을 사용하는 직원에게는 적절한 수납 솔루션이 필요한데요.
가림막이 있는 수납장을 사용하거나 벽을 이용한 선반을 활용해 효율성을 높일 수 있어요.





수납 공간은 디자인과 기능성을 동시에 만족해야 해요.
색상이나 재질을 잘 선택하면 공간이 더욱 세련되게 보일 수 있죠.
이러한 설계가 고객들에게도 좋은 인상을 줄 수 있어요.





또한 적절한 인테리어 요소를 통해 공용 시설의 품질을 향상시키면 고객에게 더 좋은 인상을 줄 수 있어요.
전체적인 미관을 고려할 때 조화로운 디자인으로 소품을 배치하면 고객들은 더욱 쾌적하게 이용할 수 있겠죠.





마지막으로 40평 50평 미용실인테리어를 고려할 때 기본 인프라의 확장성도 염두해 두어야 해요.
기술의 발적이나 고객 수 증가에 따라 직원 수나 서비스 유형을 변경할 수 있도록 설계하는 것이 중요하죠.
공간을 굳이 재구성하지 않고도 필요한 요소를 추가할 수 있는 유연한 인테리어가 바람직하답니다.



서비스의 이동성을 고려해 회의실 등의 공간도 다용도로 활용 가능하게 설계했어요.
이렇게 하여 비즈니스의 성장에 맞춰 유연하게 대처할 수 있는 인프라를 갖출 수 있도록 했죠.
40평 50평 미용실인테리어는 공간의 크기에 따라 다양한 디자인과 레이아웃 방식을 활용할 수 있어요.
이를 통해 고객의 편안함과 만족도를 높이면서도 비즈니스의 효율성을 극대화할 수 있는데요.
적절한 기능 분리와 효율적인 서비스 동선, 그리고 끊임없는 고객 피드백 수집은 뷰티샵의 성패를 가르는 중요한 요소랍니다.
여러분의 미용실도 보다 풍부한 고객 경험을 만들고 싶다면 최적의 공간 활용과 매력적인 레이아웃 설계가 가능한 구일육디자인과 함께 해보시는 것이 어떠신가요?
성공적인 비즈니스를 이끌어 나갈 수 있도록 도와드리겠습니다.
☎ 공사문의 ☎
010 -3235- 8427
▼ 포트폴리오 더보기 ▼
https://916er.com/
사무실인테리어 디자인 공사 비용견적 플랫폼 - 사무실인테리어 916
사무실인테리어 916
916er.com
2025.05.23 - [미용실인테리어] - 오산상가인테리어 드라마틱한 변신 피부관리샵 리모델링 시공 사례
오산상가인테리어 드라마틱한 변신 피부관리샵 리모델링 시공 사례
최근 들어 피부관리샵의 수요가 증가하면서 많은 사업자들이 경쟁력을 갖추기 위해 오산상가인테리어 업체를 찾아 리모델링을 하는 추세예요. 특히나 오산지역은 많은 소비자들이 찾는 핫플레
dopamine7.com
2025.05.26 - [인테리어이야기] - 포천상가인테리어 미용실 공간 구성 어떻게 하면 좋을까
포천상가인테리어 미용실 공간 구성 어떻게 하면 좋을까
근래에 다양한 상업공간 중에서도 헤어샵 등 미용실 창업에 관심을 가지시는 분들이 많습니다. 이런 경우 내부 공간 구성을 어떻게 해야 할지 고민하게 됩니다. 이에 따라 고객 만족도와 매출에
dopamine7.com
2025.05.29 - [미용실인테리어] - 구로구상가인테리어 소형 미용실 헤어샵 공사도 전문업체에게
구로구상가인테리어 소형 미용실 헤어샵 공사도 전문업체에게
미용실이나 헤어샵은 고객과의 직접적인 소통이 중요한 업종이기 때문에, 공간의 디자인과 인테리어가 그만큼 중요합니다. 특히 소형미용실은 고객의 편안함과 스타일을 동시에 고려해야 하기
dopamine7.com
2025.06.04 - [미용실인테리어] - 의정부상가인테리어 화사한 분위기를 만드는 뷰티샵 디자인 요소는
의정부상가인테리어 화사한 분위기를 만드는 뷰티샵 디자인 요소는
다양한 업종 중에서도 뷰티샵 창업 관련하여 많은 연락을 주시고 계십니다. 그중에서도 가장 중요하게 생각하시는 부분이 뷰티샵인테리어인 것 같은데요. 같은 비용이라도 어떻게 공간을 구성
dopamine7.com
'미용실인테리어' 카테고리의 다른 글
| 건물외관리모델링 내부 구조 변경까지 완벽 변신한 헤어샵 인테리어 (2) | 2025.08.18 |
|---|---|
| 20평 30평 미용실인테리어 레이아웃 비용견적 잘받는 방법 (1) | 2025.07.31 |
| 성동구상가인테리어 고객방문율 높이는 트렌디한 디자인 (6) | 2025.07.23 |
| 천안상가인테리어 자존감 올려주는 뷰티샵 시공후기 (4) | 2025.07.01 |
| 강남구상가인테리어 세련된 느낌을 준 소형미용실 공간을 넓게 쓰는 디자인 제안 (1) | 2025.06.19 |
| 강남미용실인테리어 상가건물 헤어샵의 고급스러운 디자인 연출 (0) | 2025.06.17 |
| 10평 15평 20평 소형 작은미용실인테리어 경대 샴푸실 수납장 다양한 옵션의 디자인과 견적비용의 관계 (0) | 2025.06.16 |
| 강동구상가인테리어 다양한 컨셉 미용실디자인 가능한 업체 프랜차이즈 헤어샵 시공 사례 (3) | 2025.06.13 |
- Total
- Today
- Yesterday
- 지식산업센터인테리어
- 헬스장인테리어
- 인테리어
- 916디자인
- 병원인테리어
- interior
- 회사인테리어
- 사무실리모델링
- 사무실인테리어비용
- 헤어샵인테리어
- 오피스인테리어
- 사무실인테리어잘하는곳
- 3D디자인
- 사무실인테리어
- 사무실인테리어공사
- 3D사무실인테리어
- 사무실인테리어업체
- 사무실인테리어후기
- 사무실인테리어전문
- 사무실인테리어디자인
- 학원인테리어디자인
- 인천사무실인테리어
- 사무실인테리어견적
- 사무실인테리어추천
- 사무실디자인
- 학원인테리어
- 인테리어디자인
- 피티샵인테리어
- 미용실인테리어
- 상가인테리어
| 일 | 월 | 화 | 수 | 목 | 금 | 토 |
|---|---|---|---|---|---|---|
| 1 | ||||||
| 2 | 3 | 4 | 5 | 6 | 7 | 8 |
| 9 | 10 | 11 | 12 | 13 | 14 | 15 |
| 16 | 17 | 18 | 19 | 20 | 21 | 22 |
| 23 | 24 | 25 | 26 | 27 | 28 | 29 |
| 30 |













