티스토리 뷰
목차
당산 생각공장 지식산업센터 53평 사무실인테리어 차별화된 디자인으로
안녕하세요 사무실인테리어 전문 업체 916디자인입니다.
사무실인테리어는 어떤 구조인지부터 업종의 특성까지 여러 요소를 고려한 설계가 필요합니다. 같은 구조라 하더라도 어떤 색상, 디자인,자재 등을 사용하는지에 따라서 전체적인 분위기가 달라지기 때문인데요. 그렇기 때문에 다양한 시공 사례를 참고하여 원하는 컨셉을 찾는 것이 좋습니다.
3D 디자인 제안

오늘 916디자인에서 준비한 사무실인테리어는 당산 생각공장 지식산업센터 53평입니다.
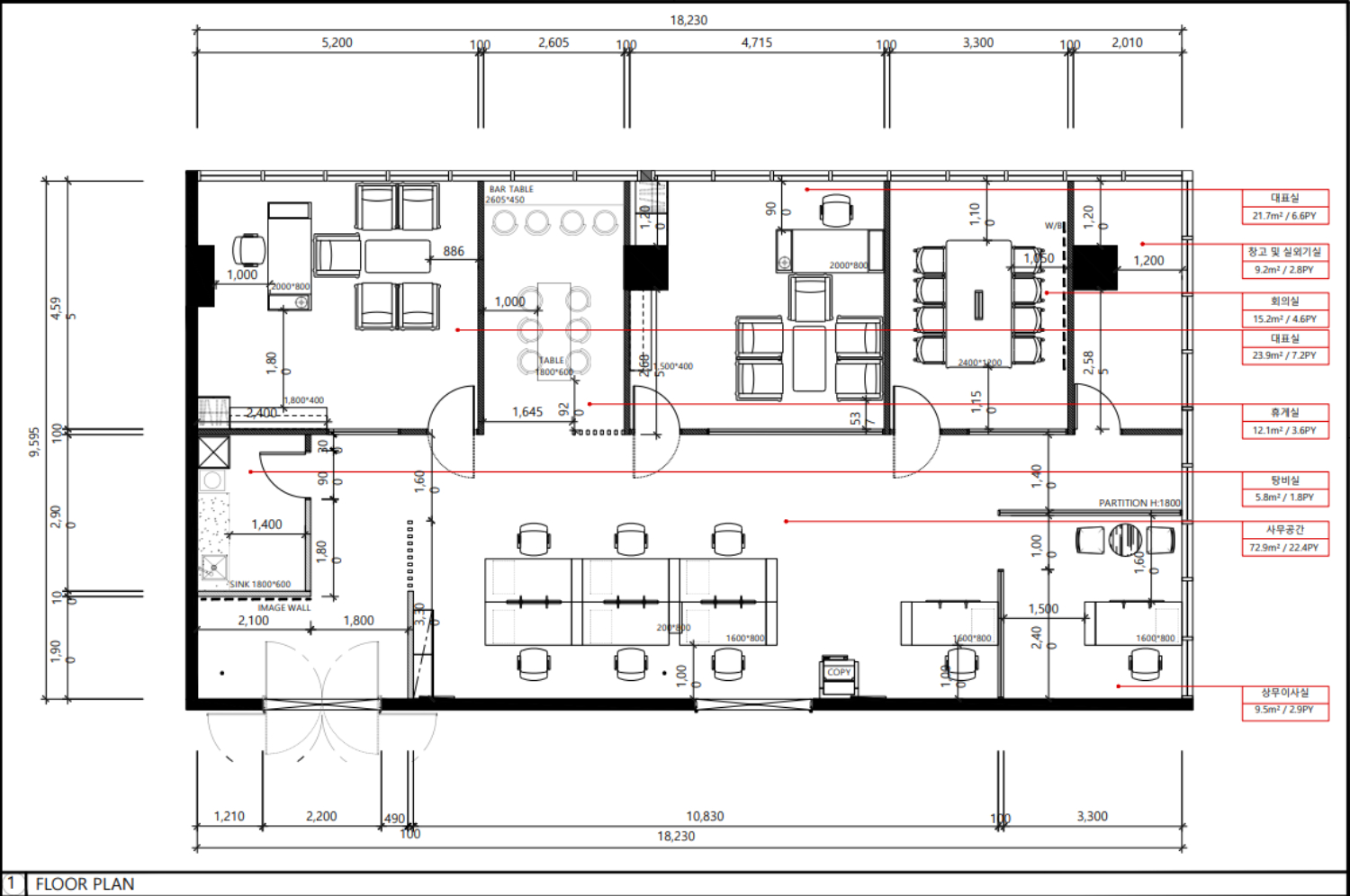
단층 형태로 업무공간, 회의실, 2개의 대표실, 휴게실, 창고로 구분하여 구성하였습니다.



외부 파사드와 입구에는 기업의 이미지를 표현한 블루 컬러로 포인트를 주었고 심플한 디자인으로 신뢰감이 느껴지는 공간으로 구성 했습니다.



사무실 내부는 화이트 인테리어에 글라스월로 개방감을 주면서 동시에 블랙 프레임으로 깔끔하게 공간을 구분해준 모습입니다. 여러개의 공간으로 구성을 하는만큼 적극적으로 개방감을 주어 답답한 느낌을 해소 시켰습니다.




공간의 사용 목적에 따라 가구나 컬러, 조명까지 신경써서 3D 디자인을 제안 드렸습니다. 최종 시안 확정 후 시공을 진행 했습니다. 916디자인은 각 공정별 현장 전문가가 원팀으로 구성되어 시공을 진행하는만큼 완성도 높은 작업이 가능합니다.
이번 당산 생각공장 지식산업센터 53평 사무실 인테리어도 깔끔한 시공으로 클라이언트분의 완성도가 높은 현장이었습니다.그럼 지금부터 어떻게 시공이 완료 되었는지 자세히 확인해보도록 하겠습니다.
시공 완료 현장




먼저 당산 생각공장 지식산업센터 53평 사무실의 외부 파사드는 포인트 컬러인 블루를 사용해 사선 디자인의 아트월을 만들었습니다. 상단과 하단의 사선 라인커팅으로 이어진듯한 느낌이 들고 아트월 상단에는 간접등을 설치해 포인트를 주었습니다. 또한 입구문은 통유리로 설치하여 탁 트이고 깔끔한 느낌을 주었습니다.



사무실 입구에는 양측으로 아트월을 구성하여 공간감을 채워주었습니다.
입구에 넓은 공간을 활용하기 어려웠기 때문에 아트월을 라인 시공 위주로 시공 했고 추가로 다운 라이트와 간접 조명으로 구성하여 밝은 분위기를 연출 했습니다.



입구 공간과 사무실 내부는 블루 컬러의 우드 파티션으로 가볍게 구분해주었습니다. 파티션을 설치해 복도를 길게 만들어 공간이 더 길어보이는 느낌을 주었습니다.




당산 생각공장 지식산업센터 53평 사무실인테리어 내부 모습입니다. 블랙 프레임의 글라스월로 여러 공간으로 구분되어 있지만 답답함 없이 개방감 있게 마무리 되었습니다.
내부 바닥 마감재는 전체적으로 동일한 소재를 사용하여 통일감을 주었고 그레이 컬러로 안정감이 느껴집니다.



가장 안쪽으로는 실외기와 기타 비품을 보관할 수 있는 창고가 위치해 있습니다. 대표실이나 회의실 등의 메인 공간은 도어까지 글라스월을 사용 했지만 창고는 부분 개방형 도어로 설치 했습니다.


첫번째 대표실입니다. 개방감 있는 전면 통창으로 탁 트인 시야를 자랑합니다. 또한, 천장은 건물의 기존 구조 그대로를
사용하였으나 프레임을 천장 보다 약간 낮게 설치하여 이질감 없이 자연스럽게 조화가 된 모습입니다.



파스텔 블루 컬러로 따뜻함이 느껴지는 회의실 모습입니다. 출입문 방향만 통창을 사용하여 다른 공간에 비해 프라이빗함이 느껴집니다. 또한, 벽면에는 화이트보드를 부착하여 공간 활용도까지 높였습니다.





다음은 편안한 분위기의 당산 생각공장 지식산업센터 사무실인테리어의 휴게실입니다.
휴게실은 파스텔 블루와 옐로우 컬러, 팬던트 조명으로 편안하고 따뜻한 분위기를 연출 했습니다.
목공 작업으로 벽면에 웨인스코팅과 선반을 설치하여 트렌디한 디자인을 담아내면서 센스도 잊지 않았습니다.



두개의 대표실 중 첫번째 대표실 모습입니다. 두 공간은 비슷한 컨셉으로 설정하였고 구조에 따라 약간의 차이가 있는데요.
첫번째 대표실은 입구 측면으로 수납장을 배치하였고 반대편에는 우드 시트작업으로 안정감 있는 공간으로 마무리 했습니다.



두번째 대표실 모습입니다. 수납장은 입구와 동일한 벽면으로 배치하였고 수납장과 ㄱ자형 형태로 우드 포인트를 주었습니다. 벽면 중앙의 우드 포인트로 입구부터 창문까지 이어진듯한 느낌을 줍니다. 대표실 두 공간모두 전면 통창으로 시공하여 탁 트인 시야와 풍부한 채광으로 따뜻한 공간이 되게끔 만드는 것에 중점을 두었습니다.

여기까지 당산 생각공장 지식산업센터 53평 사무실인테리어 시공 현장이었습니다.
이처럼 저희는 공간과 업종의 특성에 맞춰 디자인을 제안 드리고 있습니다. 916디자인 홈페이지와 블로그를 참고 하시면 다양한 시공 사례를 확인하실 수 있습니다. 사무실, 미용실, 헬스장, 팝업스토어 등 상업공간 인테리어 시공 문의는 언제든 편안하게 연락 주시길 바랍니다.
공사문의 010-3235-8427
포트폴리오 바로가기▶916er.com
2022.12.23 - [피티샵 헬스장인테리어] - 강서구 헬스장인테리어 모던하고 세련된 디자인 합리적인 비용 견적 빠른 안내
강서구 헬스장인테리어 모던하고 세련된 디자인 합리적인 비용 견적 빠른 안내
강서구 헬스장인테리어 모던하고 세련된 디자인 합리적인 비용 견적 빠른 안내 안녕하세요 헬스장인테리어 전문 업체 916디자인 입니다. 새해가 다가오면서 모두들 이루고 싶은 다짐 하나씩을
dopamine7.com
2022.12.20 - [학원인테리어] - 파주 운정 초등수학학원 소형 25평 인테리어 디자인 세련된 감각과 합리적인 견적 비용
파주 운정 초등수학학원 소형 25평 인테리어 디자인 세련된 감각과 합리적인 견적 비용
파주 운정 초등수학학원 소형 25평 인테리어 디자인 세련된 감각과 합리적인 견적 비용 안녕하세요 916디자인입니다. 한 해가 지나가는 시점이 되니 모든 학생들은 새학년을 맞이할 준비가 한창
dopamine7.com
2022.12.14 - [사무실인테리어] - 구리갈매 10평 소형사무실인테리어 금강펜테리움 지식산업센터 디자인 연출 비용 견적 한눈에
구리갈매 10평 소형사무실인테리어 금강펜테리움 지식산업센터 디자인 연출 비용 견적 한눈에
구리갈매 10평 소형사무실인테리어 금강펜테리움 지식산업센터 디자인 연출 비용 견적 한눈에 안녕하세요 사무실인테리어 전문 업체 916디자인입니다. 최근 활용도 높은 구조의 지식산업센터
dopamine7.com
2022.12.11 - [사무실인테리어] - 강남 논현동 사무실인테리어 30평 공간 나만의 아지트 디자인 연출
강남 논현동 사무실인테리어 30평 공간 나만의 아지트 디자인 연출
강남 논현동 사무실인테리어 30평 공간 나만의 아지트 디자인 연출 안녕하세요 916디자인입니다. 인테리어를 하다보면 비슷하거나 심플한 공간도 있고, 자신만의 특색을 담아낸 독특한 곳도 있
dopamine7.com
2022.12.07 - [사무실인테리어] - 영등포구 여의도 사무실인테리어 대하빌딩 100평 시공현장 대형평수 예쁜 디자인 비결
영등포구 여의도 사무실인테리어 대하빌딩 100평 시공현장 대형평수 예쁜 디자인 비결
영등포구 여의도 사무실인테리어 대하빌딩 100평 시공현장 대형평수 예쁜 디자인 비결 안녕하세요 사무실인테리어 전문 업체 916디자인입니다. 날씨가 추워지고 어느덧 연말이 다가왔습니다. 많
dopamine7.com
'사무실인테리어' 카테고리의 다른 글
| 광명 티타워 지식산업센터인테리어 대형평수도 문제없이 예쁜 디자인으로 시공한 현장 견적 (0) | 2023.01.16 |
|---|---|
| 강남 서초구 사무실인테리어 160평 대형평수 예쁜 디자인 공간별 매력을 살리는 맞춤 설계 (0) | 2023.01.13 |
| 부천사무실인테리어 75평 지식산업센터 고급스러운 디자인으로의 변화 (0) | 2023.01.06 |
| 마포구 서교동 건물인테리어 미디어회사 지하층 시공현장 업종별 맞춤 디자인 비용 (0) | 2023.01.01 |
| 구리갈매 10평 소형사무실인테리어 금강펜테리움 지식산업센터 디자인 연출 비용 견적 한눈에 (0) | 2022.12.14 |
| 강남 논현동 사무실인테리어 30평 공간 나만의 아지트 디자인 연출 (0) | 2022.12.11 |
| 영등포구 여의도 사무실인테리어 대하빌딩 100평 시공현장 대형평수 예쁜 디자인 비결 (0) | 2022.12.07 |
| 고양 덕양구 사무실인테리어 60평 인테리어 고급스러운 디자인 견적비용 (0) | 2022.12.04 |
- Total
- Today
- Yesterday
- 사무실인테리어추천
- 사무실인테리어
- 오피스인테리어
- 지식산업센터인테리어
- 헤어샵인테리어
- 헬스장인테리어
- 사무실인테리어공사
- 사무실인테리어후기
- 인테리어디자인
- interior
- 3D사무실인테리어
- 상가인테리어
- 사무실인테리어디자인
- 3D디자인
- 사무실인테리어견적
- 병원인테리어
- 학원인테리어
- 916디자인
- 학원인테리어디자인
- 사무실리모델링
- 인테리어
- 피티샵인테리어
- 사무실인테리어비용
- 사무실인테리어전문
- 사무실디자인
- 사무실인테리어업체
- 사무실인테리어잘하는곳
- 회사인테리어
- 인천사무실인테리어
- 미용실인테리어
| 일 | 월 | 화 | 수 | 목 | 금 | 토 |
|---|---|---|---|---|---|---|
| 1 | 2 | 3 | 4 | |||
| 5 | 6 | 7 | 8 | 9 | 10 | 11 |
| 12 | 13 | 14 | 15 | 16 | 17 | 18 |
| 19 | 20 | 21 | 22 | 23 | 24 | 25 |
| 26 | 27 | 28 | 29 | 30 |
