티스토리 뷰
목차
하남미사 강변 스카이폴리스 사무실인테리어, 입구부터 회의실 미팅실 대표실 등 3d 디자인설계
최근 각 지역의 산업단지를 중심으로 지식산업센터 건립이 활발하게 이뤄지면서 인테리어 문의도 많앚고 있습니다. 지식산업센터는 제조업과 지식산업, 정보통신 등 공장, 지원시설 등이 복합적으로 입주할 수 있는 3층 이상의 건축물로 단독으로 공장이나 사무실을 짓기 어려운 기업들에게 좋은 환경을 제공하고 있습니다.
특히, 제조형 층은 업무 특성을 고려해 층고를 6m 이하로 설계하고, 지하 1층과 지하 2층은 층고를 7m 이하로 높게 설계하며 제조형 일부 호실에는 해당 호실 앞까지 차량 진입이 가능한 '도어투도어' 시스템이 갖춰지는 등의 이러한 지신산업센터는 입주 기업을 위한 특화설계가 적용되기 때문에 이에 경험이 많은 전문업체에 인테리어를 의뢰하시는 것이 좋습니다.
하남미사 강변 스카이폴리스 사무실인테리어, 입구부터 회의실 미팅실 대표실 등 3d 디자인설계를 원하신다면 다양한 업종의 수많은 시공을 진행하면서 경험과 노하우를 갖춘 916디자인으로 문의해 주세요.
3D


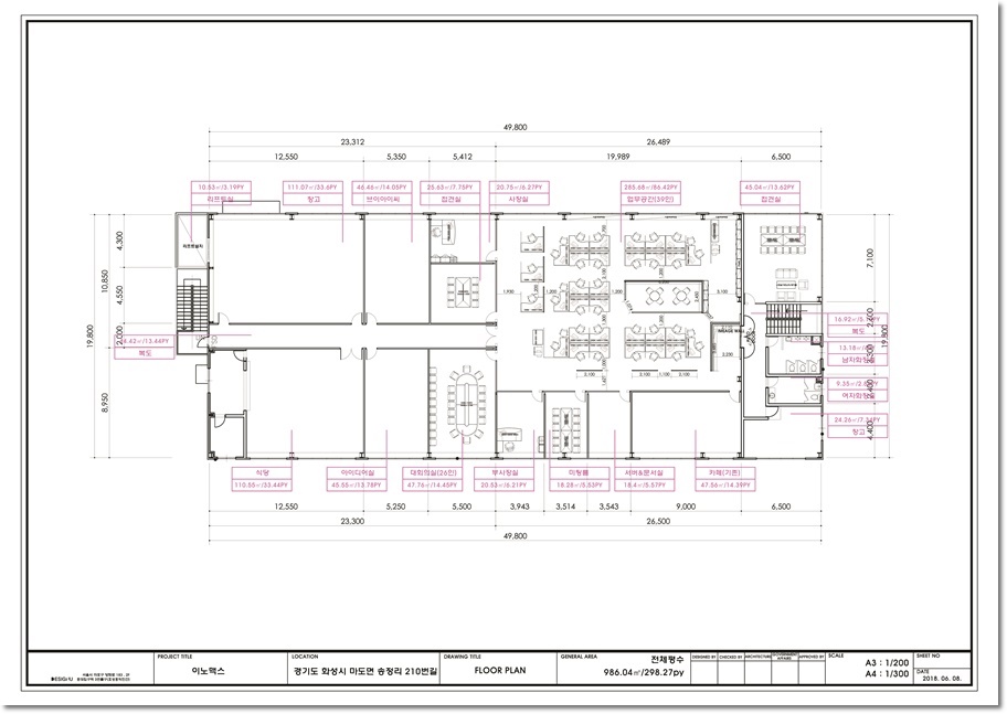
오늘 소개대드릴 사례는 지식산업센터에 입주하는 기업으로 공용 사무공간을 오픈형으로 계획해 조직 개편에 따라 유동적으로 재편할 수 있도록 했습니다. 공용 공간을 중심으로 양 옆으로 개별 공간을 배치해 기능별로 공간을 나누고 동선을 계획했는데요, 개별 공간은 회의실, 대표실, 임원실 등으로 활용할 수 있습니다.


회사 입구 파사드와 내부 파사드입니다. 화이트 컬러에 블랙 간살을 디자인해 포인트를 주었으며 간접조명을 계획해 모던하면서 따뜻한 느낌을 주었습니다. 유리도어를 통해 내부 파사드의 아쿠아블루 컬러의 아트월을 차경으로 활용하면 산뜻하면서 시원한 분위기를 연출할 수 있습니다. 내부 파사드는 복도라인으로 계획된 벽면으로 시원한 색감, 입체적 사인물, 은은한 간접조명 등을 적용해 인상적인 공간이 되도록 했습니다.


입구에서 내부 사무공간 및 개별 공간으로 이동하는 동선은 복도로 계획해 원하는 공간으로의 이동을 명확하게 유도했습니다. 복도라인은 답답하지 않도록 글래스 파티션이나 가벽을 적용했고 이는 오픈형으로 계획된 공용 공간과 상당히 잘 어울리는 인테리어 요소입니다.
아이디어와 창의성을 중요시하는 회사에 많이 적용되는 오픈형 사무실은 적당한 리프레시를 통해 아이디어를 얻고 직원간 소통을 통해 능률을 올릴 수 있으며 자유로운 업무 형태로 인한 집중도를 높일 수 있을뿐 아니라 회사에 대한 호감과 충성도를 높여주는 효과도 있다고 합니다.
그래서 최근에는 하남미사 강변 스카이폴리스 사무실인테리어, 입구부터 회의실 미팅실 대표실 등 3d 디자인설계에 오픈형 사무공간을 요청하는 고객분들도 많아졌습니다. 다만 깔끔한 무채색 계열의 인테리어는 세련되지만 밋밋할 수 있으므로 레드, 그린, 블루 등의 시그니처 컬러로 포인트를 주면 좋고 너무 많은 컬러를 사용하면 업무 환경에는 좋지 않으니 유의하는 것이 좋습니다.





회의실은 대회의실, 소회의실로 다양하게 계획했습니다. 기존의 딱딱하고 무거웠던 회의실이 아닌 아이디어가 샘솟고 자유로운 의사표현을 할 수 있는 부드러운 공간으로 조성했습니다. 사무공간과 회의실은 분리를 해 주는 것이 좋은데요, 가벽으로 분리할 때 유리가벽을 적용할 경우 프라이빗함을 위해 불투명 시트지를 시공하면 효과적이고 목재를 적용할 경우 흡음판을 사용하면 소음을 차단하며 사무공간의 직원들에게 피해를 주지 않을 수 있습니다.


사무공간 내에는 직원들이 잠시 쉴 수 있는 휴게공간을 계획했고 산뜻한 아쿠아블루로 포인트를 줬습니다. 접견실에 골드 컬러로 회사명을 적용하면 익스테리어에서 시작된 고급스러운 디자인이 연결되면서 통일성을 이루고 외부 방문객들에게 회사의 정체성을 각인시킬 수 있습니다.


여자 화장실과 남자 화장실은 분리해 사용성과 편의성을 높였습니다. 벽면은 깔끔한 타일을 적용하고 바닥은 세련된 패턴 타일을 적용했으며 여자 화장실은 골드로 남자 화장실은 블랙으로 포인트를 줘 각기 다른 분위기를 조성했습니다.
하남미사 강변 스카이폴리스 사무실인테리어를 계획 중이시라면 입구부터 회의실 미팅실 대표실 등 3d 디자인설계를 제공하는 916디자인으로 문의해 주세요. 고객님과 미팅 후 니즈를 파악해 디자인 설계에 반영한 1:1 맞춤 인테리어를 합리적인 견적으로 퀄리티 높게 시공해드리겠습니다.
#하남미사 강변 스카이폴리스 사무실인테리어 #사무실인테리어
공사문의 010-3235-8427
포트폴리오 바로가기▶916er.com
전화주시면 간단한 비용견적 상담부터 현장방문 미팅까지 진행하고 있습니다. 연락주세요.
2021.09.14 - [DOPAMINE] - 인천 서구 주안dh비즈타워 1차 아파트형공장 사무실인테리어 공사견적
인천 서구 주안dh비즈타워 1차 아파트형공장 사무실인테리어 공사견적
인천 서구 주안dh비즈타워 1차 아파트형공장 사무실인테리어 공사견적 3D 오늘은 인천 서구 주안dh비즈타워 1차 아파트형공장 사무실인테리어 공사견적을 알아보시는 분들을 위해 공간 구성
dopamine7.com
2021.09.13 - [사무실인테리어] - 인천 부평 제이타워3차 사무실인테리어 3d 디자인 카페테리아가 매력적인
인천 부평 제이타워3차 사무실인테리어 3d 디자인 카페테리아가 매력적인
인천 부평 제이타워3차 사무실인테리어 3d 디자인 카페테리아가 매력적인 오늘은 인천 부평 제이타워3차 사무실인테리어 3d 디자인을 소개해드리겠는데요, 카페테리아가 매력적인 디자인
dopamine7.com
2021.09.12 - [사무실인테리어] - 용인 기흥 프리미엄 원희캐슬 사무실인테리어 회사 입구부터 내부까지 공사비용
용인 기흥 프리미엄 원희캐슬 사무실인테리어 회사 입구부터 내부까지 공사비용
용인 기흥 프리미엄 원희캐슬 사무실인테리어 회사 입구부터 내부까지 공사비용 용인 기흥 프리미엄 원희캐슬 사무실인테리어 회사 입구부터 내부까지 공사비용을 알아보시는 분들이 많으
dopamine7.com
2021.09.11 - [사무실인테리어] - 안양 평촌 에이스하이테크시티 사무실인테리어 디자인, 비용 견적 고민이라면!
안양 평촌 에이스하이테크시티 사무실인테리어 디자인, 비용 견적 고민이라면!
안양 평촌 에이스하이테크시티 사무실인테리어 디자인, 비용 견적 고민이라면! 안양 평촌 에이스하이테크시티 사무실인테리어를 계획 중인데 디자인, 비용 견적 고민이라면! 저희와 함께
dopamine7.com
2021.09.10 - [사무실인테리어] - 가양역 태영 데시앙플렉스 지식산업센터 아파트형공장 사무실인테리어
가양역 태영 데시앙플렉스 지식산업센터 아파트형공장 사무실인테리어
가양역 태영 데시앙플렉스 지식산업센터 아파트형공장 사무실인테리어 공사진행 오늘은 가양역 태영 데시앙플렉스 지식산업센터 아파트형공장 사무실인테리어에 적용할 수 있는 독창적이
dopamine7.com
'사무실인테리어' 카테고리의 다른 글
| 화성동탄 센테라it타워 사무실인테리어, 회사 공사비용은? (0) | 2021.09.19 |
|---|---|
| 하남 미사 더 프론트 미사 사무실인테리어, 소규모 공사는 이렇게! (0) | 2021.09.18 |
| 광명 국제디자인클러스터 gidc 사무실인테리어공사 전문적인 곳에서 (0) | 2021.09.17 |
| 가산 금천구 한화비즈메트로2차 사무실인테리어 공사비용은 (0) | 2021.09.16 |
| 인천 부평 제이타워3차 사무실인테리어 3d 디자인 카페테리아가 매력적인 (0) | 2021.09.13 |
| 용인 기흥 프리미엄 원희캐슬 사무실인테리어 회사 입구부터 내부까지 공사비용 (0) | 2021.09.12 |
| 안양 평촌 에이스하이테크시티 사무실인테리어 디자인, 비용 견적 고민이라면! (0) | 2021.09.11 |
| 가양역 태영 데시앙플렉스 지식산업센터 아파트형공장 사무실인테리어 (0) | 2021.09.10 |
- Total
- Today
- Yesterday
- 헬스장인테리어
- 인테리어디자인
- 사무실인테리어견적
- 사무실인테리어비용
- 피티샵인테리어
- 병원인테리어
- 학원인테리어디자인
- 상가인테리어
- 미용실인테리어
- 사무실리모델링
- 사무실인테리어
- 사무실인테리어업체
- 사무실인테리어전문
- 3D사무실인테리어
- interior
- 916디자인
- 사무실인테리어후기
- 헤어샵인테리어
- 인천사무실인테리어
- 사무실인테리어디자인
- 지식산업센터인테리어
- 오피스인테리어
- 사무실인테리어잘하는곳
- 3D디자인
- 사무실인테리어추천
- 인테리어
- 학원인테리어
- 사무실인테리어공사
- 회사인테리어
- 사무실디자인
| 일 | 월 | 화 | 수 | 목 | 금 | 토 |
|---|---|---|---|---|---|---|
| 1 | 2 | 3 | ||||
| 4 | 5 | 6 | 7 | 8 | 9 | 10 |
| 11 | 12 | 13 | 14 | 15 | 16 | 17 |
| 18 | 19 | 20 | 21 | 22 | 23 | 24 |
| 25 | 26 | 27 | 28 | 29 | 30 | 31 |
