티스토리 뷰
목차
광명 영등포 시흥 작은 회사 사무실인테리어, 3d 디자인 컨셉 및 시공비
안녕하세요. 916디자인입니다. 오늘은 광명 영등포 시흥 작은 회사 사무실인테리어로 3d 디자인 컨셉을 소개해 드리도록 하겠습니다. 작은 소형 평수의 아담한 사무실 공간으로 심플 모던하게 디자인하였으며 전체적으로 그레이 톤으로 진행하여 모던함이 강조된 디자인 연출 확인해 보실 수 있습니다.
3D


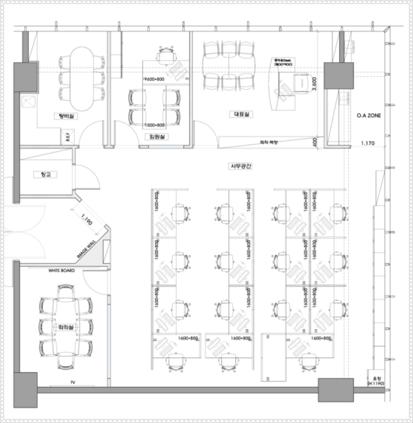
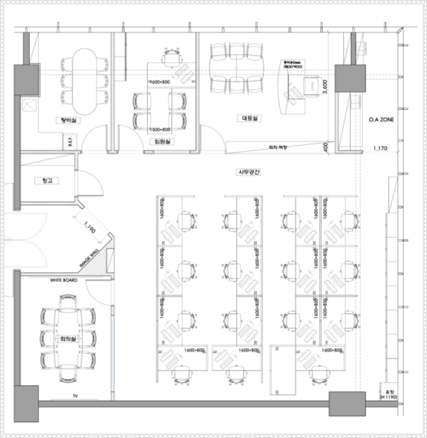
광명 영등포 시흥 작은 회사 사무실인테리어, 3d 디자인 컨셉 및 시공비 현장의 경우 가운데 공용 사무공간을 기준으로 각각의 공간이 나누어져 있는 형태로 동선이 편리하도록 전체적인 레이아웃에 신경 써서 디자인하였습니다. 개별 사무 공간의 경우 아래쪽에는 회의실이 마련되어 있으며 위쪽에는 탕비실, 임원실, 대표실로 구성되어 있습니다.

회사 사무실 입구 모습입니다. 그레이 컬러로 모던하게 디자인하였으며 밋밋하지 않도록 무늬를 넣어 설계하였습니다. 거기에 붉은 컬러의 프레임을 가운데 더하여주고 회사 로고와 네이밍을 넣어 포인트를 주었습니다. 전체적으로 심플 모던한 회사 외부 모습을 보여주면서 고급스럽고 멋진 느낌을 보여주고 있습니다.

광명 영등포 시흥 작은 회사 사무실인테리어 출입구 문을 열고 들어오면 만나 볼 수 있는 공간입니다. 바로 공용 사무실이 보이지 않아 더욱더 깔끔한 분위기를 보여주고 있습니다. 사무실 안쪽으로 들어가는 문틀은 나무질감이 느껴지는 우드 컬러로 프레임을 디자인하였으며 벽면에도 같은 컬러로 작은 띠를 둘러 설계해 드려 통일감을 표현하였습니다. 거기에 하부에는 짙은 컬러를 더하여 무게감을 주어 멋진 공간으로 완성되었습니다.

광명 영등포 시흥 작은 회사 사무실인테리어, 3d 디자인 컨셉 및 시공비 현장에서 가장 메인이 될 수 있는 공간인 공용 사무실입니다. 벽면 부분은 깔끔한 화이트도 디자인 연출하였으며 곳곳에 우드 컬러를 더하여 포인트를 주었습니다. 바닥은 모던한 분위기를 위해 그레이 컬러로 진행하였으며 군더더기 없이 깔끔한 분위기를 보여주기 위해 천장에는 심플한 디자인의 조명으로만 설계하였습니다.

벽면 부분에 감각적인 디자인을 넣어 심플한 공간에 포인트를 주었으며 실용적으로 공간을 활용하실 수 있도록 벽면 부분에 오픈형 수납장을 넣어 드렸습니다. 작은 소형 평수의 회사 사무실이지만 밝은 컬러를 기본 베이스로 하여 전체적으로 넓어 보이는 모습을 확인해 보실 수 있습니다.

탕비실 겸 휴게실로 사용할 공간입니다. 광명 영등포 시흥 작은 회사 사무실인테리어, 3d 디자인 컨셉 및 시공비 현장의 경우 화이트를 기본 베이스로 하고 그레이와 우드 컬러를 포인트 컬러로 잡아 디자인하였습니다. 그로 인해 모던 심플하면서 고급스러운 멋진 분위기를 만나 보실 수 있습니다. 탕비실의 경우도 세 가지 컬러 배합을 적절하게 하여 인테리어 완성도를 높여 드렸습니다. 거기에 실용적으로 사용하실 수 있도록 싱크대에 수납공간을 넉넉하게 설계하여 드렸습니다.

회의실로 사용될 공간으로 모던한 그레이 컬러로 전체를 디자인하였습니다. 그로 인해 고급스러워 보이면 세련된 느낌을 만나 보실 수 있습니다. 특별한 디자인 없이 깔끔하게 설계를 하였으며 한쪽 벽면은 개방감이 느껴지도록 유리 파티션으로 디자인하여 드렸습니다. 전반적으로 심플한 분위기에 멋진 느낌을 보여주는 회의실입니다.

임원실로 사용될 사무실 인테리어 입니다. 한쪽 벽면 가득 화이트 벽면에 짙은 그레이 컬러 프레임을 가운데 넣어 디자인 연출하였습니다. 심플한 공간이지만 깔끔한 포인트를 보여주고 있는 공간입니다. 임원실로 사용될 공간이기 때문에 최대한 고급스럽게 디자인해드렸습니다.

마지막으로 보실 광명 영등포 시흥 작은 회사 사무실인테리어, 3d 디자인 컨셉 및 시공비 현장입니다. 대표실로 사용될 곳으로 앞서 보신 임원실 보다 넓은 규모를 확인해 보실 수 있습니다. 그레이와 우드 컬러를 조화롭게 넣어 디자인하였으며 그로 인해 고급스러우면서 아늑한 분위기를 선사해 주고 있습니다. 한쪽 벽면에는 붙박이 책장을 설계하여 실용성을 높여 드렸으며 벽면에 무지 선반을 디자인하여 다양하게 연출하실 수 있도록 연출하였습니다.
지금까지 광명 영등포 시흥 작은 회사 사무실인테리어, 3d 디자인 컨셉 및 시공비 현장을 모두 보여드렸습니다. 916디자인은 인테리어 전문 업체 중에서 가장 합리적인 비용과 견적을 보여드리고 있으며 특별하고 차별화된 디자인과 시공 능력으로 완성도 높은 인테리어로 보여드리고 있습니다. 이런 부분으로 많은 고객님들이 인정해 주시고 꾸준하게 찾아 주시고 있습니다. 인테리어를 계획 중이거나 고민이시라면 인테리어 전문 업체 916디자인에서 상담받아 보시기 바랍니다.
#광명 영등포 시흥 작은 회사 사무실인테리어 #사무실인테리어
공사문의 010-3235-8427
포트폴리오 바로가기▶916er.com
전화주시면 간단한 비용견적 상담부터 현장방문 미팅까지 진행하고 있습니다. 연락주세요.
2021.05.06 - [사무실인테리어] - 인천 김포 마곡 60평 70평 사무실인테리어, 회의실 탕비실 사무공간 디자인
인천 김포 마곡 60평 70평 사무실인테리어, 회의실 탕비실 사무공간 디자인
인천 김포 마곡 60평 70평 사무실인테리어, 회의실 탕비실 사무공간 디자인 안녕하세요 916디자인입니다. 오늘 소개해드릴 인테리어 디자인은 인천 김포 마곡 60평 70평의 사무실인테리어 입니다.
dopamine7.com
2021.05.05 - [사무실인테리어] - 서초 역삼 청담 오피스인테리어 30평 40평 50평 디자인레이아웃 3d 설계
서초 역삼 청담 오피스인테리어 30평 40평 50평 디자인레이아웃 3d 설계
서초 역삼 청담 오피스인테리어 30평 40평 50평 디자인레이아웃 3d 설계 안녕하세요 916디자인입니다. 오늘 소개해드릴 인테리어 디자인은 저희 916 디자인이 서초 역삼 청담에서 시공작업을 진행
dopamine7.com
2021.05.04 - [사무실인테리어] - 내츄럴 심플한 법무법인 사무실인테리어, 일산 고양 부천 지역 공사비 무료견적
내츄럴 심플한 법무법인 사무실인테리어, 일산 고양 부천 지역 공사비 무료견적
내츄럴 심플한 법무법인 사무실인테리어, 일산 고양 부천 지역 공사비 무료견적 안녕하세요 916디자인입니다. 오늘 소개해드릴 곳은 내츄럴 심플한 법무법인 사무실인테리어입니다. 저희 916 디
dopamine7.com
2021.04.14 - [사무실인테리어] - 회사인테리어 지식산업센터 대표실,회의실,탕비실 등 사무공간 디자인 설계
회사인테리어 지식산업센터 대표실,회의실,탕비실 등 사무공간 디자인 설계
회사인테리어 지식산업센터 대표실,회의실,탕비실 등 사무공간 디자인 설계 안녕하세요 916디자인입니다. 오늘 소개해드리는 것은 회사인테리어 입니다. 저희 916 디자인은 클라이언트와의 포트
dopamine7.com
2021.04.12 - [사무실인테리어] - 화성 동탄 복층사무실 인테리어 공사, 효율적인 업무공간감과 멋진 디자인 설계
화성 동탄 복층사무실 인테리어 공사, 효율적인 업무공간감과 멋진 디자인 설계
화성 동탄 복층사무실 인테리어 공사, 효율적인 업무공간감과 멋진 디자인 설계 안녕하세요. 916디자인입니다. 오늘은 화성 동탄 복층사무실 인테리어 공사 현장으로 효율적인 업무공간감과 멋
dopamine7.com
'사무실인테리어' 카테고리의 다른 글
| 동탄 광교 성수동 소규모 사무실인테리어 독특한 공간분리 레이아웃 (0) | 2021.05.12 |
|---|---|
| 송도 배곧 잠실 사무실인테리어, 작은평수 12평 14평 작업실 리모델 (0) | 2021.05.11 |
| 하남 미사 분당 사무실공사 비용, 10평 12평 14평 소형 공사비 싸게하기 (0) | 2021.05.09 |
| 신사동 청담동 교대 모던 스타일 사무실인테리어 3d 설계 도면 및 평당비용 (0) | 2021.05.08 |
| 인천 김포 마곡 60평 70평 사무실인테리어, 회의실 탕비실 사무공간 디자인 (0) | 2021.05.06 |
| 서초 역삼 청담 오피스인테리어 30평 40평 50평 디자인레이아웃 3d 설계 (0) | 2021.05.05 |
| 내츄럴 심플한 법무법인 사무실인테리어, 일산 고양 부천 지역 공사비 무료견적 (0) | 2021.05.04 |
| 회사인테리어 지식산업센터 대표실,회의실,탕비실 등 사무공간 디자인 설계 (0) | 2021.04.14 |
- Total
- Today
- Yesterday
- 회사인테리어
- 사무실인테리어잘하는곳
- 사무실인테리어업체
- 3D디자인
- interior
- 인테리어디자인
- 사무실인테리어공사
- 상가인테리어
- 지식산업센터인테리어
- 사무실인테리어비용
- 병원인테리어
- 인테리어
- 헤어샵인테리어
- 3D사무실인테리어
- 사무실인테리어전문
- 사무실인테리어후기
- 사무실인테리어추천
- 미용실인테리어
- 사무실디자인
- 사무실인테리어디자인
- 사무실인테리어견적
- 사무실리모델링
- 학원인테리어디자인
- 916디자인
- 헬스장인테리어
- 학원인테리어
- 피티샵인테리어
- 인천사무실인테리어
- 사무실인테리어
- 오피스인테리어
| 일 | 월 | 화 | 수 | 목 | 금 | 토 |
|---|---|---|---|---|---|---|
| 1 | ||||||
| 2 | 3 | 4 | 5 | 6 | 7 | 8 |
| 9 | 10 | 11 | 12 | 13 | 14 | 15 |
| 16 | 17 | 18 | 19 | 20 | 21 | 22 |
| 23 | 24 | 25 | 26 | 27 | 28 | 29 |
| 30 |
