티스토리 뷰
목차
서초 역삼 청담 오피스인테리어 30평 40평 50평 디자인레이아웃 3d 설계
안녕하세요 916디자인입니다. 오늘 소개해드릴 인테리어 디자인은 저희 916 디자인이 서초 역삼 청담에서 시공작업을 진행한 오피스인테리어입니다. 30평 40평 50평에 이르는 사무실인테리어를 디자인레이아웃을 통해서 진행을 해드렸으며 시공작업에 앞서서 3D 설계를 미리 해서 두가지의 도안을 준비해드렸습니다.
3D

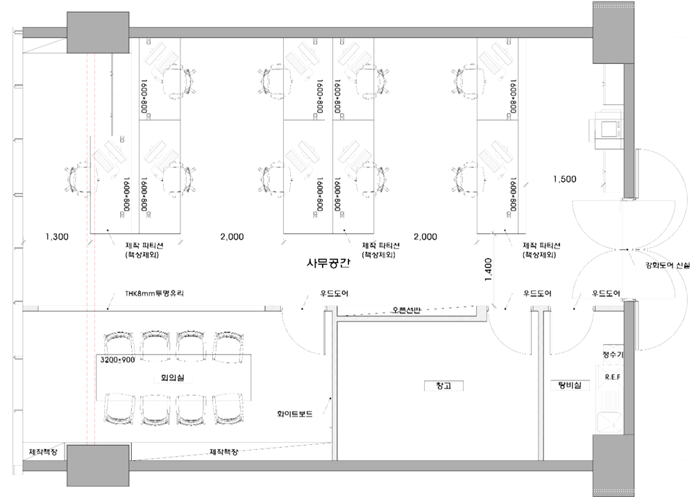
먼저 소개해드릴 도안은 서초 역삼 청담 오피스인테리어입니다. 전체적인 공간을 사무공간과 이외의 공간으로 나누어 보았으며 출입문을 우측에 위치하는 식으로 디자인을 시도하였습니다.

서초 역삼 청담 오피스인테리어의 ISO의 모습입니다. 출입문을 우측에 둔것을 기준으로 사무공간을 윗부분에 두었으며 나머지 공간은 가벽과 유리가벽을 이용해서 효과적인 공간 분리성을 시도하였습니다.

오피스인테리어의 출입문의 모습입니다. 전체적으로 블랙톤을 이용하였으며 기업의 로고를 한쪽에 크게 만들어서 배치하였습니다.


사무공간 같은 경우에는 밝은 색의 톤을 이용한 바닥과 외벽을 디자인 한 후에 가구인테리어는 검정색과 우드톤의 색감을 이용해서 진행하여보았습니다.

사무공간의 옆부분 같은 경우에는 위에서 설명한대로 가벽을 이용하였는데 유리외벽을 이용해서 한층 더 개방성을 강조하기도 하였습니다. 좌측에 있는 가벽같은 경우에는 대표실만의 프라이빗을 살리기 위해서 블랙톤을 이용한 가벽으로 구성하였습니다.

유리외벽을 이용한 회의실 같은 경우에는 직원들의 집중도가 높아질 수 있도록 무거운 색을 이용한 반면에 가구인테리어는 유리테이블을 사용해서 이를 중화시키는 효과를 가져와봤습니다.

대표실은 이와 다르게 우드톤과 화이트톤을 이용해서 대표실만의 진중한 느낌과 깔끔한 느낌을 살려보았습니다. 지금까지 서초 역삼 청담 오피스인테리어 사레였습니다.

다음으로 소개해드릴 도안은 회사인테리어입니다. 같은 공간이지만 아까를 기준으로 하여서 출입문을 좌측에 둔것으로 이를 인테리어 배치했습니다.

위에서 설명해드린 도안과는 다르게 출입문이 좌측에 둔것을 기준으로 사무공간이 아래쪽에 위치하고 있습니다. 이는 같은 공간이라고 할지라도 다른 구성배치를 설명하는 ISO의 모습이기도 합니다.

출입문의 모습입니다. 아까와는 다르게 동일한 블랙톤을 이용함과 동시에 우드톤의 인테리어 구성을 사선으로 넣어서 회사의 분위기를 살리는데 중요한 역할을 맡겼습니다. 출입문 같은 경우에도 기업내부의 개방성을 위해서 유리출입문을 사용하였지만 얼핏 보이는 가벽을 통해서 기업내부의 프라이빗을 살림과 동시에 개방성을 표현하여 보았습니다.

출입문을 열고 들어가면 오피스인테리어와는 다르게 가벽을 배치하였습니다. 회사를 방문하는 고객들이 기업의 색을 확실하게 느낄 수 있도록 기업의 로고를 박은 가벽을 배치한 것입니다.

내부 사무공간같은 경우에는 전체적으로 화이트톤의 색감을 이용해서 평범한 회사의 사무실처럼 디자인 배치를 시도하였고 회의실과 대표실 탕비실을 따로 나눔으로서 추가적인 공간배치를 할 수 있었습니다.

위에서 설명드린 오피스인테리어와는 달리 다른 공간의 분리배치를 유리외벽이 아닌 우드톤과 블랙톤을 이용한 가벽을 통해서 분리를 하였습니다.

또한 남는 공간에는 이처럼 휴게공간도 만들어서 업무 중에 여유를 즐길 수 있게도 만들어보았습니다. 다른 공간과는 다르게 그레이톤을 이용해서 외부공간과 같은 느낌을 주는 것이 이곳의 특징이라고 할 수 있습니다. 내부에 있는 외부 전경이 보이는 공간의 경우에는 앞에 긴 테이블과 의자를 배치함으로서 업무에 지친 직원들이 휴식을 더욱 편하게 즐길 수 있도록 하였습니다.

회의실의 모습입니다. 블랙톤의 분위기를 이용함과 동시에 화이트톤과의 적절한 구성 배치를 통해서 색감의 배치를 이용한 분위기 조성을 해보았습니다.

대표실의 모습입니다. 진중한 분위기를 살리기 위해서 우드톤과 블랙톤을 사용하였습니다. 저희 916 디자인은 이처럼 같은 공간이라도 다른 느낌의 인테리어 사례를 만들어드릴 수 있습니다. 이와 같은 인테리어 구성처럼 저희는 전문적인 기술력을 가지고 시공작업을 진행해드리고 있습니다. 언제든지 문의해주시기를 바랍니다.
#서초 역삼 청담 오피스인테리어 #오피스인테리어디자인레이아웃
공사문의 010-3235-8427
포트폴리오 바로가기▶916er.com
전화주시면 간단한 비용견적 상담부터 현장방문 미팅까지 진행하고 있습니다. 연락주세요.
2021.04.14 - [사무실인테리어] - 회사인테리어 지식산업센터 대표실,회의실,탕비실 등 사무공간 디자인 설계
회사인테리어 지식산업센터 대표실,회의실,탕비실 등 사무공간 디자인 설계
회사인테리어 지식산업센터 대표실,회의실,탕비실 등 사무공간 디자인 설계 안녕하세요 916디자인입니다. 오늘 소개해드리는 것은 회사인테리어 입니다. 저희 916 디자인은 클라이언트와의 포트
dopamine7.com
2021.04.13 - [사무실인테리어] - 사무실인테리어 공사 견적, 20평 30평 인천 김포 디자인 설계 비용 알아보기
사무실인테리어 공사 견적, 20평 30평 인천 김포 디자인 설계 비용 알아보기
사무실인테리어 공사 견적, 20평 30평 인천 김포 디자인 설계 비용 알아보기 안녕하세요 916디자인입니다. 오늘 소개해드릴 것은 사무실인테리어 공사 견적 입니다. 저희 916 디자인은 인천 김포에
dopamine7.com
2021.04.12 - [사무실인테리어] - 화성 동탄 복층사무실 인테리어 공사, 효율적인 업무공간감과 멋진 디자인 설계
화성 동탄 복층사무실 인테리어 공사, 효율적인 업무공간감과 멋진 디자인 설계
화성 동탄 복층사무실 인테리어 공사, 효율적인 업무공간감과 멋진 디자인 설계 안녕하세요. 916디자인입니다. 오늘은 화성 동탄 복층사무실 인테리어 공사 현장으로 효율적인 업무공간감과 멋
dopamine7.com
2021.04.08 - [사무실인테리어] - 수원 영통 지식산업센터, 입구부터 멋진 10평 20평 소형사무실인테리어 컨셉
수원 영통 지식산업센터, 입구부터 멋진 10평 20평 소형사무실인테리어 컨셉
수원 영통 지식산업센터, 입구부터 멋진 10평 20평 소형사무실인테리어 컨셉 안녕하세요. 916디자인입니다. 오늘 소개해 드릴 인테리어 디자인은 수원 영통 지식산업센터로 입구부터 멋진 10평 20
dopamine7.com
2021.04.07 - [사무실인테리어] - 광교 오산 회사인테리어비용 견적, 소형 대형 사무공간과 디자인 컨셉에 따라 다르다!
광교 오산 회사인테리어비용 견적, 소형 대형 사무공간과 디자인 컨셉에 따라 다르다!
광교 오산 회사인테리어비용 견적, 소형 대형 사무공간과 디자인 컨셉에 따라 다르다! 안녕하세요. 916디자인입니다. 오늘은 광교 오산 회사 인테리어비용 견적을 합리적이게 보여드려 고객님께
dopamine7.com
'사무실인테리어' 카테고리의 다른 글
| 하남 미사 분당 사무실공사 비용, 10평 12평 14평 소형 공사비 싸게하기 (0) | 2021.05.09 |
|---|---|
| 신사동 청담동 교대 모던 스타일 사무실인테리어 3d 설계 도면 및 평당비용 (0) | 2021.05.08 |
| 광명 영등포 시흥 작은 회사 사무실인테리어, 3d 디자인 컨셉 및 시공비 (0) | 2021.05.07 |
| 인천 김포 마곡 60평 70평 사무실인테리어, 회의실 탕비실 사무공간 디자인 (0) | 2021.05.06 |
| 내츄럴 심플한 법무법인 사무실인테리어, 일산 고양 부천 지역 공사비 무료견적 (0) | 2021.05.04 |
| 회사인테리어 지식산업센터 대표실,회의실,탕비실 등 사무공간 디자인 설계 (0) | 2021.04.14 |
| 사무실인테리어 공사 견적, 20평 30평 인천 김포 디자인 설계 비용 알아보기 (0) | 2021.04.13 |
| 화성 동탄 복층사무실 인테리어 공사, 효율적인 업무공간감과 멋진 디자인 설계 (0) | 2021.04.12 |
- Total
- Today
- Yesterday
- 사무실인테리어
- 사무실인테리어공사
- 사무실인테리어추천
- 피티샵인테리어
- 916디자인
- 사무실디자인
- 학원인테리어
- 사무실인테리어후기
- 사무실인테리어업체
- 사무실인테리어견적
- 사무실인테리어전문
- 오피스인테리어
- 사무실인테리어디자인
- interior
- 3D사무실인테리어
- 미용실인테리어
- 인테리어
- 사무실리모델링
- 헤어샵인테리어
- 인테리어디자인
- 3D디자인
- 상가인테리어
- 인천사무실인테리어
- 회사인테리어
- 학원인테리어디자인
- 병원인테리어
- 지식산업센터인테리어
- 사무실인테리어잘하는곳
- 사무실인테리어비용
- 헬스장인테리어
| 일 | 월 | 화 | 수 | 목 | 금 | 토 |
|---|---|---|---|---|---|---|
| 1 | 2 | 3 | ||||
| 4 | 5 | 6 | 7 | 8 | 9 | 10 |
| 11 | 12 | 13 | 14 | 15 | 16 | 17 |
| 18 | 19 | 20 | 21 | 22 | 23 | 24 |
| 25 | 26 | 27 | 28 | 29 | 30 | 31 |
