티스토리 뷰
목차
수원 영통 지식산업센터, 입구부터 멋진 10평 20평 소형사무실인테리어 컨셉
안녕하세요. 916디자인입니다. 오늘 소개해 드릴 인테리어 디자인은 수원 영통 지식산업센터로 입구부터 멋진 10평 20평 소형사무실인테리어 컨셉을 소개해 드리도록 하겠습니다. 작은 공간이지만 실용적이게 사용하실 수 있도록 설계해 드렸으며 최대한 깔끔하게 완성하여 공간이 넓어 보이는 효과까지 보여드렸습니다. 사무실 인테리어를 전문적으로 하는 업체인 916디자인에서 소개해 드리는 소형 평수의 사무실 인테리어 디자인 설계를 지금부터 만나 보시겠습니다.
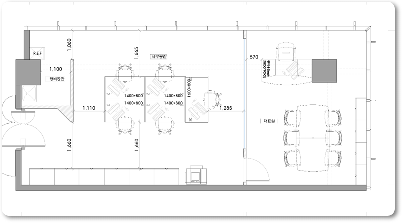
3D도안


10평 20평 소형사무실인테리어 컨셉을 한눈에 볼 수 있는 전체 도면입니다. 수원 영통 지식산업센터의 경우 입구에서 들어오면 공용 사무공간이 보이고 안쪽에는 개별 사무공간으로 배치되어 있습니다. 작은 공간이니 만큼 동선을 고려한 설계를 하였으며 전체적인 레이아웃에 신경 써서 디자인해드렸습니다. 그로 인해 소형 평수이지만 넓어 보이는 효과와 함께 개방감까지 느껴지는 모습 확인해 보실 수 있습니다.

수원 영통 지식산업센터 입구의 모습입니다. 입구부터 멋진 10평 20평 소형사무실인테리어 컨셉을 만나 보실 수 있습니다. 모던 심플한 분위기를 연출하기 위해 네이비 컬러를 포인트 컬러로 잡았으며 옆쪽에 우드 프레임에 디자인을 넣어 내추럴 분위기까지 보여주고 있습니다. 입구 문은 유리 문으로 진행하여 개방감을 표현하였으며 사무실 내부 프라이버시를 위해 불투명 필름을 더하여 실용적인 측면을 높여 드렸습니다.

사무실 입구로 들어서면 보이는 모습으로 바로 공용 사무공간이 보입니다. 입구에는 회사 로고와 함께 포인트 컬러인 네이비를 한쪽 벽면에 넣어 포인트를 주었습니다. 수원 영통 지식산업센터 현장의 경우 입구부터 멋진 10평 20평 소형사무실인테리어 컨셉에 맞추어 입구 부분에 컬러와 디자인 및 설계를 신경 써 드렸습니다. 작은 평수이지만 깔끔하고 화사한 화이트 컬러로 진행하여 그런지 공간이 넓어 보입니다.

사무실 안쪽으로 들어오면 보이는 공용 사무 공간입니다. 한쪽 벽면에는 붙박이장을 설치하여 실용적인 측면을 높였으며 테이블 의자 소품 모두 화이트 컬러로 진행하여 공간이 더욱더 넓어 보이는 모습입니다. 작은 소형 평수의 경우 최대한 깔끔하고 화사하게 디자인하는 것이 좋습니다. 그래야 공간이 넓어 보이는 느낌을 받아 보실 수 있습니다.

수원 영통 지식산업센터는 화이트 컬러로 잡아 진행하였기 때문에 전체적으로 화사하고 환한 분위기를 보여주고 있습니다. 그로 인해 조명의 경우 기본 조명만 설치해도 공간이 밝아 보이는 모습 확인해 보실 수 있습니다. 또한 한쪽 면이 전체 유리창으로 되어 있어 조도가 밝은 편으로 조명은 기본적인 사무실 조명만 설치하여 드렸습니다.
대신 입구부터 멋진 10평 20평 소형사무실인테리어 컨셉에 맞게 입구 부분에만 컬러감을 주어 신경 써서 디자인해드렸습니다. 그로 인해 밋밋하지 않고 포인트가 되어 사무실 공간을 밝혀 주고 있습니다.

사무실 안쪽에 위치하고 있는 개별 사무 공간입니다. 업무 책상 옆쪽에 있는 기둥에는 회사 로고 및 네이밍을 넣어 포인트를 주었으며 한쪽 벽면에는 오픈형 수납장을 길게 배치하여 실용적인 측면을 높여 드렸습니다. 거기에 간단한 회의 및 미팅을 할 수 있도록 긴 테이블을 배치하여 드렸습니다.
깔끔한 화이트 컬러로 진행하여 너무 심플한 분위기를 보여주는 사무 공간에 가구들 컬러를 채도가 낮은 제품으로 넣어 공간의 무게감과 매력을 더해주고 있습니다. 지금까지 작은 소형 사무실인 수원 지식산업센터 인테리어를 소개해 드렸습니다.
작은 공간이지만 실용적이면서 멋지게 완성된 모습 확인해 보실 수 있습니다. 916디자인에서는 오늘 소개해 드린 작은 10평 20평 사무실은 물론 50평~70평 대형 사무실 공간까지 고객님의 니즈를 반영하여 맞춤형 공간으로 만들어 드리고 있습니다. 다년간의 노하우와 풍부한 경험은 물론 차별화된 디자인과 설계 능력을 보유하고 있는 인테리어 전문 업체로 특별한 나만의 공간으로 만나 보실 수 있습니다.
거기에 합리적인 비용과 견적까지 보여드리고 있어 더욱더 만족도 높은 결과를 만나 보실 수 있습니다. 사무실 인테리어를 계획하고 계신다면 916디자인을 찾아 주시기 바랍니다. 언제든 상담 환영하고 있으며 친절하게 도움드리도록 하겠습니다.
#소형사무실인테리어 #사무실인테리어컨셉
공사문의 010-3235-8427
포트폴리오 바로가기▶916er.com
전화주시면 간단한 비용견적 상담부터 현장방문 미팅까지 진행하고 있습니다. 연락주세요.
2021.04.07 - [사무실인테리어] - 광교 오산 회사인테리어비용 견적, 소형 대형 사무공간과 디자인 컨셉에 따라 다르다!
광교 오산 회사인테리어비용 견적, 소형 대형 사무공간과 디자인 컨셉에 따라 다르다!
광교 오산 회사인테리어비용 견적, 소형 대형 사무공간과 디자인 컨셉에 따라 다르다! 안녕하세요. 916디자인입니다. 오늘은 광교 오산 회사 인테리어비용 견적을 합리적이게 보여드려 고객님께
dopamine7.com
2021.04.04 - [사무실인테리어] - 고양 일산 파주 소형 10평 사무실인테리어, 중개법인 부동산 업체
고양 일산 파주 소형 10평 사무실인테리어, 중개법인 부동산 업체
고양 일산 파주 소형 10평 사무실인테리어, 중개법인 부동산 업체 안녕하세요 916디자인입니다. 오늘은 소형 10평 사무실인테리어를 소개해드리겠습니다. 이번 인테리어 작업은 고양, 일산, 파주
dopamine7.com
2021.04.03 - [사무실인테리어] - 인천 부천 시흥 대형 60평 사무실인테리어, 모던 업무공간을 위해!
인천 부천 시흥 대형 60평 사무실인테리어, 모던 업무공간을 위해!
인천 부천 시흥 대형 60평 사무실인테리어, 모던 업무공간을 위해! 안녕하세요 916디자인입니다. 이번 시공은 저희 916디자인에서 대형 60평 사무실인테리어를 진행해보았습니다. 인천, 부천, 시흥
dopamine7.com
2021.04.02 - [사무실인테리어] - 안산 안양 의왕 20평 30평 사무실공사 입구인테리어부터 멋진!
안산 안양 의왕 20평 30평 사무실공사 입구인테리어부터 멋진!
안산 안양 의왕 20평 30평 사무실공사 입구인테리어부터 멋진! 안녕하세요 916디자인입니다. 이번 인테리어는 사무실과 관련된 인테리어를 구성해보았습니다. 저희 916디자인에서는 안산 안양 의
dopamine7.com
2021.03.31 - [사무실인테리어] - 마곡 김포 광명 40평 회사인테리어, 모던컨셉 복층사무실 견적
마곡 김포 광명 40평 회사인테리어, 모던컨셉 복층사무실 견적
마곡 김포 광명 40평 회사인테리어, 모던컨셉 복층사무실 견적 안녕하세요. 916디자인입니다. 오늘은 마곡, 김포, 광명에서 시공작업을 해보았습니다. 오늘 소개시켜드릴 사무실 인테리어는
dopamine7.com
'사무실인테리어' 카테고리의 다른 글
| 내츄럴 심플한 법무법인 사무실인테리어, 일산 고양 부천 지역 공사비 무료견적 (0) | 2021.05.04 |
|---|---|
| 회사인테리어 지식산업센터 대표실,회의실,탕비실 등 사무공간 디자인 설계 (0) | 2021.04.14 |
| 사무실인테리어 공사 견적, 20평 30평 인천 김포 디자인 설계 비용 알아보기 (0) | 2021.04.13 |
| 화성 동탄 복층사무실 인테리어 공사, 효율적인 업무공간감과 멋진 디자인 설계 (0) | 2021.04.12 |
| 광교 오산 회사인테리어비용 견적, 소형 대형 사무공간과 디자인 컨셉에 따라 다르다! (0) | 2021.04.07 |
| 고양 일산 파주 소형 10평 사무실인테리어, 중개법인 부동산 업체 (0) | 2021.04.04 |
| 인천 부천 시흥 대형 60평 사무실인테리어, 모던 업무공간을 위해! (0) | 2021.04.03 |
| 안산 안양 의왕 20평 30평 사무실공사 입구인테리어부터 멋진! (0) | 2021.04.02 |
- Total
- Today
- Yesterday
- 인천사무실인테리어
- 사무실디자인
- 미용실인테리어
- 피티샵인테리어
- 학원인테리어
- 오피스인테리어
- 헤어샵인테리어
- 사무실인테리어디자인
- 회사인테리어
- 사무실인테리어잘하는곳
- 916디자인
- 인테리어디자인
- 사무실인테리어전문
- interior
- 병원인테리어
- 사무실인테리어추천
- 사무실인테리어견적
- 사무실인테리어비용
- 사무실인테리어업체
- 상가인테리어
- 지식산업센터인테리어
- 3D사무실인테리어
- 사무실인테리어후기
- 학원인테리어디자인
- 사무실리모델링
- 3D디자인
- 헬스장인테리어
- 인테리어
- 사무실인테리어공사
- 사무실인테리어
| 일 | 월 | 화 | 수 | 목 | 금 | 토 |
|---|---|---|---|---|---|---|
| 1 | ||||||
| 2 | 3 | 4 | 5 | 6 | 7 | 8 |
| 9 | 10 | 11 | 12 | 13 | 14 | 15 |
| 16 | 17 | 18 | 19 | 20 | 21 | 22 |
| 23 | 24 | 25 | 26 | 27 | 28 | 29 |
| 30 |
