티스토리 뷰
목차
사무실인테리어 공사 견적, 20평 30평 인천 김포 디자인 설계 비용 알아보기
안녕하세요 916디자인입니다. 오늘 소개해드릴 것은 사무실인테리어 공사 견적 입니다. 저희 916 디자인은 인천 김포에서 시공을 진행하고 있으며 20평 30평 디자인 설계 비용까지 알려드리고 있습니다. 클라이언트와의 협의점을 찾아서 다양한 포트폴리오를 통해 진행해드리고 있습니다. 3D 도안부터 ISO 를 통해서 시공 견적을 봐드리고 있으며 전문성이 있는 인테리어를 해드리고 있습니다.
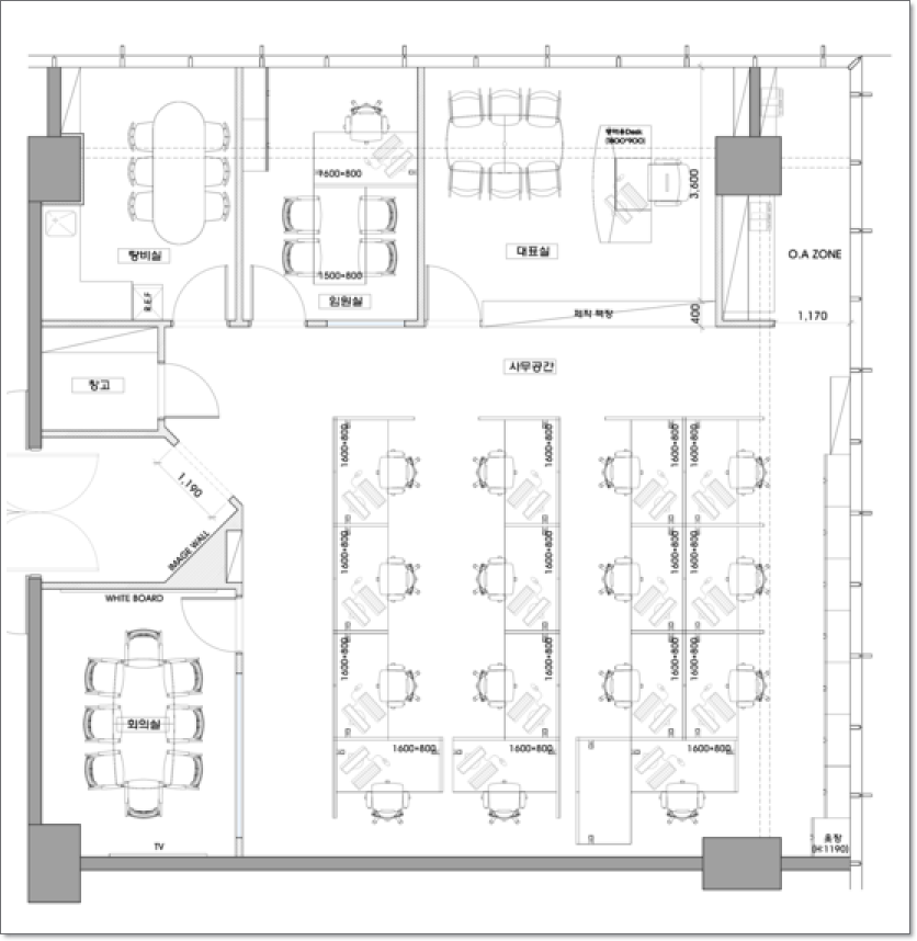
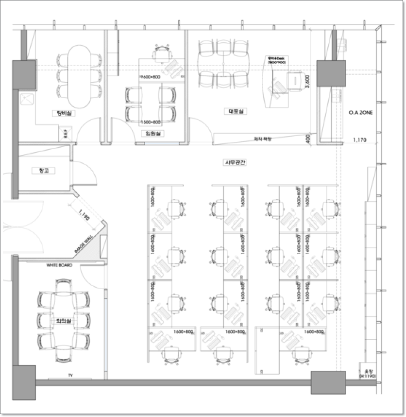
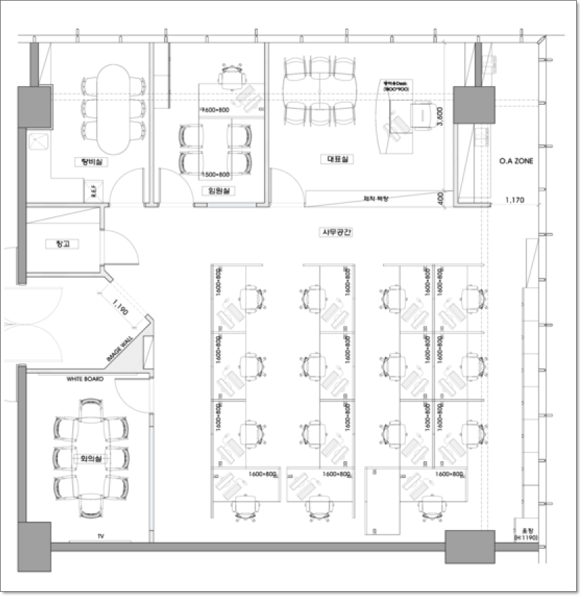
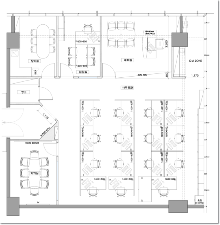
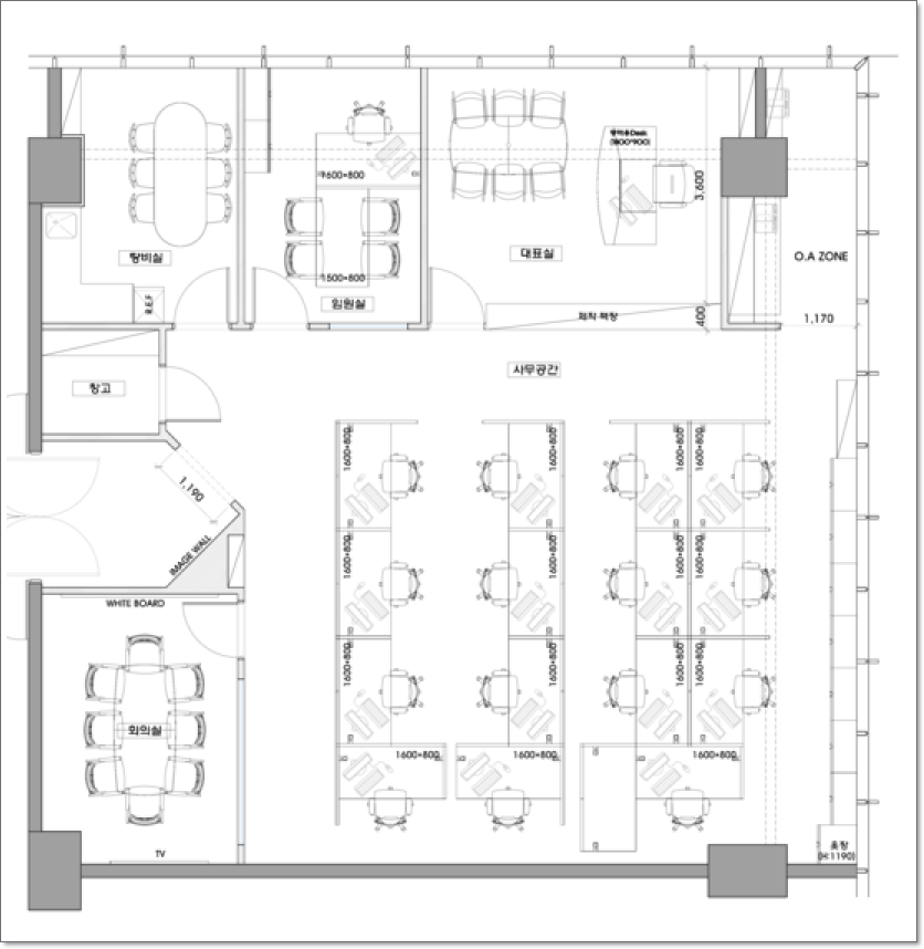
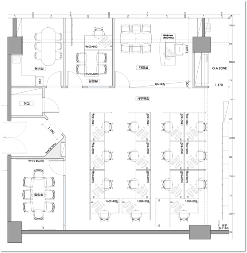
3D도안

도안을 보고 설명해드리겠습니다. 탕비실, 입원실, 대표실, 사무공간, 창고, 회의실, OA 공간 으로 나뉘어져 있으며 각 공간마다의 효율적인 공간배치를 통해서 최적의 20평 30평 디자인을 해보았습니다.

ISO 로 보여드리겠습니다. 전체적으로 화이트톤을 이용한 외벽을 이용해서 디자인 하였으며 사무실의 바닥은 그래이톤을 이용해서 전체적인 인테리어 분위기가 침착하게 느껴지도록 하였습니다. 중간마다 검정색 포인트를 넣어서 공간의 멋 또한 한 부분씩 살려보았습니다.

출입문의 전경입니다. 화이트톤으로 되어있는 내부와는 달리 블랙톤을 이용해서 디자인을 하였으며 외벽에는 일정한 무의를 넣고 붉은색의 인테리어를 추가함으로써 밋밋한 느낌을 제거하였고 출입문같은 경우는 외부 문에는 몰딩을 하여 고급스러움을 추가하였을 뿐만 아니라 내부의 문은 유리문에 불투명한 소재를 사용하여 외부와 내부의 분리를 해보았습니다.

문을 열고 들어가면 이와 같은 전경이 보입니다 ISO 도안을 통해 설명드렸듯이 화이트톤을 이용해서 전체적인 외벽을 인테리어 하였으며 가운데에는 갈색 띠를 추가하여 화이트톤의 모던함에 느낌을 조금 추가하였습니다. 출입문을 열자마자 기업의 로고가 보이게 하는 것은 덤입니다. 또한 사무공간과의 공간적 분리성을 나누어서 조금더 세련된 입구가 만들어지게 하였습니다.


사무공간의 전경입니다. 화이트톤으로 되어있는 벽과 동시에 바닥은 그래이 톤을 이용하여 구성하였고 천장도 그레이톤의 타일을 사용해서 인테리어 해보았습니다. 또한 정면으로 보이는 큰 외벽에는 세련된 문구를 넣어서 한층 더 기업의 모던함을 강조해보았습니다. 출입문을 들어오자마다 넓게 형성되어 있는 사무공간과 동시에 우측에 있는 임원실과 회의실과의 공간적인 분리를 부분의 특성에 따라 나눔으로 한층 더 멋진 사무공간을 볼 수가 있습니다.

탕비실의 전경입니다. 사무공간과의 분리성을 위해서 출입문은 검정색의 불투명한 유리를 이용해서 인테리어 하였으며 내부에 테이블과 의자, 싱크대, 냉장고를 화이트톤을 이용해서 가구 인테리어 해보았습니다. 뿐만 아니라 화이트톤만 있으면 탕비실 자체가 공허해보일 수가 있으니 외벽에는 블랙톤을 이용하여 독창성을 주었고 다른 한쪽에는 우드 기둥을 세워서 수납장을 설치함으로 공간의 활용성을 사용해보았습니다.

회의실의 전경입니다. 다른 공간과는 달리 천장과 바닥 말고도 외벽까지 그레이톤을 사용함으로서 회의실의 진중한 분위기를 한층더 강조해보았습니다. 그레이톤으로 되어있는 공간은 상대적으로 어두워보일 수가 있습니다. 저희 916 디자인은 테이블 위에 큰 조명을 설치함으로써 시선의 집중이 되는 진중한 회의실을 분위기에 한층더 강조를 하였습니다.

임원실의 전경입니다. 기업의 임원들이 언제든지 와서 회의를 할 수 있도록 책상 2개와 의자 5개를 배치하였고 뒤쪽에는 바깥의 외경이 보일수 있도록 할 뿐만 아니라 임원실을 조금 더 공간적으로 크게 보일 수 있게 하였습니다. 외벽 같은 경우에는 공간적인 부분을 늘리고자 화이트톤을 이용한 외벽을 그대로 사용하였고 가운데에는 블랙톤의 인테리어를 추가하고 기업의 로고를 붙임으로 한층더 임원실의 분위기를 살렸습니다.

마지막으로는 대표실의 전경을 보여드리겠습니다. 임원실과 비슷해보일 수 있지만 대표실은 뒷 외벽 부분을 베이지 톤에 기업의 로고를 달음 으로서 대표로서의 이미지를 부각시킬 수 있게 디자인을 해보았습니다.
뿐만 아니라 언제든지 고객이나 임원들이 와서 업무 지시를 받을 수 있도록 테이블과 의자를 적절하게 배치하였고 우측 외벽은 비어보이지 않게 여러 참고자료를 배치해서 인테리어를 해보았습니다. 저희 916 디자인은 이렇게 모던한 사무실 인테리어를 해드리고 있습니다.
#사무실인테리어 #인테리어디자인설계비용
공사문의 010-3235-8427
포트폴리오 바로가기▶916er.com
전화주시면 간단한 비용견적 상담부터 현장방문 미팅까지 진행하고 있습니다. 연락주세요.
2021.04.12 - [사무실인테리어] - 화성 동탄 복층사무실 인테리어 공사, 효율적인 업무공간감과 멋진 디자인 설계
화성 동탄 복층사무실 인테리어 공사, 효율적인 업무공간감과 멋진 디자인 설계
화성 동탄 복층사무실 인테리어 공사, 효율적인 업무공간감과 멋진 디자인 설계 안녕하세요. 916디자인입니다. 오늘은 화성 동탄 복층사무실 인테리어 공사 현장으로 효율적인 업무공간감과 멋
dopamine7.com
2021.04.08 - [사무실인테리어] - 수원 영통 지식산업센터, 입구부터 멋진 10평 20평 소형사무실인테리어 컨셉
수원 영통 지식산업센터, 입구부터 멋진 10평 20평 소형사무실인테리어 컨셉
수원 영통 지식산업센터, 입구부터 멋진 10평 20평 소형사무실인테리어 컨셉 안녕하세요. 916디자인입니다. 오늘 소개해 드릴 인테리어 디자인은 수원 영통 지식산업센터로 입구부터 멋진 10평 20
dopamine7.com
2021.04.07 - [사무실인테리어] - 광교 오산 회사인테리어비용 견적, 소형 대형 사무공간과 디자인 컨셉에 따라 다르다!
광교 오산 회사인테리어비용 견적, 소형 대형 사무공간과 디자인 컨셉에 따라 다르다!
광교 오산 회사인테리어비용 견적, 소형 대형 사무공간과 디자인 컨셉에 따라 다르다! 안녕하세요. 916디자인입니다. 오늘은 광교 오산 회사 인테리어비용 견적을 합리적이게 보여드려 고객님께
dopamine7.com
2021.04.06 - [미용실인테리어] - 부천 광명 지역 10평 20평 바버샵인테리어, 남성고객을 위한 미용실 디자인 설계 및 시공 견적
부천 광명 지역 10평 20평 바버샵인테리어, 남성고객을 위한 미용실 디자인 설계 및 시공 견적
부천 광명 지역 10평 20평 바버샵인테리어, 남성고객을 위한 미용실 디자인 설계 및 시공 견적 안녕하세요 916디자인입니다. 이번에 소개해드릴 시공은 10평 20평 바버샵인테리어 입니다. 저희 916
dopamine7.com
2021.04.04 - [사무실인테리어] - 고양 일산 파주 소형 10평 사무실인테리어, 중개법인 부동산 업체
고양 일산 파주 소형 10평 사무실인테리어, 중개법인 부동산 업체
고양 일산 파주 소형 10평 사무실인테리어, 중개법인 부동산 업체 안녕하세요 916디자인입니다. 오늘은 소형 10평 사무실인테리어를 소개해드리겠습니다. 이번 인테리어 작업은 고양, 일산, 파주
dopamine7.com
'사무실인테리어' 카테고리의 다른 글
| 인천 김포 마곡 60평 70평 사무실인테리어, 회의실 탕비실 사무공간 디자인 (0) | 2021.05.06 |
|---|---|
| 서초 역삼 청담 오피스인테리어 30평 40평 50평 디자인레이아웃 3d 설계 (0) | 2021.05.05 |
| 내츄럴 심플한 법무법인 사무실인테리어, 일산 고양 부천 지역 공사비 무료견적 (0) | 2021.05.04 |
| 회사인테리어 지식산업센터 대표실,회의실,탕비실 등 사무공간 디자인 설계 (0) | 2021.04.14 |
| 화성 동탄 복층사무실 인테리어 공사, 효율적인 업무공간감과 멋진 디자인 설계 (0) | 2021.04.12 |
| 수원 영통 지식산업센터, 입구부터 멋진 10평 20평 소형사무실인테리어 컨셉 (0) | 2021.04.08 |
| 광교 오산 회사인테리어비용 견적, 소형 대형 사무공간과 디자인 컨셉에 따라 다르다! (0) | 2021.04.07 |
| 고양 일산 파주 소형 10평 사무실인테리어, 중개법인 부동산 업체 (0) | 2021.04.04 |
- Total
- Today
- Yesterday
- 상가인테리어
- 사무실리모델링
- 사무실인테리어공사
- 헤어샵인테리어
- 3D사무실인테리어
- 사무실디자인
- 사무실인테리어
- 인천사무실인테리어
- 사무실인테리어디자인
- 사무실인테리어전문
- 지식산업센터인테리어
- 회사인테리어
- interior
- 미용실인테리어
- 사무실인테리어잘하는곳
- 3D디자인
- 사무실인테리어추천
- 피티샵인테리어
- 사무실인테리어비용
- 오피스인테리어
- 인테리어디자인
- 헬스장인테리어
- 병원인테리어
- 사무실인테리어견적
- 학원인테리어
- 학원인테리어디자인
- 인테리어
- 사무실인테리어후기
- 사무실인테리어업체
- 916디자인
| 일 | 월 | 화 | 수 | 목 | 금 | 토 |
|---|---|---|---|---|---|---|
| 1 | 2 | 3 | 4 | 5 | 6 | |
| 7 | 8 | 9 | 10 | 11 | 12 | 13 |
| 14 | 15 | 16 | 17 | 18 | 19 | 20 |
| 21 | 22 | 23 | 24 | 25 | 26 | 27 |
| 28 | 29 | 30 | 31 |
