티스토리 뷰
목차
성남 분당 판교 제이에스타워 센트럴 비즈타워 사무실인테리어 깔끔하고 쾌적한 환경으로 완성하세요
3D


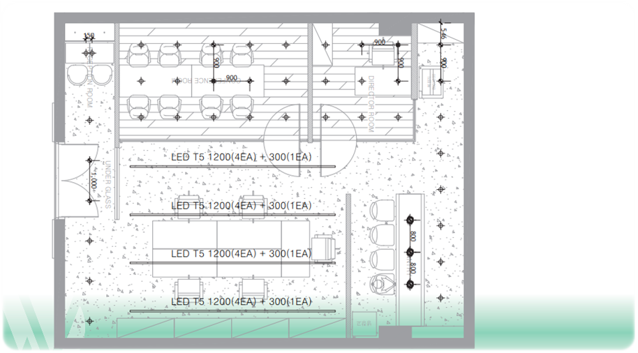
최근 성남 분당 판교 제이에스타워 센트럴 비즈타워 사무실인테리어에 대한 문의가 많아지고 있어 이에 적용할 수 있는 깔끔하고 심플한 디자인설계를 공개하고 완공 현장을 소개해드리려고 합니다. 정사각형에 가까운 형태의 호실이었고 이 곳에 사무실, 대표실, 회의실, 휴게공간을 구성하는 설계를 진행했습니다.
그래서 일반 사무공간을 넓게 활용할 수 있도록 통합형으로 계획하고 대표실과 회의실은 가벽을 세워 분리했으며 발코니를 확장해 휴게공간으로 만들었습니다. 평면설계도와 3D 이미지를 제공해 고객님께서 쉽게 이해하실 수 있도록 도와드렸고 디테일한 수정을 거쳐 최종 시안을 확정했죠.
공사진행



층고가 충분히 확보된 호실이었기 때문에 깔끔한 덱스형 천장으로 시공하고 매입형 조명 대신 라인 조명을 시공했으며 독립형 공간은 매입형 원형 조명을 적용했습니다. 가벽은 답답해보이지 않으면서 세련된 디자인의 유리 소재로 구성했고 입구 측에는 목공가벽을 적용해 내부 파사드로 활용했습니다.
배선, 배관, 공조, 소방 등의 시설을 설계에 맞게 정리해 효율적으로 공사가 진행되도록 했고 모든 공정을 철저히 준수해 안전하고 안정적으로 시공했습니다. 각 공정에는 베테랑 전문가를 투입해 함께 작업을 진행해 더욱 완벽한 인테리어로 완성할 수 있었죠.
공사완료



입구 내부 파사드입니다. 회의식 외벽을 활용해 파사드로 만들었고 하단은 유리로 구정해 마치 간접조명과 같은 포인트를 줬답니다. 외벽측에는 벤치를 시공해 앉을 수 있는 공간이 되도록 했는데요, 따뜻한 조명을 더헤 아늑함을 느낄 수 있답니다.
전화 통화를 하거나 잠시 쉴 때 이용을 하기에도 좋지만 독특하면서 비밀스러운 시그니처 공간이 되기에도 충분한 인테리어인듯 합니다. 성남 분당 판교 제이에스타워 센트럴 비즈타워 사무실인테리어를 꾸미실 때 이런 데드 스페이스를 활용하신다면 실용적이면서 기분 좋은 공간으로 만들 수 있을겁니다.


통합형으로 조성한 일반 사무공간을 배치했고 맞은편에 독립형 공간으로 회의실과 대표실을 배치했으며 유리 가벽으로 공간을 분리해 개방감과 공간감을 모두 확보했습니다. 전체적으로 화이트, 아이보리 컬러를 적용해 환하고 부드러운 분위기로 조성했고 천장에 라인 조명을 시공해 충분한 조도를 확보했습니다.
가벽의 유리는 브론즈 컬러를 적용해 세련된 디자인을 유지하도록 했습니다. 통합형 사무실이어서 협업, 교류, 소통, 피드백 등에 유리하지만 자칫 혼잡스러울 수 있어 낮은 파티션을 시공해 집중력을 높일 수 있는 환경으로 만들어드렸습니다.



회의실입니다. 유리 가벽과 도어는 브론즈 컬러를 적용해 고급스러우면서 세련된 디자인을 유지했고 입구 도어와 동일한 화이트 손잡이를 달아 포인트를 주었습니다. 내부는 화이트와 우드로 인테리어해 공간감을 높였으며 연한 우드 테이블과 의자를 배치했으며 벽면에 모니터를 달아 사용성과 편의성을 높였습니다.

대표실은 창가에 배치해 자연채광을 받을 수 있도록 했고 가벽, 도어, 내부 인테리어는 회의실과 동일하게 통일했습니다. 고겍님께서 실용성을 강조하셔서 대표실은 최소화했고 직원들을 위한 공간에 할애하시도록 배려했는데요, 덕분에 발코니를 휴게공간으로 사용할 수 있게 됐답니다.





이번 현장의 핵심 공간이라고 할 수 있는 휴게공간입니다. 발코니 확장공사를 통해 넓은 공간을 확보했고 그 곳에 탕비 공간, 바테이블 등을 시공해 휴게공간으로 꾸몄으며 팬던트형 디자인 조명을 시공해 멋지게 인테리어했죠. 창 밖을 보며 여유있는 시간을 보낼 수 있는 이 공간에서 향긋한 커피를 마시거나 음식을 먹는다면 야근도 거뜬하게 할 것 같지 않나요?
성남 분당 판교 제이에스타워 센트럴 비즈타워 사무실인테리어를 계획 중이시라면 저희 916디자인으로 문의해주세요. 고객님의 니즈를 충분히 반영한 1:1 맞춤인테리어를 제공해드리고 합리적인 견적으로 퀄리티 높은 사무실을 만들어드리겠습니다.
#성남 분당 판교 제이에스타워 센트럴 비즈타워 사무실인테리어 #사무실인테리어
공사문의 010-3235-8427
포트폴리오 바로가기▶916er.com
전화주시면 간단한 비용견적 상담부터 현장방문 미팅까지 진행하고 있습니다. 연락주세요.
2022.03.13 - [사무실인테리어] - 동탄금강펜테리움 IX타워 비즈타워 사무실인테리어, 유리 가벽으로 넓고 효율적으로~
동탄금강펜테리움 IX타워 비즈타워 사무실인테리어, 유리 가벽으로 넓고 효율적으로~
동탄금강펜테리움 IX타워 비즈타워 사무실인테리어, 유리 가벽으로 넓고 효율적으로~ 3D 오늘은 동탄금강펜테리움 IX타워 비즈타워 사무실인테리어를 계획하는데 패션, 쇼핑몰, 촬영스튜디오 등
dopamine7.com
2022.03.12 - [사무실인테리어] - 기흥 오산 용인 SK V1 사무실인테리어, 공간을 효율적으로 구성하고 다목적으로 활용하세요
기흥 오산 용인 SK V1 사무실인테리어, 공간을 효율적으로 구성하고 다목적으로 활용하세요
기흥 오산 용인 SK V1 사무실인테리어, 공간을 효율적으로 구성하고 다목적으로 활용하세요 3D 오늘은 기흥 오산 용인 SK V1 사무실인테리어를 효율적으로 구성하고 다양하게 활용할 수 있는 방법
dopamine7.com
2022.03.11 - [사무실인테리어] - 부산 펜타플렉스 벤처타워 사무실인테리어, 통합형과 독립형으로 구성해보세요
부산 펜타플렉스 벤처타워 사무실인테리어, 통합형과 독립형으로 구성해보세요
부산 펜타플렉스 벤처타워 사무실인테리어, 통합형과 독립형으로 구성해보세요 3D 부산 펜타플렉스 벤처타워 사무실인테리어를 생각하실 때 가장 고려하시는 점은 무엇인가요. 대체적으로 근
dopamine7.com
2022.03.10 - [사무실인테리어] - 광주 첨단 프라임비즈파크 비즈밸리 사무실인테리어 복층으로 완벽하게 시공하세요
광주 첨단 프라임비즈파크 비즈밸리 사무실인테리어 복층으로 완벽하게 시공하세요
광주 첨단 프라임비즈파크 비즈밸리 사무실인테리어 복층으로 완벽하게 시공하세요 3D 광주 첨단 프라임비즈파크 비즈밸리 사무실인테리어를 계획 중이시라면 복층으로 시공해보시는 것을 추
dopamine7.com
2022.03.09 - [사무실인테리어] - 성남 분당 판교 SK V1 센트럴 비즈타워 사무실인테리어를 통해 브랜드 이미지를 바꿔보세요
성남 분당 판교 SK V1 센트럴 비즈타워 사무실인테리어를 통해 브랜드 이미지를 바꿔보세요
성남 분당 판교 SK V1 센트럴 비즈타워 사무실인테리어를 통해 브랜드 이미지를 바꿔보세요 공사진행 코로나19의 장기화로 많이 힘든 상황이지만 꾸준한 운동과 건강한 생활로 면역력을 높여 이
dopamine7.com
'사무실인테리어' 카테고리의 다른 글
| 다산 한강프리미어갤러리 별내 현대그러너리캠퍼스 별가람역 사무실인테리어 심플하면서 실용적으로 만들고 싶다면 (0) | 2022.03.18 |
|---|---|
| 독창적인 광명 테크노타운 테크노파크 사무실인테리어로 회사와 브랜드 이미지를 높일 수 있습니다 (0) | 2022.03.17 |
| 양주 의정부 파주 운정 한강듀클래스 사무실인테리어 3D 이미지로 미리 확인하세요 (0) | 2022.03.16 |
| 멋진 라운지가 있는 세종 테크밸리 청주 테크노S타워 사무실인테리어를 원하신다면~ (0) | 2022.03.15 |
| 동탄금강펜테리움 IX타워 비즈타워 사무실인테리어, 유리 가벽으로 넓고 효율적으로~ (0) | 2022.03.13 |
| 기흥 오산 용인 SK V1 사무실인테리어, 공간을 효율적으로 구성하고 다목적으로 활용하세요 (0) | 2022.03.12 |
| 부산 펜타플렉스 벤처타워 사무실인테리어, 통합형과 독립형으로 구성해보세요 (0) | 2022.03.11 |
| 광주 첨단 프라임비즈파크 비즈밸리 사무실인테리어 복층으로 완벽하게 시공하세요 (0) | 2022.03.10 |
- Total
- Today
- Yesterday
- 지식산업센터인테리어
- 학원인테리어디자인
- 헬스장인테리어
- 사무실인테리어디자인
- 사무실인테리어견적
- 사무실인테리어잘하는곳
- 사무실인테리어비용
- interior
- 피티샵인테리어
- 사무실인테리어후기
- 인테리어디자인
- 사무실인테리어추천
- 916디자인
- 인천사무실인테리어
- 인테리어
- 오피스인테리어
- 헤어샵인테리어
- 회사인테리어
- 사무실인테리어공사
- 병원인테리어
- 학원인테리어
- 3D사무실인테리어
- 사무실리모델링
- 사무실디자인
- 미용실인테리어
- 사무실인테리어전문
- 사무실인테리어
- 3D디자인
- 사무실인테리어업체
- 상가인테리어
| 일 | 월 | 화 | 수 | 목 | 금 | 토 |
|---|---|---|---|---|---|---|
| 1 | 2 | 3 | ||||
| 4 | 5 | 6 | 7 | 8 | 9 | 10 |
| 11 | 12 | 13 | 14 | 15 | 16 | 17 |
| 18 | 19 | 20 | 21 | 22 | 23 | 24 |
| 25 | 26 | 27 | 28 | 29 | 30 | 31 |
