티스토리 뷰
목차
압구정 성수동 문정동 사무실인테리어 전문 사이트에서 깔끔한 사례 확인하자!
안녕하세요, 916디자인입니다. 오늘은 압구정 성수동 문정동 사무실 인테리어 사례를 소개해 드리려고 합니다. 최근 압구정, 성수동, 문정동 일대에 스타트업 회사들이 많이 생기면서 복층 사무실 인테리어가 늘어나고 있습니다.
복층구조는 실용적인 공간 분리가 가능하고 면적을 1.5배 이상 넓게 사용할 수 있어 최근 주거시설은 물론 사무실 공간까지 많이 적용되고 있습니다. 복층 구조 중 아래층은 사무공간으로 활용하고 복층은 회의공간이나 수납공간 등으로 효율적으로 활용하고 있습니다.
3D




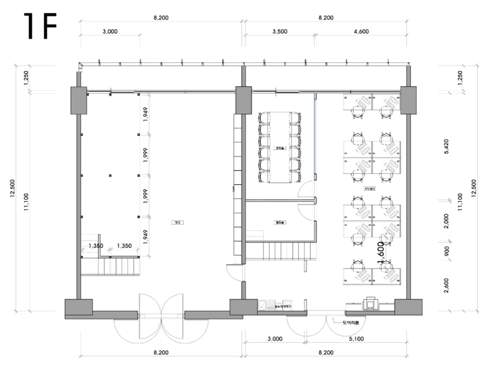
사무실 인테리어는 기업의 분위기를 잘 살리고 실내 동선 및 공간을 명쾌하게 계획해 사용하는 이들에게 편리한 사무실이 될 수 있도록 계획해야 하는데요, 특히 복층 구조는 철근 골조를 세워야 하기 때문에 안전하게 계획하고 시공돼야 합니다.
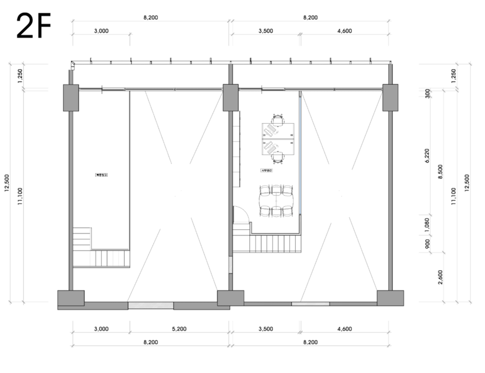
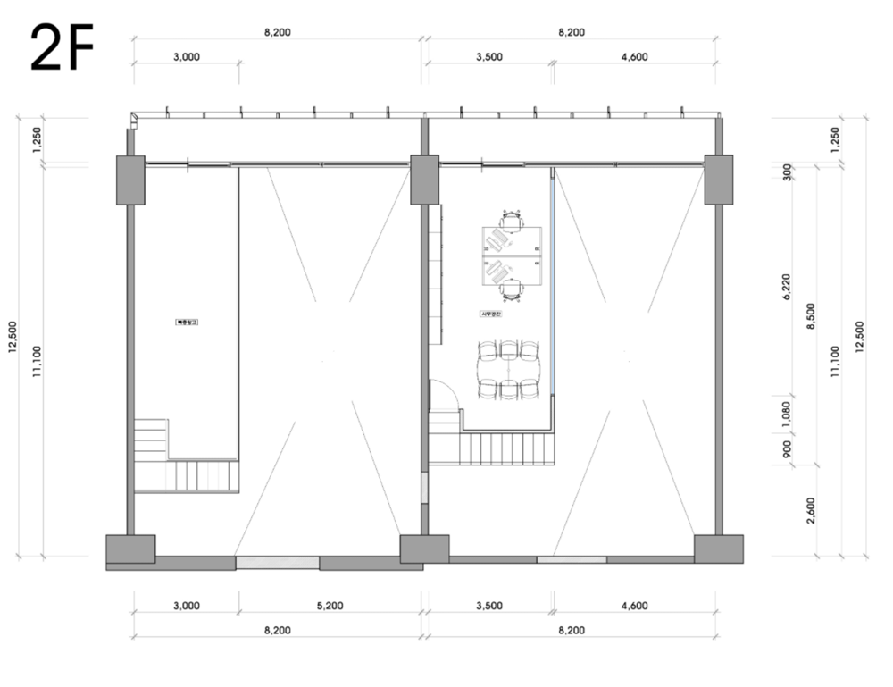
그런 이유로 사무실 인테리어를 할 때는 전문 사이트에서 깔끔한 사례를 확인한 후 문의하고 견적을 의뢰하는 것이 현명한 사무실 인테리어 팁이랍니다. 이번 사무실은 독특한 복층 구조로 아래층에는 사무공간과 회의공간으로 구성해 계획하고 복층에는 대표실과 물품창고를 구성해 계획했습니다.


압구정 성수동 문정동 사무실인테리어를 하면서 두 가지 입구 파사드도 함께 제안드렸습니다. ALT1은 그레이와 레드 계열을 사용해 직선 및 대각선으로 만든 면과 제품 이미지를 활용해 디자인했고 진출입하는 문에는 아쿠아 글래스를 적용해 내부를 직접적으로 볼 수 없도록 계획했고 세로의 긴 금속 손잡이와 문 하단에 적용된 웨인스코팅은 세련되면서 고급스러운 분위기를 낼 수 있을 것으로 기대합니다.
ALT2는 블랙과 레드 계열의 컬러를 사용해 업체명이 들어가는 부분은 패턴 디자인을 계획했고 텍스트는 화이트로 통일했으며 방화문 안쪽에 반투명 시트지를 붙인 통유리문을 계획했습니다.


사무실로 들어와서 본 복층 구조물이 시공된 모습입니다. 몇 년 전에 한 클럽의 복층 구조물이 붕괴하면서 다수의 사상자를 낸 사고가 있었는데요, 복층에 있던 사람들도 많이 다쳤지만 복층 하부에 있던 사람들도 크게 다칠 수 있기 때문에 복층 구조물은 전문 업체가 디자인하고 시공해야 안전성을 확보할 수 있습니다.
이 사무실은 복층을 구성하기에 약간 애매한 층고여서 복층이 시공되는 공간 천장 덱스를 철거해 노출 천장으로 인테리어 계획했습니다. 금속 구조물, 계단, 벽체, 칸막이, 천장 공사, 조명 등의 공사까지 적용한 모습도 함께 확인해 보세요.

입구로 들어가면 아래층 업무 공간이 가장 먼저 보입니다. 전체적으로 화이트 벽면과 그레이톤 바닥이 어우러져 깔끔한 사무실 분위기를 연출했고 입구 파사드에 디자인했던 그레이와 레드 계열로 회사 로고와 회사명을 벽면에 디자인했으며 복층 구조물에도 패턴 디자인을 적용했습니다.

아래층 업무 공간에서 본 복층 공간의 모습입니다. 복층에는 대표실을 계획했고 복층 하부에는 탈의실과 회의공간을 계획했으며 왼쪽에 복층으로 올라가는 그레이톤의 철제계단을 계획해 상하 동선을 설정했습니다. 계단 옆 공간에는 탕비실을 계획해 직원들이 편리하게 사용할 수 있도록 설계했습니다.

복층 하부 회의실 공간 이미지입니다. 통유리 가벽은 반투명 시트지를 디자인해 직접적인 시선과 노출을 차단했고 내부는 화이트톤으로 계획해 갤러리 느낌이 나는 액자 인테리어를 제안했으며 화이트 보드 프레임에는 입구부터 쓰이고 있는 레드 계열을 적용해 포인트가 되면서 인테리어적 요소가 될 수 있도록 디자인 연출했습니다.

압구정 성수동 문정동 사무실인테리어 복층에 구성한 대표실 이미지입니다. 이 공간 역시 입구, 아래층에 쓰인 컬러와 소재를 적용해 디자인함으로써 통일성과 연장성을 부여해 하나의 기업이라는 이미지를 연출했습니다.
사무실 인테리어를 생각하고 계시다면 전문 사이트 916디자인에서 다양한 사례를 확인하시면 깔끔하게 시공된 많은 인테리어 디자인을 확인하실 수 있답니다. 복층, 단층, 대형, 소형 등 색다르고 편리한 사무실 인테리어를 원하신다면 저희에게 문의주세요. 원하시는 그림을 현실로 만들어 드리겠습니다.
#압구정 성수동 문정동 사무실인테리어 #깔끔한 사무실인테리어
공사문의 010-3235-8427
포트폴리오 바로가기▶916er.com
전화주시면 간단한 비용견적 상담부터 현장방문 미팅까지 진행하고 있습니다. 연락주세요.
2021.05.27 - [사무실인테리어] - 구로 가산동 금천구 사무실인테리어, 현대모던 스타일 소규모 공간분리
구로 가산동 금천구 사무실인테리어, 현대모던 스타일 소규모 공간분리
구로 가산동 금천구 사무실인테리어, 현대모던 스타일 소규모 공간분리 안녕하세요. 916디자인입니다. 오늘은 구로 가산동 금천구 사무실인테리어, 현대모던 스타일 소규모 공간분리 인테리어
dopamine7.com
2021.05.26 - [사무실인테리어] - 강북 광진구 강동구 빈티지 사무실인테리어, 쇼핑몰 IT 사무공간 디자인
강북 광진구 강동구 빈티지 사무실인테리어, 쇼핑몰 IT 사무공간 디자인
강북 광진구 강동구 빈티지 사무실인테리어, 쇼핑몰 IT 사무공간 디자인 안녕하세요. 916디자인입니다. 오늘은 강북 광진구 강동구 빈티지 사무실인테리어, 쇼핑몰 IT 사무공간 디자인 현장으로
dopamine7.com
2021.05.25 - [사무실인테리어] - 남양주 별내 문정동 사무실인테리어, 가벽 시공으로 내부 공간분리
남양주 별내 문정동 사무실인테리어, 가벽 시공으로 내부 공간분리
남양주 별내 문정동 사무실인테리어, 가벽 시공으로 내부 공간분리 3D 안녕하세요, 916디자인입니다. 오늘은 사무실인테리어에 있어 내부 공간을 분리하는 가벽 시공을 중점적으로 한 디자인 제
dopamine7.com
2021.05.23 - [사무실인테리어] - 분당 판교 구리 칸막이공사 사무실인테리어, 업무공간 활용 3d 사례
분당 판교 구리 칸막이공사 사무실인테리어, 업무공간 활용 3d 사례
분당 판교 구리 칸막이공사 사무실인테리어, 업무공간 활용 3d 사례 안녕하세요, 916디자인입니다. 저희는 사무실 인테리어 전문업체로 고객님과의 많은 대화를 통해 원하는 방향을 잡고 그에
dopamine7.com
2021.05.22 - [사무실인테리어] - 여의도 운정 고천 고급스러운 사무실인테리어 리모델링 시공사례
여의도 운정 고천 고급스러운 사무실인테리어 리모델링 시공사례
여의도 운정 고천 고급스러운 사무실인테리어 리모델링 시공사례 안녕하세요. 916디자인입니다. 오늘은 여의도 운정 고천 고급스러운 사무실인테리어 리모델링 시공사례를 소개해 드리려고 합
dopamine7.com
'사무실인테리어' 카테고리의 다른 글
| 가산 에이스 비즈포레 사무실인테리어 공사 (0) | 2021.07.05 |
|---|---|
| 의정부 용산 덕양구 사무실인테리어, 대규모 1층 2층 공사 (0) | 2021.05.31 |
| 마포 홍대 종로 법무법인 사무실인테리어 시안 및 견적 문의하 (0) | 2021.05.30 |
| 노원 양주 파주 90평 100평 사무실인테리어 3D 디자인 설계 도안 확인하기 (0) | 2021.05.29 |
| 구로 가산동 금천구 사무실인테리어, 현대모던 스타일 소규모 공간분리 (0) | 2021.05.27 |
| 강북 광진구 강동구 빈티지 사무실인테리어, 쇼핑몰 IT 사무공간 디자인 (0) | 2021.05.26 |
| 남양주 별내 문정동 사무실인테리어, 가벽 시공으로 내부 공간분리 (0) | 2021.05.25 |
| 분당 판교 구리 칸막이공사 사무실인테리어, 업무공간 활용 3d 사례 (0) | 2021.05.23 |
- Total
- Today
- Yesterday
- 사무실디자인
- 회사인테리어
- 사무실인테리어잘하는곳
- 사무실인테리어견적
- 사무실인테리어
- 사무실인테리어추천
- 학원인테리어디자인
- 상가인테리어
- interior
- 사무실리모델링
- 3D디자인
- 미용실인테리어
- 3D사무실인테리어
- 피티샵인테리어
- 인테리어
- 헤어샵인테리어
- 916디자인
- 사무실인테리어업체
- 오피스인테리어
- 사무실인테리어디자인
- 사무실인테리어비용
- 인천사무실인테리어
- 헬스장인테리어
- 인테리어디자인
- 병원인테리어
- 지식산업센터인테리어
- 사무실인테리어후기
- 사무실인테리어공사
- 사무실인테리어전문
- 학원인테리어
| 일 | 월 | 화 | 수 | 목 | 금 | 토 |
|---|---|---|---|---|---|---|
| 1 | 2 | |||||
| 3 | 4 | 5 | 6 | 7 | 8 | 9 |
| 10 | 11 | 12 | 13 | 14 | 15 | 16 |
| 17 | 18 | 19 | 20 | 21 | 22 | 23 |
| 24 | 25 | 26 | 27 | 28 | 29 | 30 |
| 31 |
