티스토리 뷰
목차
양주 의정부 파주 사무실인테리어 넓고 쾌적하면서도 매력적인 공간으로 만들고 싶다면
안녕하세요 916디자인입니다.
오늘은 대형 평수의 사옥 양주 의정부 파주 사무실인테리어 온투이노베이션 현장을 소개해드립니다.사전 미팅을 통해 클라이언트분의 니즈와 최신 트렌드를 반영한 3D 디자인으로 다양한 공간을 구성하였습니다. 기업의 가치, 업무의 효율성, 트렌디한 디자인까지 세마리 토끼를 모두 잡은 공간의 3D 디자인부터 시공 완료 현장까지 함께 확인해보겠습니다.
3D 디자인 제안



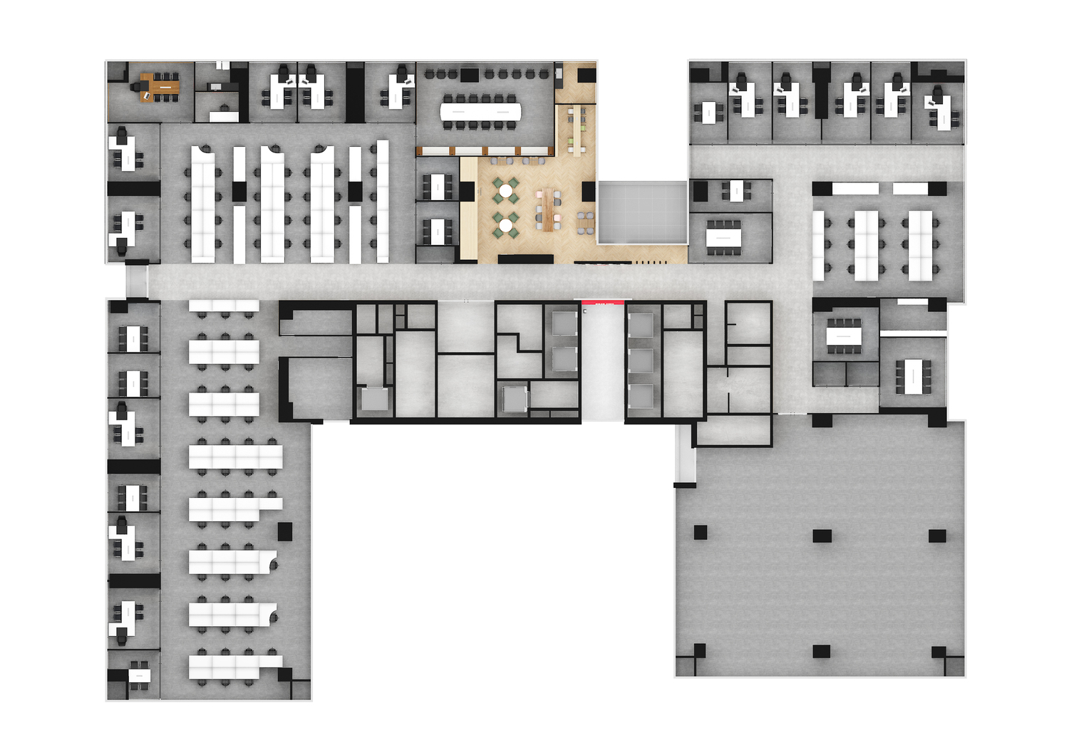
먼저 시흥 온투이노베이션 사옥 3D 설계도&레이아웃입니다. 다인원인 사용하는 대형 평수의 공간인만큼 파트별로 효율적으로 공간을 구성하였습니다. 공간 구성 후 필요와 용도에 맞게 세부적인 디자인을 설계하였습니다.

시흥 온투이노베이션 사옥 입구 파사드 3D 디자인입니다. 상단에 스카치로 기업 로고를 넣었고 깔끔하면서도 강렬한 레드 컬러로 파사드를 제작하였습니다.


입구에서 들어오면 내부로 들어가는통로로 사무실의 얼굴이라고도 할 수 있는데요. 입구에는 기업의 인증서, 수상경력 등연혁을 확인할 수 있도록 수납장을 구성하였습니다.또한 안쪽에도 간접등을 설치하여 사무실에 들어서자마자 잘 보일수 있도록 만들었습니다. 복도를 따라 안쪽으로 들어오면 사무실의 메인 공간이 나오게 됩니다. 내부를 가벽으로 한번 더 구분하면서 프라이빗한 공간으로 만들었습니다. 아트월은 기업 이미지와 어울리게 깔끔한 화이트로 제작하였습니다.


다음은 대표실 3D 설계도입니다.테이블 맞은편으로는 글라스 보드와 디스플레이 두가지를 배치하였습니다.간단한 미팅을 진행할 수 있도록 내부에도 회의용 테이블을 배치했음에도 불구하고 여유있는 공간입니다.


집으로 보면 거실과 같은 공간으로 직원들이 자유롭게 휴식을 취하고 내방객을 맞이할 수 있는 카페테리아 3D 디자인입니다.바닥은 헤링본 타입이며, 천장은 루버 타입의 무지주 장식으로 따뜻하고 트렌디하게 설계하였습니다.




대표실 내 회의 공간 외에도 더 많은 인원을 수용할 수 있는 대회의실과소회의실이 별도로 구성되어 있습니다. 중앙 메인 테이블 외에도 사이드 벽면에 쇼파형 벤치를 추가로 설치하여 활용도를 높였습니다.벽면 디자인과 다양한 조명을 활용하여 모던한 분위기를 연출했습니다. 대회의실 보다는 심플한 느낌의 소회의실입니다. 화이트&그레이 인테리어로 깔끔한 모습입니다.

916디자인에서는 현장 작업 전 이렇게 3D 설계와 레이아웃으로 미리 완료된 모습을 확인하실 수 있습니다. 또한, 현장에서도 이를 바탕으로 작업을 진행하기 때문에 3D 작업물과 99% 유사한 완료 현장으로 클라이언트분의 만족도가 높기에 걱정하지 않으셔도 되는데요. 자, 그럼 지금부터 양주 의정부 파주 사무실인테리어 공사 현장을 함께 확인해보겠습니다.
공사 진행 현장


자, 그럼 지금부터 공사 현장을 함께 확인해보겠습니다. 천정 및 전기 공사를 위해 기존 텍스 철거 작업을 진행하였고 사무 업무 공간 외에는 석고보드로 천정을 마감하였습니다.


916디자인에서는 오랜 경력의 현장 전문가들이 좋은 소재를 사용하여 목공, 전기 등의 작업까지 직접 진행하고 있습니다.
그렇기 때문에 깔끔하고 퀄리티 높은현장을 확인하실 수 있습니다.

기초 목공 공사를 마무리 후 우드 계열 시트지를 부착하여 따뜻한 느낌의 카페테리아 인테리어를 연출했습니다.


카페테리아와 복도의 벽면은 벽돌 타입의 타일을 하나하나 부착하여 완성한만큼 퀄리티가 우수하며 전체적인 조화로움을 많이 신경썼는데요.


벽면 인테리어 마감 현장을 살펴보면 동일한 간격으로 전문가의 정교한 기술을 확인하실 수 있습니다.벽돌 인테리어로 모던한 분위기가 한층 살아난 것 같지 않나요?
공사 마감 현장


#입구
각 파트의 전문가들이 원팀으로 구성되어 꼼꼼하게 공사를 진행한 시공 완료 현장입니다. 3D 설계도와 얼마나 유사한지
확인해볼까요? 먼저, 사무실 입구 파사드입니다. 파사드와 간판에 간접조명을 설치하여 깔끔하고 세련된 모습입니다.또한 간판은 양각으로 처리하여서 시각적으로도 훨씬 입체적으로 느껴지게 하였습니다.


#뵥도
단순히 가벽이나 문을 사용하여 공간을 분리 했다면 특별할 것 없는 복도 공간이었을 수 있습니다. 하지만 916디자인에서는 모든 공간에 포인트를 넣어 공간을 살렸습니다.


#카페테리아
다음은 휴식&미팅 공간인 카페테리아 모습입니다. 우드&벽돌 타입의 디자인으로 따뜻한 감성과 편안함을 주는 공간이 되었습니다.별도의 공간들을 만들어서 다른 사람의 눈치를 보지 않고도 편하게 쉴 수 있으며 간단한 업무를 처리할 수 있기도 하고 직원들끼리의 스몰 토크도 가능합니다.가운데는 오픈형으로 테이블을 배치할 예정이며 한쪽 벽면에는 이렇게 아늑한 공간을 만들었는데요. 팬던트 조명까지 더해져 감성 카페에 온 듯한 느낌입니다.


#대회의실
다음은 대회의실 시공 완료 모습입니다.우물형 천장에 간접등과 매립등을 설치하여 포인트를 주었는데요. 회의실 역시 우드&화이트 디자인이며 다양한 조명까지 더해 전체적인 밸런스를 맞춰주었습니다. 헤링본 우드로 벽면을 시공하여서 클래식한 멋을 높이고 의자 사이사이에 벽등을 설치하여서 분위기를 아늑하게 유지하였습니다.

인포 데스크로 입구와 업무공간 중간에 배치하여 접근성을 높여주었습니다. 인포데스크 벽면에는 아트월로 고급스러운 느낌을 주었고 입구와 동일하게 로고를 레드 스카치로 제작하여 설치하였습니다.

대형 평수인만큼 다양한 공간으로 구성을 하였는데 유리를 이용하여 공간을 분리해 개방감을 주었습니다. 어느곳에도 답답하지 않게끔 초점을 맞추었으며 전체 공간의 활용도를 높이기 위해서 노력했습니다.

#임원실
고급스러운 디자인으로 무게감이 있는 임원실 시공 완료 현장입니다.


#사무실
마지막으로 화이트 집기와 그레이 색상의 파티션으로 깔끔하고 세련된 양주 의정부 파주 사무실인테리어 의 업무 공간입니다. 많은 사람이 머물고 일에 집중해야하는만큼 깔끔하면서도 군더더기 없는 스타일로 연출하였습니다.
916 디자인은 클라이언트의 높은 만족도를 자랑하는 사무실 전문 인테리어 업체입니다. 또한 업종에 맞는 상가 인테리어 제안으로 매출을 높일 수 있는 방안에 대하여도 함께 고민하고 있으며 클라이언트분의 고민에 저희의 경험을 덧붙여 더 좋은 퀄리티로 제안드리고 있으니 걱정하지마시고 언제든지 문의 부탁드립니다.
공사문의 010-3235-8427
포트폴리오 바로가기▶916er.com
2022.06.06 - [사무실인테리어] - 인천 오류동 사무실인테리어 클래식하면서도 트렌디한 연출
인천 오류동 사무실인테리어 클래식하면서도 트렌디한 연출
인천 오류동 사무실인테리어 클래식하면서도 트렌디한 연출 안녕하세요 916디자인입니다. 오늘 소개드릴 현장은 딥한 그린 컬러가 인상 깊은 곳입니다. 요즘은 화이트 인테리어가 대세라고
dopamine7.com
2022.06.04 - [사무실인테리어] - 인천 청라 사무실인테리어 고급스러운 조명 활용
인천 청라 사무실인테리어 고급스러운 조명 활용
인천 청라 사무실인테리어 고급스러운 조명 활용 안녕하세요 916디자인입니다. 여름이 찾아오고 많은 사람들이 휴가를 떠나기 위해 바삐 움직이고 계신데요. 오늘은 아웃도어의 대표적인 브랜
dopamine7.com
2022.06.02 - [사무실인테리어] - 하남 미사 지식산업센터 사무실인테리어 효율적인 공간 활용을 원한다면
하남 미사 지식산업센터 사무실인테리어 효율적인 공간 활용을 원한다면
하남 미사 지식산업센터 사무실인테리어 효율적인 공간 활용을 원한다면 안녕하세요 916디자인입니다. 사무실인테리어의 가장 중요한 점은 보기에도 예뻐야 하지만, 사용하기에도 실용성이 높
dopamine7.com
2022.05.31 - [사무실인테리어] - 성남 위례 분당 사무실인테리어 트렌디한 디자인 제안
성남 위례 분당 사무실인테리어 트렌디한 디자인 제안
성남 위례 분당 사무실인테리어 트렌디한 디자인 제안 안녕하세요 916디자인입니다. 예전과는 다르게 사무실인테리어에도 새로운 바람이 불면서 효율적인 업무 진행도 중요하지만 적절한 휴게
dopamine7.com
2022.03.31 - [사무실인테리어] - 성동구 성수동 생각공장데시앙플렉스 사무실인테리어 효율적이고 실용적으로 진행하세요~
성동구 성수동 생각공장데시앙플렉스 사무실인테리어 효율적이고 실용적으로 진행하세요~
성동구 성수동 생각공장데시앙플렉스 사무실인테리어 효율적이고 실용적으로 진행하세요~ 3D 오늘은 요즘 핫한 지역 중 한 곳인 성동구 성수동 생각공장데시앙플렉스 사무실인테리어를 구상
dopamine7.com
'사무실인테리어' 카테고리의 다른 글
| 영등포 동작 사무실인테리어 화사한 조명과 눈에 띄는 입구 파사드 연출로 (0) | 2022.06.11 |
|---|---|
| 수원 동탄 사무실인테리어 세련된 시공으로 특별한 공간 연출까지 (0) | 2022.06.10 |
| 강서 구로 사무실인테리어 복층으로 효율적이게 공간 활용하기 (0) | 2022.06.09 |
| 강남 역삼 논현 사무실인테리어 차원이 다른 효율적인 업무 환경 구축을 고민하신다면 (0) | 2022.06.08 |
| 인천 오류동 사무실인테리어 클래식하면서도 트렌디한 연출 (0) | 2022.06.06 |
| 인천 청라 사무실인테리어 고급스러운 조명 활용 (0) | 2022.06.04 |
| 하남 미사 지식산업센터 사무실인테리어 효율적인 공간 활용을 원한다면 (0) | 2022.06.02 |
| 성남 위례 분당 사무실인테리어 트렌디한 디자인 제안 (0) | 2022.05.31 |
- Total
- Today
- Yesterday
- 헬스장인테리어
- 인테리어디자인
- 인천사무실인테리어
- 사무실인테리어전문
- 상가인테리어
- 지식산업센터인테리어
- 사무실디자인
- 사무실인테리어추천
- 사무실리모델링
- 사무실인테리어잘하는곳
- 회사인테리어
- 3D사무실인테리어
- 916디자인
- 헤어샵인테리어
- 사무실인테리어디자인
- interior
- 사무실인테리어업체
- 3D디자인
- 오피스인테리어
- 병원인테리어
- 미용실인테리어
- 사무실인테리어비용
- 사무실인테리어
- 학원인테리어
- 사무실인테리어후기
- 학원인테리어디자인
- 사무실인테리어공사
- 인테리어
- 사무실인테리어견적
- 피티샵인테리어
| 일 | 월 | 화 | 수 | 목 | 금 | 토 |
|---|---|---|---|---|---|---|
| 1 | 2 | |||||
| 3 | 4 | 5 | 6 | 7 | 8 | 9 |
| 10 | 11 | 12 | 13 | 14 | 15 | 16 |
| 17 | 18 | 19 | 20 | 21 | 22 | 23 |
| 24 | 25 | 26 | 27 | 28 | 29 | 30 |
| 31 |
