티스토리 뷰
목차
일산 부천 광명 사무실인테리어 심플하면서도 강렬한 포인트로 시선을 사로잡는
안녕하세요 916디자인입니다.
이제는 거의 대부분의 인테리어가 화이트가 기반이 된다고 볼 수 있는데요. 모던하고 심플하기도하고 오래 보아도 질리지 않는다는 장점이 있지만 누군가는 너무 밋밋하다고 생각하여 독특한 포인트를 원하기도 하세요. 그래서 이번에 보여드릴 현장은 일산 부천 광명 사무실인테리어로 중앙에 레드 컬러의 강렬한 매치가 눈에 띄는 곳이었는데요. 차근차근 소개해드리도록 하겠습니다.
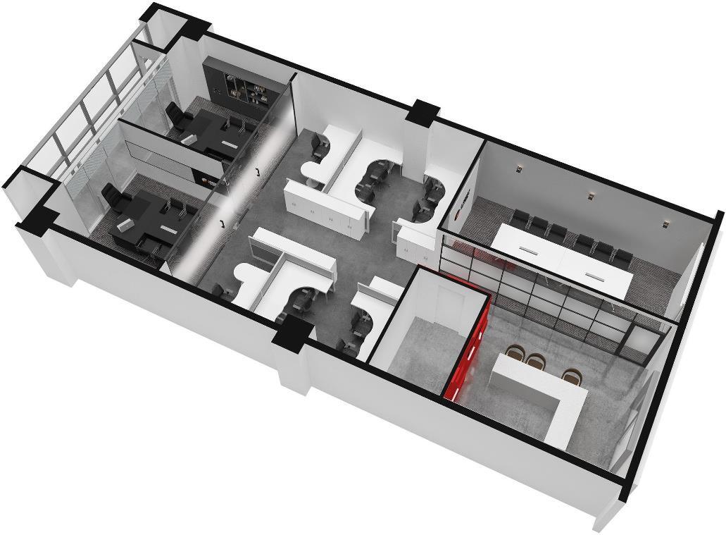
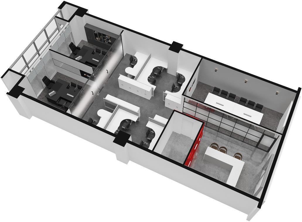
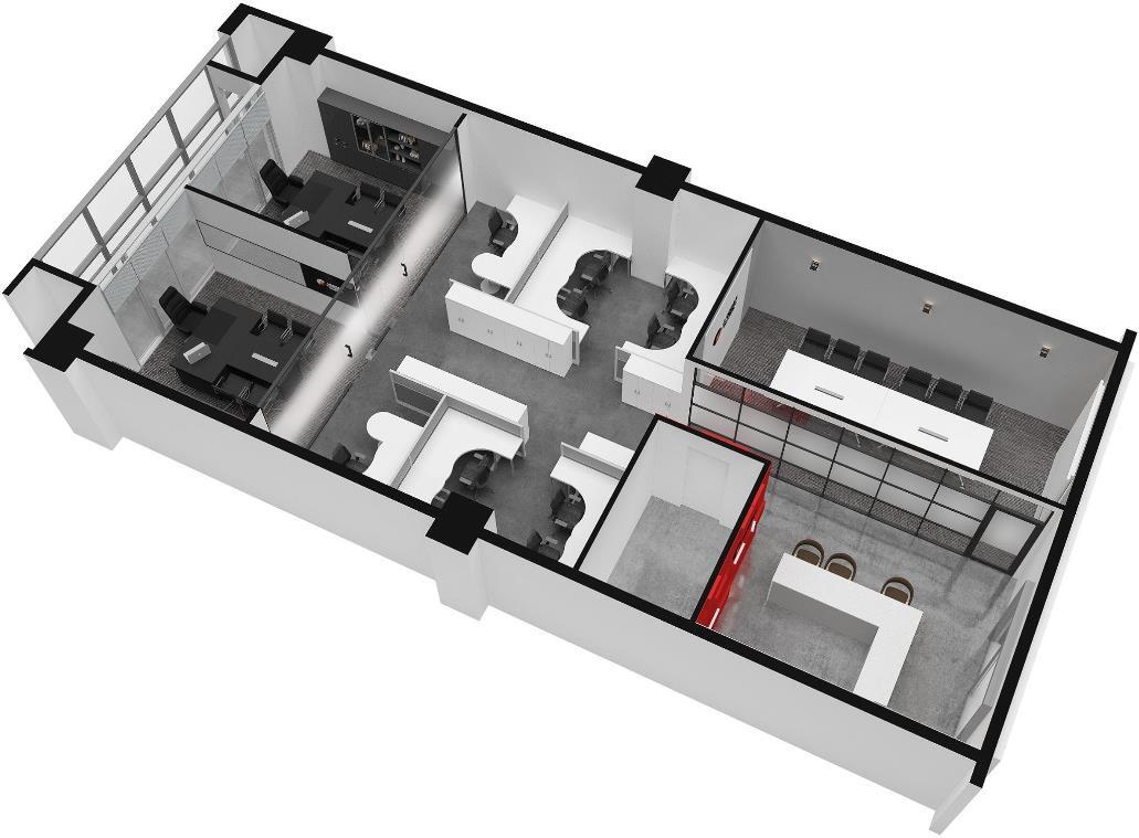
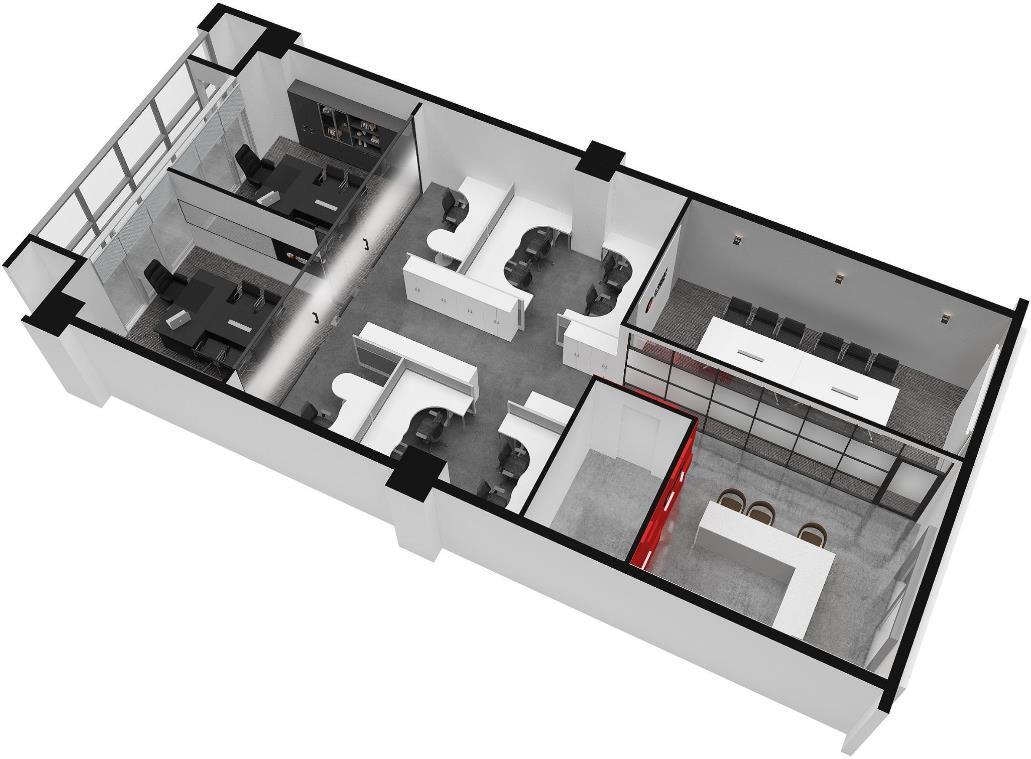
3D 이미지 제안


우선 저희 916디자인은 클라이언트분과 전반적인 소통을 끝내고나서 이해를 돕고, 보다 자세한 소통을 위해서 3D로 시안을 제작하고 있는데요. 이것을 1차로 보여드리고 나면 수정사항을 체크하거나 여러 디테일에 대해서 세심하게 이야기할 수 있습니다. 그리고 실제와 거의 똑같이 구현되기 때문에 더욱 믿고 맡기실 수 있으리라 생각하는데요.

먼저 입구는 화사하면서도 심플하게 구성하였습니다. 그리고 유리이긴 하지만 중앙부분을 불투명으로 처리하여서 내부의 프라이빗을 지키면서도 답답하지 않게끔 시야를 처리하였습니다.

들어서자마자 보이는 곳은 바로 강렬한 레드 포인트로 산뜻한 공간을 만들어내는 휴게실입니다. ㄷ자구조의 부엌을 설치하고 팬던트 조명과 바스탠드 의자로 마치 하나의 카페에 온듯한 분위기를 자아내고 있습니다.


미팅룸과 CEO룸은 모던한 블랙 & 화이트 연출로 이뤄냈습니다. 클라이언트분께서도 도시적이면서 세련된 스타일을 원하셨고 아늑한 느낌보다는 정말 사무업무에 어울리는 미니멀한 디자인을 추구하셨기에 이렇게 현대적인 디자인으로 연출을 드렸고, 매우 만족하셨는데요. 이 이미지상에서 보이는 일산 부천 광명 사무실인테리어가 어떻게 실제로 구현되는지 살펴보실까요 ?
공사 진행 현장


인테리어 시공의 매력은 이렇게 아무것도 없는 현장을 새롭게 만들어내는데에 있다고 생각합니다. 정말 비포와 애프터를 비교하면 같은 공간이 맞나? 하는 생각이 들 정도의 모습을 보여주곤 하는데요. 이번 현장도 처음에는 버려진 공터와같은 모습이었지만 많은 전문가들의 손길에 의해서 둘 도없는 세련된 사무실로 바뀌어질 예정입니다.



기본적으로 도장과 바닥 공사는 물론 목공작업을 통해 공간을 분리하는데요. 도장은 마감이 중요하기 때문에 숙련된 기술이 필요하고 바닥또한 마찬가지입니다. 그리고 적재적소에 필요한 소재들로 프레임을 맞추고 , 조명을 설치하면 그 전과는 확연히 다른 모습을 보여주곤 합니다. 또한 3D이미지를 기반으로 제작되기 때문에 모든 작업자들이 전체적인 느낌을 알고 진행되며 신속하고 체계적으로 이뤄진다는 장점이 존재합니다. 이제 모든 것이 이루어진 완료 현장을 보실까요?
공사 마감 현장


#탕비실
이번 일산 부천 광명 사무실인테리어의 강렬한 포인트이자 메인 컨셉이라고 할 수 있는 곳입니다. 들어서자마자 보이는 탕비실은 ㄷ자구조의 부엌으로 되어있으며 상부장은 별도로 설치하지 않아서 개방감을 높이고 있습니다. 또한 상판과 하단에 단차를 주어서 식탁으로 이용할 수 있으며 천장의 골드 팬던트 조명은 주변을 더욱 화사하게 만들어주는데요.대리석 상판 하단에는 LED조명또한 매립하여서 더욱 공간을 빛내고 있습니다. 그리고 가장 주목되는 부분은 아무래도 후면의 아트월이라고 할 수 있는데요. 강렬한 레드 컬러로 시선을 집중시키며 일반 밋밋한 벽이 아니라 체커보드 형식처럼 되어 있으며 중간 중간 입체적으로 양각 처리가 되어있고 조명이 매립되어있어 더욱 시선을 집중시키고 있습니다.


ㄷ자구조 모두 하부장이 설치되어있기 때문에 수납공간은 넉넉한 편이며 조리대를 넓게 사용할 수 있다는 장점이 있습니다. 다양한 사람이 머물다가는 사무실인만큼 공간의 효율성에 대해서 생각했으며 천장에는 팬던트 조명 뿐만 아니라 레일 조명도 설치되어있어 전체를 밝혀주고 있습니다. 그리고 분리수거는 물론 생활에 편의성을 더할 비품들이 곳곳에 배치되어있습니다.

레드 아트월의 뒷편에는 수납을 위한 공간이 더욱 마련되어 있으며 전부 화이트로 통일하여 깔끔하게 연출했습니다.


또한 단순히 파사드로 보였던 곳은 문이 설치되어있는데요. 비밀의 공간 같은 이곳은 다용도실로 사용될 곳이며 사무실에 필요한 잡다한 파일을 보관하기도 하고 프린터와 복합기를 설치하여 탕비실로도 사용이 가능합니다.


#미팅룸
또한 일산 부천 광명 사무실인테리어의 미팅룸은 조명에서부터 색다른 매력을 보여주는데요. 천장에 화사한 전체 조명에는 푸른계열의 색상으로 줄지어진 판이 색다른 분위기를 조성합니다. 자칫하면 블랙과 화이트로 밋밋할 수 있는 공간을 살리기 위해서 조명에 집중했는데요. 집중을 무너뜨리지 않으면서도 공간의 매력도를 높일 수 있는 포인트라는 점에서 클라이언트분께서도 높은 만족감을 표하셨습니다.

또한 외부 통로와 연결된 곳은 블랙 프레임과 유리로 시공하였지만 맨 윗칸을 제외하고는 불투명 필름을 붙여 프라이빗한 공간을 만들어냈습니다. 그리고 벽마다 LED 조명을 설치하여서 모든 사방에서 빛을 비추기에 밝은 분위기 속에서 자유로운 아이디어를 제시할 수 있을것이라 전망했습니다.


#사무공간
이 곳은 일산 부천 광명 사무실인테리어의 사무공간입니다. 우선 너무 딱딱한 분위기를 지양하기 위해서 책상의 모서리 부분을 라운딩 처리하였으며 집중도를 높이기 위해 서로 벽을 보는 구조로 설계하였습니다. 그리고 파티션은 연그레이 색상으로 조화를 이루었으며 바닥색상과 통일감을 주었는데요. 테두리와 중앙에 라인 조명이 설치되어서 밝은 연출을 하는 것도 잊지 않았습니다.



또한 파티션은 물론 수납장을 충분히 마련하였는데요. 일산 부천 광명 사무실인테리어를 진행하다보면 생각보다 수납공간이 부족해서 나중에 불편함을 토로하는 경우가 많았습니다. 여러가지 파일이나 비품등 보관해야하는 것이 많은 업종일수록 더하였는데요. 그래서 저희는 항상 처음부터 충분한 수납공간을 마련하기 위해서 노력하는 편이며 동선에는 불편함이 가지 않도록 파티션과 일렬로 배치하였습니다.



#CEO룸
CEO룸은 대표님의 편안한 업무환경을 위해서 우드 인테리어를 가미하였습니다. 블라인드 또한 우드 재질로 사용하였으며 책상과 수납장도 통일하였는데요. 근무를 하면서 필요할 때에 소규모 회의를 진행할 수 있도록 T자 구조로 테이블을 배치하였으며 한쪽 벽에는 화이트보드를 설치하였습니다. 그리고 바깥을 바라보는 구조로 테이블을 배치하여 회사의 전반적인 상황을 보실 수 있도록 만들었습니다.

그리고 따사로운 햇살이 들어오는 테라스까지 화이트로 만들어 가끔은 휴식을 하실 수 있도록 마지막 배려도 잊지않았는데요. CEO룸 뒷편에 준비된 이곳은 다용도실로 이용할 수 있는 공간은 물론 잠깐 쉬어가는 휴식처가 될 수 있게끔 만들어드렸습니다.



마지막으로 입구는 전체 화이트와 블랙으로 도장하여서 내부와 컨셉의 통일을 하였습니다. 그리고 라인 조명을 교차하여 시공하면서 색다른 포인트를 주었으며 로고를 양각으로 모던하게 연출하였는데요.
916디자인은 항상 트렌디하고 센스있는 인테리어로 클라이언트분들에게 높은 만족감을 선사하고 있습니다. 다 같은 사무실이라고 하더라도 어떤 곳에서 시공하여서 컨셉을 잡고 시공하느냐에 따라서 퀄리티와 분위기는 천차만별로 달라질 수 있습니다. 그러니 저희 블로그를 둘러보시면 다양한 사례가 있으니 한 번 살펴보시고 아래의 번호로 문의주신다면 누구보다 신속하고 합리적인 상담 도와드리겠습니다.
공사문의 010-3235-8427
포트폴리오 바로가기▶916er.com
2022.06.13 - [사무실인테리어] - 용인 수지 사무실인테리어 아늑하고 클래식한 벽돌디자인이 돋보이는
용인 수지 사무실인테리어 아늑하고 클래식한 벽돌디자인이 돋보이는
용인 수지 사무실인테리어 아늑하고 클래식한 벽돌디자인이 돋보이는 안녕하세요 916디자인입니다. 여름이 다가오고 올해도 반틈이 지나가면서 많은 기업들이 새로운 마음으로 하반기를
dopamine7.com
2022.06.12 - [사무실인테리어] - 합정 공덕 쇼핑몰 사무실인테리어 , 쇼룸처럼 트렌디하고 넓은 공간 활용
합정 공덕 쇼핑몰 사무실인테리어 , 쇼룸처럼 트렌디하고 넓은 공간 활용
합정 공덕 쇼핑몰 사무실인테리어 , 쇼룸처럼 트렌디하고 넓은 공간 활용 안녕하세요 916디자인입니다. 오늘은 합정 공덕 쇼핑몰 사무실인테리어를 소개해드리려고 합니다. 쇼핑몰은 유
dopamine7.com
2022.06.11 - [사무실인테리어] - 영등포 동작 사무실인테리어 화사한 조명과 눈에 띄는 입구 파사드 연출로
영등포 동작 사무실인테리어 화사한 조명과 눈에 띄는 입구 파사드 연출로
영등포 동작 사무실인테리어 화사한 조명과 눈에 띄는 입구 파사드 연출로 안녕하세요 916디자인입니다. 오늘은 화이트&원목 컨셉으로 화사하면서도 곳곳에 포인트가 들어간 세련된 영등
dopamine7.com
2022.06.10 - [사무실인테리어] - 수원 동탄 사무실인테리어 세련된 시공으로 특별한 공간 연출까지
수원 동탄 사무실인테리어 세련된 시공으로 특별한 공간 연출까지
수원 동탄 사무실인테리어 세련된 시공으로 특별한 공간 연출까지 안녕하세요 916디자인입니다. 오늘은 조금 특별한 수원 동탄 사무실인테리어를 소개해드리려고 합니다. 이번 현장은 일반 사
dopamine7.com
2022.06.09 - [사무실인테리어] - 강서 구로 사무실인테리어 복층으로 효율적이게 공간 활용하기
강서 구로 사무실인테리어 복층으로 효율적이게 공간 활용하기
강서 구로 사무실인테리어 복층으로 효율적이게 공간 활용하기 안녕하세요 916디자인입니다. 오늘은 복층으로 이루어져 공간의 활용도가 높은 강서 구러 사무실 인테리어 현장을 다녀왔는데요.
dopamine7.com
'사무실인테리어' 카테고리의 다른 글
| 평택 오산 고덕 사무실인테리어 원목스타일로 고급스럽고 따뜻한 분위기 연출 (0) | 2022.06.24 |
|---|---|
| 파주 일산 고양 사무실인테리어 독특한 조명 활용으로 브랜드 가치를 높이고 싶다면 (0) | 2022.06.18 |
| 안산 안양 의왕 사무실인테리어 매력적인 바닥재를 기반으로 고급스러운 연출 (0) | 2022.06.17 |
| 여의도 당산 노들 대형 사무실인테리어 높은 퀄리티와 감성적인 느낌 가득한 공간 (0) | 2022.06.16 |
| 용인 수지 사무실인테리어 아늑하고 클래식한 벽돌디자인이 돋보이는 (0) | 2022.06.13 |
| 합정 공덕 쇼핑몰 사무실인테리어 , 쇼룸처럼 트렌디하고 넓은 공간 활용 (0) | 2022.06.12 |
| 영등포 동작 사무실인테리어 화사한 조명과 눈에 띄는 입구 파사드 연출로 (0) | 2022.06.11 |
| 수원 동탄 사무실인테리어 세련된 시공으로 특별한 공간 연출까지 (0) | 2022.06.10 |
- Total
- Today
- Yesterday
- 미용실인테리어
- 사무실인테리어추천
- 인테리어디자인
- 사무실디자인
- 학원인테리어
- 3D사무실인테리어
- 사무실인테리어업체
- 사무실인테리어견적
- 상가인테리어
- 인천사무실인테리어
- 학원인테리어디자인
- 사무실인테리어후기
- 사무실인테리어잘하는곳
- 회사인테리어
- 3D디자인
- 사무실인테리어
- 오피스인테리어
- 사무실리모델링
- 사무실인테리어비용
- 인테리어
- interior
- 병원인테리어
- 사무실인테리어전문
- 지식산업센터인테리어
- 사무실인테리어디자인
- 헤어샵인테리어
- 사무실인테리어공사
- 피티샵인테리어
- 916디자인
- 헬스장인테리어
| 일 | 월 | 화 | 수 | 목 | 금 | 토 |
|---|---|---|---|---|---|---|
| 1 | 2 | |||||
| 3 | 4 | 5 | 6 | 7 | 8 | 9 |
| 10 | 11 | 12 | 13 | 14 | 15 | 16 |
| 17 | 18 | 19 | 20 | 21 | 22 | 23 |
| 24 | 25 | 26 | 27 | 28 | 29 | 30 |
| 31 |
