티스토리 뷰
목차
서대문 동대문 신내동 헤어샵인테리어 소규모 매장 리모델링 공사비
안녕하세요 916디자인입니다. 오늘 소개해드릴 것은 서대문 동대문 신내동 헤어샵인테리어입니다. 소규모의 매장일지라도 리모델링을 통해서 시공 작업을 진행해드리고 있으며 클라이언트의 요구에 따라 공사 비용과 견적을 적절하게 짜드리고 도와드리고 있습니다. 저희 916 디자인은 서대문 동대문 신내동에서 시공 작업을 완성까지 하고 있습니다. 사무실 인테리어를 하고 싶으신 분이 계시다면 이를 참고해보시기를 바랍니다.
3D

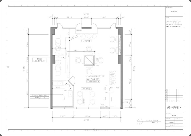
사무실 인테리어의 도안의 모습입니다. 소규모의 헤어샵 매장이지만 저희만의 유용한 공간 배치를 통해서 시공 작업을 진행해드렸으며 이를 참고로 하여 작업을 시도해보았습니다.

ISO의 모습입니다. 위에서 소개해드린 견적에 맞추어서 만들어 보았으며 전체적으로 아기자기한 느낌이지만 화이트톤의 색감을 이용하여 공간을 전체적으로 조성하고 깔끔하게 배치해보았습니다. 가벽을 이용하여 직원 휴게실과의 공간의 분리성을 만들었고 좁은 공간이라고 할지라도 최상의 공간 배치를 통해서 좁지 않은 느낌을 줄 수 있도록 최선을 다하였습니다.



헤어샵 내부의 ISO 전경입니다. 위에서 보았을 때는 단순힌 화이트톤으로만 색감을 사용하여 밋밋할 수 있다고 생각하셨을텐데 이러한 부분은 저희 916 디자인은 여러 중요 포인트를 이용해서 최대한 없도록 해보았습니다. 외벽 또한 들어가고 나오는 부분을 강조해서 색감을 살려보았으며 가구 인테리어를 화이트톤이 아닌 곳곳에 블루톤, 블랙톤 등 여러가지 색깔을 이용해서 다채로운 느낌을 주었습니다.
공사진행




이와 같이 도안과 ISO가 나오고 클라이언트의 요구 사항이 맞아 떨어지게 된다면 저희는 바로 시공 작업을 들어가게 됩니다. 경험이 많은 인테리어 전문가들이 모여서 도안에 맞춰 완벽하게 진행을 해드리고 있으며 도안과는 달리 현장에서 다른 부분이 있다면 클라이언트와의 의견 조율을 통해서 중간점을 맞추어 시공 작업을 하려고 노력하고 있습니다.




헤어샵의 전경에 따른 가구 배치 또한 세밀하게 시공을 해드리고 있으며 천장과도 같은 경우에도 좁은 헤어샵이 조금 더 넓어 보일 수 있도록 우물 천장을 만들어서 공간 구성을 해보았습니다.
공사완료



시공 작업을 마무리하고 완성된 최종 사진입니다. 작업 공간의 경우에는 ISO 도안과 일치하게 기둥이 있는 작업 공간과 외벽이 있는 작업 공간을 나누어 보았으며 기둥이 있는 작업 공간과 같은 경우에는 거울이 있는 부분에 조명을 주어서 작업을 받는 고객들이 한층 더 선명하게 받을 수 있도록 구성을 시도하였으며 외벽이 있는 작업 공간은 거울 뒤에 조명을 두는 것이 아닌 천장에 조명을 두어 배치를 해보았습니다.


전체적으로 화이트톤의 색감을 살려서 인테리어 디자인을 하였으며 창문이나 가구 인테리어 같은 경우에는 공간의 다채로움을 살리기 위해서 화이트톤이 아닌 다른 톤의 색깔을 살려 보았습니다. 당장의 가구 인테리어만 보아도 고객이 사용하는데 불편함이 없도록 우드톤과 블랙톤의 색감을 활용하였고 동일한 무채색의 색을 이용함으로 통일성을 활용해보았습니다.


앞서 설명을 드렸듯이 기둥이 있는 작업 공간같은 경우에는 거울 뒤에 조명을 배치하는 특색을 넣어 보았습니다. 이와 같은 조명 배치는 이미 많은 미용실에서 사용을 하고 있지만 저희 916 디자인은 이러한 조명 배치를 공간의 구성에 따라 시기적절하게 사용함으로서 한층 더 활용적인 인테리어를 할 수가 있었습니다.



가게의 전체적인 분위기를 살리는 것은 역시 조명이라고 할 수 있는데 이는 있어야 하는 필수적인 요소이기도 하면서 디자인을 살려주는 하나의 센스라고 표현할 수 있겠습니다. 은은하게 비춰주는 듯한 조명을 설치함으로서 헤어샵에 온 고객들이 마음이 편안하고 아늑한 느낌이 들 수 있도록 곳곳에 배치하여 포인트를 주는 인테리어를 구성해보았습니다.

기둥이 위치하고 있는 작업 공간의 모습입니다. 어두운 환경에 있음에도 불구하고 조명을 이용하여 은은하고 우아한 느낌이 들고 있습니다.



가구 인테리어 또한 공간의 배치에 맞춰서 각기 다르게 구성을 해보았습니다. 휴게 공간의 경우에는 우드톤을 더욱 이용해서 화이트톤이 많이 사용된 헤어샵에서 눈에 띄도록 구성해보았고 작업 공간의 경우에는 우드톤보다는 블랙톤을 활용해서 배치를 해보았습니다. 이는 밋밋한 느낌을 없애는데 1등 공신이라 할 수 있습니다.

저희 916 디자인은 이와 같은 모던하지만 깔끔한 헤어샵 인테리어를 시공 작업 해보았습니다. 무엇보다 공간을 배치하는데 있어서 각각의 특색을 살리는데 최고라고 말할 수 있으며 언제든지 문의해주시면 이렇게 도와드릴 수 있습니다.
#헤어샵인테리어 #소규모헤어샵인테리어
공사문의 010-3235-8427
포트폴리오 바로가기▶salon916.com/
전화주시면 간단한 비용견적 상담부터 현장방문 미팅까지 진행하고 있습니다. 연락주세요.
2021.04.21 - [미용실인테리어] - 시흥 안산 안양 지역 30평 40평 내츄럴 뷰티샵인테리어, 저렴한 공사비 견적
시흥 안산 안양 지역 30평 40평 내츄럴 뷰티샵인테리어, 저렴한 공사비 견적
시흥 안산 안양 지역 30평 40평 내츄럴 뷰티샵인테리어, 저렴한 공사비 견적 안녕하세요 916디자인입니다. 오늘 소개해드릴 곳은 시흥 안산 안양 지역 30평 40평 내츄럴 뷰티샵인테리어 입니다. 저
dopamine7.com
2021.04.20 - [미용실인테리어] - 하남 미사 소규모 네일샵인테리어 시공회사, 깔끔한 내부 공사비 무료견적과 사례
하남 미사 소규모 네일샵인테리어 시공회사, 깔끔한 내부 공사비 무료견적과 사례
하남 미사 소규모 네일샵인테리어 시공회사, 깔끔한 내부 공사비 무료견적과 사례 안녕하세요 916디자인입니다. 이번에 소개해드릴 곳은 하남 미사 소규모 네일샵인테리어 입니다. 저희 916 디자
dopamine7.com
2021.04.19 - [미용실인테리어] - 명동 강동 서대문 미용실인테리어 컨셉, 소규모 평수 사례와 무료견적 확인하기
명동 강동 서대문 미용실인테리어 컨셉, 소규모 평수 사례와 무료견적 확인하기
명동 강동 서대문 미용실인테리어 컨셉, 소규모 평수 사례와 무료견적 확인하기 안녕하세요 916디자인입니다. 이번에 소개해드릴 것은 명동 강동 서대문 미용실인테리어 컨셉입니다. 저희 916 디
dopamine7.com
2021.04.17 - [미용실인테리어] - 고양 일산 헤어샵인테리어 깔끔한 스타일링 컨셉으로 저렴한 시공비 10평 12평 15평 견적
고양 일산 헤어샵인테리어 깔끔한 스타일링 컨셉으로 저렴한 시공비 10평 12평 15평 견적
고양 일산 헤어샵인테리어 깔끔한 스타일링 컨셉으로 저렴한 시공비 10평 12평 15평 견적 안녕하세요 916디자인입니다. 오늘 소개해드릴 곳은 고양 일산 헤어샵인테리어입니다. 저희 916
dopamine7.com
2021.04.16 - [미용실인테리어] - 금천구 의정부 용산 뷰티샵인테리어 고급 네일매장 시공비 싸게하기
금천구 의정부 용산 뷰티샵인테리어 고급 네일매장 시공비 싸게하기
금천구 의정부 용산 뷰티샵인테리어 고급 네일매장 시공비 싸게하기 안녕하세요 916디자인입니다. 이번에 소개해드릴 곳은 금천구 의정부 용산 뷰티샵인테리어 입니다. 저희 916 디자인은 금천
dopamine7.com
'미용실인테리어' 카테고리의 다른 글
| 수원 동탄 네일샵인테리어, 소형 1인샵 8평 10평 12평 규모 시공비 (0) | 2021.04.29 |
|---|---|
| 시흥 안산 안양 럭셔리 클래식 스타일 네일샵인테리어 싸게하기 (0) | 2021.04.27 |
| 남양주 별내 네일샵 창업시 참고해야할 평당인테리어비용 (0) | 2021.04.26 |
| 구로 가산동 금천구 8평부터 20평 헤어샵인테리어 (0) | 2021.04.24 |
| 시흥 안산 안양 지역 30평 40평 내츄럴 뷰티샵인테리어, 저렴한 공사비 견적 (0) | 2021.04.21 |
| 하남 미사 소규모 네일샵인테리어 시공회사, 깔끔한 내부 공사비 무료견적과 사례 (0) | 2021.04.20 |
| 명동 강동 서대문 미용실인테리어 컨셉, 소규모 평수 사례와 무료견적 확인하기 (0) | 2021.04.19 |
| 고양 일산 헤어샵인테리어 깔끔한 스타일링 컨셉으로 저렴한 시공비 10평 12평 15평 견적 (0) | 2021.04.17 |
- Total
- Today
- Yesterday
- 인천사무실인테리어
- 지식산업센터인테리어
- 인테리어디자인
- 미용실인테리어
- 학원인테리어디자인
- 사무실리모델링
- 헤어샵인테리어
- 사무실인테리어전문
- 사무실인테리어업체
- 사무실인테리어
- 인테리어
- 사무실인테리어견적
- 헬스장인테리어
- 학원인테리어
- interior
- 사무실인테리어디자인
- 3D디자인
- 회사인테리어
- 사무실디자인
- 사무실인테리어잘하는곳
- 상가인테리어
- 3D사무실인테리어
- 916디자인
- 사무실인테리어후기
- 사무실인테리어비용
- 사무실인테리어공사
- 사무실인테리어추천
- 피티샵인테리어
- 병원인테리어
- 오피스인테리어
| 일 | 월 | 화 | 수 | 목 | 금 | 토 |
|---|---|---|---|---|---|---|
| 1 | 2 | 3 | ||||
| 4 | 5 | 6 | 7 | 8 | 9 | 10 |
| 11 | 12 | 13 | 14 | 15 | 16 | 17 |
| 18 | 19 | 20 | 21 | 22 | 23 | 24 |
| 25 | 26 | 27 | 28 | 29 | 30 | 31 |
