티스토리 뷰
목차
인천 김포 마곡 헬스장인테리어, 10평 20평 디자인 설계 및 시공 싸게하기
안녕하세요 916디자인입니다. 이번에 소개해드릴 곳은 10평에서 20평과 같은 공간의 인천 김포 마곡 헬스장인텔리어입니다. 이번 시공은 인천 김포 마곡에서 시공 작업이 진행되었으며 저희 916 디자인은 이와 같은 디자인 설계 및 시공 싸게하기와 같은 서비스를 해드리고 있습니다. 인테리어를 고민하고 계시거나 소형 사무실이기에 공간 배치를 어떻게 할 지 몰라서 고민이신 분들은 저희에게 문의해주시기를 바랍니다.
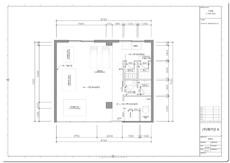
3D

도안의 모습입니다. 전체적으로 공간을 둘로 나누어서 소형 사무실의 특색을 살리고 장점을 활용했습니다. 10평 20평의 사무실은 자칫하면은 불필요한 가구 및 기구 배치 때문에 공간이 엄청나게 작아보일 수가 있습니다. 저희는 이런 부분을 공간 배치의 효율적인 구성을 통해서 살려보았습니다. 우측을 보시게 되면 좁은 공간임에도 불구하고 탈의실, 창고, 샤워실, 파우더룸 등이 있는 것을 보실 수 있습니다.

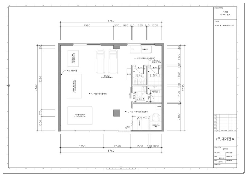
사무실의 ISO 모습입니다. 앞서 말씀드린 것과 같이 공간의 분리성을 바닥 인테리어를 통해서 구성했습니다. 운동 공간의 경우에는 헬스를 하고 있는 고객들이 이에 집중을 확실하게 할 수 있도록 블랙톤의 깊고 어두운 색을 이용해서 배치를 시도해보았습니다. 우측의 공간 같은 경우에는 운동 공간과는 다르게 다용도로 사용이 가능하게끔 분리성을 넣어서 공간을 최대한 활용한 모습입니다.

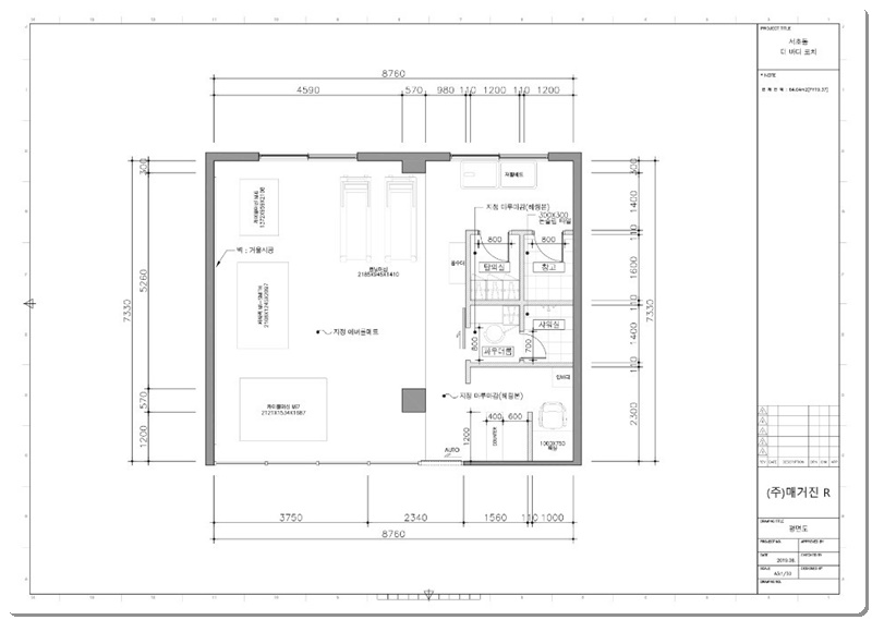
이처럼 4개의 공간 중 하나인 샤워실의 모습입니다. 앞에는 운동을 마친 고객들이 이용할 수 있도록 수납장과 출입문이 배치되어있습니다. 자세히 보시면 수납장에 더불어서 정수기가 있는 것을 보실 수 있습니다. 디자인적으로 함께 배치하여서 물이 반드시 필요한 운동 공간에서의 활용도를 높여보았습니다.

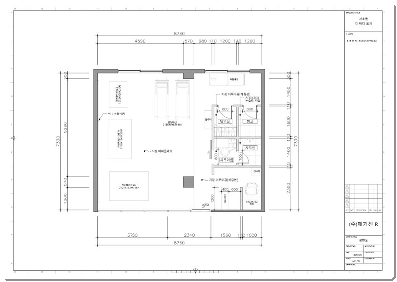
제일 중요하다고 할 수 있는 운동공간의 모습입니다. 여느 헬스장과 같이 운동 공간은 운동을 하는데 있어서 매우 집중도를 요하는 공간입니다. 그렇기에 블랙톤과 같은 어두운 톤을 사용하여 기구와 디자인을 인테리어함과 동시에 위에는 조명을 달아서 너무 어둡지는 않고 집중도를 높일 수 있도록 배치하였습니다.

샤워실 내부의 모습입니다. 이 또한 다른 공간과 동일하게 화이트톤을 이용하여서 깔끔함과 깨끗함을 강조하였습니다. 다만 이곳은 운동을 마친 고객이 심신을 아우르며 씻고 정돈할 수 있도록 바닥에 일정한 문양을 넣어서 한층 더 편안한 분위기를 조성해 보았습니다. 샤워기같은 경우에는 이와는 대비되게 블랙톤의 색을 이용해서 상대적으로 눈에 잘 띄게 배치하였습니다.
공사진행





저희 916 디자인은 이처럼 클라이언트의 요구에 따라 견적, 도안, ISO, 3D 에 이르기까지 인테리어를 구성해드리고 있으며 마지막으로 저희가 내드린 포트폴리오의 허가가 되고 승인이 된다면 이처럼 시공 작업이 바로 진행이 되게 되는 것입니다. 시공 현장에서 저희는 경험이 많고 전문적인 인테리어 기술자를 현장 배치함으로 인해 클라이언트가 조금 더 신뢰를 가지고 맡길 수 있는 시공 현장을 완성까지 도와드리고 있습니다.




높이가 있는 건물일 경우에는 이처럼 사다리차를 이용해서 가구를 이동하고 있으며 저희가 견적을 내드린 포트폴리오와 동일하게 완성할 수 있도록 도와드리고 있습니다. 이는 저희 인테리어 기술자들의 섬세한 기술력 덕분이라고 말씀드릴 수 있습니다.




모든 시공이 완성되고 난 후의 사진입니다. 아직까지 헬스장 기구는 들어오지 않았으며 비어있는 공간만을 사진을 찍어서 보여드렸는데 절대 10평 20평이라고는 볼 수 없는 인천 김포 마곡 헬스장인테리어를 넓어보이게 공간 구성을 완성하였습니다. 운동 공간과 기타 공간을 나누는데에는 가벽을 설치하기로 하였습니다.

하지만 가벽을 잘못 설치하게 되면 기껏 넓어보이게 만든 공간이 다시 좁아보일 수가 있습니다. 저희는 그 점을 참고하여 이처럼 유리 가벽을 사용하여서 공간의 개방성을 살려 보았습니다. 지금 보시는 것과 같이 가벽이 설치되었음에도 불구하고 공간은 넓어보이는 것을 알 수가 있습니다.



위에서 설명을 해드린 여러 공간의 모습입니다. 이중에서 저는 샤워실을 대표로 설명을 해드리도록 하겠습니다. ISO 와는 달리 상대적으로 좁아보이는 샤워실이 만들어져있지만 저희는 이런 부분을 인테리어 구성과 색감의 배치로 보완을 해보았습니다. 아늑하고 깔끔한 샤워실이 위 사진과 같이 만들어진 것입니다.


다른 공간들도 3D 도안과 동일하게 제작이 되었으며 좁아보이는 종합 공간을 4등분으로 나누었음에도 불구하고 공간이 전혀 좁아보이지 않고 오히려 활용도를 살린 것을 느낄 수 있으실 것입니다.

저희는 이렇게 10평 20평같은 운동 공간으로 활용하기에는 조금은 좁다고 할 수 있는 평수를 최대한의 공간 활용을 통해서 넓어보이게끔 인테리어를 도와드릴 수 있습니다. 작은 평수로 인해서 고민하고 계시다면 저희에게 문의해주시기를 바랍니다. 고민 해결과 동시에 진행부터 완료까지 착실하게 해드리겠습니다.
#헬스장인테리어 #헬스장인테리어싸게하기
공사문의 010-3235-8427
포트폴리오 바로가기▶916er.com/category/fitness/
전화주시면 간단한 비용견적 상담부터 현장방문 미팅까지 진행하고 있습니다. 연락주세요.
2021.05.02 - [피티샵 헬스장인테리어] - 화성 동탄 수원 필라테스인테리어, 심플한 내부 공사비용 및 컨셉 살펴보자!
화성 동탄 수원 필라테스인테리어, 심플한 내부 공사비용 및 컨셉 살펴보자!
화성 동탄 수원 필라테스인테리어, 심플한 내부 공사비용 및 컨셉 살펴보자! 안녕하세요 916디자인입니다. 이번에 소개를 해드릴 곳은 화성 동탄 수원 필라테스인테리어입니다. 심플한 내
dopamine7.com
2021.04.30 - [피티샵 헬스장인테리어] - 동탄 수원 영통 실내운동시설 테니스장인테리어 공사비 무료견적
동탄 수원 영통 실내운동시설 테니스장인테리어 공사비 무료견적
동탄 수원 영통 실내운동시설 테니스장인테리어 공사비 무료견적 안녕하세요 916디자인입니다. 오늘 소개해드릴 곳은 실내운동시설인 테니스장인테리어 입니다. 저희 916 디자인은 이번 작업은
dopamine7.com
2021.04.28 - [피티샵 헬스장인테리어] - 부천 광명 영등포 피트니스인테리어, 30평 40평, 50평 규모 전문가 견적서
부천 광명 영등포 피트니스인테리어, 30평 40평, 50평 규모 전문가 견적서
부천 광명 영등포 피트니스인테리어, 30평 40평, 50평 규모 전문가 견적서 안녕하세요 916디자인입니다. 이번에 소개해드릴 곳은 부천 광명 영등포 피트니스인테리어 입니다. 이번 작업은 30평 40평
dopamine7.com
2021.04.25 - [피티샵 헬스장인테리어] - 독특하고 럭셔리한 요가원인테리어, 전국 무료견적 및 다양한 사례 공유
독특하고 럭셔리한 요가원인테리어, 전국 무료견적 및 다양한 사례 공유
독특하고 럭셔리한 요가원인테리어, 전국 무료견적 및 다양한 사례 공유 안녕하세요 916디자인입니다. 이번에 소개해드릴 곳은 독특하고 럭셔리한 요가원인테리어입니다. 저희 916 디자인은 이
dopamine7.com
2021.04.23 - [피티샵 헬스장인테리어] - 청라 송도 배곧 대규모 헬스장인테리어, 60평 70평 2개층 평당비용 및 공사비
청라 송도 배곧 대규모 헬스장인테리어, 60평 70평 2개층 평당비용 및 공사비
청라 송도 배곧 대규모 헬스장인테리어, 60평 70평 2개층 평당비용 및 공사비 안녕하세요 916디자인입니다. 오늘 소개해드릴 것은 청라 송도 배곧 대규모 헬스장인테리어입니다. 60평 70평의 헬스
dopamine7.com
'피티샵 헬스장인테리어' 카테고리의 다른 글
| 과천 성남 강남 필라테스 피티샵인테리어, 운동하며 머물고 싶은 공간으로 (0) | 2021.10.15 |
|---|---|
| 일산 부천 광명 필라테스 헬스장인테리어 추천! (0) | 2021.10.14 |
| 오산 평택 고덕 헬스장인테리어, PT샵 대형평수 시공사례 (1) | 2021.10.13 |
| 영등포 시흥 안양 헬스장인테리어, 화이트모던 디자인 및 시공사례 (0) | 2021.10.12 |
| 화성 동탄 수원 필라테스인테리어, 심플한 내부 공사비용 및 컨셉 살펴보자! (0) | 2021.05.02 |
| 동탄 수원 영통 실내운동시설 테니스장인테리어 공사비 무료견적 (0) | 2021.04.30 |
| 부천 광명 영등포 피트니스인테리어, 30평 40평, 50평 규모 전문가 견적서 (0) | 2021.04.28 |
| 독특하고 럭셔리한 요가원인테리어, 전국 무료견적 및 다양한 사례 공유 (0) | 2021.04.25 |
- Total
- Today
- Yesterday
- 사무실인테리어공사
- 피티샵인테리어
- 미용실인테리어
- 사무실인테리어업체
- 병원인테리어
- 학원인테리어디자인
- 인천사무실인테리어
- 인테리어디자인
- 사무실디자인
- 인테리어
- 3D사무실인테리어
- 사무실인테리어전문
- 사무실리모델링
- 사무실인테리어잘하는곳
- 사무실인테리어
- 오피스인테리어
- 회사인테리어
- 사무실인테리어비용
- 사무실인테리어디자인
- interior
- 3D디자인
- 학원인테리어
- 사무실인테리어후기
- 사무실인테리어견적
- 헤어샵인테리어
- 사무실인테리어추천
- 지식산업센터인테리어
- 916디자인
- 헬스장인테리어
- 상가인테리어
| 일 | 월 | 화 | 수 | 목 | 금 | 토 |
|---|---|---|---|---|---|---|
| 1 | 2 | |||||
| 3 | 4 | 5 | 6 | 7 | 8 | 9 |
| 10 | 11 | 12 | 13 | 14 | 15 | 16 |
| 17 | 18 | 19 | 20 | 21 | 22 | 23 |
| 24 | 25 | 26 | 27 | 28 | 29 | 30 |
| 31 |
